Скачать Типовой проект 901-6-67.83 Альбом II. Двухсекционная градирня. Технологические, строительные, электротехнические чертежи. Заказные спецификацииДата актуализации: 10.08.2017 Типовой проект 901-6-67.83
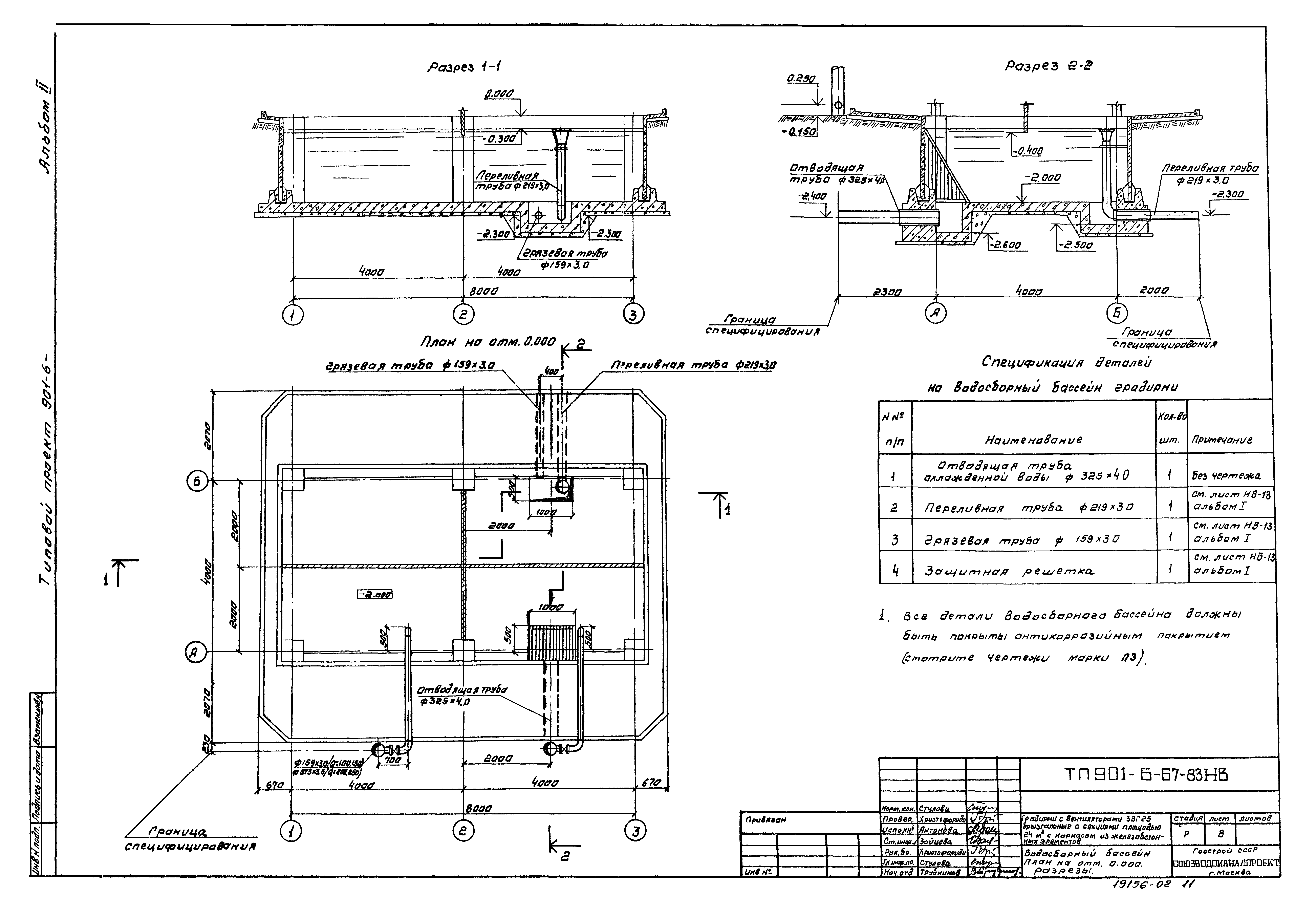
Альбом II. Двухсекционная градирня. Технологические, строительные, электротехнические чертежи. Заказные спецификацииОбозначение: | Типовой проект 901-6-67.83 | Обозначение англ: | 901-6-67.83 | Статус: | действует | Название рус.: | Альбом II. Двухсекционная градирня. Технологические, строительные, электротехнические чертежи. Заказные спецификации | Дата добавления в базу: | 01.09.2013 | Дата актуализации: | 05.05.2017 | Оглавление: | Ведомость чертежей Технологические решения Общие данные Общий вид двухсекционной градирни Расстановка водоуловительных решеток. План. Разрезы Водоуловительная система при гидравлической нагрузке 100, 150 куб. м/ч. План. Разрезы Водоуловительная система при гидравлической нагрузке 200, 250 куб. м/ч. План. Разрезы Расстановка блоков воздухонаправляющих щитов Водосборный бассейн. План на отм. 0.000. Разрезы Конструкции железобетонные Общие данные Фасады План на отм. 0.000. Разрезы 1-1, 2-2 Планы 3-3, 4-4 Схемы расположения сборных железобетонных конструкций Днище водосборного бассейна Днище водосборного бассейна. Схемы армирования Розета. План. Узлы Схема расположения щитов обшивки в осях "1-3", "3-1" Схема расположения щитов обшивки в осях "А-Б" и межсекционной обшивки Схемы расположения щитов обшивок. Спецификация Электрооборудование и автоматизация Общие данные. Кабельный журнал. Опросный лист для заказа постов ПКУ-15 Схема подключения электрооборудования. Электрическое освещение Расположение электрического оборудования и прокладка кабелей Задание заводу-изготовителю на крупноблочное оборудование Перечень комплектных устройств Шкаф Ш. Технические данные аппаратов Шкаф Ш. Чертеж общего вида Шкаф Ш. Таблица перечня надписей Шкаф Ш. Схема электрическая соединений Спецификация технологического оборудования Спецификация оборудования | Разработан: | Союзводоканалпроект
| Утверждён: | 10.05.1983 Главпромстройпроект Госстроя СССР (8А-19)
| Расположен в: |
|
                               
|