Информационная система
«Ёшкин Кот»

Скачать базу одним архивом
Скачать обновления
История создания базы
Карта сайта

Скачать Типовой проект 503-9-24.88 Альбом I. Пояснительная записка. Технология производства. Конструкции железобетонные. Конструкции металлические

Дата актуализации: 10.08.2017

Типовой проект 503-9-24.88

Альбом I. Пояснительная записка. Технология производства. Конструкции железобетонные. Конструкции металлические

Обозначение: Типовой проект 503-9-24.88
Обозначение англ: 503-9-24.88
Статус:не определен законодательством
Название рус.:Альбом I. Пояснительная записка. Технология производства. Конструкции железобетонные. Конструкции металлические
Дата добавления в базу:01.09.2013
Дата актуализации:05.05.2017
Дата введения:20.01.1989
Оглавление:Пояснительная записка
Чертежи марки ТХ
   Общие данные
   Схема расположения очистных сооружений в системе оборотного водоснабжения от мойки автомобилей. Технологическая схема очистки сточной воды
   План на отм. 0.000. Разрезы 1-1, 2-2, 3-3, 4-4
Чертежи марки КЖ
   Общие данные
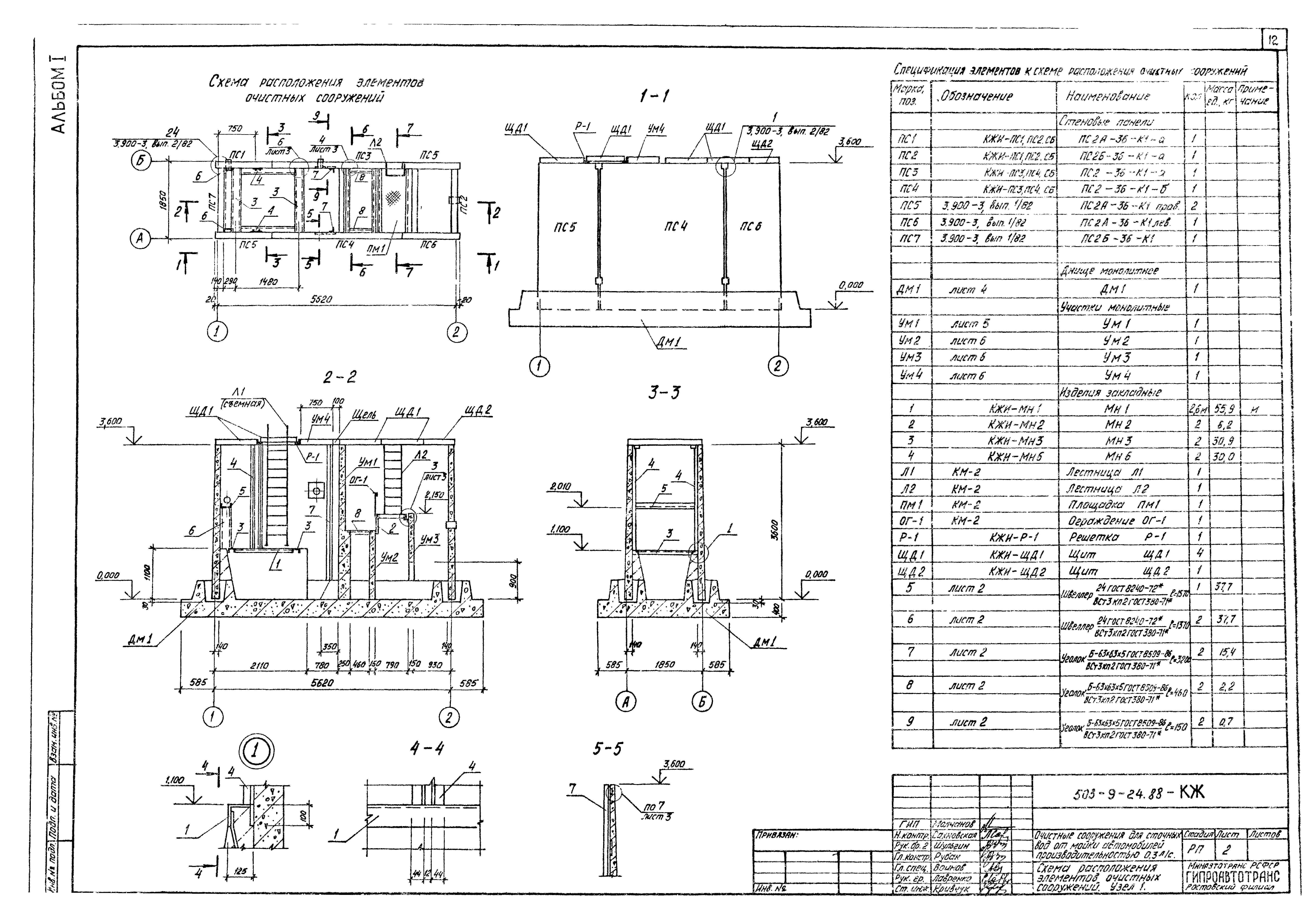
   Схема расположения элементов очистных сооружений. Узел 1
   Узел 2 - 7. Сечения 6-6 - 12-12
   Днище монолитное ДМ1
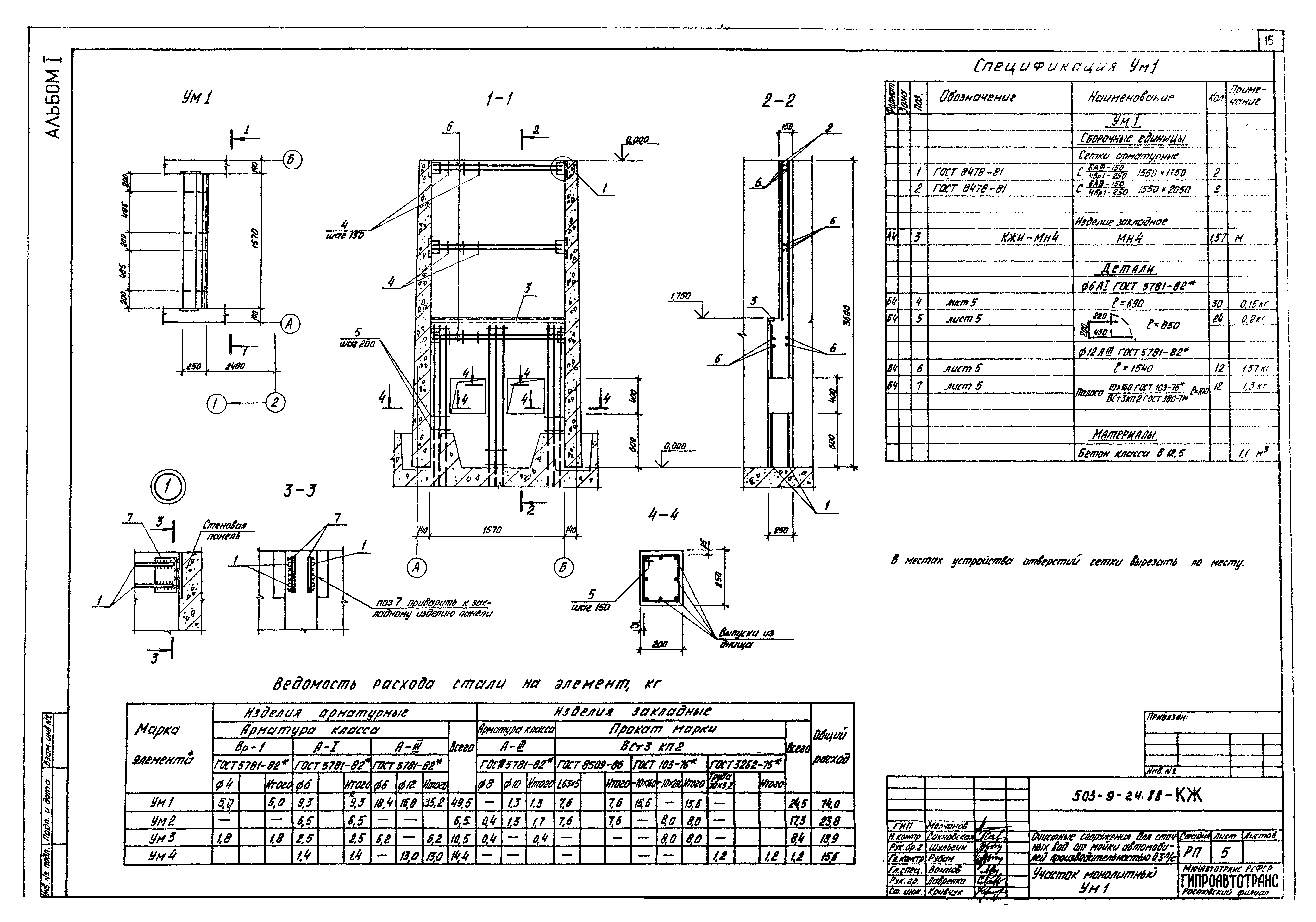
   Участок монолитный УМ1
   Участки монолитные УМ2 - УМ4
   Схема расположения элементов водозаборной камеры и резервуара для сбора нефтепродуктов
Чертежи марки КМ
   Общие данные
   Лестницы Л1, Л2. Площадка ПМ1, ограждение ОГ1
Чертежи марки КЖИ
   Панели стен ПС1, ПС2
   Панели стен ПС3, ПС4
   Изделие закладное МН1
   Изделие закладное МН2
   Изделие закладное МН3
   Изделие закладное МН4
   Изделие закладное МН5
   Изделие закладное МН6
   Изделие закладное МН7
   Изделие закладное МН8
   Сетка арматурная С1
   Каркас плоский КР1
   Щит деревянный ЩД1
   Щит деревянный ЩД2
   Решетка Р-1
Разработан: Гипроавтотранс
Утверждён:20.01.1989 Минавтотранс РСФСР (Russian Federation Minavtotrans 1)
Расположен в:Техническая документация Строительство Справочные документы Типовые строительные конструкции, изделия и узлы Общероссийский строительный каталог Промышленные предприятия, здания и сооружения Предприятия, здания и сооружения транспорта Транспорт автомобильный Здания и сооружения разные
Типовой проект 503-9-24.88Типовой проект 503-9-24.88Типовой проект 503-9-24.88Типовой проект 503-9-24.88Типовой проект 503-9-24.88Типовой проект 503-9-24.88Типовой проект 503-9-24.88Типовой проект 503-9-24.88Типовой проект 503-9-24.88Типовой проект 503-9-24.88Типовой проект 503-9-24.88Типовой проект 503-9-24.88Типовой проект 503-9-24.88Типовой проект 503-9-24.88Типовой проект 503-9-24.88Типовой проект 503-9-24.88Типовой проект 503-9-24.88Типовой проект 503-9-24.88Типовой проект 503-9-24.88Типовой проект 503-9-24.88Типовой проект 503-9-24.88Типовой проект 503-9-24.88Типовой проект 503-9-24.88Типовой проект 503-9-24.88Типовой проект 503-9-24.88Типовой проект 503-9-24.88

© 2013 Ёшкин Кот :-) Карта сайта