| ||||||||||||||||||||||||||
Скачать Серия Б1.020.1-7 Выпуск 6-1. Узлы сопряжений элементов каркасаДата актуализации: 10.08.2017
|
| Обозначение: | Серия Б1.020.1-7 |
| Обозначение англ: | Series Б1.020.1-7 |
| Статус: | не определен законодательством |
| Название рус.: | Выпуск 6-1. Узлы сопряжений элементов каркаса |
| Дата добавления в базу: | 01.09.2013 |
| Дата актуализации: | 05.05.2017 |
| Дата введения: | 28.04.1999 |
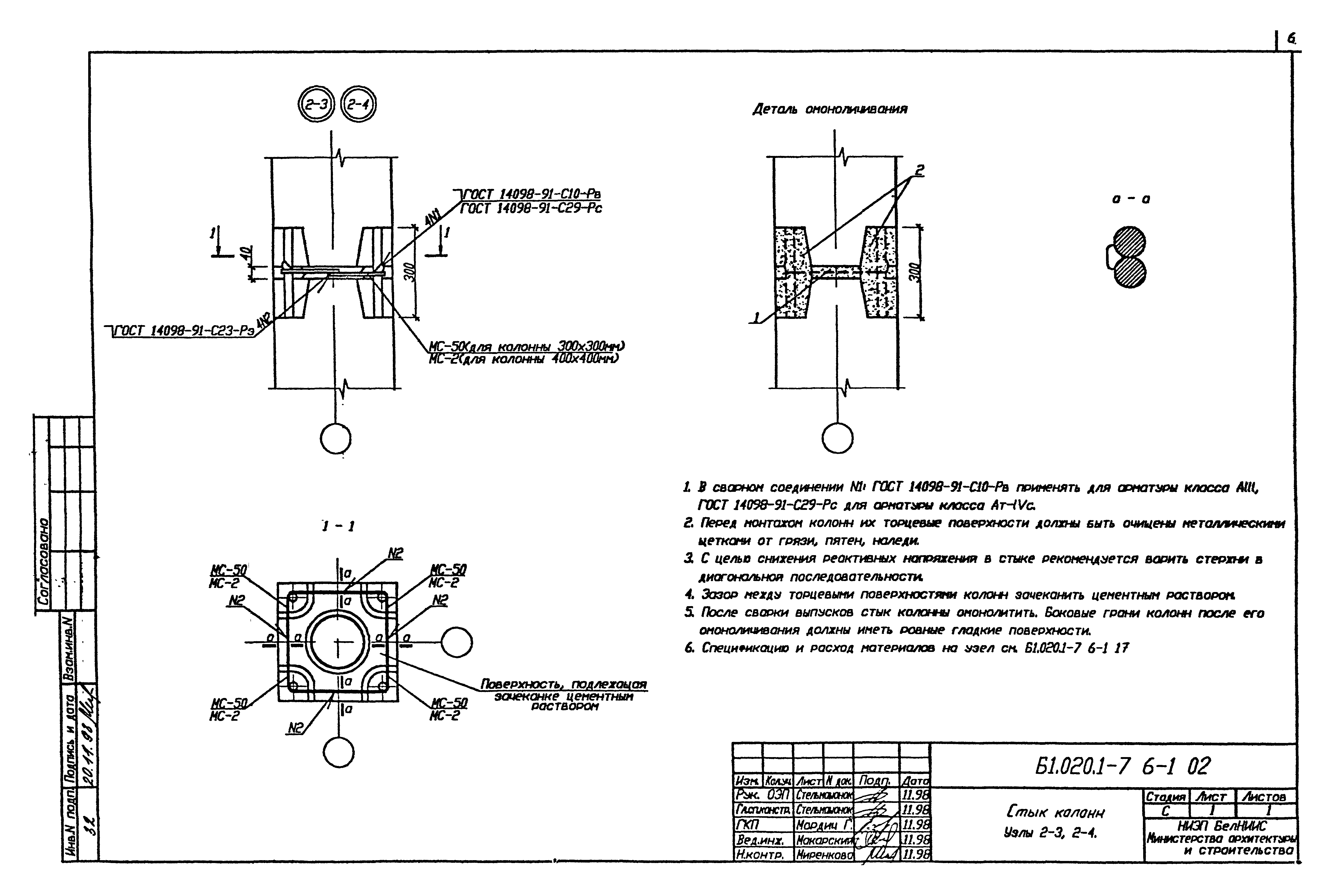
| Оглавление: | Б1.020.1-7 6-1 ОД Общие данные Б1.020.1-7 6-1 01 Заделка колонн. Узлы 1 - 3, 1 - 4 Б1.020.1-7 6-1 02 Стык колонн. Узлы 2 - 3, 2 - 4 Б1.020.1-7 6-1 03 Диафрагмы. Узлы 5 - 3, 5 - 4 Б1.020.1-7 6-1 04 Диафрагмы. Узлы 6, 28 - 3, 28 - 4, 29 Б1.020.1-7 6-1 05 Лестницы. Узел 39 - 3 Б1.020.1-7 6-1 06 Лестницы. Узел 39 - 4 Б1.020.1-7 6-1 07 Лестницы. Узлы 48, 49, 50, 51, 52, 53 Б1.020.1-7 6-1 08 Перекрытие. Узлы 90 - 3, 90 - 4, 91 Б1.020.1-7 6-1 09 Перекрытие. Узлы 92 - 3, 92 - 4, 93 - 3, 93 - 4 Б1.020.1-7 6-1 10 Сопряжение ригелей с колоннами. Узлы 94 - 3, 94 - 4, 95 - 3, 95 - 4 Б1.020.1-7 6-1 11 Сопряжение диафрагм с перекрытием. Узлы 96 - 3, 96 - 4, 97 Б1.020.1-7 6-1 12 Перекрытие. Узлы 98 - 3, 98 - 4, 99 - 3, 99 - 4, 100 - 3, 100 - 4, 101 Б1.020.1-7 6-1 13 Перекрытие, лестница. Узлы 102, 103, 104 Б1.020.1-7 6-1 14 Перекрытие, лестница. Узлы 105, 106, 107 Б1.020.1-7 6-1 15 Перекрытие, лестница. Узлы 108, 109 Б1.020.1-7 6-1 16 Температурный шов. Узлы 110 - 3, 110 - 4, 111 - 3, 111 - 4 Б1.020.1-7 6-1 17 Перекрытие. Узлы 112 - 3, 112 - 4, 113 Б1.020.1-7 6-1 18 Изделия соединительные ИМ1, МС-50, КР1, КР2 Б1.020.1-7 6-1 19 Спецификация |
| Разработан: | НИЭП ГП БелНИИС |
| Утверждён: | 31.03.1999 Министерство архитектуры и строительства Республики Беларусь (79) |
| Расположен в: |
























