| ||||||||||||||||||||||||||
Скачать Серия Б1.020.1-7 Выпуск 2-2. Колонны сечением 400х400 для высот этажей 2,8; 3,3 и 4,2 м (1-й этаж). Рабочие чертежиДата актуализации: 10.08.2017
|
| Обозначение: | Серия Б1.020.1-7 |
| Обозначение англ: | Series Б1.020.1-7 |
| Статус: | не определен законодательством |
| Название рус.: | Выпуск 2-2. Колонны сечением 400х400 для высот этажей 2,8; 3,3 и 4,2 м (1-й этаж). Рабочие чертежи |
| Дата добавления в базу: | 01.09.2013 |
| Дата актуализации: | 05.05.2017 |
| Дата введения: | 28.04.1999 |
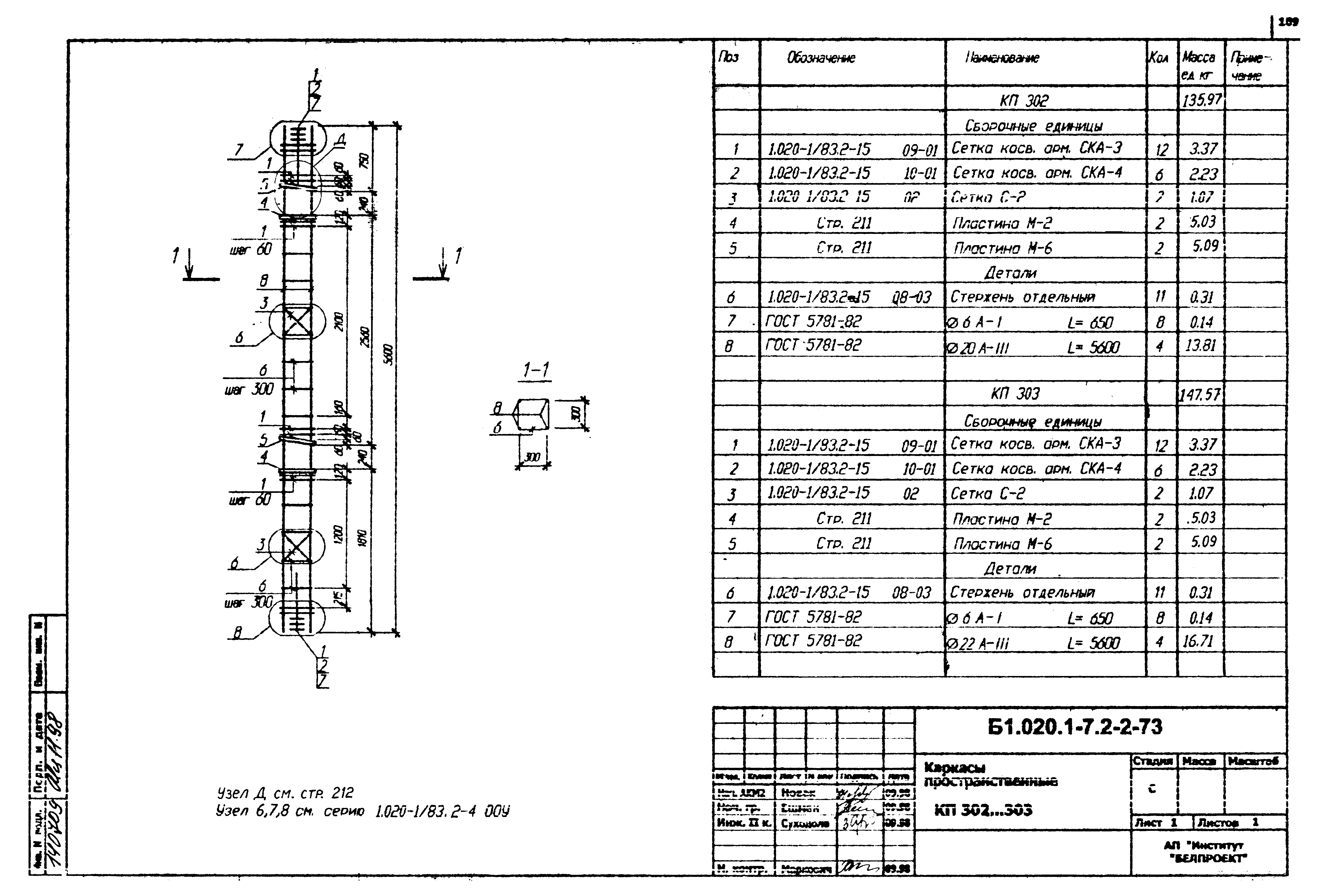
| Оглавление: | Общие данные Монтажные схемы колонн сечением 400х400 мм Номенклатура изделий Примеры расположения дополнительных закладных изделий в колоннах для крепления диафрагм Графики несущей способности сечений колонн Колонны 1КБ 4.28-11…13, 1КБ 4.28-21…23, 1КБ 4.28-31…33 Колонны 1КБ 4.33-11…13, 1КБ 4.33-21…23, 1КБ 4.33-31…33 Колонны 1КБ 4.42-11…13, 1КБ 4.42-21…23, 1КБ 4.42-31…33 Колонны 2КБ2 4.28(20)-11…13, 2КБ2 4.28(20)-21…23, 2КБ2 4.28(20)-31…33 Колонны 2КБ2 4.33(20)-11…13, 2КБ2 4.33(20)-21…23, 2КБ2 4.33(20)-31…33 Колонны 2КБ2 4.42(20)-11…13, 2КБ2 4.42(20)-21…23, 2КБ2 4.42(20)-31…33 Колонны 2КБ1 4.28(20)-11…13, 2КБ1 4.28(20)-21…23, 2КБ1 4.28(20)-31…33 Колонны 2КБ1 4.33(20)-11…13, 2КБ1 4.33(20)-21…23, 2КБ1 4.33(20)-31…33 Колонны 2КБ1 4.42(20)-11…13, 2КБ1 4.42(20)-21…23, 2КБ1 4.42(20)-31…33 Колонны 1КВ 4.28-11…13, 1КВ 4.28-21…23, 1КВ 4.28-31…33 Колонны 1КВ 4.33-11…13, 1КВ 4.33-21…25, 1КВ 4.33-31…33 Колонны 1КС2 4.28-11…13, 1КС2 4.28-21…25, 1КС2 4.28-31…35 Колонны 1КС2 4.33-11…15, 1КС2 4.33-21…25, 1КС2 4.33-31…35 Колонны 1КС1 4.28-11…15, 1КС1 4.28-21…25, 1КС1 4.28-31…35 Колонны 1КС1 4.33-11…15, 1КС1 4.33-21…25, 1КС1 4.33-31…35 Колонны 2КС2 4.28-11…15, 2КС2 4.28-21…25, 2КС2 4.28-31…35 Колонны 2КС2 4.33-11…15, 2КС2 4.33-21…25, 2КС2 4.33-31…35 Колонны 2КС1 4.28-11…15, 2КС1 4.28-21…25, 2КС1 4.28-31…35 Колонны 2КС1 4.33-11…15, 2КС1 4.33-21…25, 2КС1 4.33-31…35 Колонны 1КН2 4.28-11…15, 1КН2 4.28-21…25, 1КН2 4.28-31…35 Колонны 1КН2 4.33-11…15, 1КН2 4.33-21…25, 1КН2 4.33-31…35 Колонны 1КН2 4.42-11…15, 1КН2 4.42-21…25, 1КН2 4.42-31…35 Колонны 1КН1 4.28-11…15, 1КН1 4.28-21…25, 1КН1 4.28-31…35 Колонны 1КН1 4.33-11…15, 1КН1 4.33-21…25, 1КН1 4.33-31…35 Колонны 1КН1 4.42-11…15, 1КН1 4.42-21…25, 1КН1 4.42-31…35 Колонны 2КН2 4.28-11…15, 2КН2 4.28-21…25, 2КН2 4.28-31…35 Колонны 2КН2 4.33-11…15, 2КН2 4.33-21…25, 2КН2 4.33-31…35 Колонны 2КН2 4.42-11…15, 2КН2 4.42-21…25, 2КН2 4.42-31…35 Колонны 2КН1 4.28-11…15, 2КН1 4.28-21…25, 2КН1 4.28-31…35 Колонны 2КН1 4.33-11…15, 2КН1 4.33-21…25, 2КН1 4.33-31…35 Колонны 2КН1 4.42-11…15, 2КН1 4.42-21…25, 2КН1 4.42-31…35 Каркас пространственный КП 101 Каркасы пространственные КП 102…103 Каркас пространственный КП 106 Каркасы пространственные КП 107…108 Каркас пространственный КП 111 Каркасы пространственные КП 112…113 Каркас пространственный КП 116 Каркасы пространственные КП 117…118 Каркас пространственный КП 121 Каркасы пространственные КП 122…123 Каркас пространственный КП 126 Каркасы пространственные КП 127…128 Каркас пространственный КП 131 Каркасы пространственные КП 132…133 Каркас пространственный КП 136 Каркасы пространственные КП 137…138 Каркас пространственный КП 141 Каркасы пространственные КП 142…143 Каркас пространственный КП 146 Каркасы пространственные КП 147…148 Каркас пространственный КП 151 Каркасы пространственные КП 152…153 Каркас пространственный КП 156 Каркасы пространственные КП 157…158 Каркасы пространственные КП 159…160 Каркас пространственный КП 161 Каркасы пространственные КП 162…163 Каркасы пространственные КП 164…165 Каркас пространственный КП 166 Каркасы пространственные КП 167…168 Каркасы пространственные КП 169…170 Каркас пространственный КП 171 Каркасы пространственные КП 172…173 Каркасы пространственные КП 174…175 Каркас пространственный КП 201 Каркасы пространственные КП 202…203 Каркасы пространственные КП 204…205 Каркас пространственный КП 206 Каркасы пространственные КП 207…208 Каркасы пространственные КП 209…210 Каркас пространственный КП 301 Каркасы пространственные КП 302…303 Каркасы пространственные КП 304…305 Каркас пространственный КП 306 Каркасы пространственные КП 307…308 Каркасы пространственные КП 309…310 Каркас пространственный КП 401 Каркасы пространственные КП 402…403 Каркасы пространственные КП 404…405 Каркас пространственный КП 406 Каркасы пространственные КП 407…408 Каркасы пространственные КП 409…410 Каркас пространственный КП 411 Каркасы пространственные КП 412…413 Каркасы пространственные КП 414…415 Каркас пространственный КП 501 Каркасы пространственные КП 502…503 Каркасы пространственные КП 504…505 Каркас пространственный КП 506 Каркасы пространственные КП 507…508 Каркасы пространственные КП 509…510 Каркас пространственный КП 511 Каркасы пространственные КП 512…513 Каркасы пространственные КП 514…515 Каркас пространственный КП 601 Каркасы пространственные КП 602…603 Каркасы пространственные КП 604…605 Каркас пространственный КП 606 Каркасы пространственные КП 607…608 Каркасы пространственные КП 609…610 Каркас пространственный КП 611 Каркасы пространственные КП 612…613 Каркасы пространственные КП 614…615 Каркас пространственный КП 701 Каркасы пространственные КП 702…703 Каркасы пространственные КП 704…705 Каркас пространственный КП 706 Каркасы пространственные КП 707…708 Каркасы пространственные КП 709…710 Каркас пространственный КП 711 Каркасы пространственные КП 712…713 Каркасы пространственные КП 714…715 Пластины М-1, М-4, М-5, М-8, М-9 Пластины М-2, М-3, М-6, М-7 Узлы А, Б, В Ведомость расхода стали |
| Разработан: | НИЭП ГП БелНИИС |
| Утверждён: | 31.03.1999 Министерство архитектуры и строительства Республики Беларусь (79) |
| Расположен в: |








































































































































































































































