Информационная система
«Ёшкин Кот»

Скачать базу одним архивом
Скачать обновления
История создания базы
Карта сайта

Скачать Типовой проект 903-4-10 Альбом II. Архитектурно-строительная часть - вариант Б

Дата актуализации: 10.08.2017

Типовой проект 903-4-10

Альбом II. Архитектурно-строительная часть - вариант Б

Обозначение: Типовой проект 903-4-10
Обозначение англ: 903-4-10
Статус:не действует
Название рус.:Альбом II. Архитектурно-строительная часть - вариант Б
Дата добавления в базу:01.09.2013
Дата актуализации:05.05.2017
Оглавление:Заглавный лист
Содержание альбома и перечень примененных стандартов и типовых чертежей
Пояснительная записка
Вариант Б
   Подземная сборная станция. Общий вид. Разрезы по 1-1, по 2-2
   Подземная сборная станция. Общий вид. Планы по 3-3, по 4-4, по 5-5
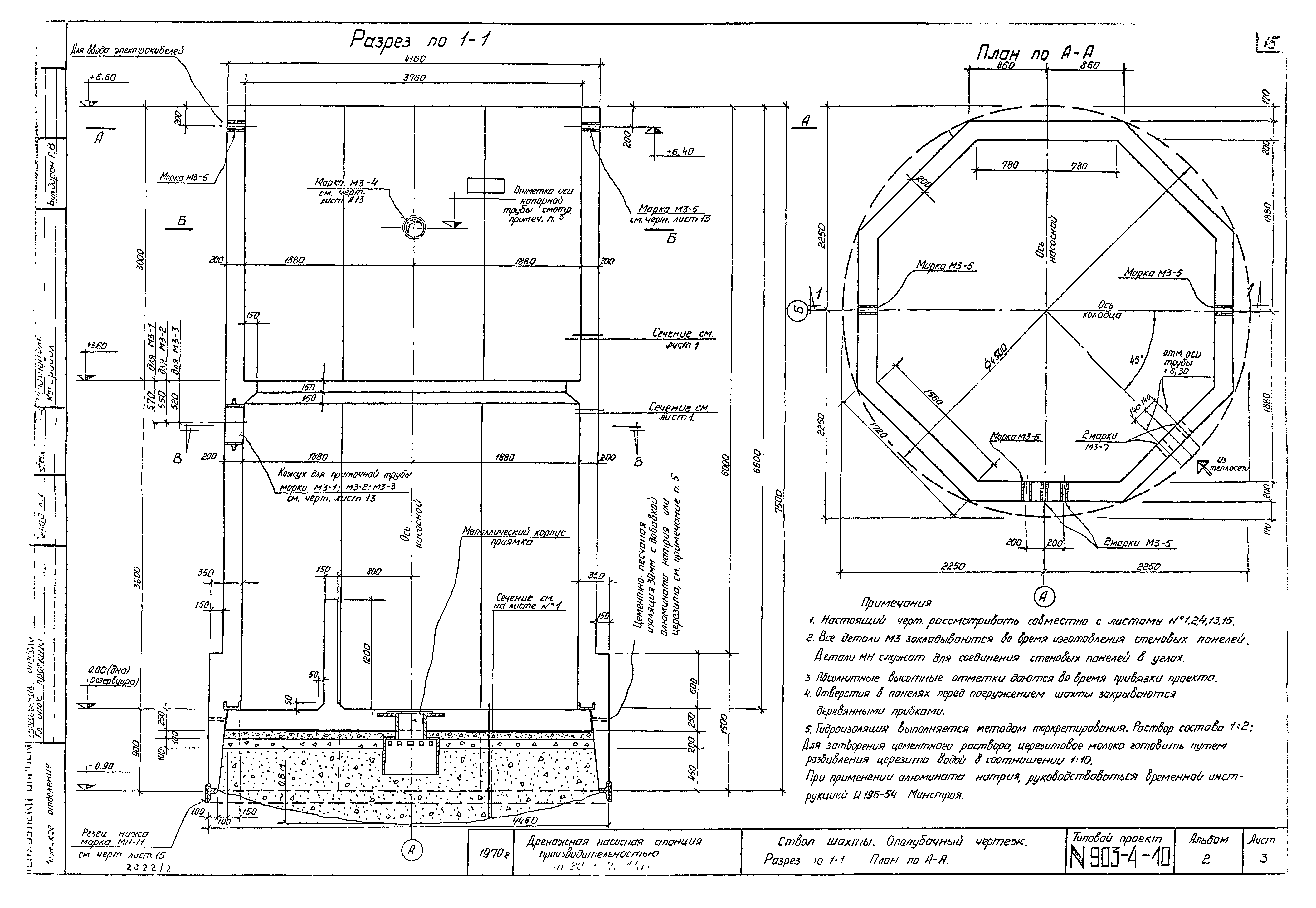
   Ствол шахты. Опалубочный чертеж. Разрез по 1-1. План по А-А
   Опалубочный чертеж ствола шахты. План по Б-Б, по В-В
   Маркировка стеновых панелей ствола. План. Соединение стеновых панелей в углах
   Соединение стеновых панелей в углах
   Соединение стеновых панелей в углах. Накладные части МН-1, МН-2, МН-3, МН-4, МН-5, МН-6
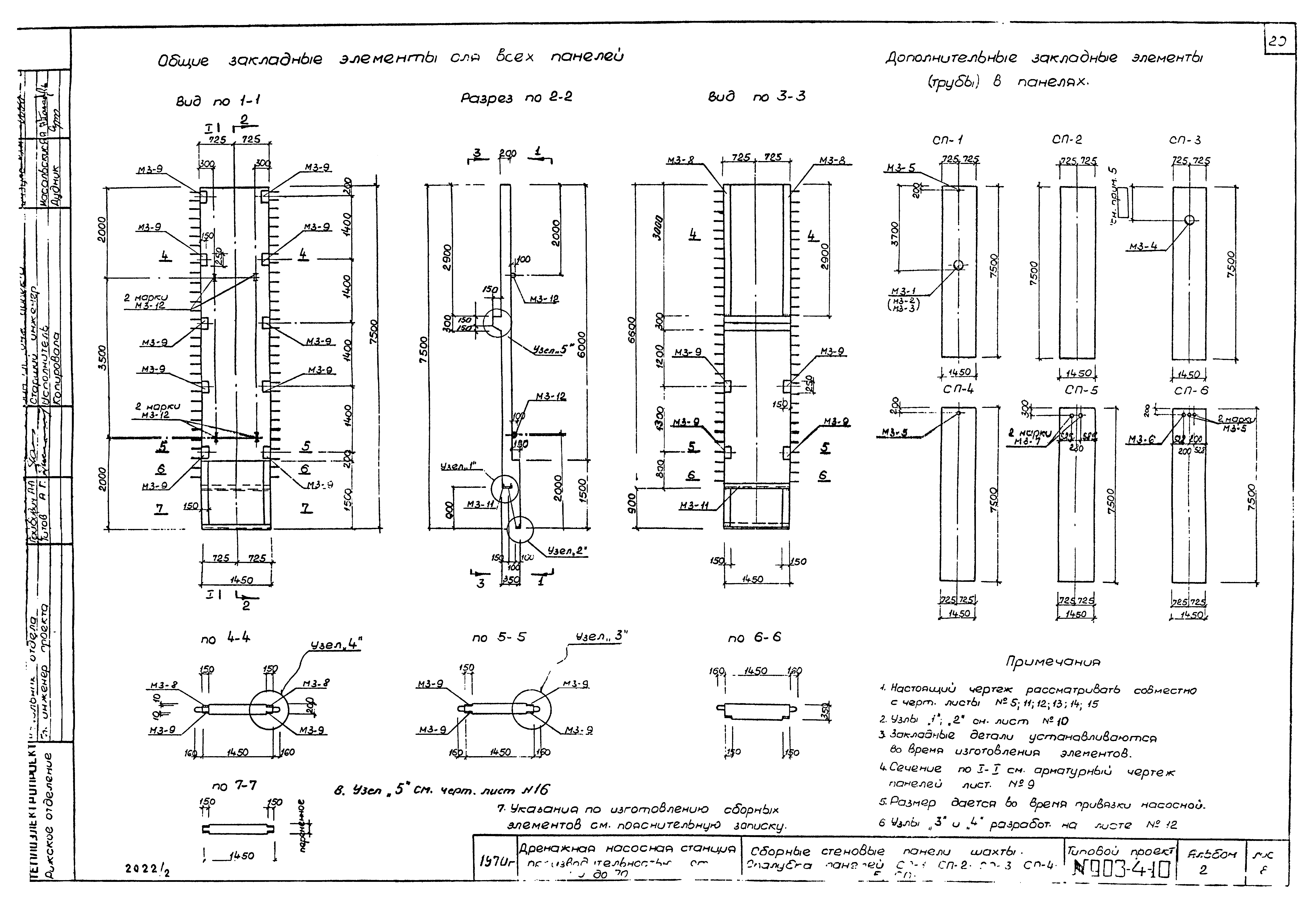
   Сборные стеновые панели шахты. Опалубка панелей СП-1, СП-2, СП-3, СП-4, СП-5, СП-6
   Сборные стеновые панели шахты СП-1, СП-2, СП-3, СП-4, СП-5, СП-6. Армирование
   Сборные стеновые панели шахты. Арматурные каркасы К-1, К-2, К-3, К-4. Узлы "1" и "2"
   Сборные стеновые панели шахты СП-1, СП-2, СП-3, СП-4, СП-5, СП-6. Спецификация арматуры. Выборка стали. Расход железобетона
   Сборные стеновые панели шахты. Закладные детали М3-8, М3-9, М3-10, М3-11, М3-12. Спецификация закладных деталей
   Сборные стеновые панели шахты. Сальники для ввода труб и кабелей чрез стеновые панели. Марки М3-1, М3-2, М3-3, М3-4, М3-5, М3-6, М3-7
   Сборные стеновые панели шахты СП-1, СП-2, СП-3, СП-4, СП-5, СП-6. Спецификация закладных частей на одну панель
   Резец ножа, марка МН-11. Спецификация и разрезы
   Армирование консоли стеновых блоков СП-1 - СП-6. Спецификация арматуры
   Верхнее перекрытие шахты ВП-1. Арматурно-опалубочный чертеж
   Верхнее перекрытие шахты ВП-1. Спецификация арматуры
   Верхнее перекрытие шахты ВП-1. Объемы работ. Спецификация закладных частей М3-17, М3-13, М3-14
   Промежуточное перекрытие шахты ПП-1. Арматурно-опалубочный чертеж
   Промежуточное перекрытие шахты ПП-1. Арматурно-опалубочный чертеж. Раскладка каркасов К-1, К-2. Спецификация арматуры
   Промежуточное перекрытие шахты ПП-1. Спецификация арматуры. Расход материалов
   Промежуточное перекрытие шахты ПП-1. Фундамент под насосы 6км-12к
   Промежуточное перекрытие шахты ПП-1. Фундамент под насосы 8км-18. Закладные части марок М3-16, М3-19, МН-8. Спецификация закладных частей
   Промежуточное перекрытие шахты ПП-1. Закладные части марок М3-17, М3-18, М3-20, М3-21, МН-7
   Плита днища шахты ПД-1. Арматурно-опалубочный чертеж
   Плита днища шахты ПД-1. Спецификация арматуры и закладных деталей, расход материалов
   Плита днища шахты ПД-1. Металлический корпус приямка
   Металлические лестницы Л-1, Л-2
   Металлические лестницы Л-1, Л-2, Л-3. Спецификация металла
   Сводная ведомость на металл и сборный железобетон
   Объемы работ
Проект производства работ
   Металлический кондуктор МК для сборки блоков опускного колодца
   Детали, узлы форшахты и инъекционных труб сборного опускного колодца
   Монтаж и замоноличивание швов сборного опускного колодца
   Опорное кольцо
   Календарный план производства работ
Разработан: Теплоэлектропроект
Утверждён:29.12.1971 Минэнерго СССР (USSR Minenergo 409)
Расположен в:Техническая документация Строительство Справочные документы Типовые строительные конструкции, изделия и узлы Общероссийский строительный каталог Промышленные предприятия, здания и сооружения Здания и сооружения санитарно-технические Канализация Сооружения для очистки производственных сточных вод Дренажные насосные станции
Типовой проект 903-4-10Типовой проект 903-4-10Типовой проект 903-4-10Типовой проект 903-4-10Типовой проект 903-4-10Типовой проект 903-4-10Типовой проект 903-4-10Типовой проект 903-4-10Типовой проект 903-4-10Типовой проект 903-4-10Типовой проект 903-4-10Типовой проект 903-4-10Типовой проект 903-4-10Типовой проект 903-4-10Типовой проект 903-4-10Типовой проект 903-4-10Типовой проект 903-4-10Типовой проект 903-4-10Типовой проект 903-4-10Типовой проект 903-4-10Типовой проект 903-4-10Типовой проект 903-4-10Типовой проект 903-4-10Типовой проект 903-4-10Типовой проект 903-4-10Типовой проект 903-4-10Типовой проект 903-4-10Типовой проект 903-4-10Типовой проект 903-4-10Типовой проект 903-4-10Типовой проект 903-4-10Типовой проект 903-4-10Типовой проект 903-4-10Типовой проект 903-4-10Типовой проект 903-4-10Типовой проект 903-4-10Типовой проект 903-4-10Типовой проект 903-4-10Типовой проект 903-4-10Типовой проект 903-4-10Типовой проект 903-4-10Типовой проект 903-4-10Типовой проект 903-4-10Типовой проект 903-4-10Типовой проект 903-4-10Типовой проект 903-4-10Типовой проект 903-4-10Типовой проект 903-4-10Типовой проект 903-4-10

© 2013 Ёшкин Кот :-) Карта сайта