Информационная система
«Ёшкин Кот»

Скачать базу одним архивом
Скачать обновления
История создания базы
Карта сайта

Скачать Серия СТ-02-19/61 Панельные стены для неотапливаемых производственных зданий. Железобетонные предварительно напряженные панели длиной 12 м. Рабочие чертежи

Дата актуализации: 10.08.2017

Серия СТ-02-19/61

Панельные стены для неотапливаемых производственных зданий. Железобетонные предварительно напряженные панели длиной 12 м. Рабочие чертежи

Обозначение: Серия СТ-02-19/61
Обозначение англ: Series СТ-02-19/61
Статус:заменен
Название рус.:Панельные стены для неотапливаемых производственных зданий. Железобетонные предварительно напряженные панели длиной 12 м. Рабочие чертежи
Дата добавления в базу:01.09.2013
Дата актуализации:05.05.2017
Дата введения:01.04.1969
Область применения:Настоящий выпуск содержит рабочие чертежи железобетонных предварительно напряженных стеновых панелей и детали стен производственных зданий с железобетонным или стальным каркасом при шаге колонн по наружным рядом 12 м
Оглавление:Пояснительная записка
Номенклатура панелей
Опалубочный чертеж панелей ПСКЛ12-1, ПСКЛ12-1А, ПСКЛ12-2, ПСПВ12-1, ПСПВ12-1А, ПСПВ12-2. Технико-экономические показатели
Опалубочный чертеж панелей ПСКЛ12-3, ПСКЛ12-3А, ПСКЛ12-4, ПСПВ12-3, ПСПВ12-3А, ПСПВ12-4. Технико-экономические показатели
Опалубочный чертеж панелей ПСКЛ12-5, ПСКЛ12-5А, ПСКЛ12-6, ПСПВ12-5, ПСПВ12-5А, ПСПВ12-6. Технико-экономические показатели
Армирование панелей. Разрезы и детали расположения предварительно напряженной арматуры
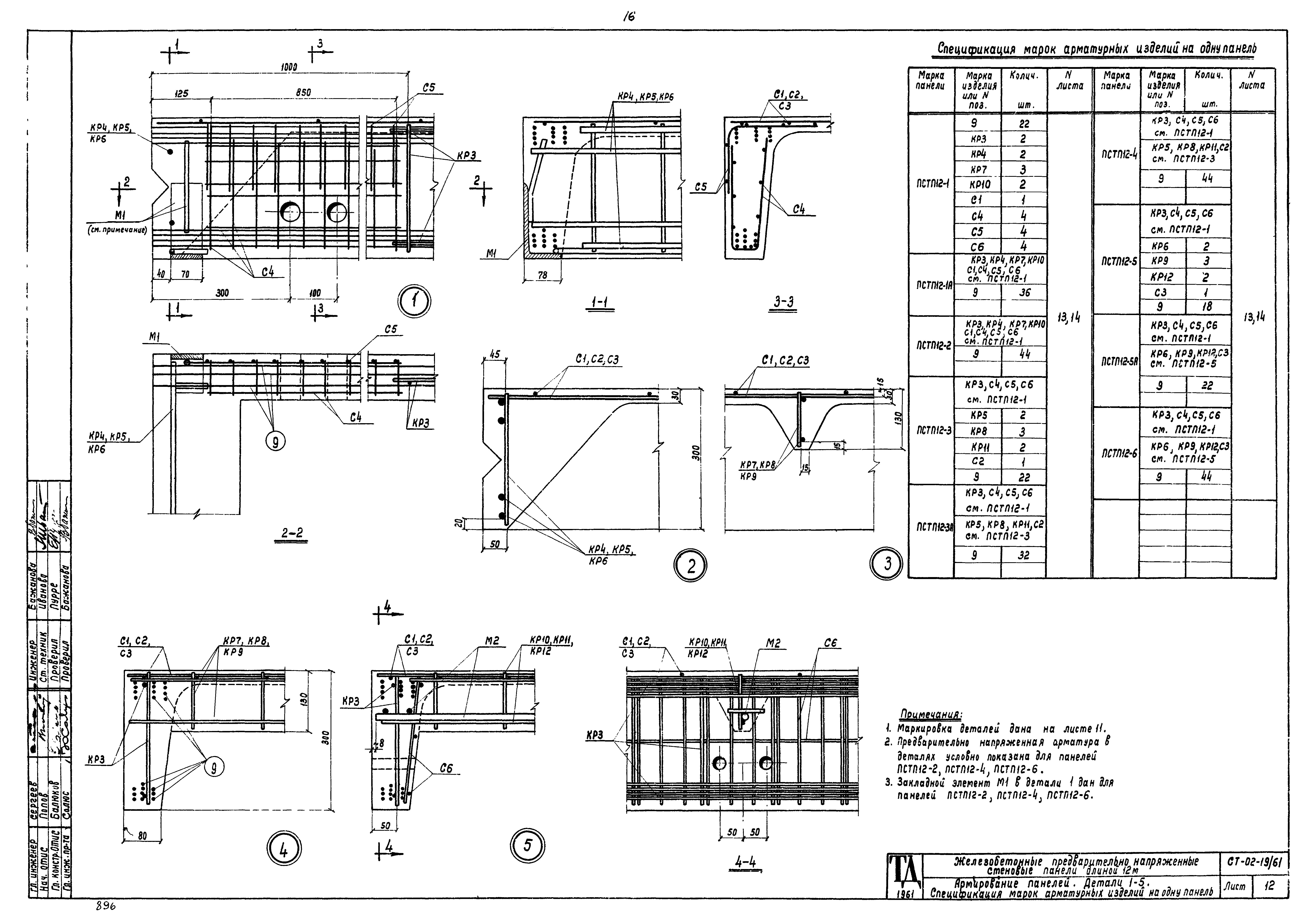
Армирование панелей. Детали 1 - 5. Спецификация марок арматурных изделий на одну панель
Опалубочный чертеж панелей ПСТП12-1, ПСТП12-1А, ПСТП12-2. Технико-экономические показатели
Опалубочный чертеж панелей ПСТП12-3, ПСТП12-3А, ПСТП12-4. Технико-экономические показатели
Опалубочный чертеж панелей ПСТП12-5, ПСТП12-5А, ПСТП12-6. Технико-экономические показатели
Армирование панелей. Разрезы и детали расположения предварительно напряженной арматуры
Армирование панелей. Детали 1 - 5. Спецификация марок арматурных изделий на одну панель
Сварные каркасы КР1- КР12. Сетки С1 - С6 и закладные элементы М1 и М2
Спецификация и выборка стали
Примеры решений продольных стен. Маркировочные схемы деталей продольных стен
Примеры решений торцовых стен
Детали стен
Детали карнизов
Детали парапетов продольных стен
Детали торцовых стен
Устройство швов. Детали стен при стальном каркасе
Элементы крепления панелей Т1 - Т7
Элементы крепления парапетов Т8 - Т12, М2
Схема расположения и конструкции опорных столиков Т13 - Т16
Разработан: Гипротис
НИИЖБ АСиА СССР
Утверждён:29.05.1962 Госстрой СССР (Государственный комитет Совета Министров СССР по делам строительства) (USSR Gosstroy 109)
Издан: ЦИТП Госстроя СССР (CITP, Gosstroy (USSR) 1962 г. )
Расположен в:Техническая документация Строительство Справочные документы Типовые строительные конструкции, изделия и узлы Общероссийский строительный каталог Строительные конструкции, изделия и узлы зданий и сооружений для всех видов строительства Конструкции, изделия и узлы зданий Ограждающие конструкции Стены наружные Панели (бетонные и железобетонные)
Чем заменён:
Нормативные ссылки:
Серия СТ-02-19/61Серия СТ-02-19/61Серия СТ-02-19/61Серия СТ-02-19/61Серия СТ-02-19/61Серия СТ-02-19/61Серия СТ-02-19/61Серия СТ-02-19/61Серия СТ-02-19/61Серия СТ-02-19/61Серия СТ-02-19/61Серия СТ-02-19/61Серия СТ-02-19/61Серия СТ-02-19/61Серия СТ-02-19/61Серия СТ-02-19/61Серия СТ-02-19/61Серия СТ-02-19/61Серия СТ-02-19/61Серия СТ-02-19/61Серия СТ-02-19/61Серия СТ-02-19/61Серия СТ-02-19/61Серия СТ-02-19/61Серия СТ-02-19/61Серия СТ-02-19/61Серия СТ-02-19/61Серия СТ-02-19/61Серия СТ-02-19/61Серия СТ-02-19/61Серия СТ-02-19/61

© 2013 Ёшкин Кот :-) Карта сайта