| ||||||||||||||||||||||||||
Скачать Серия ИИС-60 Конструкции многоэтажных промышленных зданий с балочными перекрытиями и сеткой колонн 6х6 м под полезные нормативные нагрузки 500, 1000, 1500 и 2000 кг/кв. м для районов с сейсмичностью 7 - 8 баллов. Общие положения и указания по применению рабочих чертежейДата актуализации: 10.08.2017
|
| Обозначение: | Серия ИИС-60 |
| Обозначение англ: | Series ИИС-60 |
| Статус: | действует |
| Название рус.: | Конструкции многоэтажных промышленных зданий с балочными перекрытиями и сеткой колонн 6х6 м под полезные нормативные нагрузки 500, 1000, 1500 и 2000 кг/кв. м для районов с сейсмичностью 7 - 8 баллов. Общие положения и указания по применению рабочих чертежей |
| Дата добавления в базу: | 01.09.2013 |
| Дата актуализации: | 05.05.2017 |
| Дата введения: | 14.12.1962 |
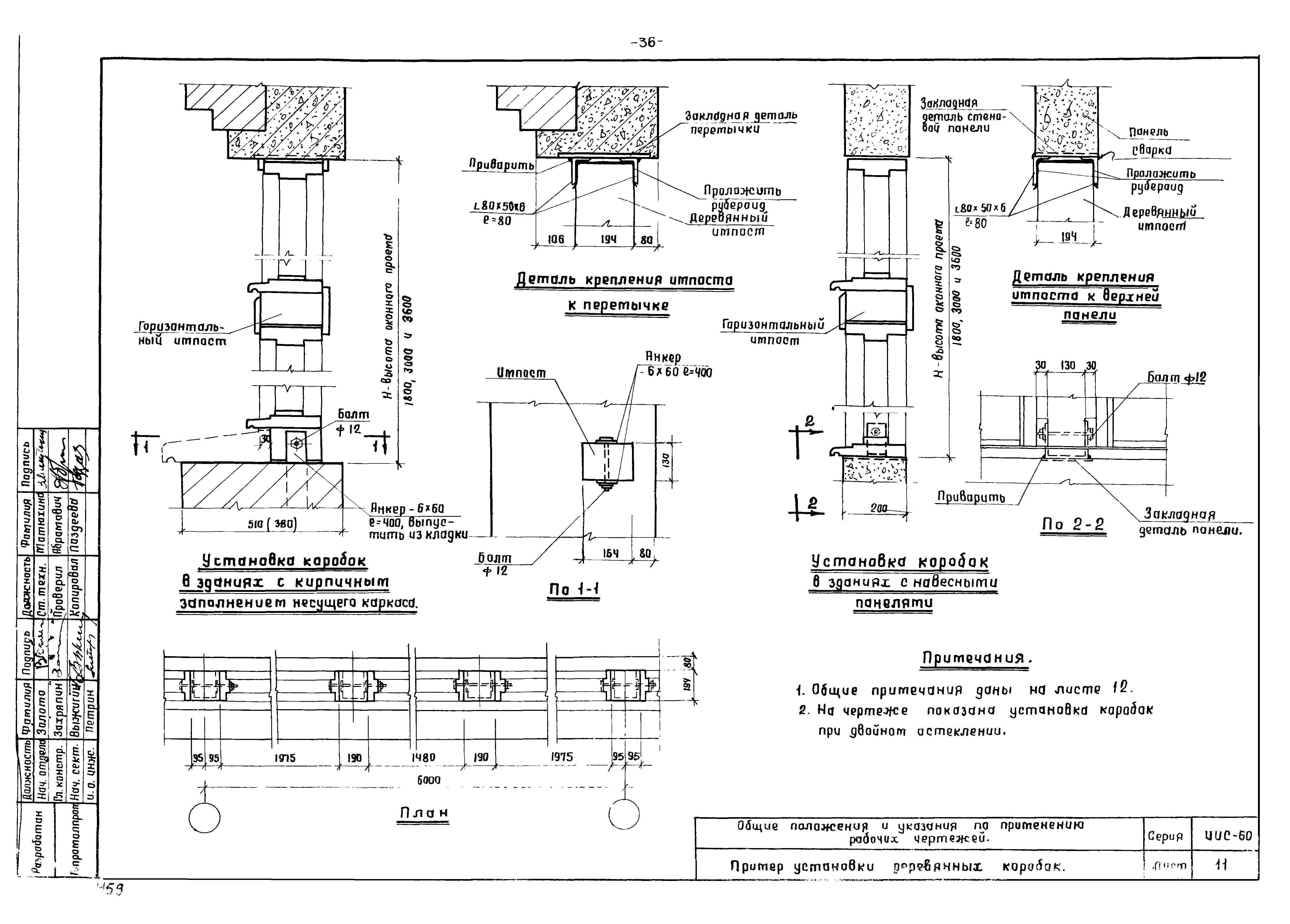
| Оглавление: | Пояснительная записка 1. Предисловие 2. Состав и содержание работы 3. Конструктивные решения 4. Качество производства работ 5. Расчет конструкций 6. Общие указания по монтажу железобетонных конструкций 7. Указания по применению рабочих чертежей 8. Маркировка 9. Технико-экономические показатели Детали сопряжения плит, ригелей и колонн Рисунки 1 - 5 Примеры решения стропил для зданий с чердаком Вертикальные нагрузки на перекрытия и горизонтальную проекцию крыши Схемы поперечных и продольных рам Нагрузки на элементы каркаса Усилия от нормативных нагрузок на фундаменты под колонны Технико-экономические показатели Пример решения зданий. Фасады Пример решения зданий. План здания Пример решения зданий. Разрезы 1-1 и 2-2 для зданий с кирпичным заполнением несущего каркаса Пример решения зданий. Детали зданий с кирпичным заполнением несущего каркаса Пример решения зданий. Разрезы 1-1 и 2-2 для зданий с навесными панелями Пример решения зданий. Детали зданий с навесными панелями Примеры расположения лестничных клеток с несущими стенами Планы и разрезы лестничных клеток с несущими стенами Примеры расположения лестничных клеток с несущим железобетонным каркасом Планы и разрезы лестничных клеток с несущим железобетонным каркасом Пример установки деревянных коробок Пример установки металлических переплетов |
| Разработан: | Гипромолпром Минмясомолпрома СССР ЦНИИСК АСиА СССР НИИЖБ АСиА СССР |
| Утверждён: | 14.12.1962 Госстрой СССР (Государственный комитет Совета Министров СССР по делам строительства) (USSR Gosstroy 466) |
| Расположен в: |





































