Скачать Серия ИИ-20 Дополнение 1. Проверка типовых конструкций производственных зданий и сооружений, предусмотренных в сериях ИИ-20, ИИЭ-20, ИИЭ-30 на установку вентиляторов с № 6 по 26 (виброизолированных и невиброизолированных). Материалы для проектированияДата актуализации: 10.08.2017 Серия ИИ-20
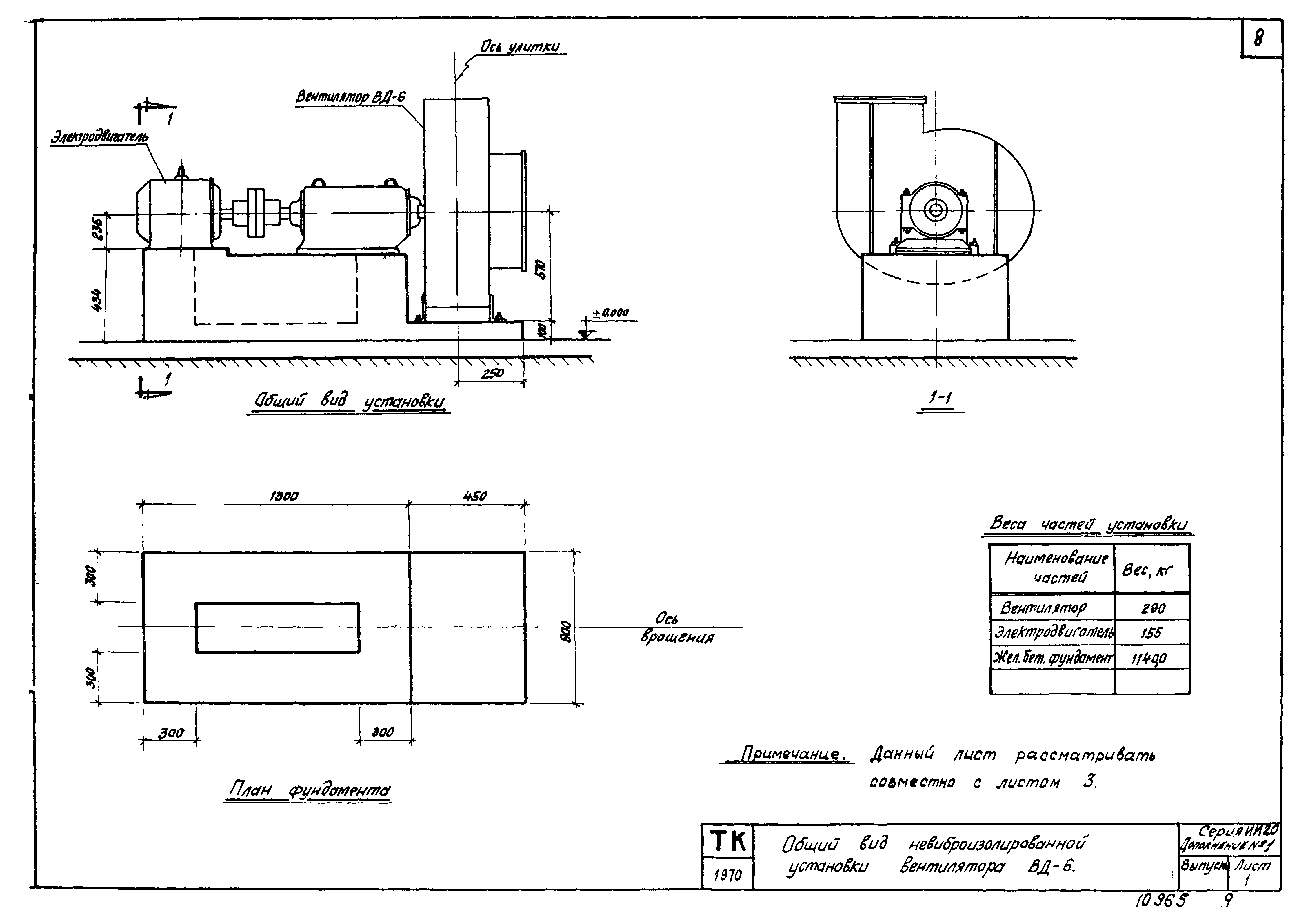
Дополнение 1. Проверка типовых конструкций производственных зданий и сооружений, предусмотренных в сериях ИИ-20, ИИЭ-20, ИИЭ-30 на установку вентиляторов с № 6 по 26 (виброизолированных и невиброизолированных). Материалы для проектированияОбозначение: | Серия ИИ-20 | Обозначение англ: | Series ИИ-20 | Статус: | не действует | Название рус.: | Дополнение 1. Проверка типовых конструкций производственных зданий и сооружений, предусмотренных в сериях ИИ-20, ИИЭ-20, ИИЭ-30 на установку вентиляторов с № 6 по 26 (виброизолированных и невиброизолированных). Материалы для проектирования | Дата добавления в базу: | 01.09.2013 | Дата актуализации: | 05.05.2017 | Дата введения: | 01.10.1989 | Оглавление: | Пояснительная записка Общий вид невиброизолированной установки вентилятора ВД-6 Общий вид невиброизолированной установки вентиляторов ВД-8, ВД-10, ВД-12 Схема и таблица величин статических и динамических нагрузок на перекрытие от невиброизолированных вентиляторов ВД-6, ВД-8, ВД-10, ВД-12 Общий вид невиброизолированной установки вентиляторов ВДН-14-II, ВД-16-II, ВДН-18-II, ВДН-20-II. Таблицы сечений элементов рамы и весов элементов установки Схема и таблица величин статических и динамических нагрузок на перекрытие от невиброизолированных вентиляторов ВДН-14-II, ВД-16-II, ВДН-18-II, ВДН-20-II Общий вид невиброизолированной установки вентилятора ВДН-22-IIу. Таблица весов элементов установки Общий вид невиброизолированной установки вентилятора ВДН-24-IIу. Таблица весов элементов установки Схема и таблица величин статических и динамических нагрузок на перекрытие от невиброизолированных вентиляторов ВДН-22-IIу, ВД-24-IIу Общий вид невиброизолированной установки вентилятора ВДН-26-IIу. Таблица весов элементов установки Схема и таблица величин статических и динамических нагрузок на перекрытие от невиброизолированного вентилятора ВДН-26-IIу Схема и таблица величин статических и динамических нагрузок на перекрытие от невиброизолированных вентиляторов ВД-6 Схема и таблица величин статических и динамических нагрузок на перекрытие от невиброизолированных вентиляторов ВД-8, ВД-10, ВД-12 Схема и таблица величин статических и динамических нагрузок на перекрытие от невиброизолированных вентиляторов ВДН-14-II, ВДН-14-IIу Схема и таблица величин статических и динамических нагрузок на перекрытие от невиброизолированных вентиляторов ВДН-16-II, ВДН-16-IIу Схема и таблица величин статических и динамических нагрузок на перекрытие от невиброизолированных вентиляторов ВДН-18-II, ВДН-18-IIу Схема и таблица величин статических и динамических нагрузок на перекрытие от невиброизолированных вентиляторов ВДН-20-II, ВДН-20-IIу Схема и таблица величин статических и динамических нагрузок на перекрытие от невиброизолированного вентилятора ВДН-22-IIу Схема и таблица величин статических и динамических нагрузок на перекрытие от невиброизолированных вентиляторов ВДН-24-IIу Схема и таблица величин статических и динамических нагрузок на перекрытие от невиброизолированных вентиляторов ВДН-26-IIу Величины статических и динамических нагрузок от вентиляторов на ригели пролетом 4,5 м Величины статических и динамических нагрузок от вентиляторов на ригели пролетом 6 м Величины статических и динамических нагрузок от вентиляторов на ригели пролетом 9 м Расстановка вентиляторов ВД-6, ВД-8, ВД-10 и ВД-12 на перекрытиях при сетке колонн 4,5х6 м Расстановка вентиляторов ВД-6, ВД-8, ВД-10 и ВД-12 на перекрытиях при сетке колонн 6х6 м и 9х6 м Расстановка вентиляторов ВДН-14-II, ВД-14-IIу, ВДН-16-II, ВДН-16-IIу на перекрытиях при сетке колонн 4,5х6 м, 6х6 м и 9х6 м Расстановка вентиляторов ВДН-18-II, ВД-18-IIу, ВДН-20-II, ВДН-20-IIу на перекрытиях при сетке колонн 4,5х6 м, 6х6 м и 9х6 м Расстановка вентиляторов ВДН-22-IIу на перекрытиях при сетке колонн 6х6 м и 9х6 м Расстановка вентиляторов ВДН-24-IIу на перекрытиях при сетке колонн 6х6 м и 9х6 м Расстановка вентиляторов ВДН-26-IIу на перекрытиях при сетке колонн 6х6 м и 9х6 м Амплитуды колебаний плит от действия динамических нагрузок, вызванных вентиляторами Амплитуды колебаний ригелей пролетом 6 м Амплитуды колебаний ригелей пролетами 4,5 и 9 м | Разработан: | ЦНИИСК им. В.А. Кучеренко ЦНИИпромзданий
| Утверждён: | 12.02.1971 Госстрой СССР (Государственный комитет Совета Министров СССР по делам строительства) (USSR Gosstroy 2/3-77)
| Расположен в: |
|
                                       
|