Информационная система
«Ёшкин Кот»

Скачать базу одним архивом
Скачать обновления
История создания базы
Карта сайта

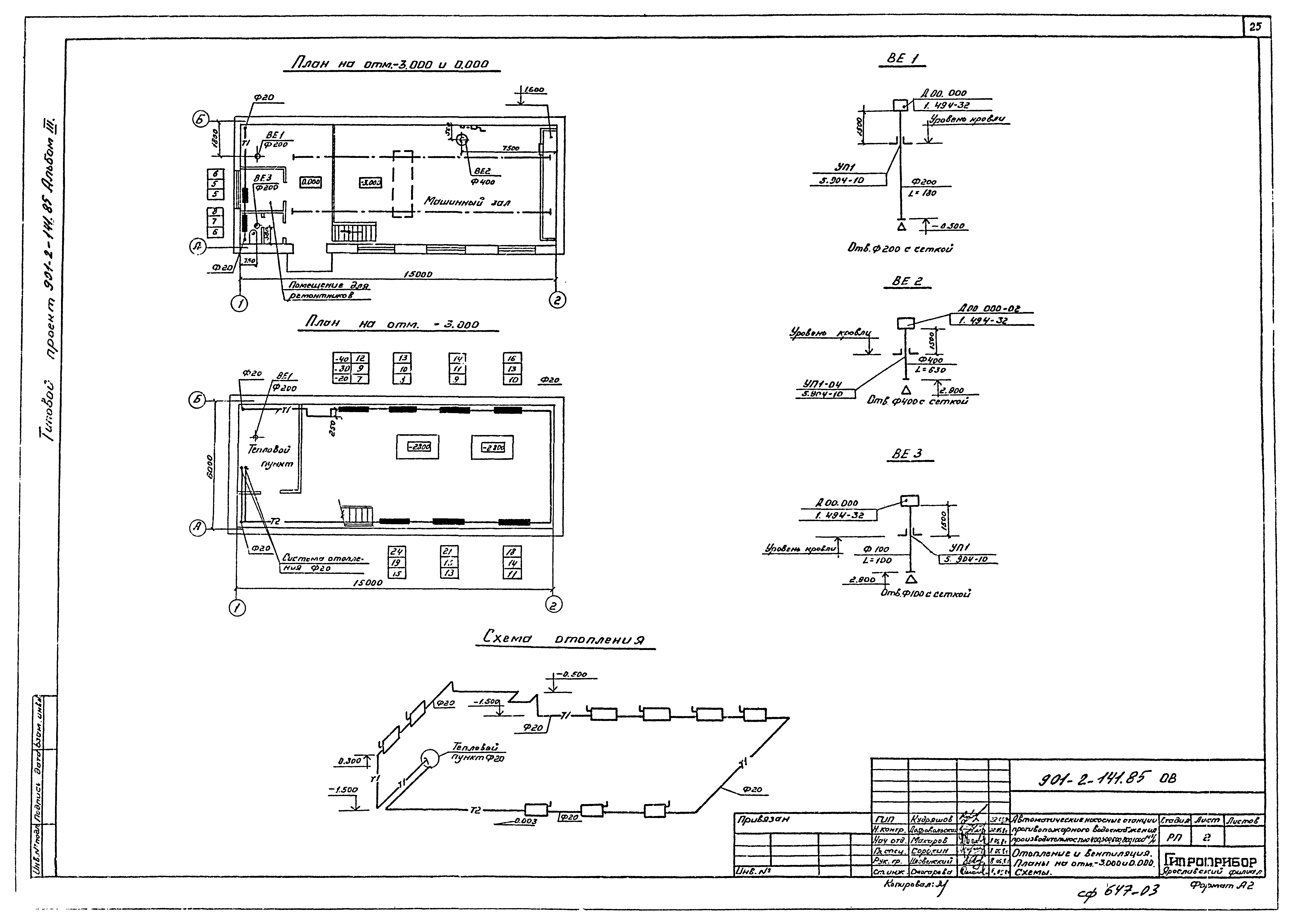
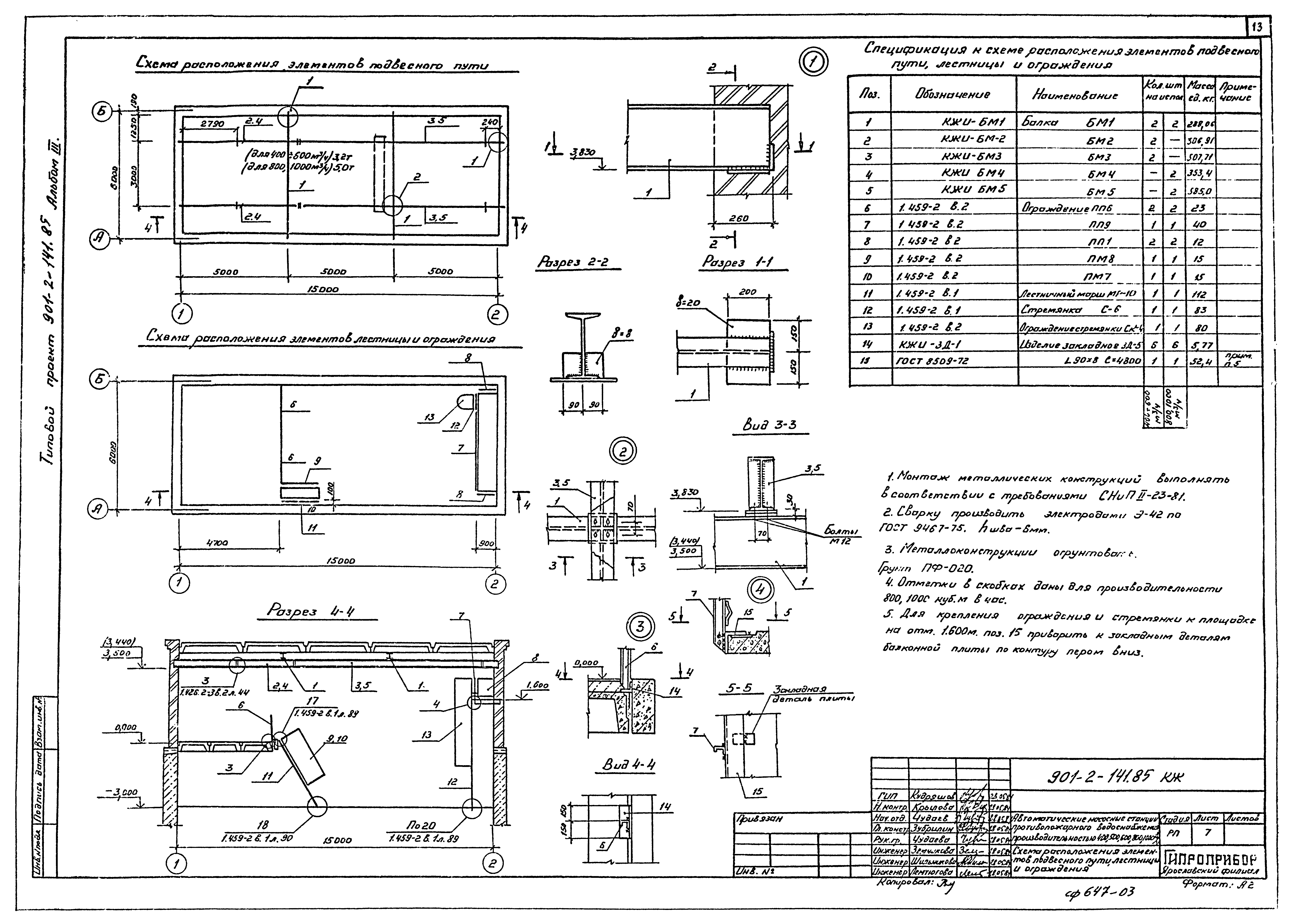
Скачать Типовой проект 901-2-141.85 Альбом III. Архитектурно-строительные решения. Конструкции железобетонные. Внутренний водопровод и канализация. Отопление и вентиляция

Дата актуализации: 10.08.2017

Типовой проект 901-2-141.85

Альбом III. Архитектурно-строительные решения. Конструкции железобетонные. Внутренний водопровод и канализация. Отопление и вентиляция

Обозначение: Типовой проект 901-2-141.85
Обозначение англ: 901-2-141.85
Статус:действует
Название рус.:Альбом III. Архитектурно-строительные решения. Конструкции железобетонные. Внутренний водопровод и канализация. Отопление и вентиляция
Дата добавления в базу:01.02.2017
Дата актуализации:05.05.2017
Разработан: СПКБ Спецавтоматика Минприбора
Утверждён:29.06.1984 Минприбор СССР (USSR Minpribor 32-84)
Издан: ЦИТП Госстроя СССР (CITP, Gosstroy (USSR) 1990 г. )
Расположен в:Техническая документация Строительство Справочные документы Типовые строительные конструкции, изделия и узлы Общероссийский строительный каталог Промышленные предприятия, здания и сооружения Здания и сооружения санитарно-технические Водоснабжение Насосные станции Насосные станции водопроводные с пожарными насосами
Заменяет собой:
  • Типовой проект 901-2-105
Типовой проект 901-2-141.85Типовой проект 901-2-141.85Типовой проект 901-2-141.85Типовой проект 901-2-141.85Типовой проект 901-2-141.85Типовой проект 901-2-141.85Типовой проект 901-2-141.85Типовой проект 901-2-141.85Типовой проект 901-2-141.85Типовой проект 901-2-141.85Типовой проект 901-2-141.85Типовой проект 901-2-141.85Типовой проект 901-2-141.85Типовой проект 901-2-141.85Типовой проект 901-2-141.85Типовой проект 901-2-141.85Типовой проект 901-2-141.85Типовой проект 901-2-141.85Типовой проект 901-2-141.85Типовой проект 901-2-141.85Типовой проект 901-2-141.85Типовой проект 901-2-141.85Типовой проект 901-2-141.85Типовой проект 901-2-141.85Типовой проект 901-2-141.85Типовой проект 901-2-141.85Типовой проект 901-2-141.85Типовой проект 901-2-141.85

© 2013 Ёшкин Кот :-) Карта сайта