Информационная система
«Ёшкин Кот»

Скачать базу одним архивом
Скачать обновления
История создания базы
Карта сайта

Скачать Типовой проект 709-9-77.87 Альбом II. Архитектурно-строительные решения. Конструкции железобетонные. Конструкции металлические

Дата актуализации: 10.08.2017

Типовой проект 709-9-77.87

Альбом II. Архитектурно-строительные решения. Конструкции железобетонные. Конструкции металлические

Обозначение: Типовой проект 709-9-77.87
Обозначение англ: 709-9-77.87
Статус:действует
Название рус.:Альбом II. Архитектурно-строительные решения. Конструкции железобетонные. Конструкции металлические
Дата добавления в базу:01.09.2013
Дата актуализации:05.05.2017
Дата введения:28.10.1987
Оглавление:Архитектурные решения
   Общие данные
   План на отм. 0.000
   План кровли. Фрагменты 1, 2, 3
   Разрезы 1-1, 2-2, 3-3
   Узлы 1 - 5
   Узлы 6, 7
   Фасады
   План полов. Экспликация полов. Схемы заполнения оконных проемов
   План отверстий в стенах и кровле
Конструкции железобетонные
   Общие данные
   Фундаменты. Схема расположения элементов. Фрагменты 1, 1а
   Фундаменты. Фрагменты 2, 3, 4. Сечение 2-2
   Фундаменты. Фрагмент 5
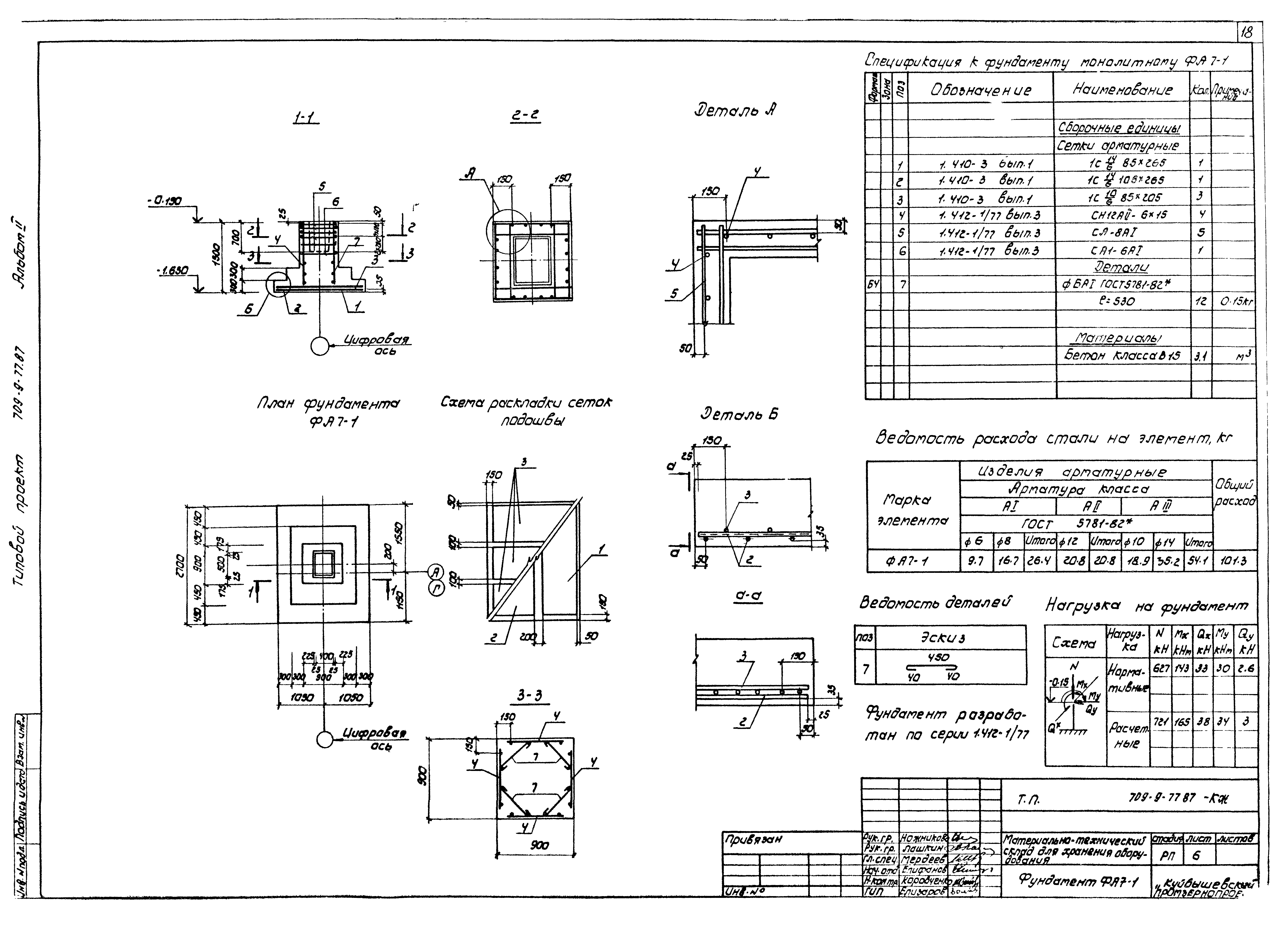
   Фундамент ФА7-1
   Фундамент ФА7-1-1
   Фундамент ФАТ7-1
   Фундамент ФА1-1
   Фундамент ФА1-1-1
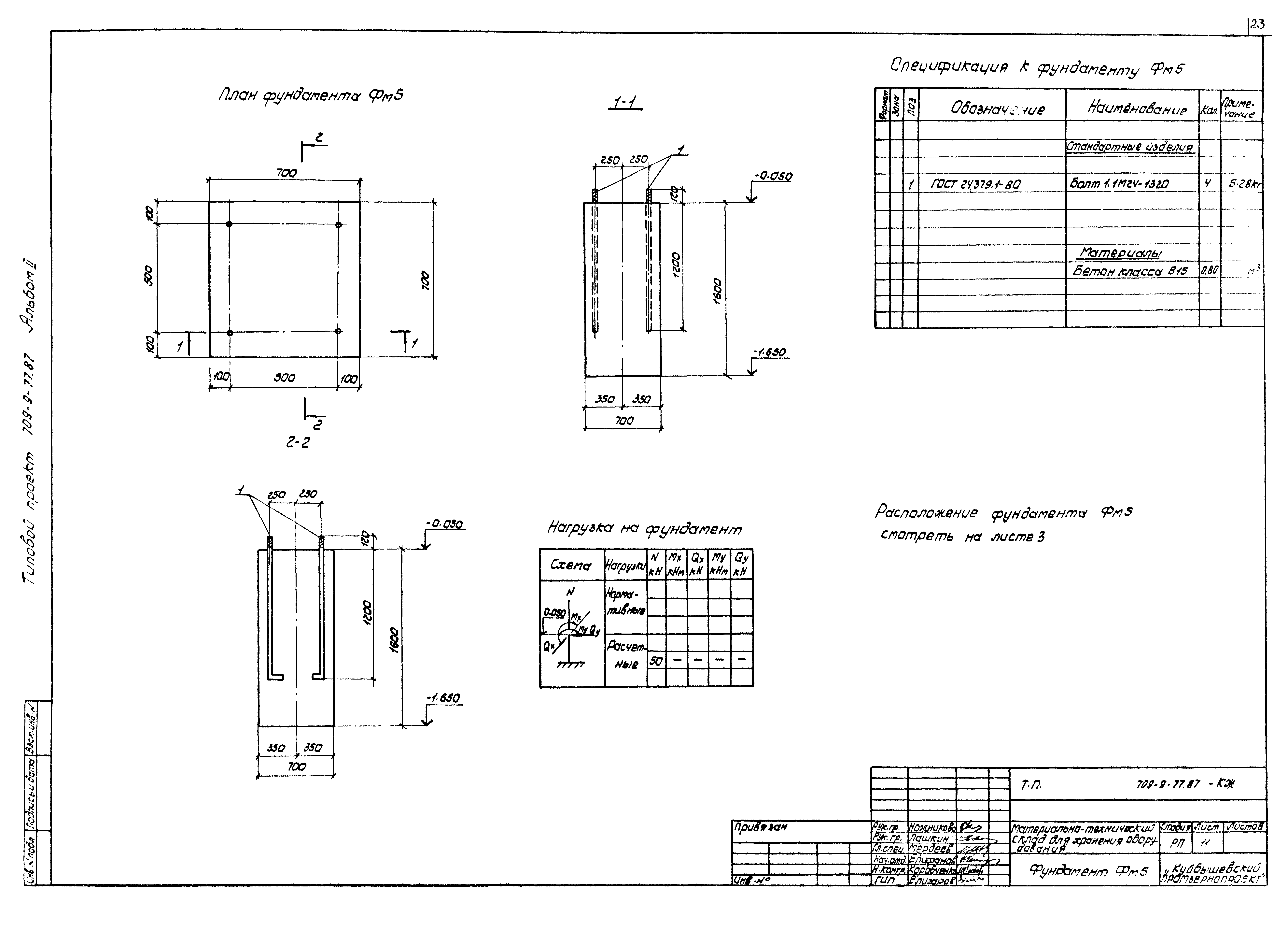
   Фундамент Фм-5
   Схема расположения элементов каркаса и связей
   Схема расположения элементов каркаса и связей. Узлы 1, 2
   Схема расположения плит покрытия и прогонов
   Схема расположения панелей стен
   Схема расположения панелей стен. Узлы
Конструкции металлические
   Общие данные
   Схема расположения элементов фахверка
   Схема расположения путей подвесного крана и монорельса. Узлы 1, 2, 3
   Схема расположения путей подвесного крана и монорельса. Узлы 4, 5
   Схема портала. Узлы. Схема расположения балок. Узлы
Разработан: Куйбышевский Промзернопроект
Утверждён:28.10.1987 Министерство хлебопродуктов СССР (USSR Ministry of Bakery Products 16)
Расположен в:Техническая документация Строительство Справочные документы Типовые строительные конструкции, изделия и узлы Общероссийский строительный каталог Промышленные предприятия, здания и сооружения Предприятия, здания и сооружения складские Склады разные Склады материально-технические и запчастей
Типовой проект 709-9-77.87Типовой проект 709-9-77.87Типовой проект 709-9-77.87Типовой проект 709-9-77.87Типовой проект 709-9-77.87Типовой проект 709-9-77.87Типовой проект 709-9-77.87Типовой проект 709-9-77.87Типовой проект 709-9-77.87Типовой проект 709-9-77.87Типовой проект 709-9-77.87Типовой проект 709-9-77.87Типовой проект 709-9-77.87Типовой проект 709-9-77.87Типовой проект 709-9-77.87Типовой проект 709-9-77.87Типовой проект 709-9-77.87Типовой проект 709-9-77.87Типовой проект 709-9-77.87Типовой проект 709-9-77.87Типовой проект 709-9-77.87Типовой проект 709-9-77.87Типовой проект 709-9-77.87Типовой проект 709-9-77.87Типовой проект 709-9-77.87Типовой проект 709-9-77.87Типовой проект 709-9-77.87Типовой проект 709-9-77.87Типовой проект 709-9-77.87Типовой проект 709-9-77.87Типовой проект 709-9-77.87Типовой проект 709-9-77.87Типовой проект 709-9-77.87Типовой проект 709-9-77.87Типовой проект 709-9-77.87Типовой проект 709-9-77.87Типовой проект 709-9-77.87

© 2013 Ёшкин Кот :-) Карта сайта