Скачать Типовой проект 709-9-55.87 Альбом 1. Архитектурно-строительные решения. Отопление, вентиляция. Электроснабжение, электрическое освещение, силовое электрооборудование. Автоматизация ОВДата актуализации: 10.08.2017 Типовой проект 709-9-55.87
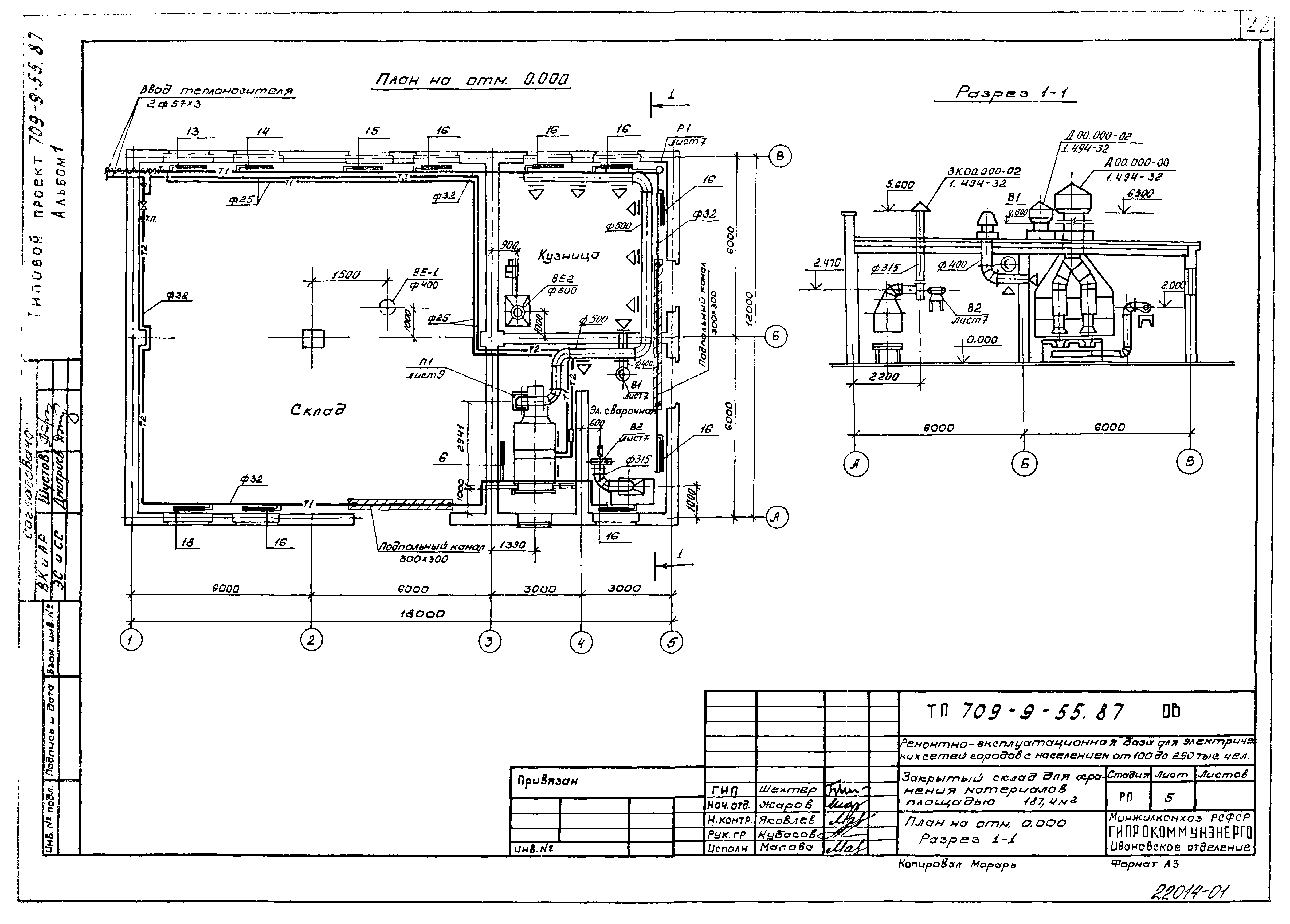
Альбом 1. Архитектурно-строительные решения. Отопление, вентиляция. Электроснабжение, электрическое освещение, силовое электрооборудование. Автоматизация ОВОбозначение: | Типовой проект 709-9-55.87 | Обозначение англ: | 709-9-55.87 | Статус: | действует | Название рус.: | Альбом 1. Архитектурно-строительные решения. Отопление, вентиляция. Электроснабжение, электрическое освещение, силовое электрооборудование. Автоматизация ОВ | Дата добавления в базу: | 01.09.2013 | Дата актуализации: | 05.05.2017 | Оглавление: | Содержание альбома АС Архитектурно-строительные решения Общие данные Фасады в осях 1 - 5, 5 - 1 Фасады В - А, А - В. Разрез 1-1 План на отм. 0.000 План расстановки оборудования кузницы и электросварочной Венткамера в осях 3 - 4 Планы полов и кровли Схема расположения фундаментов Схема расположения фундаментов. Раскладка блоков по осям Схема расположения фундаментов. Сечения 1-1 - 4-4 Схема расположения плит покрытия Монолитные участки УМ1 - УМ3 ОВ Отопление, вентиляция Общие данные План на отм. 0.000. Разрез 1-1 Схема системы отопления Схемы системы вентиляции Схема теплоснабжения калорифера Отопительно-вентиляционная установка П1. План. Разрез 1-1 ЭС Электроснабжение, электрическое освещение, силовое электрооборудование Общие данные Силовое электрооборудование. План распределительной сети Силовое электрооборудование. Принципиальная схема распределительного шкафа Вытяжные вентиляторы. Кузнечный вентилятор. Схема управления электродвигателем Станок точильно-шлифовальный и пылеулавливающий агрегат. Схема блокировки Ящики управления ЯУ5147 и ЯУ5143. Схема подключений Кабельный журнал Электрическое освещение. План сети на отм. 0.000 Молниезащита Пожарная сигнализация. Схема электрическая Пожарная сигнализация. План расположения АОВ Автоматизация ОВ Общие данные Приточная система П-1. Схема функциональная Приточная система П-1. Схема электрическая Приточная система П-1. Перечень элементов электрической схемы Приточная система П-1. Схема соединений внешних проводок Приточная система П-1. Схема подключения к блокам зажимов щита Приточная система П-1. План расположения ВК Водопровод и канализация Общие данные План на отм. 0.000 с сетями систем В1 и К1 Схемы сетей К1 и В1 | Разработан: | Ивановское отделение института Гипрокоммунэнерго МЖКХ РСФСР
| Утверждён: | 01.09.1986 Минжилкомхоз РСФСР (Russian Federation Minzhilkomkhoz 15 ТД)
| Расположен в: |
|
                                                    
|