Скачать Типовой проект 705-2-56.84 Альбом I. Пояснительная записка. Технология производства. Архитектурные решения. Конструкции железобетонные. Конструкции металлические. Силовое электрооборудованиеДата актуализации: 10.08.2017 Типовой проект 705-2-56.84
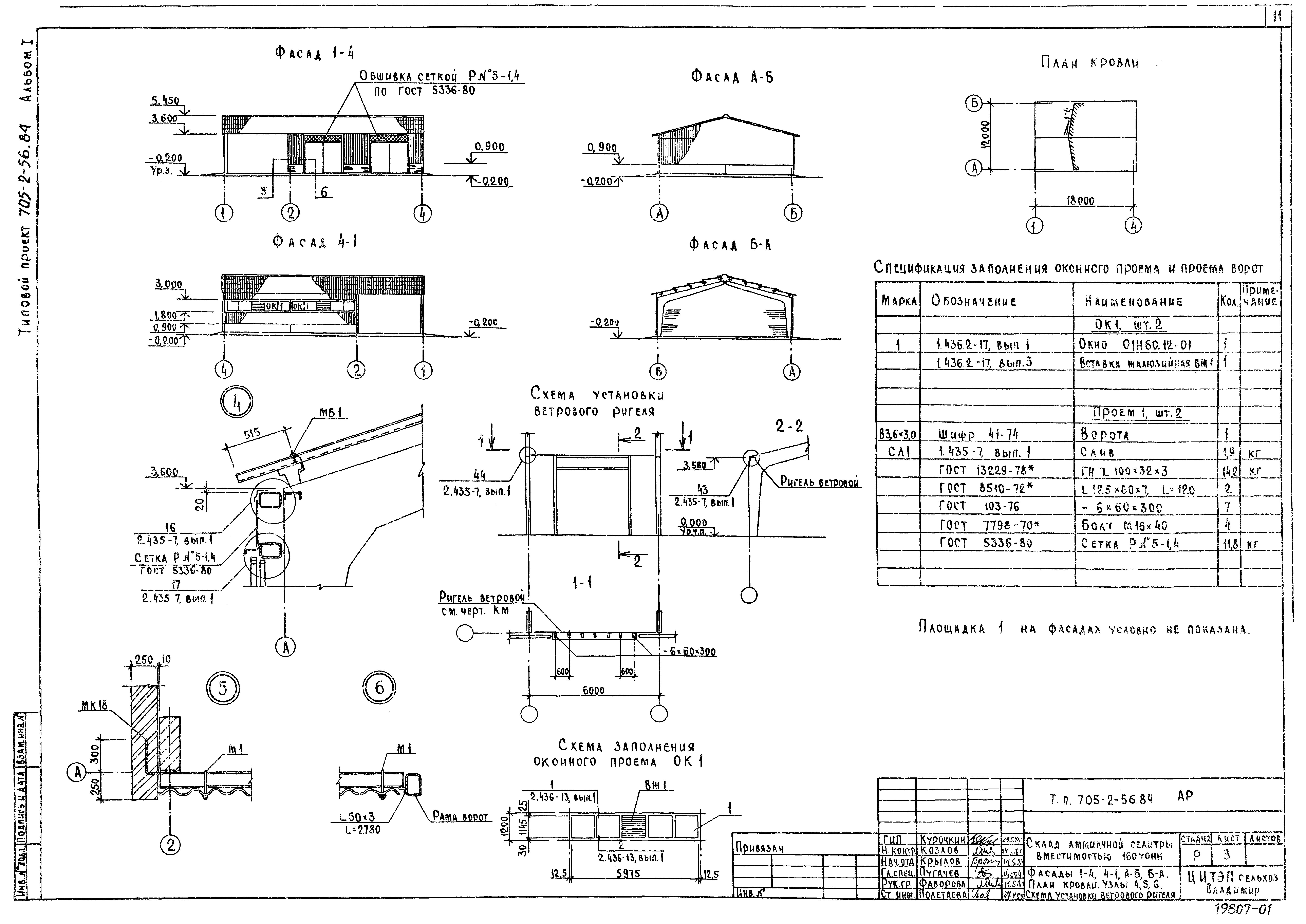
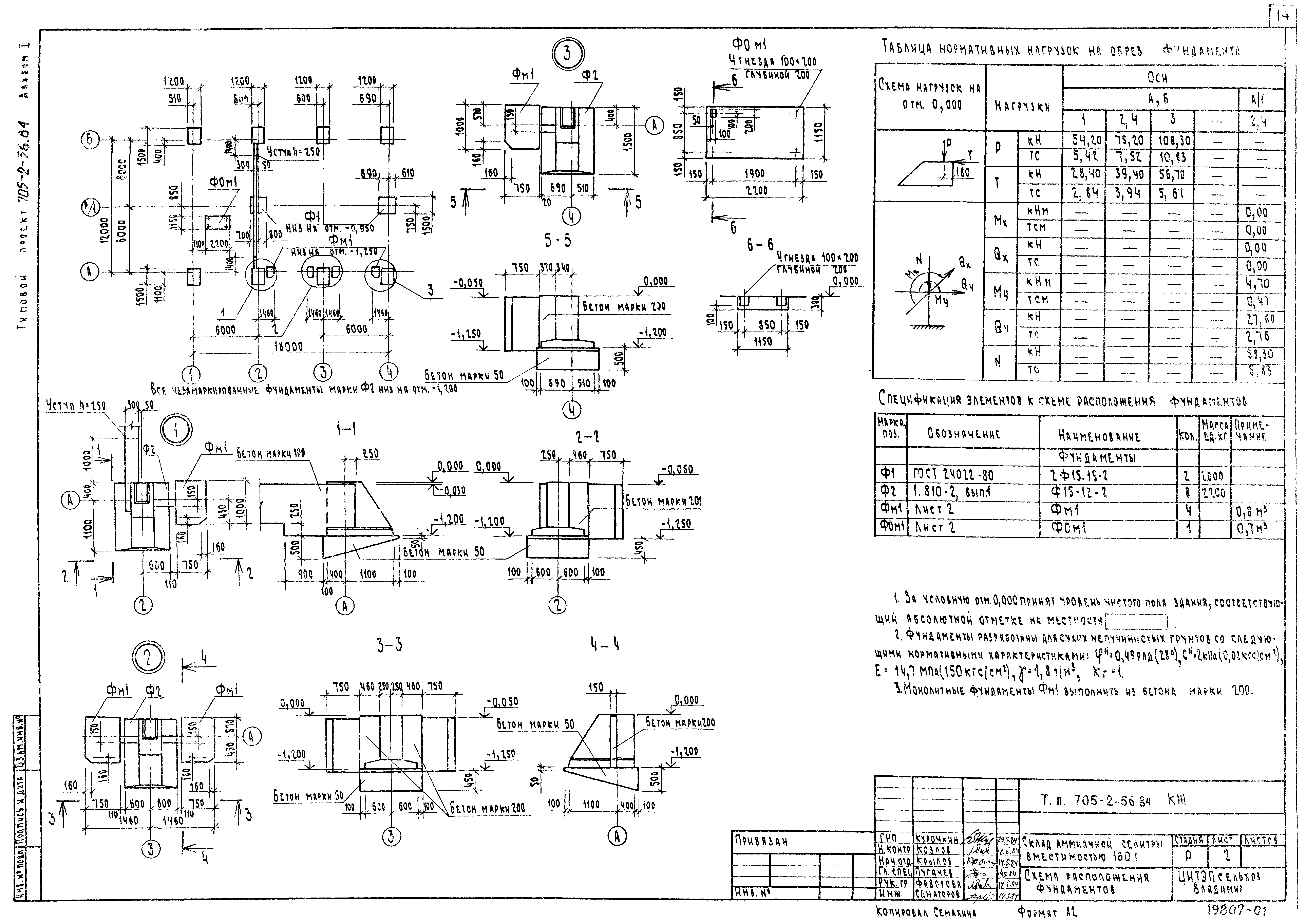
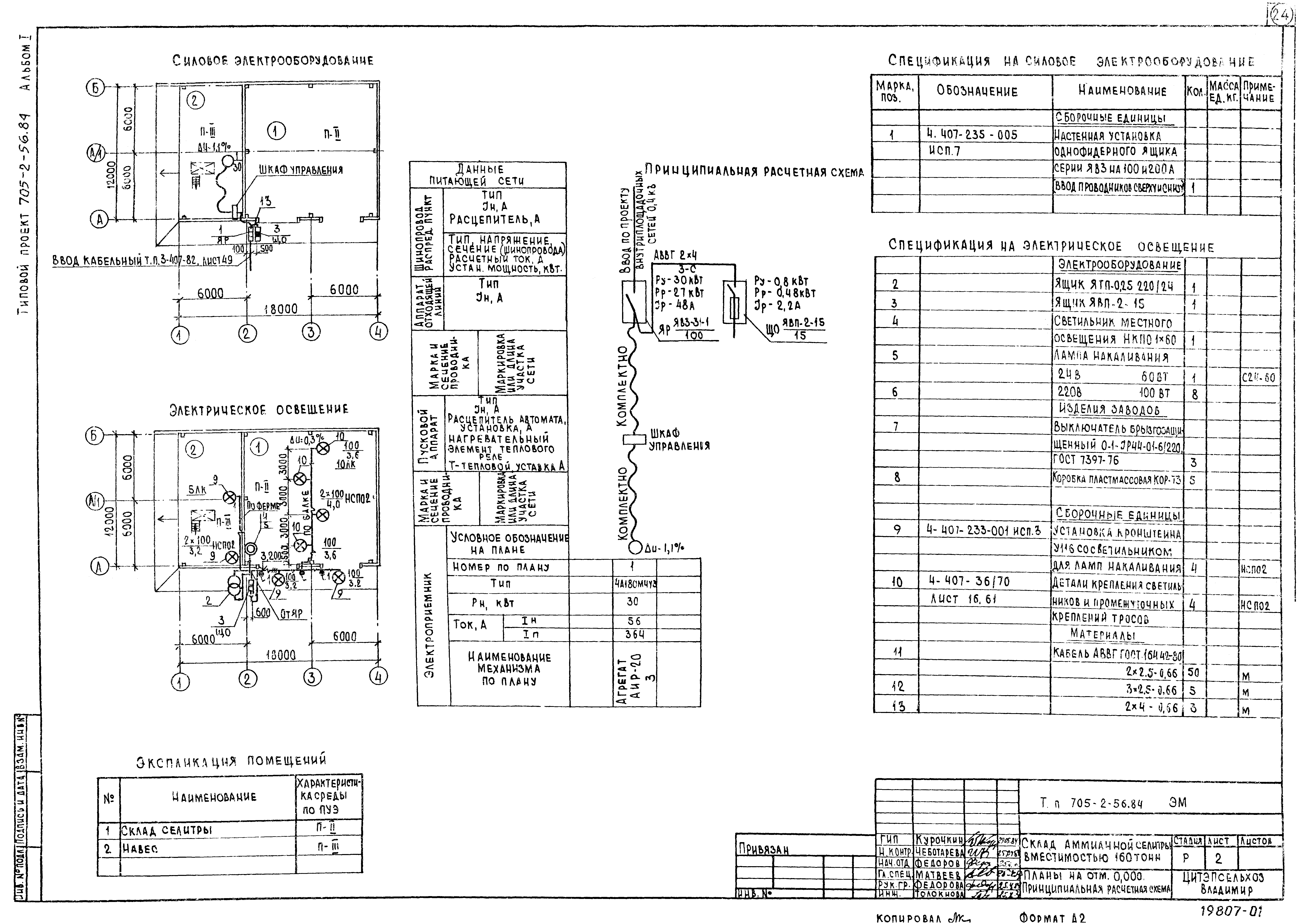
Альбом I. Пояснительная записка. Технология производства. Архитектурные решения. Конструкции железобетонные. Конструкции металлические. Силовое электрооборудованиеОбозначение: | Типовой проект 705-2-56.84 | Обозначение англ: | 705-2-56.84 | Статус: | не определен законодательством | Название рус.: | Альбом I. Пояснительная записка. Технология производства. Архитектурные решения. Конструкции железобетонные. Конструкции металлические. Силовое электрооборудование | Дата добавления в базу: | 01.09.2013 | Дата актуализации: | 05.05.2017 | Дата введения: | 13.08.1984 | Оглавление: | Содержание альбома Пояснительная записка Чертежи основного комплекта марки ТХ Общие данные. План на отм. 0.000. Разрез 1-1 Поддон складной ПС-1. Общий вид Ящик для песка. Общий вид Чертежи основного комплекта марки АР Общие данные План на отм. 0.000. Разрез 1-1 Фасады 1 - 4, 4 - 1, А - Б, Б - А. План кровли. Узлы 4, 5, 6. Схема установки ветрового ригеля Схемы расположения элементов стен и кровли Чертежи основного комплекта марки КЖ Общие данные Схема расположения фундаментов Схема расположения полурам колонн и связей Схемы расположения прогонов покрытия, панелей стен Узлы 4 - 11 Чертежи основного комплекта марки КМ Общие данные Схемы расположения элементов фахверка Площадка 1 Связи ВС1, ГС1 Чертежи основного комплекта марки ЭМ Общие данные Планы на отм. 0.000. Принципиальная расчетная схема | Разработан: | ЦИТЭПсельхоз
| Утверждён: | 04.04.1984 Главсельстройпроект Минсельхоза СССР (Glavselstroyproject, USSR Minselkhoz 20-ЭГ)
| Расположен в: |
|
                        
|