| 
 | ||||||||||||||||||||||||||
| 
 Скачать Альбом РК 7101-01 Конструкции, изделия и узлы для благоустройства набережных и водоемов. Рабочие чертежи изделий и узловДата актуализации: 10.08.2017
 | 
| Обозначение: |  Альбом РК 7101-01 | 
| Обозначение англ: |  РК 7101-01 | 
| Статус: | не определен законодательством | 
| Название рус.: | Конструкции, изделия и узлы для благоустройства набережных и водоемов. Рабочие чертежи изделий и узлов | 
| Дата добавления в базу: | 01.09.2013 | 
| Дата актуализации: | 05.05.2017 | 
| Дата введения: | 01.01.1971 | 
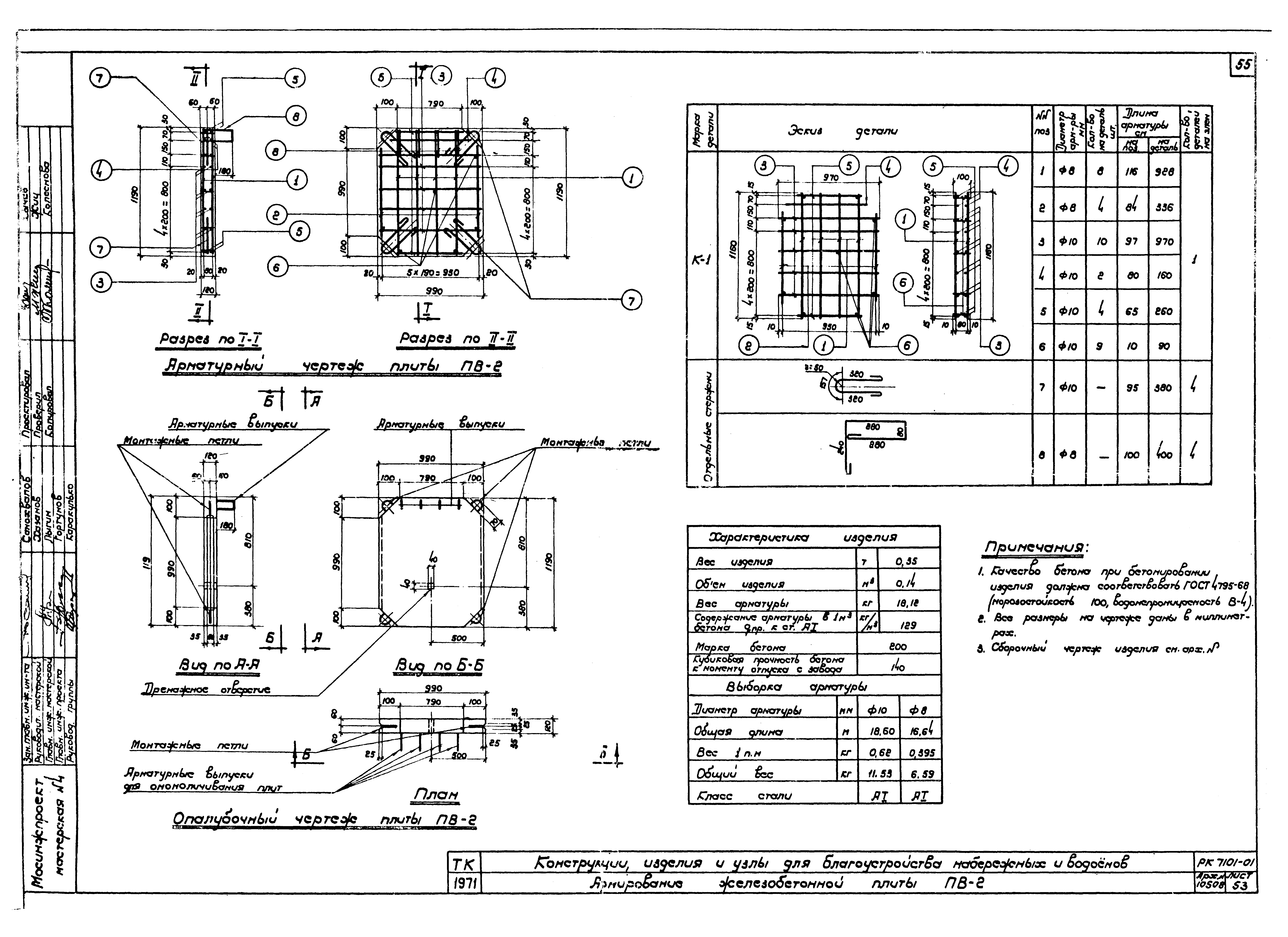
| Оглавление: | Титульный лист Раздел I Содержание раздела I, пояснительная записка Характеристика изделий Блок стен набережных БН-30. Опалубочный чертеж Блок стен набережных БН-30. Арматурный чертеж Блок стен набережных БН-35. Опалубочный чертеж Блок стен набережных БН-35. Арматурный чертеж Блок стен набережных БН-42. Опалубочный чертеж Блок стен набережных БН-42. Арматурный чертеж Блок стен набережных фартучный БНФ-20. Опалубочный и арматурный чертеж Блок стен набережных фартучный БНФ-25. Опалубочный чертеж Блок стен набережных фартучный БНФ-25. Арматурный чертеж Блок стен набережных фартучный с отверстием БНФО-20. Опалубочный и арматурный чертеж Блок стен набережных фартучный с отверстием БНФО-25. Опалубочный чертеж Блок стен набережных фартучный с отверстием БНФО-25. Арматурный чертеж Блок стен набережных БН-20. Опалубочный и арматурный чертеж Блок стен набережных БН-25. Опалубочный чертеж Блок стен набережных БН-25. Арматурный чертеж Блок стен набережных с отверстием БНО-20. Опалубочный и арматурный чертеж Блок стен набережных с отверстием БНО-25. Опалубочный чертеж Блок стен набережных с отверстием БНО-25. Арматурный чертеж Решетчатая плита ПР-3 Сваи для набережных СГ-6, СГ-7, СГ-8, СГ-9. Опалубочный и арматурный чертеж Сваи для набережных СГ-10, СГ-11, СГ-12. Опалубочный и арматурный чертеж Шпунт Ш-5. Опалубочный и арматурный чертеж Шпунт Ш-5-1. Опалубочный чертеж Шпунт Ш-5-1. Арматурный чертеж Шпунт Ш-7-1. Опалубочный чертеж Шпунт Ш-7-1. Арматурный чертеж Шпунт ШН-5. Опалубочный и арматурный чертеж Блок с гранитной облицовкой БГ-25. Опалубочный чертеж Блок с гранитной облицовкой БГ-25. Арматурный чертеж Блок с гранитной облицовкой БГ-31. Опалубочный чертеж Блок с гранитной облицовкой БГ-31. Арматурный чертеж Блок с гранитной облицовкой с отверстием БГО-25. Опалубочный чертеж Блок с гранитной облицовкой с отверстием БГО-25. Арматурный чертеж Блок с гранитной облицовкой с отверстием БГО-31. Опалубочный чертеж Блок с гранитной облицовкой с отверстием БГО-31. Арматурный чертеж Узлы омоноличивания блоков БН-42 и БНФ-20 с ростверком Узел омоноличивания блоков с гранитной облицовкой с ростверком Раздел II Содержание раздела II, пояснительная записка Характеристика изделий Конструкция стенки берегоукрепления свайно-заборчатого типа Конструкция стенки берегоукрепления наклонного типа Конструкция стенки берегоукрепления железобетонным шпунтом Конструкция стенки берегоукрепления железобетонными блоками БС-1к Конструкция стенки берегоукрепления из монолитного бетона Типы гидроизоляции ложа водоемов Таблицы объемов материалов для подпорных стенок Конструкция прогулочной дорожки с водоотводом в водосток Конструкция прогулочной дорожки с водоотводом в пруд Опалубочный чертеж и армирование стенового блока БС-1к Опалубочный чертеж и армирование сваи СБ-4-30 Армирование железобетонной плиты ПВ-1 Армирование железобетонной плиты ПВ-2 Армирование железобетонного шпунта Ш-2,7 Бетонный карниз П-20-В Конструкция мусороулавливающей решетки | 
| Разработан: | Мосинжпроект | 
| Утверждён: | 01.01.1971 Мосинжпроект (Mosinzhproject ) | 
| Расположен в: | 



























































