Информационная система
«Ёшкин Кот»

Скачать базу одним архивом
Скачать обновления
История создания базы
Карта сайта

Скачать Типовой проект 503-4-61.88 Альбом 1. Пояснительная записка. Технология производства

Дата актуализации: 10.08.2017

Типовой проект 503-4-61.88

Альбом 1. Пояснительная записка. Технология производства

Обозначение: Типовой проект 503-4-61.88
Обозначение англ: 503-4-61.88
Статус:не определен законодательством
Название рус.:Альбом 1. Пояснительная записка. Технология производства
Дата добавления в базу:01.09.2013
Дата актуализации:05.05.2017
Дата введения:15.12.1988
Оглавление:Пояснительная записка
Чертежи основного комплекта марки ТХ
   Общие данные
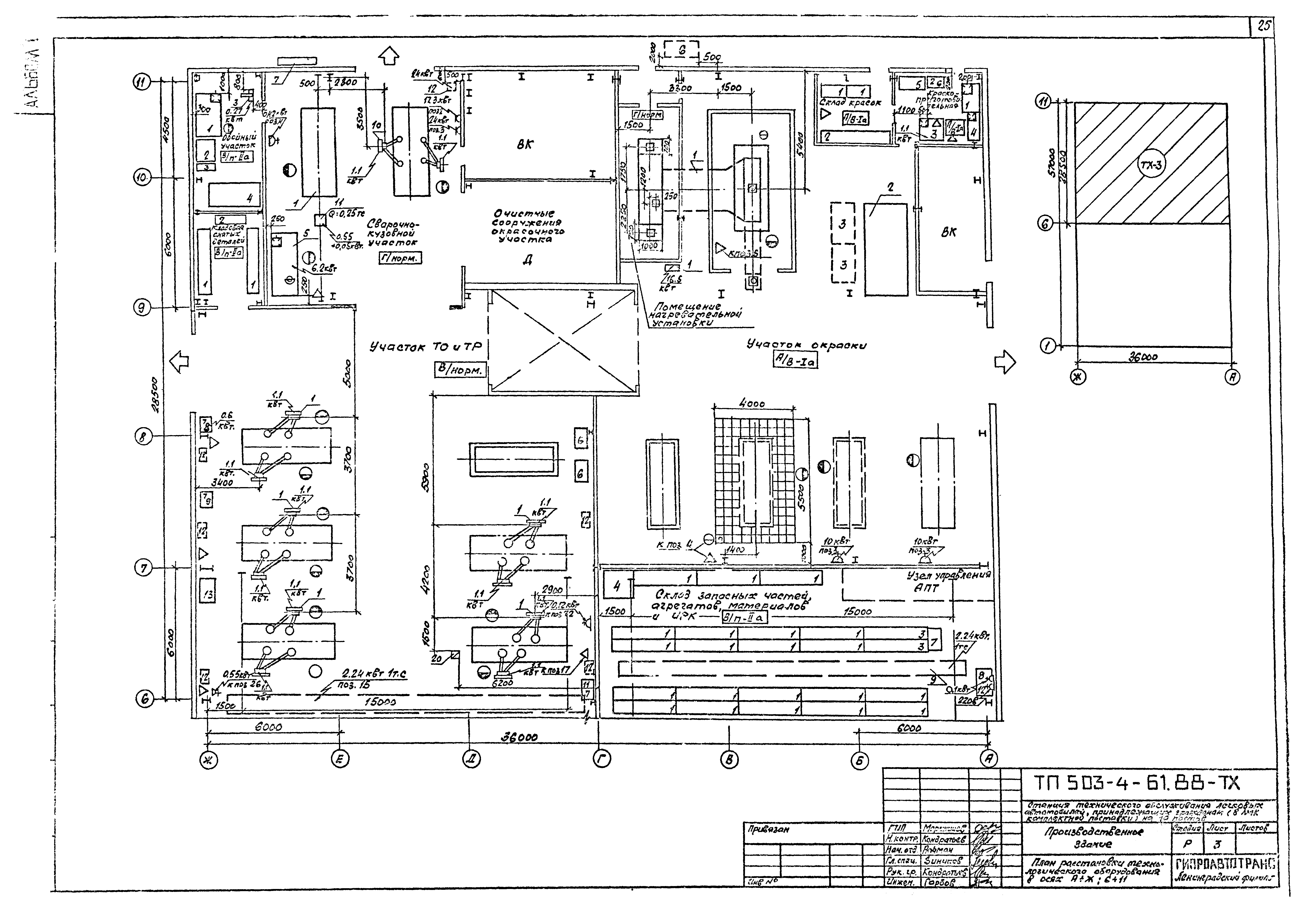
   План расстановки технического оборудования А - Ж, 1 - 6
   План расстановки технологического оборудования А - Ж, 6 - 11
   Экспликация технологического оборудования
   План и схема маслохозяйства и системы топливоподачи камера "Афит"
   План разводки трубопроводов сжатого воздуха
   Схема разводки трубопроводов сжатого воздуха
Разработан: Гипроавтотранс
Утверждён:15.12.1988 Минавтопром СССР (USSR Minavtoprom 29)
Расположен в:Техническая документация Строительство Справочные документы Типовые строительные конструкции, изделия и узлы Общероссийский строительный каталог Промышленные предприятия, здания и сооружения Предприятия, здания и сооружения транспорта Транспорт автомобильный Корпуса производственные, станции технического обслуживания и ремонта грузовых и легковых автомобилей и автобусов
Типовой проект 503-4-61.88Типовой проект 503-4-61.88Типовой проект 503-4-61.88Типовой проект 503-4-61.88Типовой проект 503-4-61.88Типовой проект 503-4-61.88Типовой проект 503-4-61.88Типовой проект 503-4-61.88Типовой проект 503-4-61.88Типовой проект 503-4-61.88Типовой проект 503-4-61.88Типовой проект 503-4-61.88Типовой проект 503-4-61.88Типовой проект 503-4-61.88Типовой проект 503-4-61.88Типовой проект 503-4-61.88Типовой проект 503-4-61.88Типовой проект 503-4-61.88Типовой проект 503-4-61.88Типовой проект 503-4-61.88Типовой проект 503-4-61.88Типовой проект 503-4-61.88Типовой проект 503-4-61.88Типовой проект 503-4-61.88Типовой проект 503-4-61.88Типовой проект 503-4-61.88Типовой проект 503-4-61.88Типовой проект 503-4-61.88Типовой проект 503-4-61.88Типовой проект 503-4-61.88Типовой проект 503-4-61.88Типовой проект 503-4-61.88Типовой проект 503-4-61.88Типовой проект 503-4-61.88

© 2013 Ёшкин Кот :-) Карта сайта