Информационная система
«Ёшкин Кот»

Скачать базу одним архивом
Скачать обновления
История создания базы
Карта сайта

Скачать Типовой проект 503-4-34.85 Альбом I. Общая пояснительная записка. Технология производства. Архитектурные решения. Конструкции железобетонные и металлические. Внутренний водопровод и канализация. Отопление и вентиляция. Силовое электрооборудование и электрическое освещение. Связь и сигнализация. Автоматизация отопления и вентиляции. Организация строительства

Дата актуализации: 10.08.2017

Типовой проект 503-4-34.85

Альбом I. Общая пояснительная записка. Технология производства. Архитектурные решения. Конструкции железобетонные и металлические. Внутренний водопровод и канализация. Отопление и вентиляция. Силовое электрооборудование и электрическое освещение. Связь и сигнализация. Автоматизация отопления и вентиляции. Организация строительства

Обозначение: Типовой проект 503-4-34.85
Обозначение англ: 503-4-34.85
Статус:действует
Название рус.:Альбом I. Общая пояснительная записка. Технология производства. Архитектурные решения. Конструкции железобетонные и металлические. Внутренний водопровод и канализация. Отопление и вентиляция. Силовое электрооборудование и электрическое освещение. Связь и сигнализация. Автоматизация отопления и вентиляции. Организация строительства
Дата добавления в базу:01.09.2013
Дата актуализации:05.05.2017
Оглавление:Содержание альбома
Пояснительная записка
Технология производства
   Общие данные
   Расположение технологического оборудования в осях 2 - 9
   Перечень технологического оборудования
Архитектурные решения
   Общие данные
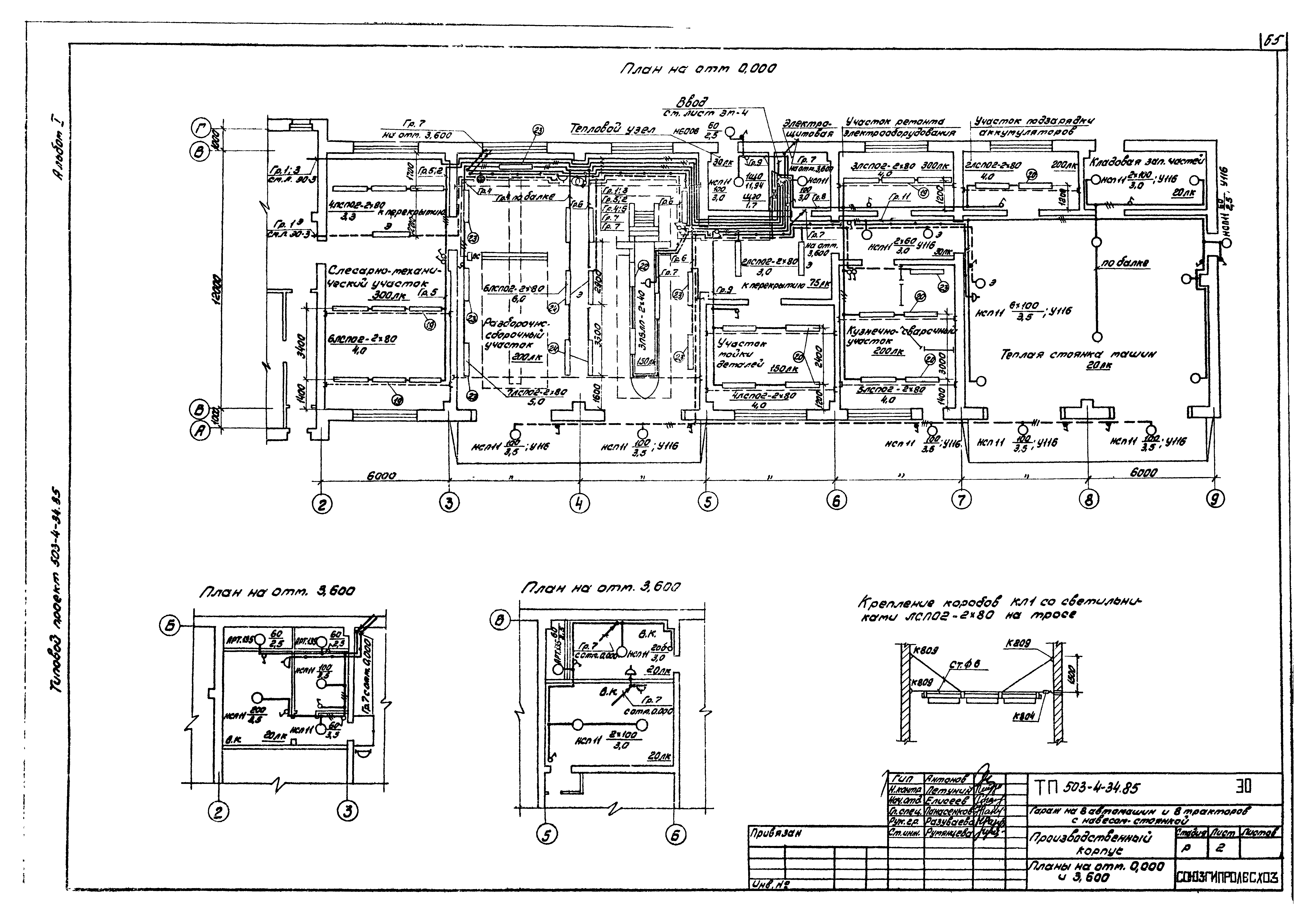
   Планы на отм. 0.000 и 3.600
   Вспомогательные помещения. Планы на отм. 0.000 и 3.300. Детали 1 - 6
   Разрезы 1-1, 2-2, 3-3 и 4-4
   Фасады. Фрагмент 1, сечения А-А
   Планы полов, кровли. Экспликация полов
   Ведомости перемычек. Спецификация перемычек
   Ведомости перемычек. Спецификация перемычек для температуры минус 20, минус 40 градусов Цельсия
   Спецификации, ведомость проемов ворот и дверей, схемы заполнения оконных проемов
Конструкции железобетонные
   Общие данные
   Схема расположения фундаментов и фундаментных балок
   Сечения 1-1 - 11-11. Узлы 1, 2, 3
   Сечения 1-1 - 7-7. Узлы 1, 2, 3 для tн минус 40 градусов Цельсия
   Фундаменты Фм1, Фм2, Фм1а
   Фундаменты Фм3, Фм4
   Схема расположения фундаментов под оборудование и подпольных каналов
   Фундаменты под оборудование. Сечения 1-1 - 8-8
   Ремонтно-смотровая канава КС-1. Сечения 1-1, 2-2
   Сечения 3-3 - 5-5. Узлы 1 - 5
   Схема расположения балок плит покрытия и перекрытия
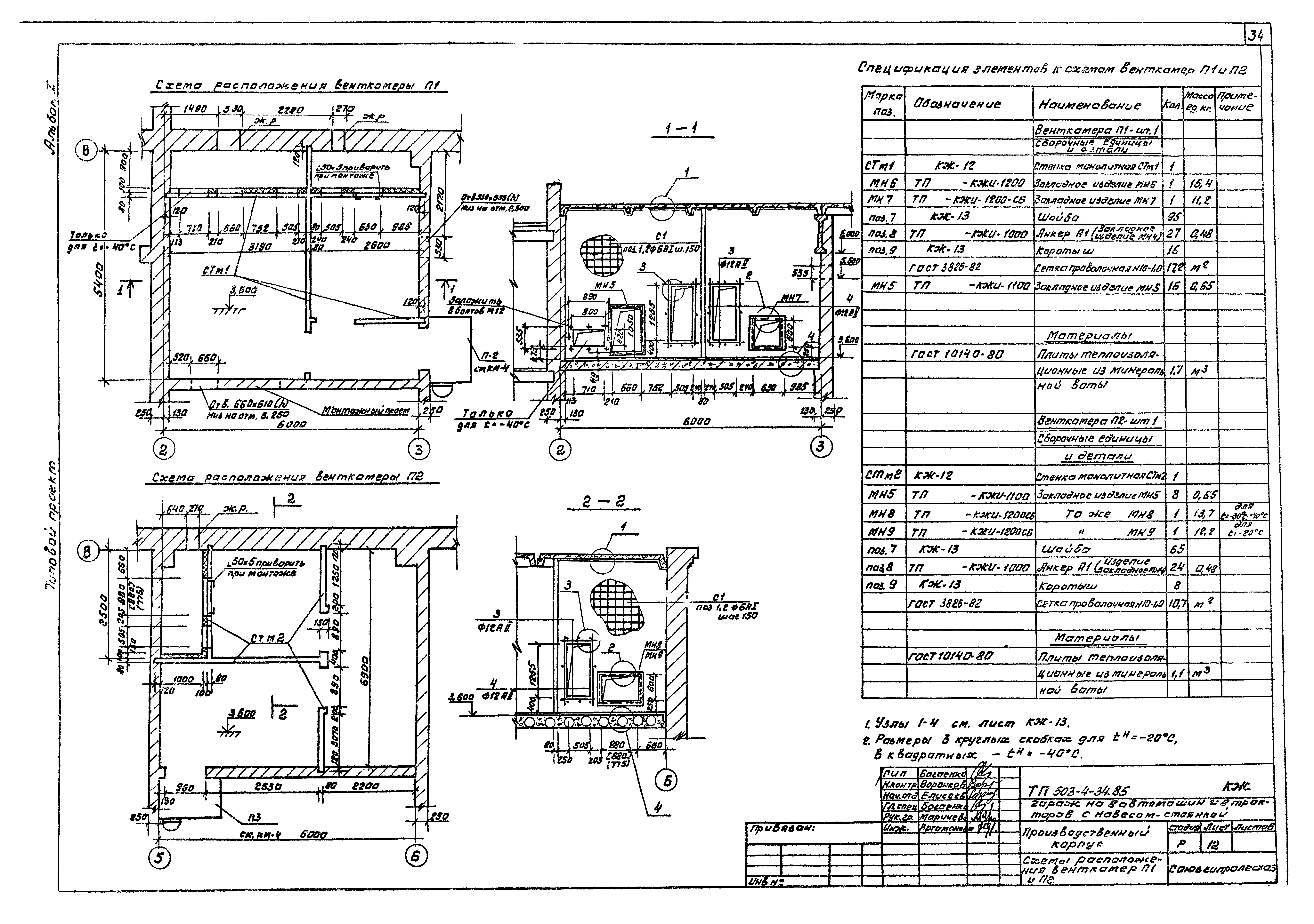
   Схема расположения венткамер П1 и П2
   Схемы расположения венткамер. Узлы 1 - 4
   Схема расположения элементов лестницы в осях 1 - 2. Узлы 1 - 3
Конструкции металлические
   Общие данные
   Схема расположения балок подвесного крана в осях "3", "5". Узлы. Разрезы
   Металлические площадки П1 - П4
   Металлические изделия. Узел "1"
Внутренние водопровод и канализация
   Общие данные
   План на отм. 0.000 с системами В1, Т3, К1, К3
   Схема систем В1, Т3, К1, К3
Отопление и вентиляция
   Общие данные
   План на отм. 0.000. Таблица местных отсосов
   Схема систем отопления 1
   Схема системы теплоснабжения установок П1 - П3. Узел управления 1
   Схема систем П1 - П3, В1 - В4, ВЕ1 - ВЕ12
   Установки систем П1 - П3, В2 - В4
   Спецификация отопительно-вентиляционных установок
   Планы на отм. 0.000 и 3.300. Схемы систем ВЕ13 - ВЕ17. Схемы систем отопления 2
Воздуховод асбестоцементный
   Чертеж общего вида
   Шланговый отсос
   Конструкция теплоизоляционная
Силовое электрооборудование
   Общие данные
   Планы на отм. 0.000, 3.300 и 3.600
   Схема принципиальная питающей и распределительной сети
   Схема принципиальная распределительной сети
   Спецификация к листу ЭМ-3
   Схема управления зарядным устройством
   Ведомости
Электрическое освещение
   Общие данные
   Планы на отм. 0.000 и 3.600
   Планы бытовых помещений
   Спецификация к листам ЭО-2, ЭО-3
   Узел для крепления светильника ПВЛП в смотровой яме
   Конструкции для крепления светильников ЛСПО2-2х80
   Ведомости
Связь и сигнализация
   Общие данные
   Планы на отм. 0.000 и 3.300 с сетями радиофикации и телефонизации
Автоматизация отопления и вентиляции
   Общие данные
   Приточная система П1. Схема функциональная
   Приточная система П1. Схема электрическая принципиальная управления
   Приточная система П1. Схема внешних проводок
   Приточная система П2 (П3). Схема функциональная. Схема электрическая принципиальная управления
   Приточная система П2 (П3). Схема внешних соединений. Общий вид 2ЯУ
   Аварийная сигнализация. Схема электрическая принципиальная сигнализации. Схема подключения
   Узел управления. Схема функциональная. Схема трубных проводок
   План расположения
   Приточная система П1. Таблица технических данных аппаратов
   Приточная система П1. Чертеж общего вида
   Приточная система П1. Таблица перечня надписей
   Приточная система П1. Схема электрическая соединений
Организация строительства
Разработан: Союзгипролесхоз
Утверждён:13.04.1984 Гослесхоз СССР (USSR Gosleskhoz 43)
Расположен в:Техническая документация Строительство Справочные документы Типовые строительные конструкции, изделия и узлы Общероссийский строительный каталог Промышленные предприятия, здания и сооружения Предприятия, здания и сооружения транспорта Транспорт автомобильный Предприятия автотранспортные, гаражи и стоянки для легковых автомобилей, автобусов и мотоциклов
Типовой проект 503-4-34.85Типовой проект 503-4-34.85Типовой проект 503-4-34.85Типовой проект 503-4-34.85Типовой проект 503-4-34.85Типовой проект 503-4-34.85Типовой проект 503-4-34.85Типовой проект 503-4-34.85Типовой проект 503-4-34.85Типовой проект 503-4-34.85Типовой проект 503-4-34.85Типовой проект 503-4-34.85Типовой проект 503-4-34.85Типовой проект 503-4-34.85Типовой проект 503-4-34.85Типовой проект 503-4-34.85Типовой проект 503-4-34.85Типовой проект 503-4-34.85Типовой проект 503-4-34.85Типовой проект 503-4-34.85Типовой проект 503-4-34.85Типовой проект 503-4-34.85Типовой проект 503-4-34.85Типовой проект 503-4-34.85Типовой проект 503-4-34.85Типовой проект 503-4-34.85Типовой проект 503-4-34.85Типовой проект 503-4-34.85Типовой проект 503-4-34.85Типовой проект 503-4-34.85Типовой проект 503-4-34.85Типовой проект 503-4-34.85Типовой проект 503-4-34.85Типовой проект 503-4-34.85Типовой проект 503-4-34.85Типовой проект 503-4-34.85Типовой проект 503-4-34.85Типовой проект 503-4-34.85Типовой проект 503-4-34.85Типовой проект 503-4-34.85Типовой проект 503-4-34.85Типовой проект 503-4-34.85Типовой проект 503-4-34.85Типовой проект 503-4-34.85Типовой проект 503-4-34.85Типовой проект 503-4-34.85Типовой проект 503-4-34.85Типовой проект 503-4-34.85Типовой проект 503-4-34.85Типовой проект 503-4-34.85Типовой проект 503-4-34.85Типовой проект 503-4-34.85Типовой проект 503-4-34.85Типовой проект 503-4-34.85Типовой проект 503-4-34.85Типовой проект 503-4-34.85Типовой проект 503-4-34.85Типовой проект 503-4-34.85Типовой проект 503-4-34.85Типовой проект 503-4-34.85Типовой проект 503-4-34.85Типовой проект 503-4-34.85Типовой проект 503-4-34.85Типовой проект 503-4-34.85Типовой проект 503-4-34.85Типовой проект 503-4-34.85Типовой проект 503-4-34.85Типовой проект 503-4-34.85Типовой проект 503-4-34.85Типовой проект 503-4-34.85Типовой проект 503-4-34.85Типовой проект 503-4-34.85Типовой проект 503-4-34.85Типовой проект 503-4-34.85Типовой проект 503-4-34.85Типовой проект 503-4-34.85Типовой проект 503-4-34.85Типовой проект 503-4-34.85Типовой проект 503-4-34.85Типовой проект 503-4-34.85Типовой проект 503-4-34.85Типовой проект 503-4-34.85Типовой проект 503-4-34.85Типовой проект 503-4-34.85Типовой проект 503-4-34.85Типовой проект 503-4-34.85Типовой проект 503-4-34.85Типовой проект 503-4-34.85Типовой проект 503-4-34.85

© 2013 Ёшкин Кот :-) Карта сайта