Скачать Типовой проект 503-6-6.86 Альбом II. Здание станции. Пояснительная записка. Чертежи (технология производства, архитектурные решения, конструкции железобетонные, конструкции металлические, внутренние водопровод и канализация, отопление и вентиляция, силовое электрооборудование, связь и сигнализация)Дата актуализации: 10.08.2017 Типовой проект 503-6-6.86
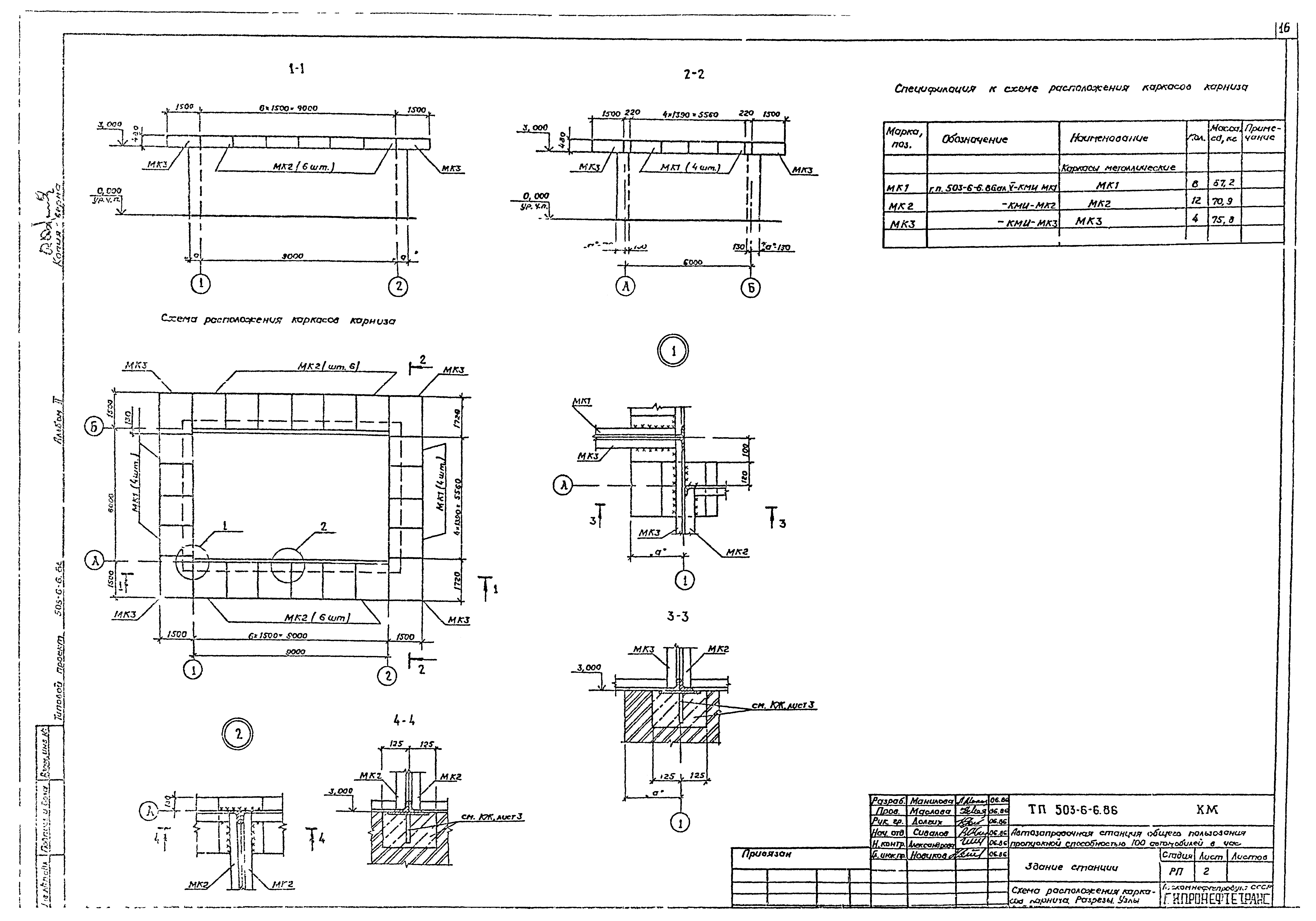
Альбом II. Здание станции. Пояснительная записка. Чертежи (технология производства, архитектурные решения, конструкции железобетонные, конструкции металлические, внутренние водопровод и канализация, отопление и вентиляция, силовое электрооборудование, связь и сигнализация)Обозначение: | Типовой проект 503-6-6.86 | Обозначение англ: | 503-6-6.86 | Статус: | не определен законодательством | Название рус.: | Альбом II. Здание станции. Пояснительная записка. Чертежи (технология производства, архитектурные решения, конструкции железобетонные, конструкции металлические, внутренние водопровод и канализация, отопление и вентиляция, силовое электрооборудование, связь и сигнализация) | Дата добавления в базу: | 01.09.2013 | Дата актуализации: | 05.05.2017 | Дата введения: | 14.08.1985 | Оглавление: | Пояснительная записка Технология производства Общие данные. План размещения оборудования Архитектурные решения Общие данные План на отм. 0.000. Разрезы 1-1 - 4-4. Фрагмент 1 Спецификация и ведомость перемычек Фасады 1 - 2, 2 - 1, А - Б, Б - А Окно подачи талонов. Сечения План кровли. План полов. Узлы 1 - 4 Конструкции железобетонные Общие данные Схемы расположения элементов крылец по осям А и Б. Сечения. Узлы Схемы расположения плит покрытия, фундаментов, закладных элементов на отм. 3.600. Фрагмент 1. Сечения Конструкции металлические Общие данные Схема расположения каркасов карниза. Разрезы. Узлы Внутренние водопровод и канализация Общие данные План, схемы систем В1, Т3, К1, К2 Отопление и вентиляция Общие данные Отопление. Вентиляция. План схемы систем отопления и вентиляции (I вариант) Отопление. Вентиляция. План схемы систем отопления и вентиляции (II вариант) Силовое электрооборудование Общие данные Принципиальная однолинейная схема. Вариант отпуска нефтепродуктов по кредитным картам Принципиальная однолинейная схема. Вариант отпуска нефтепродуктов через кассовые аппараты Силовое электрооборудование. Планы План электроосвещения Схема соединений топливораздаточных колонок "Нара 22", "Нара 23". Вариант отпуска нефтепродуктов по кредитным картам Схема соединений топливораздаточных колонок "Нара 22". Вариант отпуска нефтепродуктов через кассовые аппараты Схема соединений топливораздаточных колонок "Нара 23". Вариант отпуска нефтепродуктов через кассовые аппараты Схема подключения и управления маслораздаточными колонками Связь и сигнализация Общие данные. План слаботочных устройств | Разработан: | Гипронефтетранс
| Утверждён: | 12.02.1985 Госкомнефтепродукт СССР (24-13-9)
| Расположен в: |
|
                                 
|