Информационная система
«Ёшкин Кот»

Скачать базу одним архивом
Скачать обновления
История создания базы
Карта сайта

Скачать Типовой проект 501-3-10 Альбом VI. Нестандартизированное оборудование

Дата актуализации: 10.08.2017

Типовой проект 501-3-10

Альбом VI. Нестандартизированное оборудование

Обозначение: Типовой проект 501-3-10
Обозначение англ: 501-3-10
Статус:действует
Название рус.:Альбом VI. Нестандартизированное оборудование
Дата добавления в базу:01.09.2013
Дата актуализации:05.05.2017
Дата введения:28.04.1981
Оглавление:Титульный лист
Содержание альбома VI
Е41-00-000 ВО Ванна для промывки баков и блоков аккумуляторных батарей. Общий вид
И150-00-000 ВО Верстак слесарный на одни тиски. Общий вид
Е63-00-000 ВО Ванна для промывки и прополаскивания воздушных фильтров. Общий вид
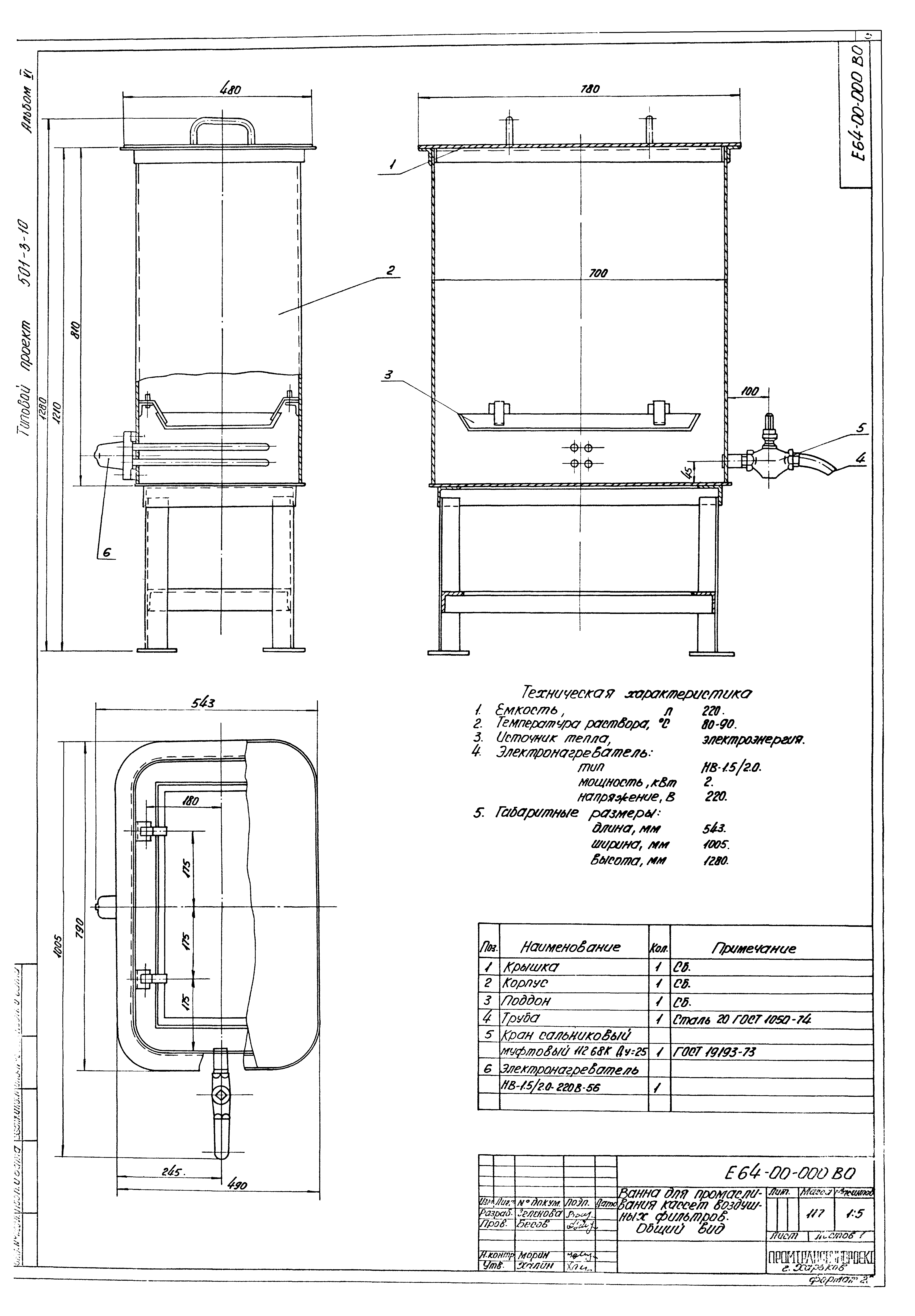
Е64-00-000 ВО Ванна для промасливания кассет воздушных фильтров. Общий вид
И65-00-000 ВО Стеллаж полочный. Общий вид
И66-00-000 Верстак для правки блоков и баков аккумуляторных батарей. Общий вид
И69-00-000 ВО Шкаф для инструмента. Общий вид
И109-00-000 ВО Верстак для разборки и сборки форсунок. Общий вид
И117-00-000 ВО Стеллаж-рольганг для аккумуляторных батарей. Общий вид
И149-00-000 ВО Подставка под станок. Общий вид
К4-00-000 ВО Камера для просушки кассет фильтров. Общий вид
К5-00-000 ВО Ванна для мойки деталей. Общий вид
Р32-00-000 ВО Шкаф настенный. Общий вид
Р44-00-000 ВО Водоотделитель. Общий вид
Разработан: Промтрансниипроект
Утверждён:12.03.1981 Госстрой СССР (Государственный комитет Совета Министров СССР по делам строительства) (USSR Gosstroy 14)
Расположен в:Техническая документация Строительство Справочные документы Типовые строительные конструкции, изделия и узлы Общероссийский строительный каталог Промышленные предприятия, здания и сооружения Предприятия, здания и сооружения транспорта Транспорт промпредприятий железнодорожный
Типовой проект 501-3-10Типовой проект 501-3-10Типовой проект 501-3-10Типовой проект 501-3-10Типовой проект 501-3-10Типовой проект 501-3-10Типовой проект 501-3-10Типовой проект 501-3-10Типовой проект 501-3-10Типовой проект 501-3-10Типовой проект 501-3-10Типовой проект 501-3-10Типовой проект 501-3-10Типовой проект 501-3-10Типовой проект 501-3-10Типовой проект 501-3-10Типовой проект 501-3-10Типовой проект 501-3-10

© 2013 Ёшкин Кот :-) Карта сайта