Информационная система
«Ёшкин Кот»

Скачать базу одним архивом
Скачать обновления
История создания базы
Карта сайта

Скачать Типовой проект 501-3-10 Альбом III. Санитарно-технические решения

Дата актуализации: 10.08.2017

Типовой проект 501-3-10

Альбом III. Санитарно-технические решения

Обозначение: Типовой проект 501-3-10
Обозначение англ: 501-3-10
Статус:действует
Название рус.:Альбом III. Санитарно-технические решения
Дата добавления в базу:01.09.2013
Дата актуализации:05.05.2017
Оглавление:Обложка
Титульный лист
Содержание
Чертежи основного комплекта марки ОВ
   Общие данные
   Вентиляция. План на отм. 0.000. Разрезы 1-1, 2-2 (Каркасно-панельный вариант)
   Вентиляция. План на отм. 0.000. Разрезы 1-1, 2-2 (Кирпичный вариант)
   Вентиляция. Схемы систем Р1, Р2, ВЕ1 - ВЕ10, П1, П2, В1, В2, В3, ТВ1
   Установки П1, П2. Разрезы 1-1, 2-2, 3-3. План на отм. 5.800. Выкопировка из плана на отм. 5.800. План кровли
   Спецификация отопительно-вентиляционных установок П1, П2
   Отопление и теплоснабжение. План на отм. 0.000 и на отм. 5.800 (Каркасно-панельный вариант)
   Отопление и теплоснабжение. План на отм. 0.000 и на отм. 5.800 (Кирпичный вариант)
   Отопление и теплоснабжение. Схема системы отопления и системы теплоснабжения установок П1, П2, ОА1 - ОА4, ВТ31 (Каркасно-панельный вариант)
   Отопление и теплоснабжение. Схема системы отопления и системы теплоснабжения установок П1, П2, ОА1 - ОА4, ВТ31 (Кирпичный вариант)
   Теплоснабжение. Обвязка калориферов установок П1, П2 отопительных агрегатов ОА1 - ОА4 и тепловоздушной завесы ВТ31
   Тепловой ввод. План. Разрез 1-1. Разрез 2-2
   Тепловой ввод. Спецификация
   План и схема пароснабжения (Каркасно-панельный вариант)
   План и схема пароснабжения (Кирпичный вариант)
   Пароводяная подогревательная установка. План. Разрез 1-1, 2-2. Схема. Спецификация (Каркасно-панельный вариант)
   Пароводяная подогревательная установка. План. Разрез 1-1, 2-2. Схема. Спецификация (Кирпичный вариант)
Чертежи основного комплекта марки ВК
   Общие данные
   Планы на отм. 0.000
   Схема систем В1, В9, Т3
   Продольный профиль системы К3. Схемы систем К1, К3, К13. Воронка спускная 150х50
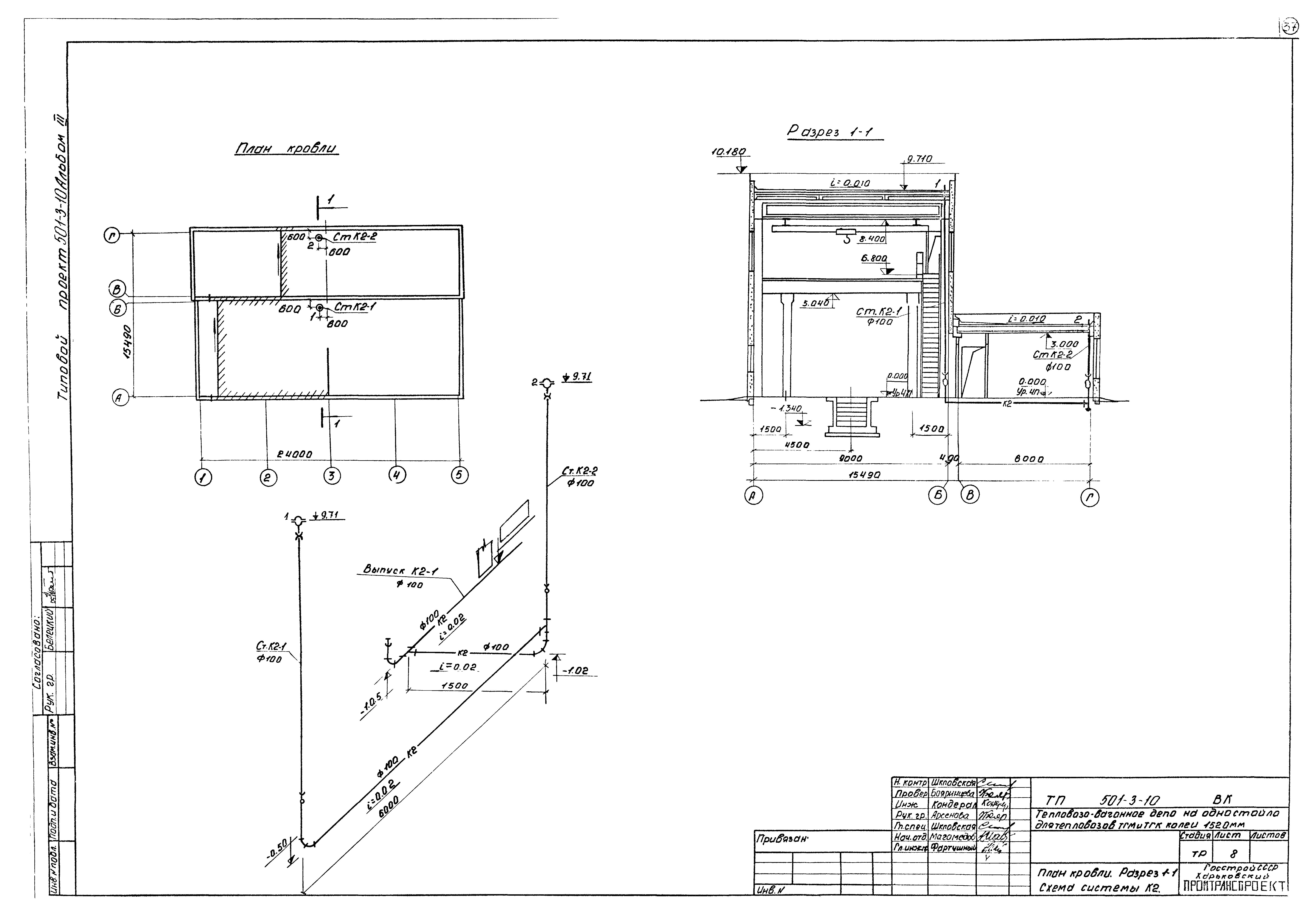
   План кровли. Разрез 1-1. Схема системы К2
Разработан: Промтрансниипроект
Утверждён:12.03.1981 Госстрой СССР (Государственный комитет Совета Министров СССР по делам строительства) (USSR Gosstroy 14)
Расположен в:Техническая документация Строительство Справочные документы Типовые строительные конструкции, изделия и узлы Общероссийский строительный каталог Промышленные предприятия, здания и сооружения Предприятия, здания и сооружения транспорта Транспорт промпредприятий железнодорожный
Типовой проект 501-3-10Типовой проект 501-3-10Типовой проект 501-3-10Типовой проект 501-3-10Типовой проект 501-3-10Типовой проект 501-3-10Типовой проект 501-3-10Типовой проект 501-3-10Типовой проект 501-3-10Типовой проект 501-3-10Типовой проект 501-3-10Типовой проект 501-3-10Типовой проект 501-3-10Типовой проект 501-3-10Типовой проект 501-3-10Типовой проект 501-3-10Типовой проект 501-3-10Типовой проект 501-3-10Типовой проект 501-3-10Типовой проект 501-3-10Типовой проект 501-3-10Типовой проект 501-3-10Типовой проект 501-3-10Типовой проект 501-3-10Типовой проект 501-3-10Типовой проект 501-3-10Типовой проект 501-3-10Типовой проект 501-3-10Типовой проект 501-3-10Типовой проект 501-3-10Типовой проект 501-3-10Типовой проект 501-3-10Типовой проект 501-3-10Типовой проект 501-3-10Типовой проект 501-3-10Типовой проект 501-3-10Типовой проект 501-3-10Типовой проект 501-3-10Типовой проект 501-3-10

© 2013 Ёшкин Кот :-) Карта сайта