Скачать Типовой проект 282-3-53.86 Альбом I. Пояснительная записка. Архитектурные решения. Конструкции железобетонные. Технологические чертежиДата актуализации: 10.08.2017 Типовой проект 282-3-53.86
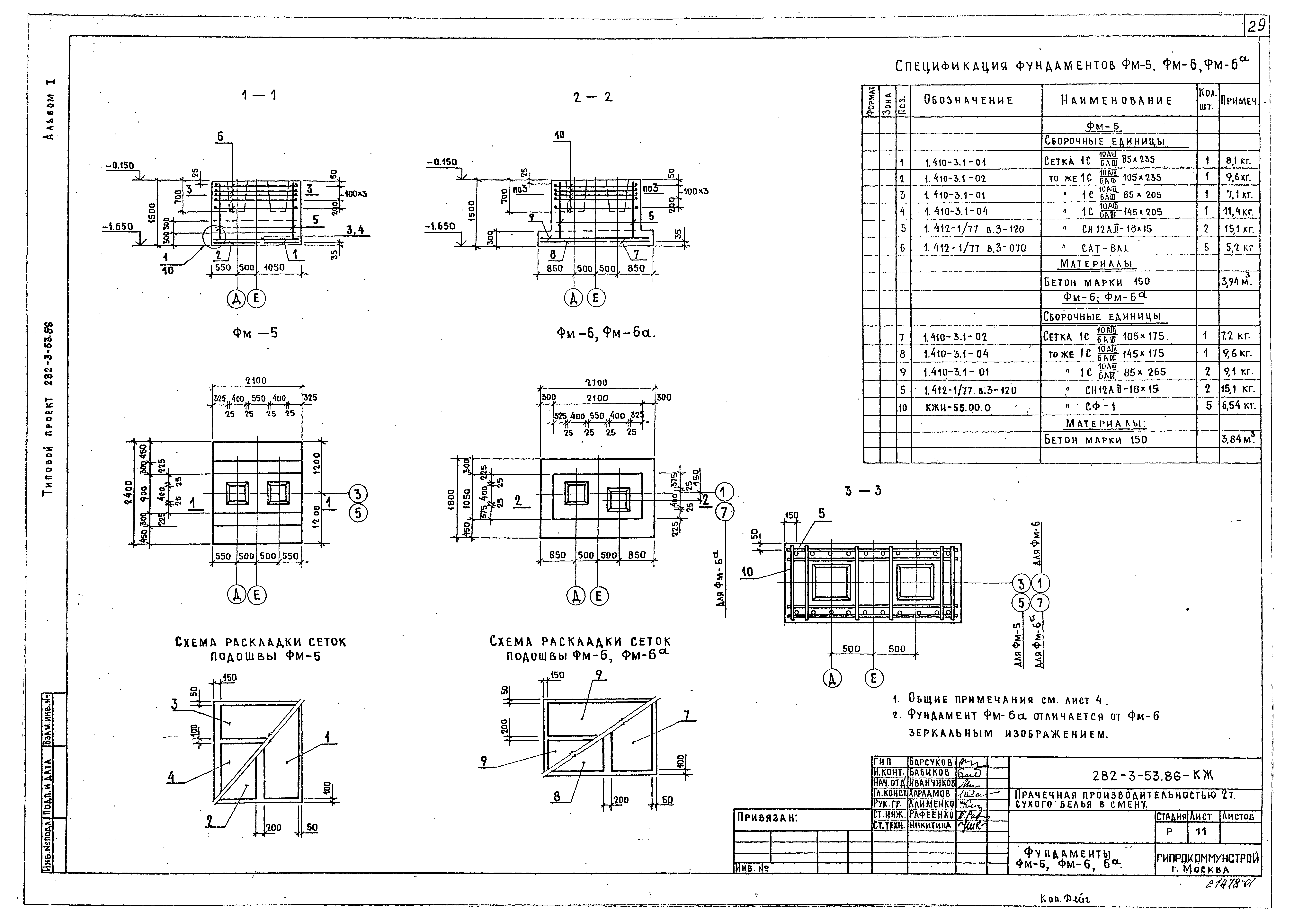
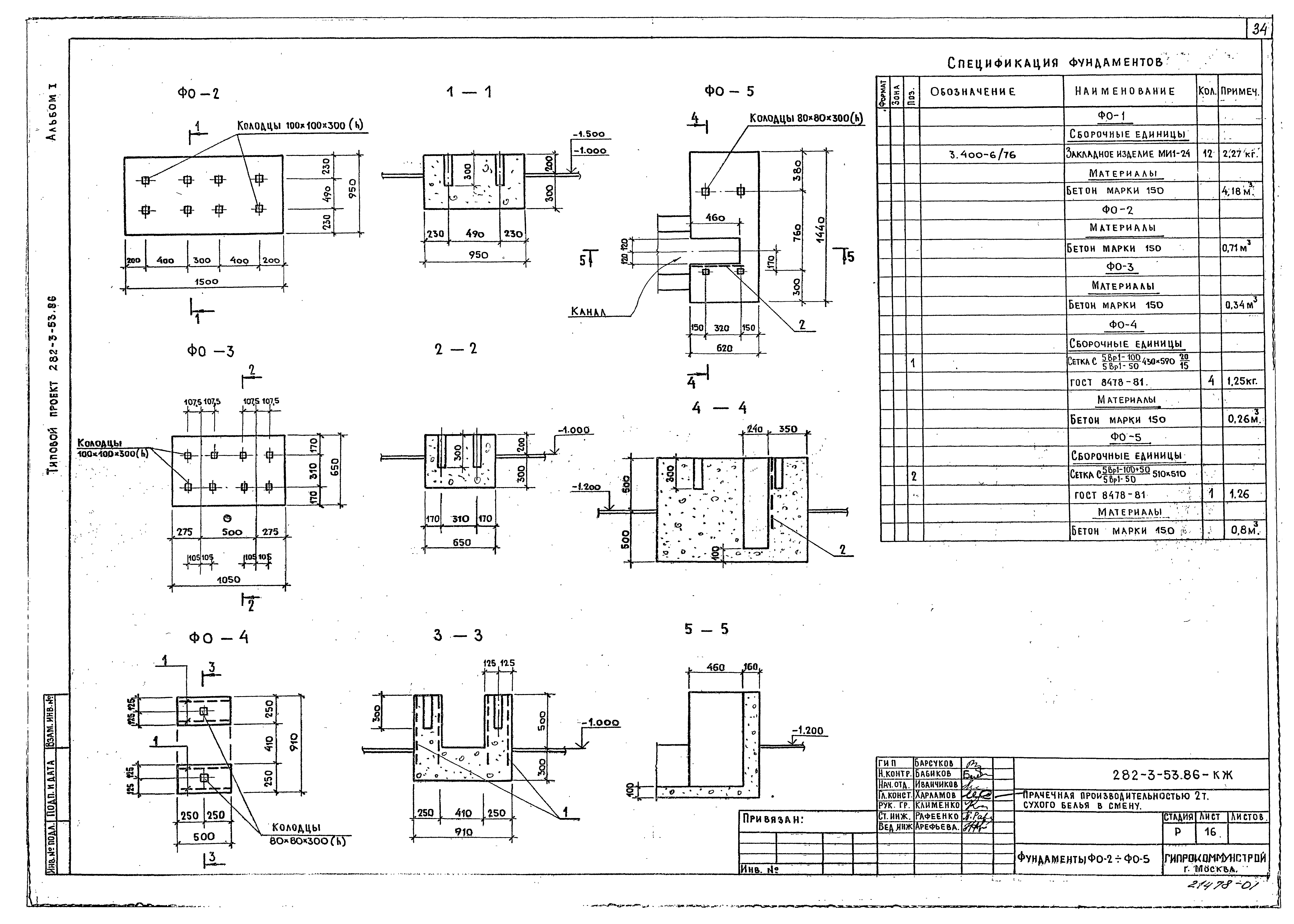
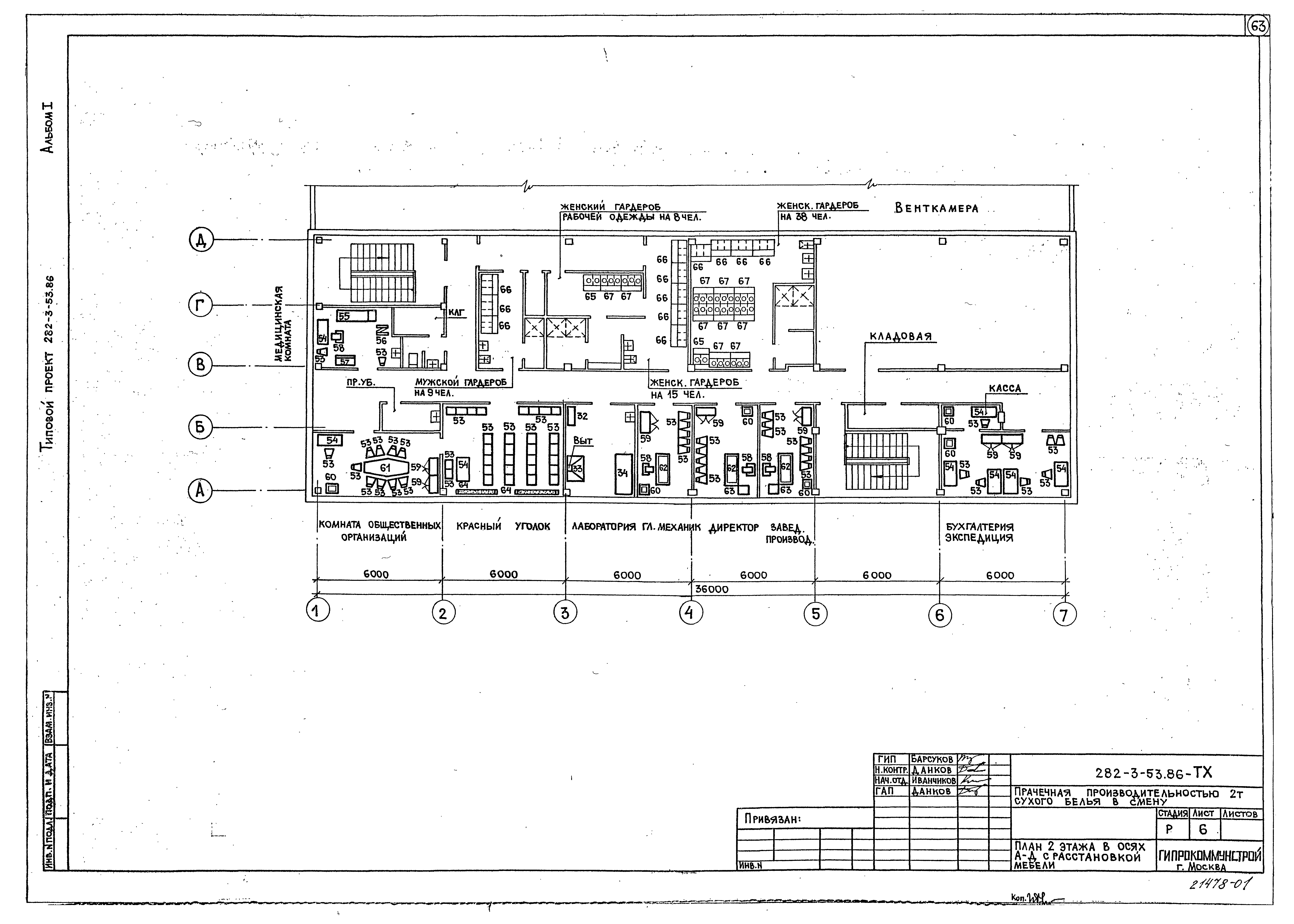
Альбом I. Пояснительная записка. Архитектурные решения. Конструкции железобетонные. Технологические чертежиОбозначение: | Типовой проект 282-3-53.86 | Обозначение англ: | 282-3-53.86 | Статус: | не определен законодательством | Название рус.: | Альбом I. Пояснительная записка. Архитектурные решения. Конструкции железобетонные. Технологические чертежи | Дата добавления в базу: | 01.09.2013 | Дата актуализации: | 05.05.2017 | Дата введения: | 04.07.1986 | Оглавление: | Обложка Титульный лист Содержание альбома Пояснительная записка Архитектурные решения Общие данные План 1 этажа в осях А - И План 1 этажа в осях И - М План 2 этажа Разрезы 1-1, 2-2, 3-3, 4-4, 5-5 Фасады А - М, 1 - 7, 7 - 1, М - А. Схема заполнения оконных проемов План кровли. Детали. Узлы Спецификация сборных перегородок, элементов заполнения проемов. Ведомость проемов Ведомость перемычек. Спецификация перемычек План 1 и 2 этажей в осях А - Д с сантехническими отверстиями Планы полов на отм. 0.000 и 3.300. Экспликация полов. План лотков Монтажные планы перегородок 1 и 2 этажей в осях А - Д Конструкции железобетонные Общие данные Схемы расположения фундаментов и фундаментных балок Узлы фундаментов 1 - 3 Узлы фундаментов 4 - 7 Узлы фундаментов 8 - 10 и элемент схемы №1 Сечения фундаментов 1-1 - 10-10 Фундаменты ФМ-1, ФМ-2 Фундаменты ФМ-3, ФМ-4 Фундаменты ФМ-5, ФМ-6, 6а Фундамент ФМ-7 Нагрузки на фундаменты. Выборка стали на 1 элемент Схема расположения фундаментов под оборудование и каналов между осями А - Д Сечения фундаментов под оборудование и каналов. Фундамент ФО-1 Фундаменты ФО-2 - ФО-5 Фундаменты ФО-6, ФО-7. Схема расположения канала в электрощитовой Схема расположения фундаментов под оборудование, лотков и каналов между осями Е - И. Сечения Фундаменты ФО-8 - ФО-11 Схемы расположения подпольных каналов. Фундаменты ФО-12, ФО-13 Фундаменты ФО-14, ФО-20 Схема расположения фундаментов под оборудование между осями В - Д и 3 - 4. Сечения Бункер мокрого хранения соли. Опалубка Бункер мокрого хранения соли. Армирование Армирование плиты перекрытия бункера. Узлы 1 - 4 Схема расположения элементов перекрытия бункера. Щит ЩД-1 Схема расположения элементов каркаса на отм. 3.300 и 4.200 Схема расположения элементов каркаса на отм. 6.040. Разрезы 1-1 - 5-5 Схема расположения элементов торцевого фахверка. Разрезы 1-1, 2-2 Схема расположения элементов покрытия между осями Е - М. Разрез 1-1 - 3-3 Схемы расположения элементов покрытия и покрытия между осями А - Е Сечения перекрытия и покрытия 1-1 - 5-5. Узлы крепления перегородок Схема расположения стеновых панелей по осям "А" и "Е" Схемы расположения стеновых панелей по осям 1 и 7 в осях А - Д Схемы расположения стеновых панелей по осям М, 7, 1 Детали утепления панелей Металлические лестницы ЛМ-1 - ЛМ-4 Схема расположения элементов монорельса Схема расположения лестниц и ограждений между осями 5 - 7 и Б - Д. Сечения. Деталь 1 Технологические чертежи Общие данные Планы расстановки технологического оборудования прачечной и привязки подводов коммуникаций к оборудованию в осях А - Е и 1 - 7 План расстановки технологического оборудования прачечной в осях Д - М и 1 - 7 План привязки подводов коммуникаций к технологическому оборудованию прачечной в осях А - М и 1 - 7 План 2 этажа в осях А - Д с расстановкой мебели | Разработан: | Гипрокоммунстрой Минжилкомхоза РСФСР
| Утверждён: | 27.06.1985 Минжилкомхоз РСФСР (Russian Federation Minzhilkomkhoz 4-тд)
| Издан: | ЦИТП Госстроя СССР (CITP, Gosstroy (USSR) 1987 г. )
| Расположен в: |
| Заменяет собой: | |
                                                               
|