Информационная система
«Ёшкин Кот»

Скачать базу одним архивом
Скачать обновления
История создания базы
Карта сайта

Скачать Типовой проект 409-28-38 Альбом XI. Часть 1. Чертежи нестандартизированного оборудования

Дата актуализации: 10.08.2017

Типовой проект 409-28-38

Альбом XI. Часть 1. Чертежи нестандартизированного оборудования

Обозначение: Типовой проект 409-28-38
Обозначение англ: 409-28-38
Статус:действует
Название рус.:Альбом XI. Часть 1. Чертежи нестандартизированного оборудования
Дата добавления в базу:01.09.2013
Дата актуализации:05.05.2017
Оглавление:Перечень чертежей
2930/1.000 Конвейер ленточный наклонный
2930/1.000СБ Конвейер ленточный наклонный
2930/1.000ЭЧ Схема электрическая соединений
2930/1.000ВС Ведомость спецификаций
2930/1.000ВП Ведомость покупных изделий
2930/1.000ВМ Ведомость материалов
2930/1.000Д1 Опросный лист
2930/1.010 Рама привода
2930/1.010СБ Рама привода
2930/1.020 Рама концевая
2930/1.020СБ Рама концевая
2930/1.030 Направляющая
2930/1.030СБ Направляющая
2930/1.040 Направляющая
2930/1.040СБ Направляющая
2930/1.050 Секция концевая
2930/1.050СБ Секция концевая
2930/1.060 Секция промежуточная
2930/1.060СБ Секция промежуточная
2930/1.070 Секция промежуточная
2930/1.070СБ Секция промежуточная
2930/1.080 Секция головная
2930/1.080СБ Секция головная
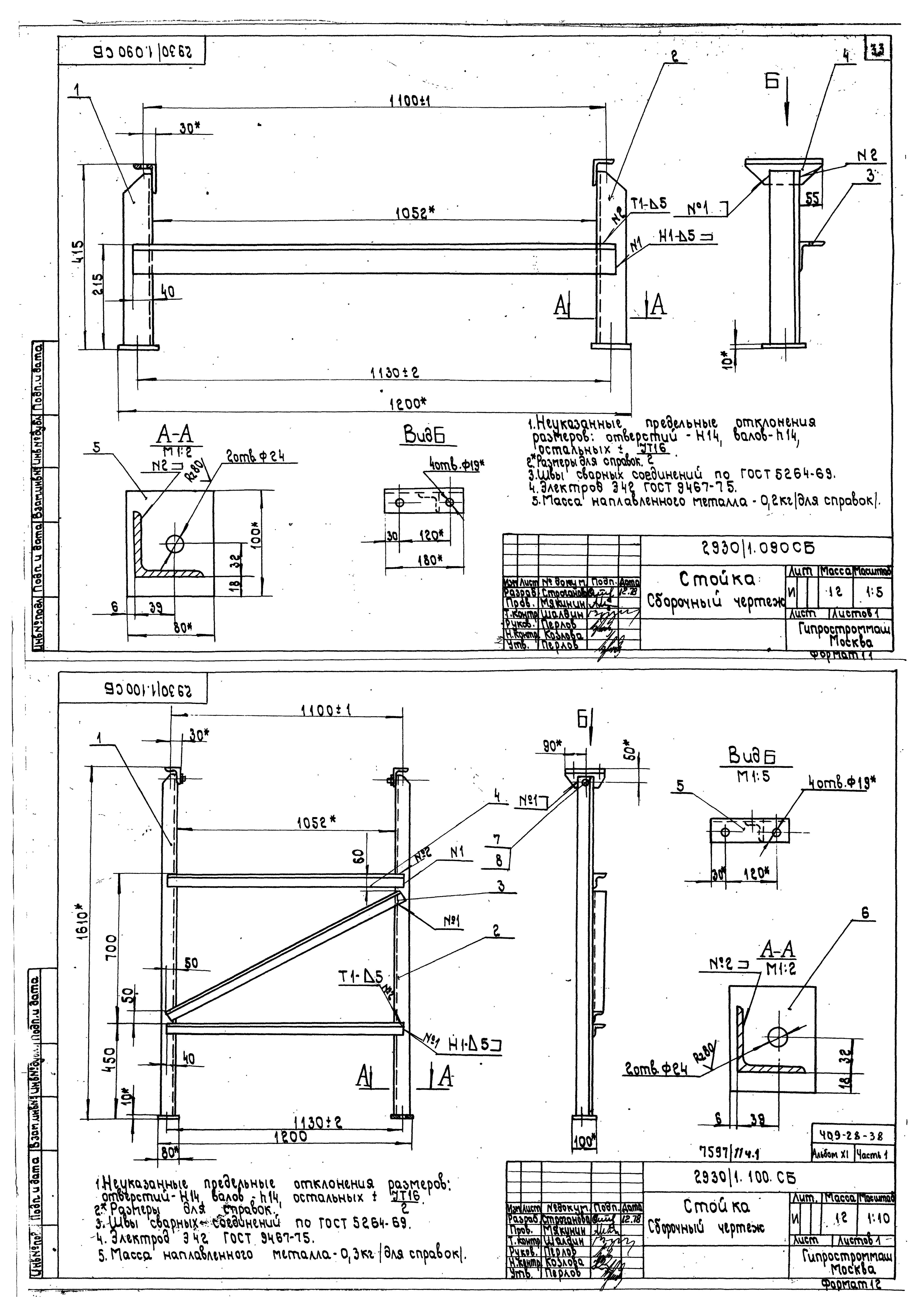
2930/1.090 Стойка
2930/1.090СБ Стойка
2930/1.100 Стойка
2930/1.100СБ Стойка
2930/1.110 Рама натяжного устройства
2930/1.110СБ Рама натяжного устройства
2930/1.120 Воронка
2930/1.120СБ Воронка
2930/1.130 Ограждение
2930/1.130СБ Ограждение
2930/1.140 Ограждение
2930/1.140СБ Ограждение
2930/1.150 Лестница
2930/1.150СБ Лестница
2930/1.160 Ограждение
2930/1.160СБ Ограждение
2930/1.170 Ограждение
2930/1.170СБ Ограждение
2930/1.180 Муфта кулачково-дисковая
2930/1.180СБ Муфта кулачково-дисковая
2930/1.190 Муфта упругая-втулочно-пальцевая
2930/1.190СБ Муфта упругая-втулочно-пальцевая
2930/1.200 Кронштейн
2930/1.200СБ Кронштейн
2930/1.210 Лоток загрузочный
2930/1.210СБ Лоток загрузочный
2930/1.220 Лоток концевой
2930/1.220СБ Лоток концевой
2930/1.230 Датчик наличия материала
2930/1.230СБ Датчик наличия материала
2930/1.240 Электрооборудование
2930/1.240СБ Электрооборудование
2930/1.250 Стенка боковая
2930/1.250СБ Стенка боковая
2930/1.260 Стенка боковая
2930/1.260СБ Стенка боковая
2930/1.270 Стенка
2930/1.270СБ Стенка
2930/1.280 Стенка
2930/1.280СБ Стенка
2930/1.290 Траверса
2930/1.290СБ Траверса
2930/1.300 Поплавок
2930/1.300СБ Поплавок
2930/1.310 Плита
2930/1.310СБ Плита
2930/1.320 Плита
2930/1.320СБ Плита
2930/1.330 Коробка клеммная
2930/1.330СБ Коробка клеммная
2930/1.340 Тройниковое соединение
2930/1.340СБ Тройниковое соединение
2930/1.350 Корпус
2930/1.350СБ Корпус
2930/1.360 Концевое соединение К13
2930/1.360СБ Концевое соединение К13
2930/1.370 Ввод трубы 1
2930/1.370СБ Ввод трубы 1
2930/1.380 Тройник
2930/1.380СБ Тройник
2930/1.390 Концевое соединение
2930/1.390СБ Концевое соединение
2930/1.001 Крышка
2930/1.002 Прокладка
2930/1.003 Пластина
2930/1.004 Болт фундаментный м20х400
2930/1.011 Настил
2930/1.012 Настил
2930/1.013 Настил
2930/1.014 Настил
2930/1.015 Настил
2930/1.016 Настил
2930/1.017 Плита
2930/1.018 Прокладка
2930/1.019 Плита
2930/1.021 Платик
2930/1.022 Ребро
2930/1.023 Ребро
2930/1.024 Косынка
2930/1.025 Косынка
2930/1.026 Платик
2930/1.027 Платик
2930/1.028 Платик
2930/1.029 Балка
2930/1.031 Балка
2930/1.032 Балка
2930/1.033 Балка
2930/1.034 Балка
2930/1.035 Стойка
2930/1.036 Стояк
2930/1.037 Связь
2930/1.038 Связь
2930/1.039 Связь
2930/1.041 Раскос
2930/1.042 Раскос
2930/1.043 Связь
2930/1.044 Связь
2930/1.045 Упор
2930/1.046 Стойка
2930/1.047 Ребро
2930/1.048 Балка
2930/1.049 Упор
2930/1.051 Стойка
2930/1.052 Плита
2930/1.053 Связь
2930/1.054 Упор
2930/1.055 Ребро
2930/1.056 Плита
2930/1.057 Связь
2930/1.058 Стойка
2930/1.059 Плита
2930/1.061 Ребро
2930/1.062 Плита
2930/1.063 Балка
2930/1.064 Связь
2930/1.065 Балка
2930/1.066 Полоса
2930/1.071 Балка
2930/1.081 Балка
2930/1.091 Стойка
2930/1.092 Стойка
2930/1.093 Связь
2930/1.094 Кронштейн
2930/1.095 Основание
2930/1.101 Стойка
2930/1.102 Стойка
2930/1.103 Связь
2930/1.111 Балка
2930/1.112 Ребро
2930/1.113 Плита
2930/1.114 Ребро
2930/1.115 Упор
2930/1.116 Балка
2930/1.121 Стенка
2930/1.122 Ребро
2930/1.123 Стенка
2930/1.124 Крышка
2930/1.125 Опора
2930/1.126 Лапка
2930/1.127 Крышка
2930/1.128 Платик
2930/1.129 Стенка
2930/1.131 Ребро
2930/1.132 Обечайка
2930/1.133 Стенка
2930/1.141 Обечайка
2930/1.142 Стенка
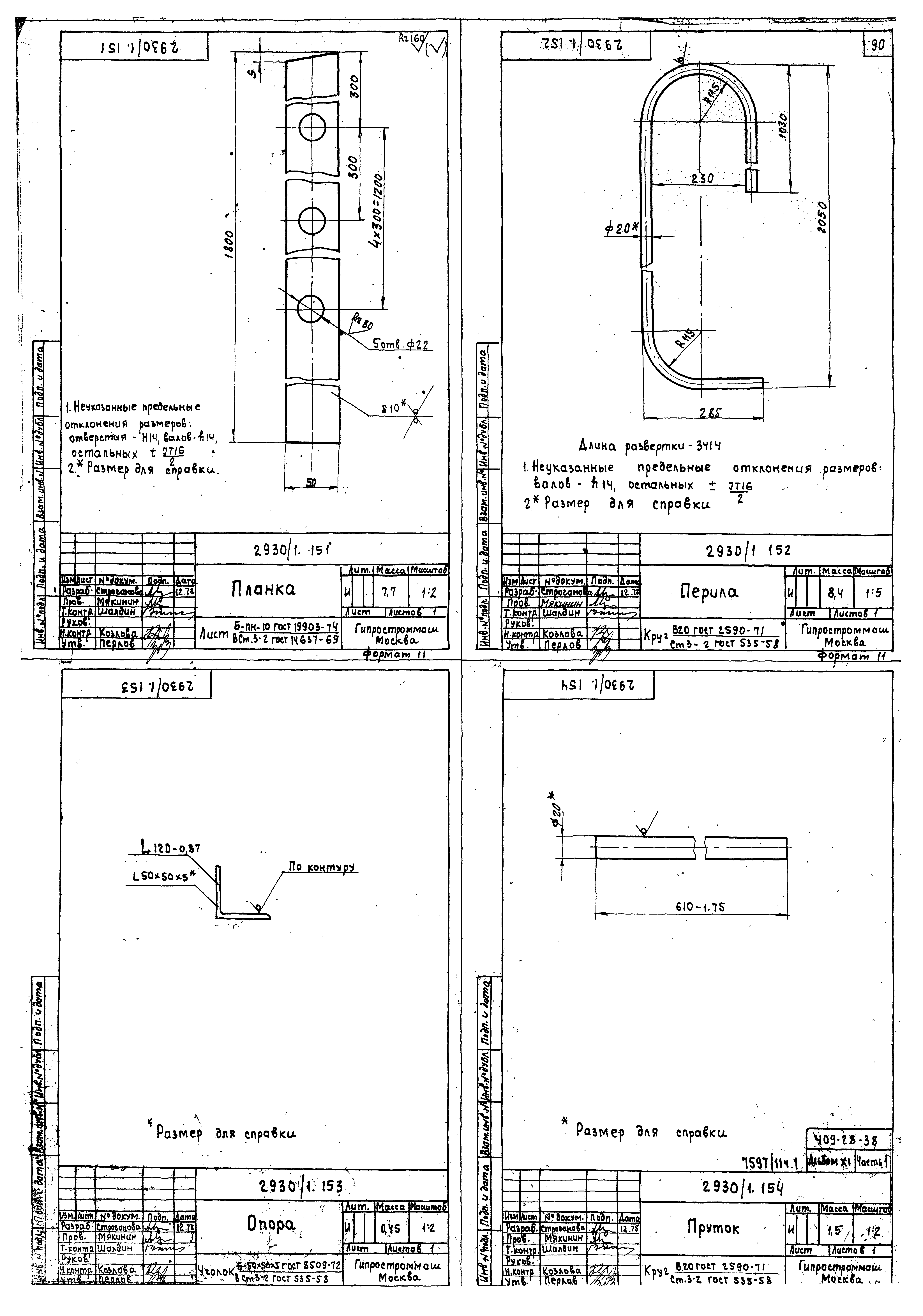
2930/1.151 Планка
2930/1.152 Перила
2930/1.153 Опора
2930/1.154 Пруток
2930/1.155 Пруток
2930/1.156 Плита
2930/1.161 Поручень
2930/1.162 Стойка
2930/1.163 Стойка
2930/1.164 Перемычка
2930/1.165 Перемычка
2930/1.166 Бортик
2930/1.167 Бортик
2930/1.171 Поручень
2930/1.181 Полумуфта
2930/1.182 Диск
2930/1.183 Втулка
2930/1.184 Полумуфта
2930/1.191 Полумуфта
2930/1.192 Полумуфта
2930/1.193 Палец
2930/1.194 Втулка распорная
2930/1.195 Втулка упругая
2930/1.201 Кронштейн
2930/1.202 Ребро
2930/1.203 Платик
2930/1.211 Стенка
2930/1.212 Фартук
2930/1.213 Накладка
2930/1.214 Фартук
2930/1.215 Накладка
2930/1.216 Стойка
2930/1.221 Накладка
2930/1.222 Фартук
2930/1.231 Кулачок
2930/1.232 Тяга
2930/1.233 Груз
2930/1.241 Плита
2930/1.242 Скоба
2930/1.243 Скоба
2930/1.244 Скоба
2930/1.245 Скоба
2930/1.251 Стенка
2930/1.252 Проушина
2930/1.261 Стенка
2930/1.271 Стенка
2930/1.272 Косынка
2930/1.281 Стенка
2930/1.291 Ось
2930/1.292 Патрубок
2930/1.293 Ось
2930/1.294 Связь
2930/1.301 Штанга
2930/1.302 Платик
2930/1.311 Плита
2930/1.312 Бобышка
2930/1.321 Планка
2930/1.331 Крышка
2930/1.332 Прокладка
2930/1.351 Платик
2930/1.352 Бобышка
2930/1.353 Обечайка
2930/1.354 Пояс
2930/1.355 Дно
2930/1.361 Корпус
2930/1.362 Штуцер
2930/1.363 Шайба
2930/1.364 Прокладка
2930/1.371 Втулка
2930/1.381 Корпус
2930/1.382 Крышка
2930/1.383 Прокладка
2930/1.391 Корпус
Разработан: Гипростроммаш
Утверждён:23.09.1979 Госстрой СССР (Государственный комитет Совета Министров СССР по делам строительства) (USSR Gosstroy 43)
Расположен в:Техническая документация Строительство Справочные документы Типовые строительные конструкции, изделия и узлы Общероссийский строительный каталог Промышленные предприятия, здания и сооружения Предприятия, здания и сооружения промышленности и электроэнергетики Строительная индустрия и промышленность строительных материалов Производство строительных материалов и изделий Производство бетона, раствора и асфальта
Типовой проект 409-28-38Типовой проект 409-28-38Типовой проект 409-28-38Типовой проект 409-28-38Типовой проект 409-28-38Типовой проект 409-28-38Типовой проект 409-28-38Типовой проект 409-28-38Типовой проект 409-28-38Типовой проект 409-28-38Типовой проект 409-28-38Типовой проект 409-28-38Типовой проект 409-28-38Типовой проект 409-28-38Типовой проект 409-28-38Типовой проект 409-28-38Типовой проект 409-28-38Типовой проект 409-28-38Типовой проект 409-28-38Типовой проект 409-28-38Типовой проект 409-28-38Типовой проект 409-28-38Типовой проект 409-28-38Типовой проект 409-28-38Типовой проект 409-28-38Типовой проект 409-28-38Типовой проект 409-28-38Типовой проект 409-28-38Типовой проект 409-28-38Типовой проект 409-28-38Типовой проект 409-28-38Типовой проект 409-28-38Типовой проект 409-28-38Типовой проект 409-28-38Типовой проект 409-28-38Типовой проект 409-28-38Типовой проект 409-28-38Типовой проект 409-28-38Типовой проект 409-28-38Типовой проект 409-28-38Типовой проект 409-28-38Типовой проект 409-28-38Типовой проект 409-28-38Типовой проект 409-28-38Типовой проект 409-28-38Типовой проект 409-28-38Типовой проект 409-28-38Типовой проект 409-28-38Типовой проект 409-28-38Типовой проект 409-28-38Типовой проект 409-28-38Типовой проект 409-28-38Типовой проект 409-28-38Типовой проект 409-28-38Типовой проект 409-28-38Типовой проект 409-28-38Типовой проект 409-28-38Типовой проект 409-28-38Типовой проект 409-28-38Типовой проект 409-28-38Типовой проект 409-28-38Типовой проект 409-28-38Типовой проект 409-28-38Типовой проект 409-28-38Типовой проект 409-28-38Типовой проект 409-28-38Типовой проект 409-28-38Типовой проект 409-28-38Типовой проект 409-28-38Типовой проект 409-28-38Типовой проект 409-28-38Типовой проект 409-28-38Типовой проект 409-28-38Типовой проект 409-28-38Типовой проект 409-28-38Типовой проект 409-28-38Типовой проект 409-28-38Типовой проект 409-28-38Типовой проект 409-28-38Типовой проект 409-28-38Типовой проект 409-28-38Типовой проект 409-28-38Типовой проект 409-28-38Типовой проект 409-28-38Типовой проект 409-28-38Типовой проект 409-28-38Типовой проект 409-28-38Типовой проект 409-28-38Типовой проект 409-28-38Типовой проект 409-28-38Типовой проект 409-28-38Типовой проект 409-28-38Типовой проект 409-28-38Типовой проект 409-28-38Типовой проект 409-28-38

© 2013 Ёшкин Кот :-) Карта сайта