Скачать Типовой проект 407-3-476.13.87 Альбом 7. Металлические изделияДата актуализации: 10.08.2017 Типовой проект 407-3-476.13.87
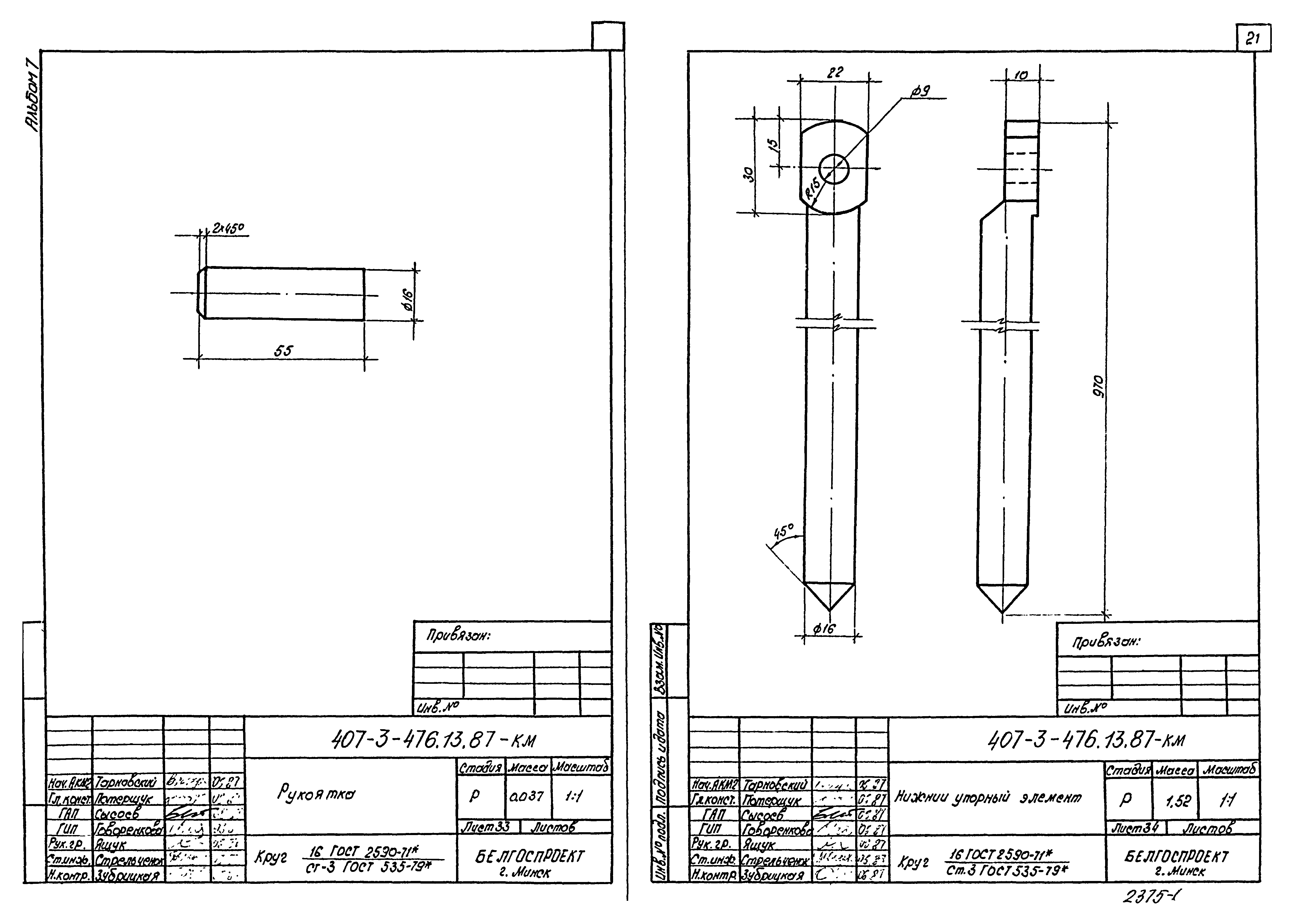
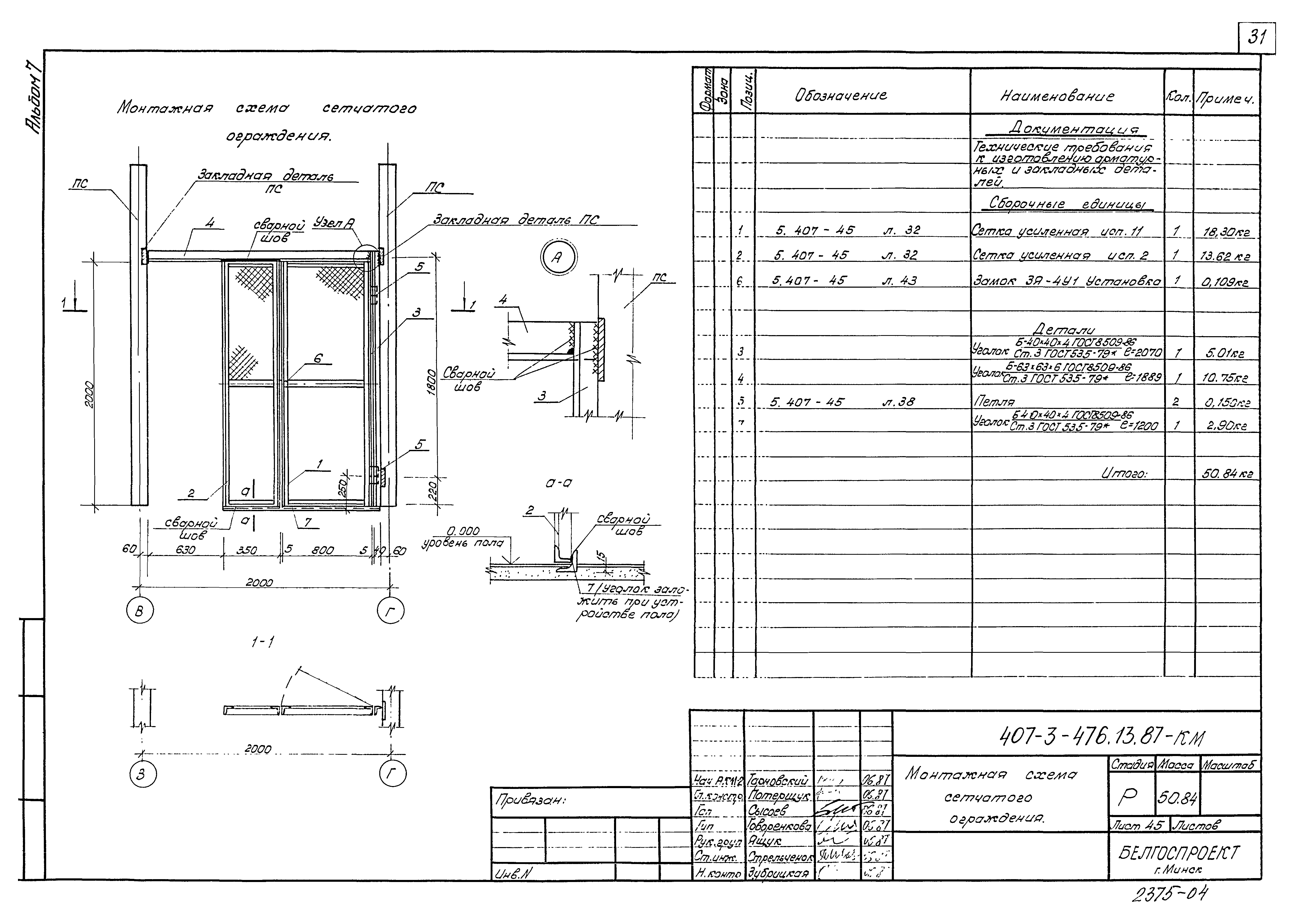
Альбом 7. Металлические изделияОбозначение: | Типовой проект 407-3-476.13.87 | Обозначение англ: | 407-3-476.13.87 | Статус: | действует | Название рус.: | Альбом 7. Металлические изделия | Дата добавления в базу: | 01.09.2013 | Дата актуализации: | 05.05.2017 | Оглавление: | Чертежи основного комплекта марки КМ Общие данные Дверь Д1 Спецификация на дверь Д1 Дверь Д2 Спецификация на дверь Д2 Дверь Д1. Узел "1", сечение 2-2 Дверь Д2. Узел "2", сечение 2-2 Полотно дверное правое Полотно дверное левое Стойка рамы Скоба Уголок рамы двери Д1 Угольник Уголок рамы двери Д2 Уголок жесткости Завеса Шарнир завесы Верхний упорный элемент Защелка сборная двери Д1 Защелка двери Д1 Планка под замок Защелка сборная двери Д2 Защелка двери Д2 Прокладка Шпингалет сварной Спецификация на шпингалет сварной Скоба Задвижка Упор Рукоятка Нижний упорный элемент Направляющий элемент Ручка замка Рамка Р1, Р2. Изделие закладное МН6, анкер ММ9, ММ11 Люки МП1, МП2, МП3, МП5. Изделия закладные МН12, МН5 Люки МП7, МП8, МП9, МП10 Изделие закладное МН1 - МН4, МН19 Изделие закладное МН8, МН9, МН10, МН11, МН13 Люк МП6. Изделие закладное МН14, МН15, МН16, МН17 Изделие металлическое МС1, МС2, МС6, МС7, ММ1 Каркас К1, К2 Монтажная схема сетчатого ограждения Каркас К4, К4, К5, К6 Каркас К7, К8, К9, К10 Каркас К11, К12, К13, К14 | Разработан: | Белгоспроект
| Утверждён: | 14.12.1987 Госстрой БССР (BSSR Gosstroy )
| Расположен в: |
| Заменяет собой: | - Типовой проект 407-3-316 «Трансформаторные подстанции ТП-2х160, ТП-2х250, ТП-2х400, ТП-2х630, ТП-2х1000 кВА. Стены из панелей»
|
                                 
|