Скачать Типовой проект 407-3-476.13.87 Альбом 6. Железобетонные изделияДата актуализации: 10.08.2017 Типовой проект 407-3-476.13.87
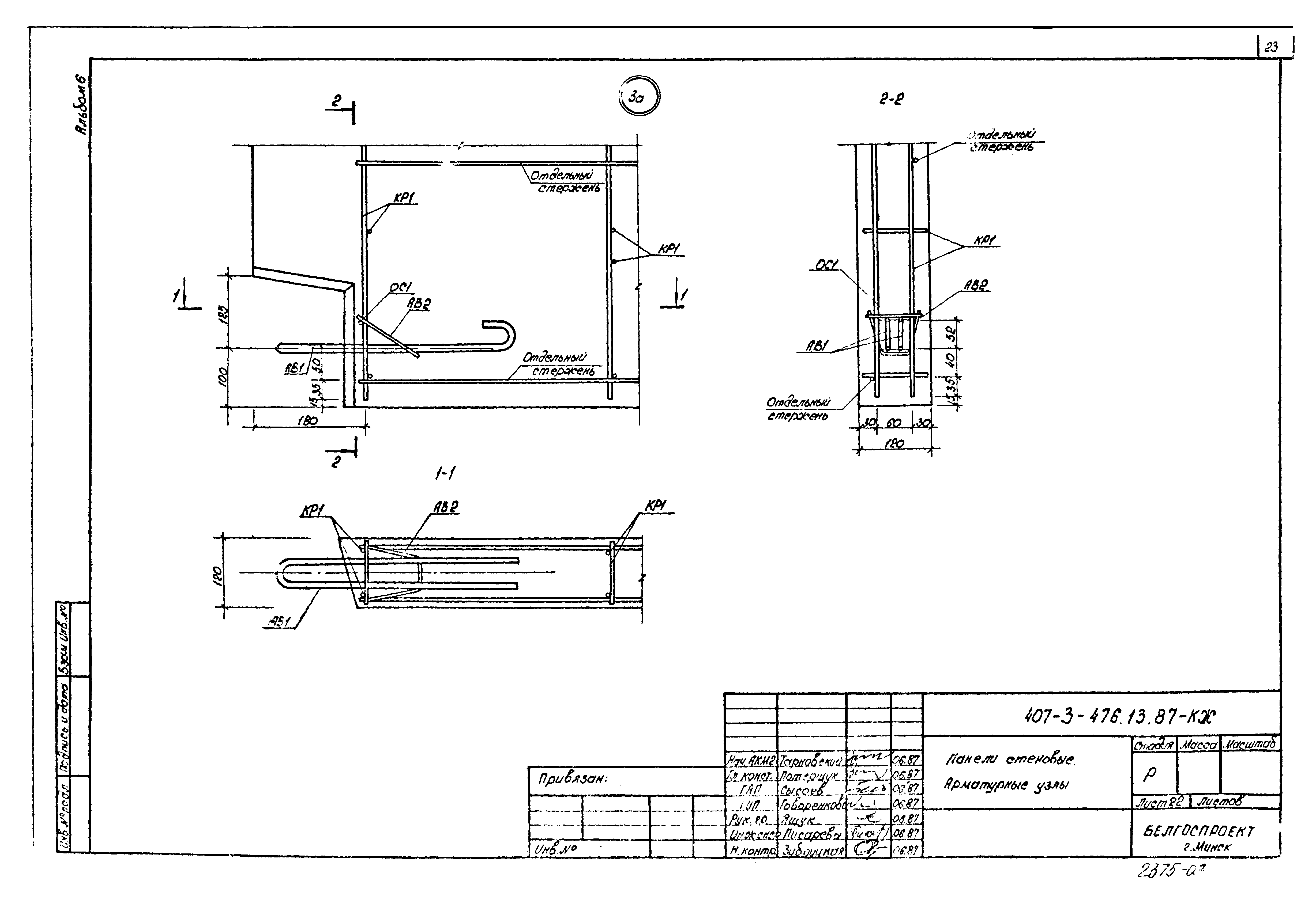
Альбом 6. Железобетонные изделияОбозначение: | Типовой проект 407-3-476.13.87 | Обозначение англ: | 407-3-476.13.87 | Статус: | действует | Название рус.: | Альбом 6. Железобетонные изделия | Дата добавления в базу: | 01.09.2013 | Дата актуализации: | 05.05.2017 | Оглавление: | Чертежи основного комплекта марки КЖ Общие данные Панель стеновая ПС1 Панели стеновые ПС1-2, (ПС1-3) Панель стеновая ПС2 Панель стеновая ПС2-2 Панель стеновая ПС2-3 Панели стеновые ПС3, ПС3-2, ПС3-3 (зерк.) Панели стеновые ПС3-4, ПС3-5 Панель стеновая ПС4 Панели стеновые ПС5, ПС5-5 (зерк.) Панель стеновая ПС5-2 Панель стеновая ПС5-3 Панели стеновые ПС5-4, (ПС5-4А) Панели стеновые ПС6, (ПС6А) Панели стеновые ПС8, ПС8-2 (зерк.) Панели стеновые ПС8-3, ПС8-4 (зерк.) Панели стеновые. Опалубочные узлы Панели стеновые. Арматурные узлы Панели стеновые. Арматурные изделия Панели стеновые. Ведомость расхода стали на изделие Панели стеновые. Вариант подъемных петель Панели покрытия ПП1, ПП1-2 (зерк.) Панели покрытия ПП2, ПП2-2 (зерк.) Панели покрытия ПП3, ПП3-2 (зерк.) Панели покрытия. Опалубочные узлы Панели покрытия. Арматурные изделия Панели покрытия. Ведомость расхода стали на изделие. Вариант подъемных петель Панель парапетная ПР1 Панель парапетная ПР2 Панель парапетная ПР3 Панель парапетная ПР4 Панель парапетная ПР5 Панель парапетная ПР6 Панель парапетная ПР7 Панель парапетная ПР8 Панель парапетная ПР9 Панели парапетные. Арматурные изделия Панели парапетные. Ведомость арматурных изделий Панели парапетные. Ведомость расхода стали на изделие Панели парапетные. Вариант подъемных петель | Разработан: | Белгоспроект
| Утверждён: | 14.12.1987 Госстрой БССР (BSSR Gosstroy )
| Расположен в: |
| Заменяет собой: | - Типовой проект 407-3-316 «Трансформаторные подстанции ТП-2х160, ТП-2х250, ТП-2х400, ТП-2х630, ТП-2х1000 кВА. Стены из панелей»
|
                                                  
|