Информационная система
«Ёшкин Кот»

Скачать базу одним архивом
Скачать обновления
История создания базы
Карта сайта

Скачать Типовой проект 271-23-17.84 Альбом III. Изделия железобетонные заводского изготовления. Изделия монолитных железобетонных конструкций. Изделия металлические. Изделия деревянные

Дата актуализации: 10.08.2017

Типовой проект 271-23-17.84

Альбом III. Изделия железобетонные заводского изготовления. Изделия монолитных железобетонных конструкций. Изделия металлические. Изделия деревянные

Обозначение: Типовой проект 271-23-17.84
Обозначение англ: 271-23-17.84
Статус:не определен законодательством
Название рус.:Альбом III. Изделия железобетонные заводского изготовления. Изделия монолитных железобетонных конструкций. Изделия металлические. Изделия деревянные
Дата добавления в базу:01.09.2013
Дата актуализации:05.05.2017
Дата введения:30.01.1985
Оглавление:Титульный лист
Содержание альбома
271-23-17.84-АС1.И1-00.00.00 ТБ Ведомость чертежей
271-23-17.84-АС1.И1-01.00.00 Панель стеновая (ПСП30.10.2.6-П-А; ПСП30.10.3.1-П-А; 2ПСП33.10.2.6-П-А; 2ПСП33.10.3.1-П-А)
271-23-17.84-АС1.И1-02.00.00 Панель стеновая (2ПС33.33.3,5-П-А; 2ПС33.33.4,0-П-А)
271-23-17.84-АС1.И1-03.00.00 Панель стеновая (2ПСО30.33.3,5-П-2-А; 2ПСО30.33.4,0-П-2-А)
271-23-17.84-АС1.И1-04.00.00 Панель стеновая (4ПСО30.33.3,5-П-1-Г; 2ПСО30.33.4,0-П-1-Г)
271-23-17.84-АС1.И1-05.00.00 Панель стеновая (4ПСО30.33.3,5-П-1-Б; 4ПСО30.33.4,0-П-1-Б)
271-23-17.84-АС1.И1-06.00.00 Элемент входа ЭВ13.35.0,6
271-23-17.84-АС1.И1-06.01.00 Каркас пространственный КП1
271-23-17.84-АС1.И1-06.02.00 Каркас плоский КР1
271-23-17.84-АС1.И1-06.32.00 Каркас плоский КР2
271-23-17.84-АС1.И1-07.00.00 Панель стеновая (И4ПСД30.33.3,5-П-2; И4ПСД30.33.4,0-П-2)
271-23-17.84-АС1.И1-07.01.00 Каркас пространственный (И4КПД30.3,5-2; И4КПД30.4,0-2)
271-23-17.84-АС1.И1-07.02.00 Изделие закладное (ЗД2, ЗД3)
271-23-17.84-АС1.И1-07.02.00СБ Изделие закладное (ЗД2, ЗД3). Сборочный чертеж
271-23-17.84-АС1.И1-07.03.00 Изделие закладное ЗД1
271-23-17.84-АС1.И1-08.00.00 Изделие закладное ЗД5
271-23-17.84-АС1.И1-09.00.00 Панель стеновая (И2СПД30.33.3,5-П-2; И2СПД30.33.4,0-П-2)
271-23-17.84-АС1.И1-09.01.00 Каркас пространственный (И2КПД30.3,5-2; И2КПД30.4,0-2)
271-23-17.84-АС1.И1-09.02.00 Каркас плоский (ИКР-44, ИКР-45)
271-23-17.84-АС1.И1-09.02.00СБ Каркас плоский (ИКР-44, ИКР-45). Сборочный чертеж
271-23-17.84-АС1.И1-09.03.00 Сетка ИС29
271-23-17.84-АС1.И1-06.04.00 Изделие закладное ЗД4
271-23-17.84-АС1.И1-10.00.00 Панель стеновая (ПС30.33.3,5-П-А; ПС30.33.4,0-П-А)
271-23-17.84-АС1.И1-11.00.00 Панель перекрытия (ПР60.15…; ПР30.15…)
271-23-17.84-АС1.И1-11.00.00СБ Панель перекрытия (ПР60.15…; ПР30.15…). Сборочный чертеж
271-23-17.84-АС1.И1-11.01.00 Сетка (С-1, С-2)
271-23-17.84-АС1.И1-12.00.00 Отделка панели (4ПСО30.33.3,5-П-1-Б; 4ПСО30.33.4,0-П-1-Б)
271-23-17.84-АС1.И1-13.00.00 Отделка панели (И4ПСД30.33.3,5-П-2; И4ПСД30.33.4,0-П-2)
271-23-17.84-АС1.И1-14.00.00 Панели стеновые наружные (4ПСО30.33.3,5-П-1*; 4ПСО30.33.4,0-П-1*; 4ПСО30.33.3,5-П-1-Г*; 4ПСО30.33.4,0-П-1-Г*; 1ПСО33.33.3,5-П-1*; 1ПСО33.33.4,0-П-1*; 2ПСО33.33.3,5-П-1*; 2ПСО33.33.4,0-П-1*)
271-23-17.84-АС1.И2-00.00.00 ТБ Ведомость чертежей
271-23-17.84-АС1.И2-01.00.00 Сетка СФ1
271-23-17.84-АС1.И2-02.00.00 Каркас пространственный (ОК1, ОК2)
271-23-17.84-АС1.И2-02.01.00 Плоский каркас (КР-1, КР-2)
271-23-17.84-АС1.И2-02.01.00СБ Плоский каркас (КР-1, КР-2). Сборочный чертеж
271-23-17.84-АС1.И2-03.00.00 Рама Р-5
271-23-17.84-АС1.И2-04.00.00 Каркас К-1
271-23-17.84-АС1.И2-05.00.00 Закладная деталь ЗД-6
271-23-17.84-АС1.И2-06.00.00 Монтажная петля (МП1, МП2)
271-23-17.84-АС1.И2-07.00.00 Рама Р-6
271-23-17.84-АС1.И2-08.00.00 Каркас К-2
271-23-17.84-АС1.И3-00.00 ТБ Ведомость чертежей
271-23-17.84-АС1.И3-01.00 Изделие закладное ЗДВ1
271-23-17.84-АС1.И3-02.00 Изделие закладное ЗДВ2
271-23-17.84-АС1.И3-03.00 Изделие закладное ЗДВ3
271-23-17.84-АС1.И3-04.00 Изделие закладное (ЗДЛ1 - ЗДЛ4)
271-23-17.84-АС1.И3-04.00СБ Изделие закладное (ЗДЛ1 - ЗДЛ4). Сборочный чертеж
271-23-17.84-АС1.И3-05.00 Изделие закладное (ЗДЛ5; ЗДЛ6; ЗДЛ7)
271-23-17.84-АС1.И3-05.00СБ Изделие закладное (ЗДЛ5; ЗДЛ6; ЗДЛ7). Сборочный чертеж
271-23-17.84-АС1.И3-06.00 Изделие закладное ЗДЛ6
271-23-17.84-АС1.И3-07.00 Изделие закладное ЗДЛ10
271-23-17.84-АС1.И3-08.00 Изделие закладное ЗДЛ9
271-23-17.84-АС1.И3-09.00 Изделие закладное (ЗДЛ11 - ЗДЛ14)
271-23-17.84-АС1.И3-09.00СБ Изделие закладное (ЗДЛ11 - ЗДЛ14). Сборочный чертеж
271-23-17.84-АС1.И3-10.00 Рамка металлическая (Р1 - Р4)
271-23-17.84-АС1.И3-10.00СБ Рамка металлическая (Р1 - Р4). Сборочный чертеж
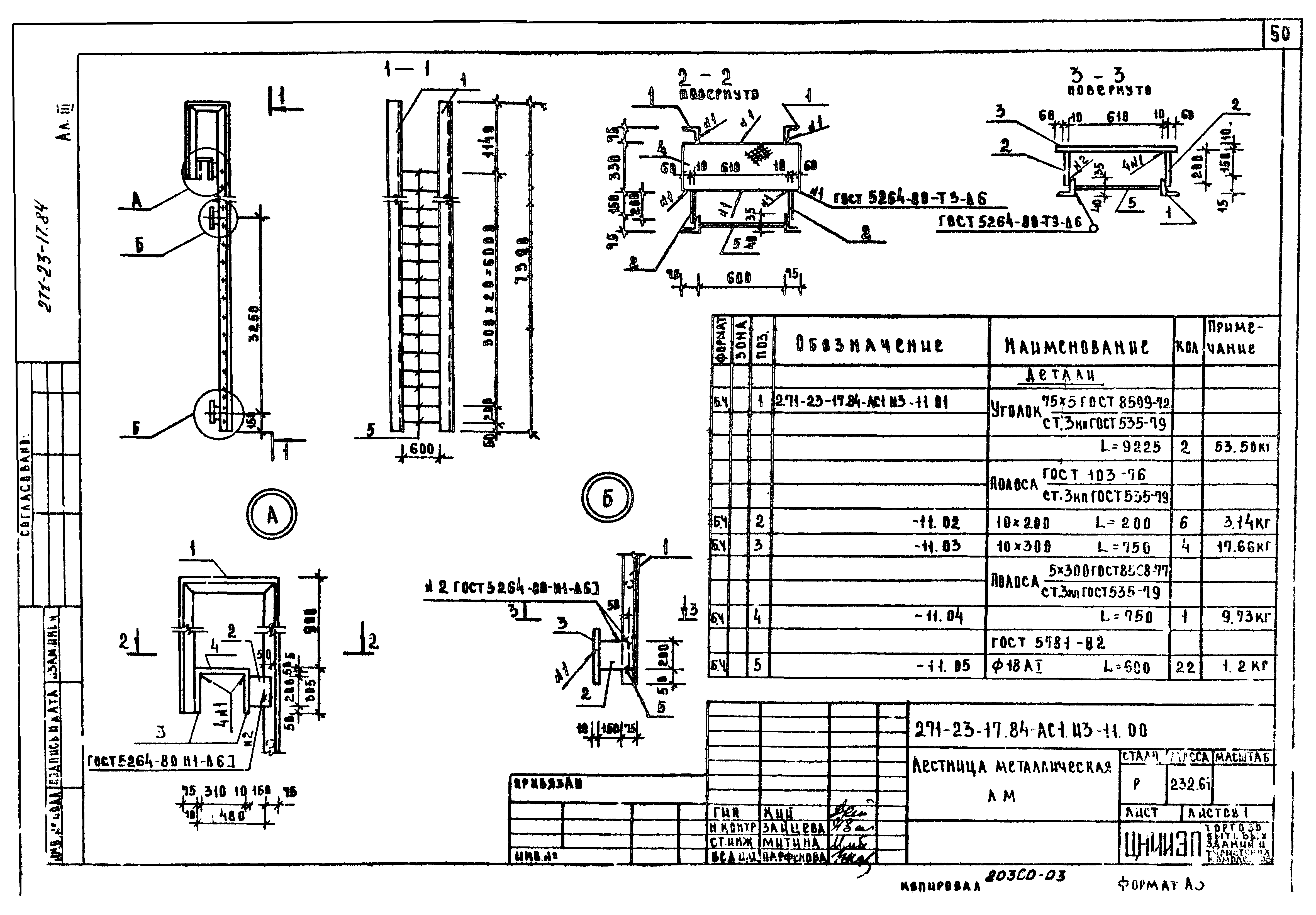
271-23-17.84-АС1.И3-11.00 Лестница металлическая ЛМ
271-23-17.84-АС1.И3-12.00 Анкер (А1, А2)
271-23-17.84-АС1.И3-12.00СБ Анкер (А1, А2). Сборочный чертеж
271-23-17.84-АС1.И3-13.00 Кронштейн КР-7м
271-23-17.84-АС1.И4-00.00 ТБ Ведомость чертежей
271-23-17.84-АС1.И4-01.00 Прилавок откидной П-1
271-23-17.84-АС1.И4-02.00 Передаточное окно ОП
Разработан: ЦНИИЭП торгово-бытовых зданий и туристских комплексов
Утверждён:12.11.1981 Госгражданстрой (Gosgrazhdanstroy 317)
Расположен в:Техническая документация Строительство Справочные документы Типовые строительные конструкции, изделия и узлы Общероссийский строительный каталог Общественные здания в городах и поселках городского типа Предприятия торговли и общественного питания. Общественные центры Предприятия общественного питания Комплексные предприятия общественного питания
Типовой проект 271-23-17.84Типовой проект 271-23-17.84Типовой проект 271-23-17.84Типовой проект 271-23-17.84Типовой проект 271-23-17.84Типовой проект 271-23-17.84Типовой проект 271-23-17.84Типовой проект 271-23-17.84Типовой проект 271-23-17.84Типовой проект 271-23-17.84Типовой проект 271-23-17.84Типовой проект 271-23-17.84Типовой проект 271-23-17.84Типовой проект 271-23-17.84Типовой проект 271-23-17.84Типовой проект 271-23-17.84Типовой проект 271-23-17.84Типовой проект 271-23-17.84Типовой проект 271-23-17.84Типовой проект 271-23-17.84Типовой проект 271-23-17.84Типовой проект 271-23-17.84Типовой проект 271-23-17.84Типовой проект 271-23-17.84Типовой проект 271-23-17.84Типовой проект 271-23-17.84Типовой проект 271-23-17.84Типовой проект 271-23-17.84Типовой проект 271-23-17.84Типовой проект 271-23-17.84Типовой проект 271-23-17.84Типовой проект 271-23-17.84Типовой проект 271-23-17.84Типовой проект 271-23-17.84Типовой проект 271-23-17.84Типовой проект 271-23-17.84Типовой проект 271-23-17.84Типовой проект 271-23-17.84Типовой проект 271-23-17.84Типовой проект 271-23-17.84Типовой проект 271-23-17.84Типовой проект 271-23-17.84Типовой проект 271-23-17.84Типовой проект 271-23-17.84Типовой проект 271-23-17.84Типовой проект 271-23-17.84Типовой проект 271-23-17.84Типовой проект 271-23-17.84Типовой проект 271-23-17.84Типовой проект 271-23-17.84Типовой проект 271-23-17.84Типовой проект 271-23-17.84Типовой проект 271-23-17.84Типовой проект 271-23-17.84Типовой проект 271-23-17.84Типовой проект 271-23-17.84

© 2013 Ёшкин Кот :-) Карта сайта