Информационная система
«Ёшкин Кот»

Скачать базу одним архивом
Скачать обновления
История создания базы
Карта сайта

Скачать Типовой проект 271-23-17.84 Альбом I. Архитектурно-строительные решения. Технология и механизация. Витражи

Дата актуализации: 10.08.2017

Типовой проект 271-23-17.84

Альбом I. Архитектурно-строительные решения. Технология и механизация. Витражи

Обозначение: Типовой проект 271-23-17.84
Обозначение англ: 271-23-17.84
Статус:не определен законодательством
Название рус.:Альбом I. Архитектурно-строительные решения. Технология и механизация. Витражи
Дата добавления в базу:01.09.2013
Дата актуализации:05.05.2017
Дата введения:30.01.1985
Оглавление:Архитектурно-строительные решения
   Общие данные
   План технического подполья
   План 1 этажа
   План 2 этажа
   Фасады 1 - 11, 11 - 1
   Фасады А - Г, Г - А
   Разрезы 1-1, 2-2. Фрагменты фасадов 1, 2, 3
   Фрагменты плана 1, 4, 5, 6
   Фрагменты плана 2, 3 (охлаждаемые камеры)
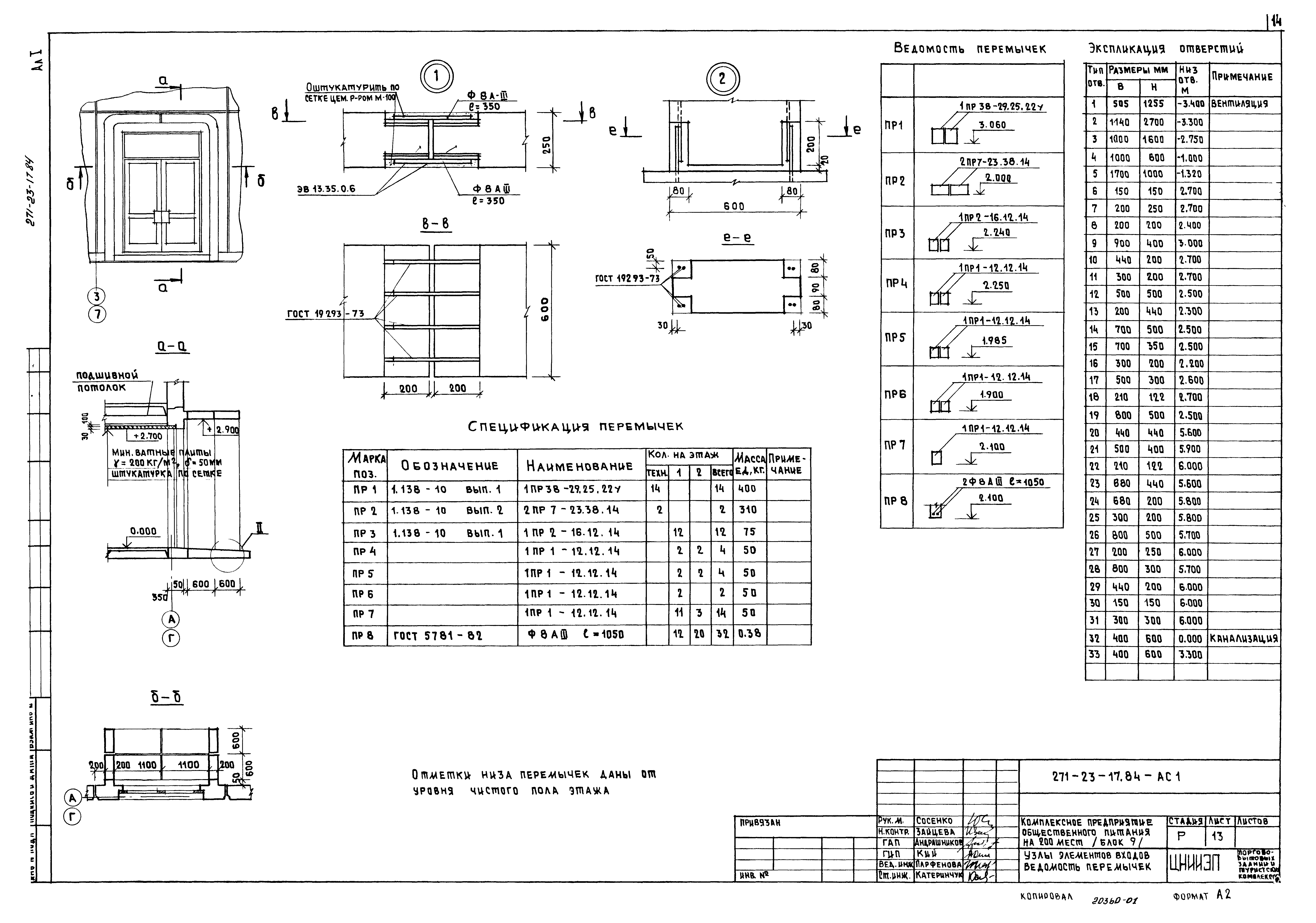
   Узлы элементов входов, ведомость перемычек
   План кровли
   План потолка зала кафе
   Развертка стены и план расстановки столов в зале кафе
   План потолка зала ресторана
   Развертка стены и план расстановки столов в зале ресторана
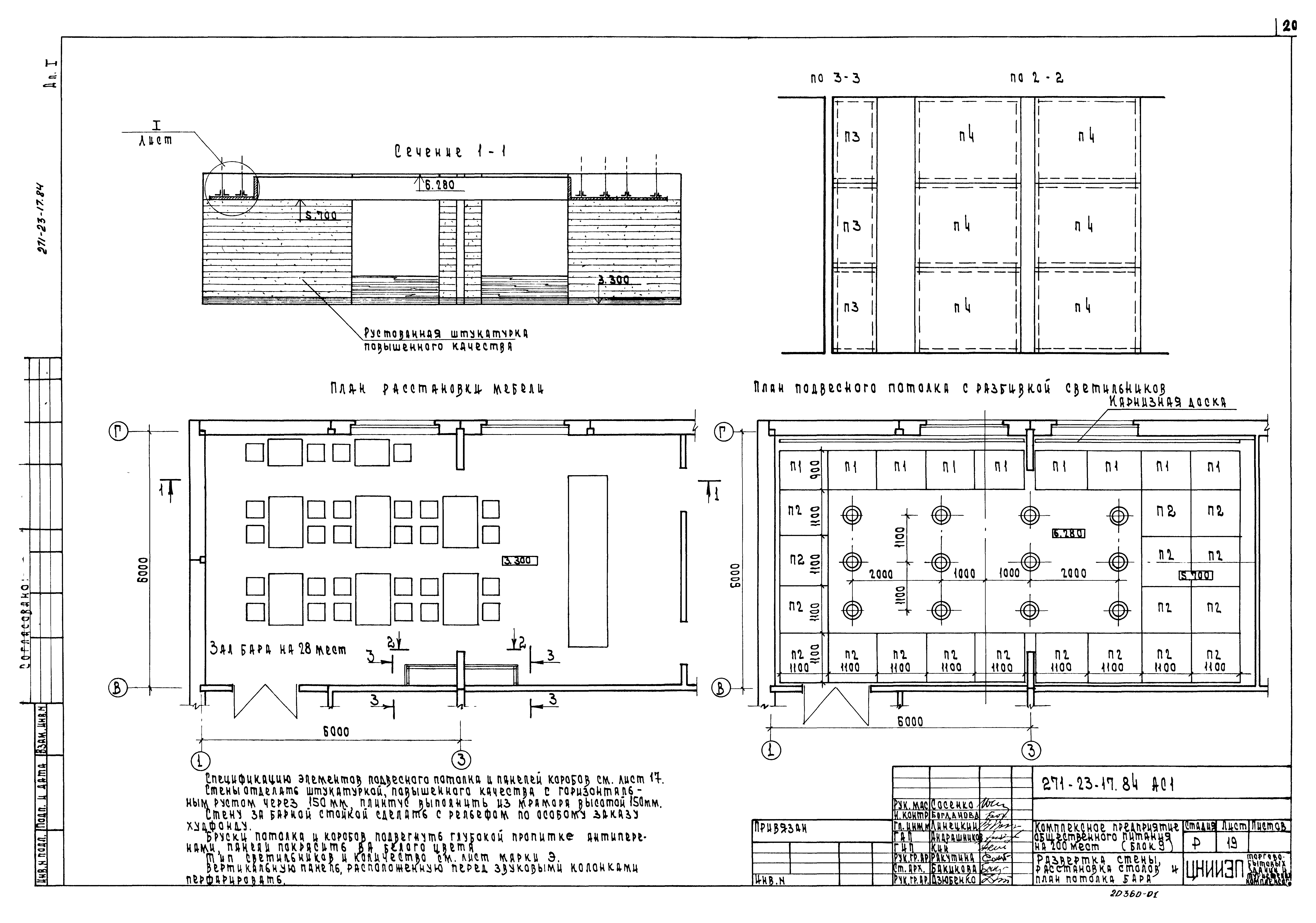
   Развертка стены и план расстановки столов и план потолка бара
   Заполнение ж/б рам. Узлы перегородок
   Звено асбестоцементного воздуховода
   Схема нагрузок на элементы фундаментов и схема нагрузок на элементы перекрытий и покрытия
   Схема расположения элементов фундаментов
   Сечения к схемам расположения элементов фундаментов
   Схемы расположения наружных и внутренних стен техподполья и элементов парапета
   Схемы расположения элементов наружных и внутренних стен 1 и 2 этажа
   Спецификация к схемам расположения стеновых панелей при толщине наружных стен 400 мм
   Схема расположения элементов перекрытия на отм. 0.000
   Схема расположения элементов перекрытия на отм. 3.300
   Схема расположения элементов покрытия
   Спецификация к схемам расположения элементов перекрытий и покрытия
   Схема расположения элементов лестниц 1 - 4
   Монтажная схема лифта №1
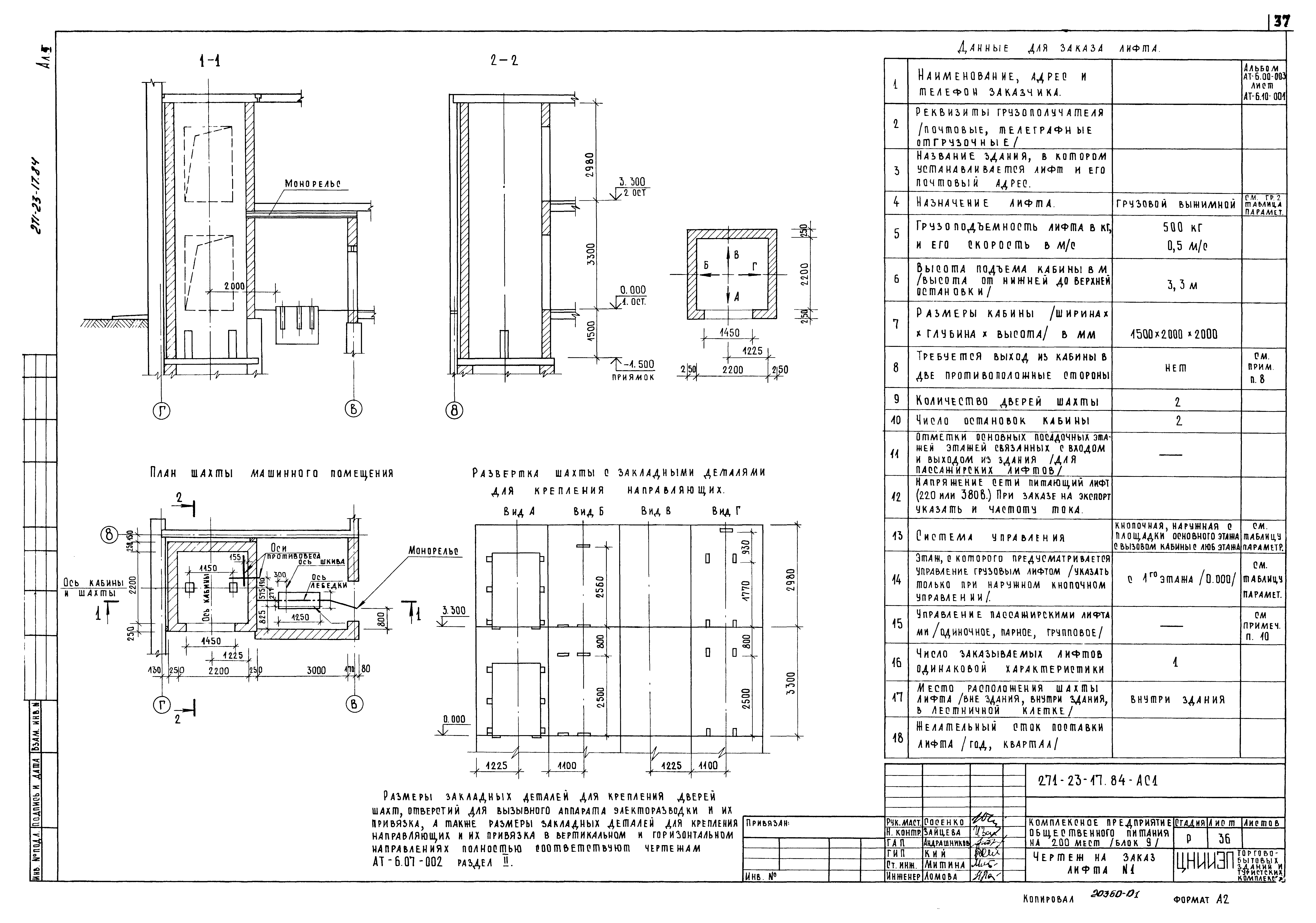
   Чертеж на заказ лифта №1
   Монтажная схема лифта №2
   Чертеж на заказ лифта №2
   Монтажная схема расположения закладных деталей для крепления витражей
   Фундамент монолитный ФХМ-1
   Фундамент монолитный ФХМ-2
Технология и механизация
   Общие данные
   План 1 этажа
   План 2 этажа
Витражи
   Общие данные
   Спецификация элементов оконных блоков и тамбуров
   Схема расположения оконных блоков и тамбуров в осях 1 - 11 (1 этаж)
   Схема расположения оконных блоков и тамбуров в осях 1 - 11 и тамбуров в осях В - б (2 этаж). Тамбур в осях В - Б (1 этаж)
   Монтажные сечения 1, 2, 3, 12
   Монтажные сечения 4, 5, 6, 7, 8, 9, 10, 11, 13
Разработан: ЦНИИЭП торгово-бытовых зданий и туристских комплексов
Утверждён:12.11.1981 Госгражданстрой (Gosgrazhdanstroy 317)
Расположен в:Техническая документация Строительство Справочные документы Типовые строительные конструкции, изделия и узлы Общероссийский строительный каталог Общественные здания в городах и поселках городского типа Предприятия торговли и общественного питания. Общественные центры Предприятия общественного питания Комплексные предприятия общественного питания
Типовой проект 271-23-17.84Типовой проект 271-23-17.84Типовой проект 271-23-17.84Типовой проект 271-23-17.84Типовой проект 271-23-17.84Типовой проект 271-23-17.84Типовой проект 271-23-17.84Типовой проект 271-23-17.84Типовой проект 271-23-17.84Типовой проект 271-23-17.84Типовой проект 271-23-17.84Типовой проект 271-23-17.84Типовой проект 271-23-17.84Типовой проект 271-23-17.84Типовой проект 271-23-17.84Типовой проект 271-23-17.84Типовой проект 271-23-17.84Типовой проект 271-23-17.84Типовой проект 271-23-17.84Типовой проект 271-23-17.84Типовой проект 271-23-17.84Типовой проект 271-23-17.84Типовой проект 271-23-17.84Типовой проект 271-23-17.84Типовой проект 271-23-17.84Типовой проект 271-23-17.84Типовой проект 271-23-17.84Типовой проект 271-23-17.84Типовой проект 271-23-17.84Типовой проект 271-23-17.84Типовой проект 271-23-17.84Типовой проект 271-23-17.84Типовой проект 271-23-17.84Типовой проект 271-23-17.84Типовой проект 271-23-17.84Типовой проект 271-23-17.84Типовой проект 271-23-17.84Типовой проект 271-23-17.84Типовой проект 271-23-17.84Типовой проект 271-23-17.84Типовой проект 271-23-17.84Типовой проект 271-23-17.84Типовой проект 271-23-17.84Типовой проект 271-23-17.84Типовой проект 271-23-17.84Типовой проект 271-23-17.84Типовой проект 271-23-17.84Типовой проект 271-23-17.84Типовой проект 271-23-17.84Типовой проект 271-23-17.84Типовой проект 271-23-17.84Типовой проект 271-23-17.84

© 2013 Ёшкин Кот :-) Карта сайта