Информационная система
«Ёшкин Кот»

Скачать базу одним архивом
Скачать обновления
История создания базы
Карта сайта

Скачать Типовой проект Пу-1-100-365.89 Альбом 1. Пояснительная записка. Архитектурно-строительные решения. Отопление и вентиляция. Электроосвещение и силовое электрооборудование

Дата актуализации: 10.08.2017

Типовой проект Пу-1-100-365.89

Альбом 1. Пояснительная записка. Архитектурно-строительные решения. Отопление и вентиляция. Электроосвещение и силовое электрооборудование

Обозначение: Типовой проект Пу-1-100-365.89
Обозначение англ: Пу-1-100-365.89
Статус:не определен законодательством
Название рус.:Альбом 1. Пояснительная записка. Архитектурно-строительные решения. Отопление и вентиляция. Электроосвещение и силовое электрооборудование
Дата добавления в базу:01.09.2013
Дата актуализации:05.05.2017
Дата введения:18.10.1989
Оглавление:ПЗ-1. Пояснительная записка (начало)
ПЗ-2 Пояснительная записка (окончание)
Архитектурно-строительные решения
   АС-1 Общие данные
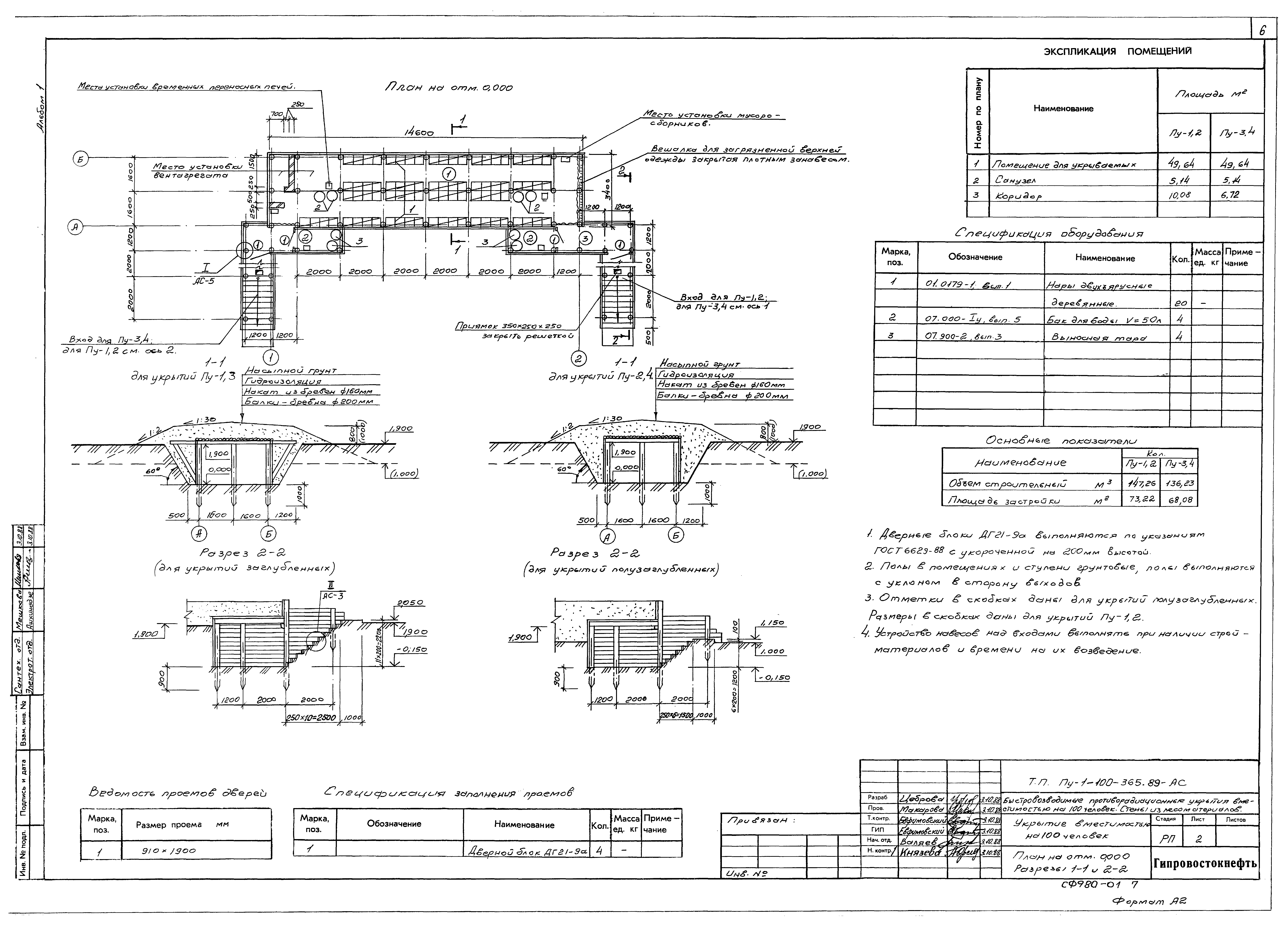
   АС-2 План на отм. 0.000. Разрезы 1-1 и 2-2
   АС-3 Схема расположения элементов стен и покрытия. Узлы I - VI. Шахты Ш1 - Ш3
Отопление и вентиляция
   ОВ-1 Общие данные
   ОВ-2 План на отм. 0.000. Схемы систем П1, ВЕ1, ВЕ2, ВЕ3
Электрическое освещение и силовое электрооборудование
   ЭО-1 Общие данные
   ЭО-2 Схема однолинейная электрической сети 380/220 В. Планы расположения силового электрооборудования и электроосвещения Пу-1, 2, 3, 4
Разработан: Гипровостокнефть
Утверждён:18.10.1989 Миннефтегазпром СССР (USSR Minneftegazprom 166"Э")
Расположен в:Техническая документация Строительство Справочные документы Типовые строительные конструкции, изделия и узлы Общероссийский строительный каталог Защитные сооружения гражданской обороны Типовые проекты защитных сооружений гражданской обороны специального назначения Быстровозводимые противорадиационные укрытия и простейшие укрытия
Типовой проект Пу-1-100-365.89Типовой проект Пу-1-100-365.89Типовой проект Пу-1-100-365.89Типовой проект Пу-1-100-365.89Типовой проект Пу-1-100-365.89Типовой проект Пу-1-100-365.89Типовой проект Пу-1-100-365.89Типовой проект Пу-1-100-365.89Типовой проект Пу-1-100-365.89Типовой проект Пу-1-100-365.89Типовой проект Пу-1-100-365.89Типовой проект Пу-1-100-365.89

© 2013 Ёшкин Кот :-) Карта сайта