Скачать Типовой проект 903-2-2/71 Альбом IV. Общеплощадочные устройства и узлы, железнодорожная эстакада (строительная часть)Дата актуализации: 10.08.2017 Типовой проект 903-2-2/71
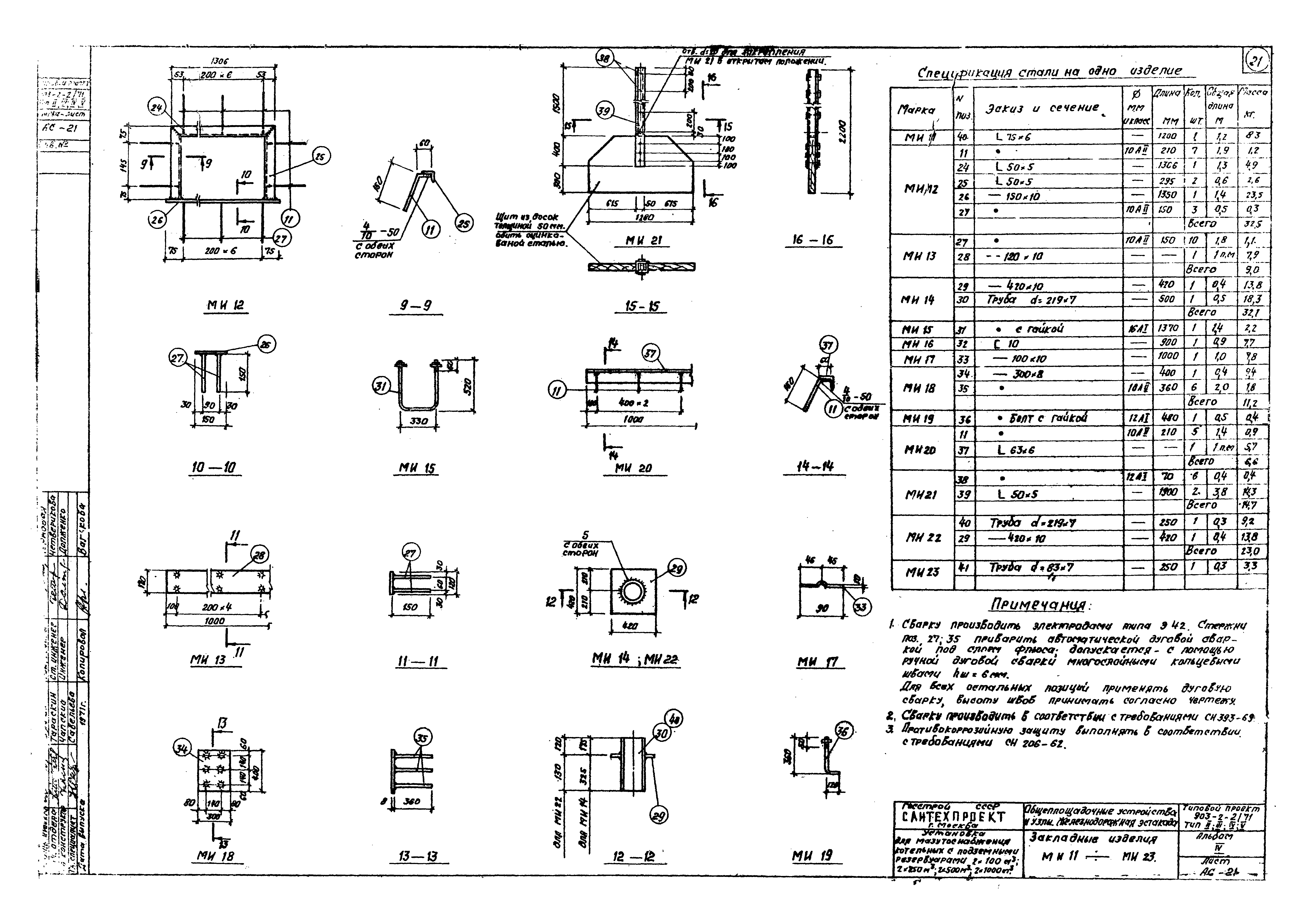
Альбом IV. Общеплощадочные устройства и узлы, железнодорожная эстакада (строительная часть)Обозначение: | Типовой проект 903-2-2/71 | Обозначение англ: | 903-2-2/71 | Статус: | действует | Название рус.: | Альбом IV. Общеплощадочные устройства и узлы, железнодорожная эстакада (строительная часть) | Дата добавления в базу: | 01.09.2013 | Дата актуализации: | 05.05.2017 | Дата введения: | 01.09.1972 | Оглавление: | Заглавный лист Схемы сооружений установки мазутоснабжения Схемы сооружений установки мазутоснабжения. Элементы планов 1 и 2 Схемы сооружений установки мазутоснабжения. Элементы планов 3 - 6 Элементы планов 1 - 6. Сечения КС1, КС3. Элементы планов 1 и 2. Каналы железнодорожного и автомобильного мазутосливов. Сечения Приямок дренажной бадьи. Канализационные колодцы. Узлы примыкания каналов к колодцам 1, 2 Опалубка и армирование УПМ7и. Деталь расположения закладной детали МИ4 Каналы железнодорожного и автомобильного мазутосливов. Разрезы Каналы железнодорожного и автомобильного мазутосливов. Элемент плана 1. Фундаменты Фм1, Фм2. Колонны К1, К2. Узлы, сечения План 1 звена покрытия мазутосливов. Металлическая рама МР1, МКР1. Узлы, сечения Маркировочный план фундаментов и колонн на 8, 4, 2 вагон-цистерн. Разрезы Маркировочные схемы эстакад. Разрезы Маркировочные схемы эстакад. Узлы. Разрезы МО1. Мостик откидной МО1-1. Мостик МО1-2. Подвеска. Деталь 5 МО1-3. Кронштейн Закладные изделия МИ1 - МИ10 Закладные изделия МИ11 - МИ23 | Разработан: | Сантехпроект Госстроя СССР
| Утверждён: | 21.08.1972 ГПИ Сантехпроект (157)
| Расположен в: |
|
                      
|