Скачать Типовой проект 903-2-2/71 Альбом II/2. Общеплощадочные устройства и узлы (технологическая, сантехническая, электротехническая части)Дата актуализации: 10.08.2017 Типовой проект 903-2-2/71
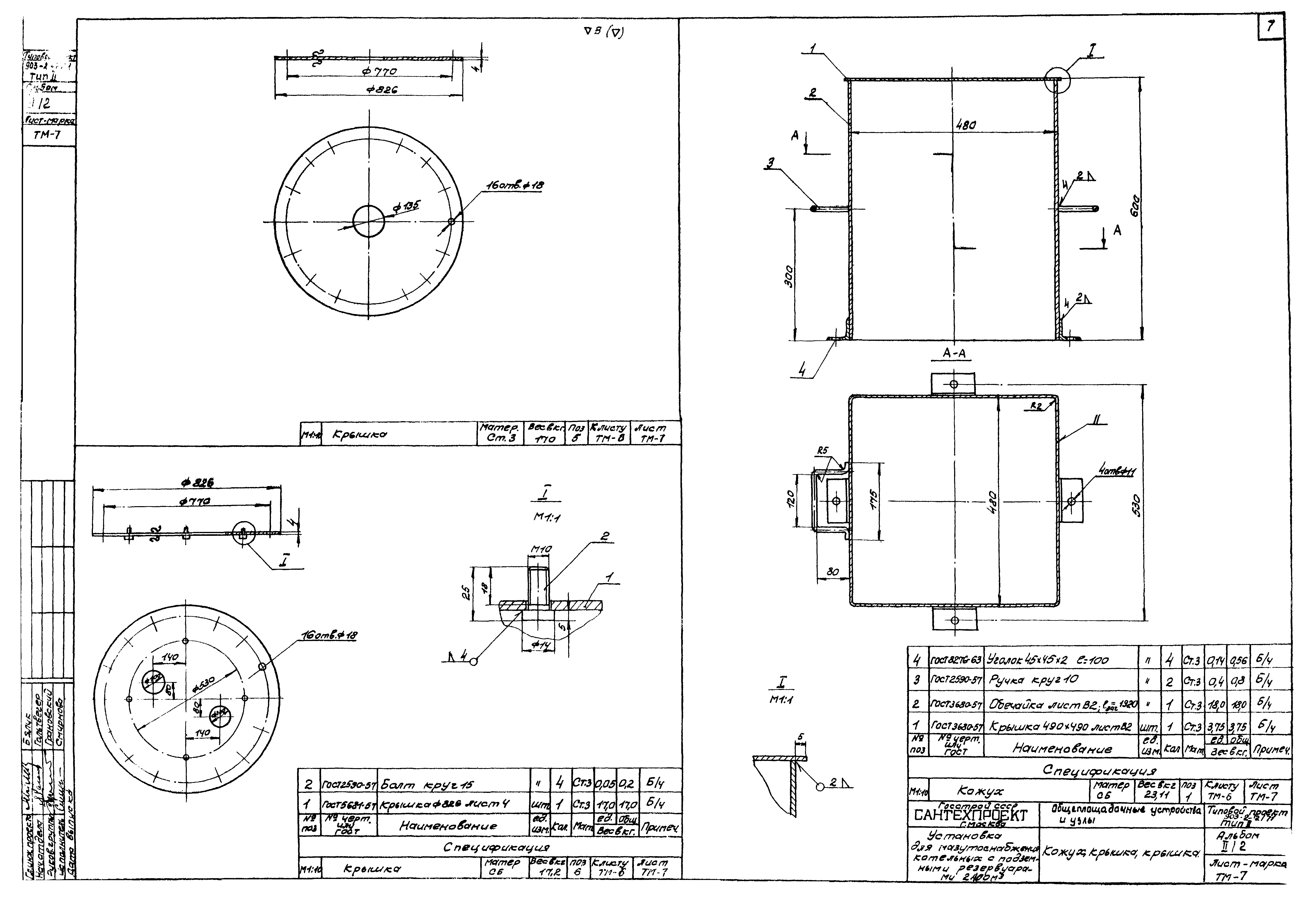
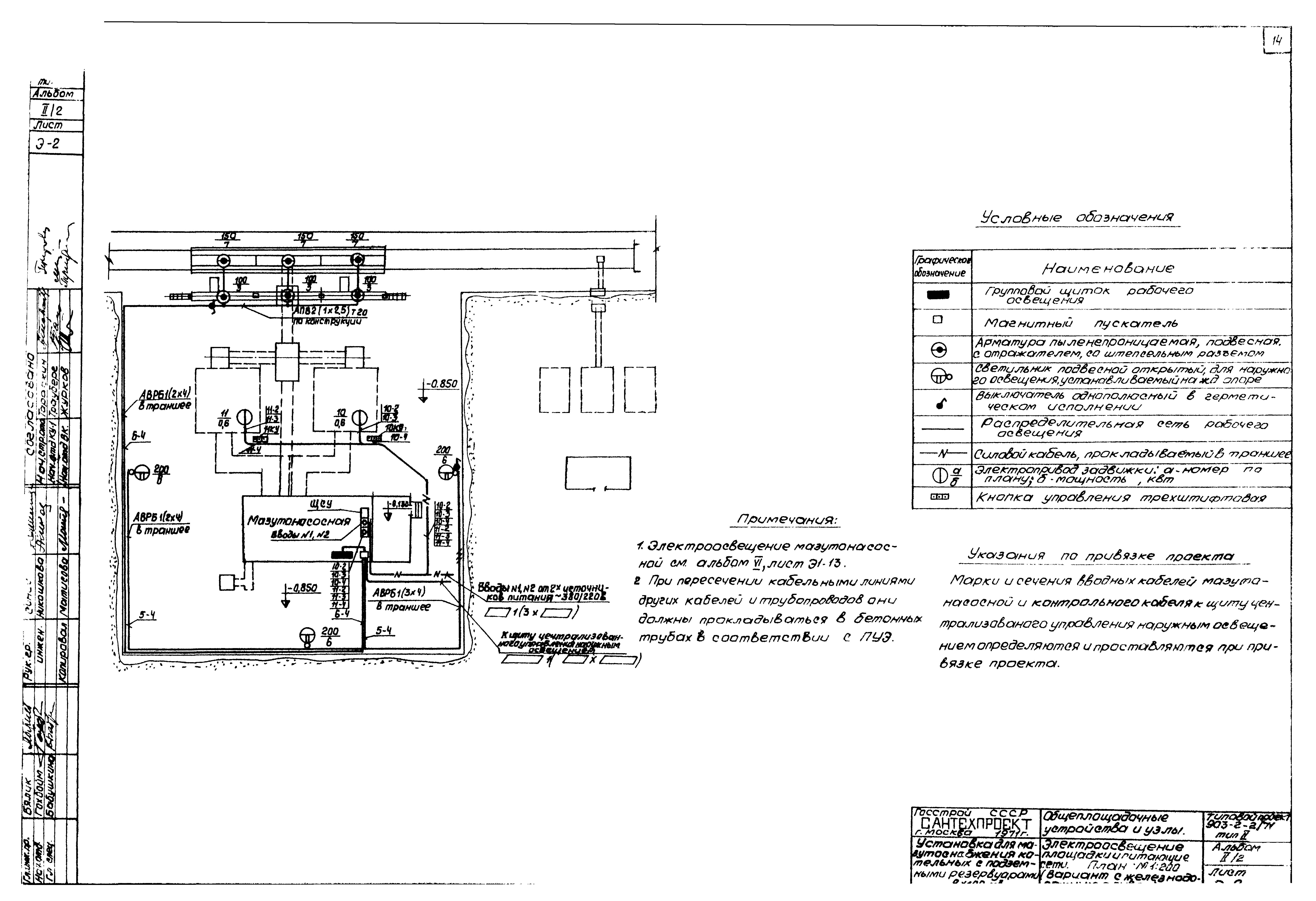
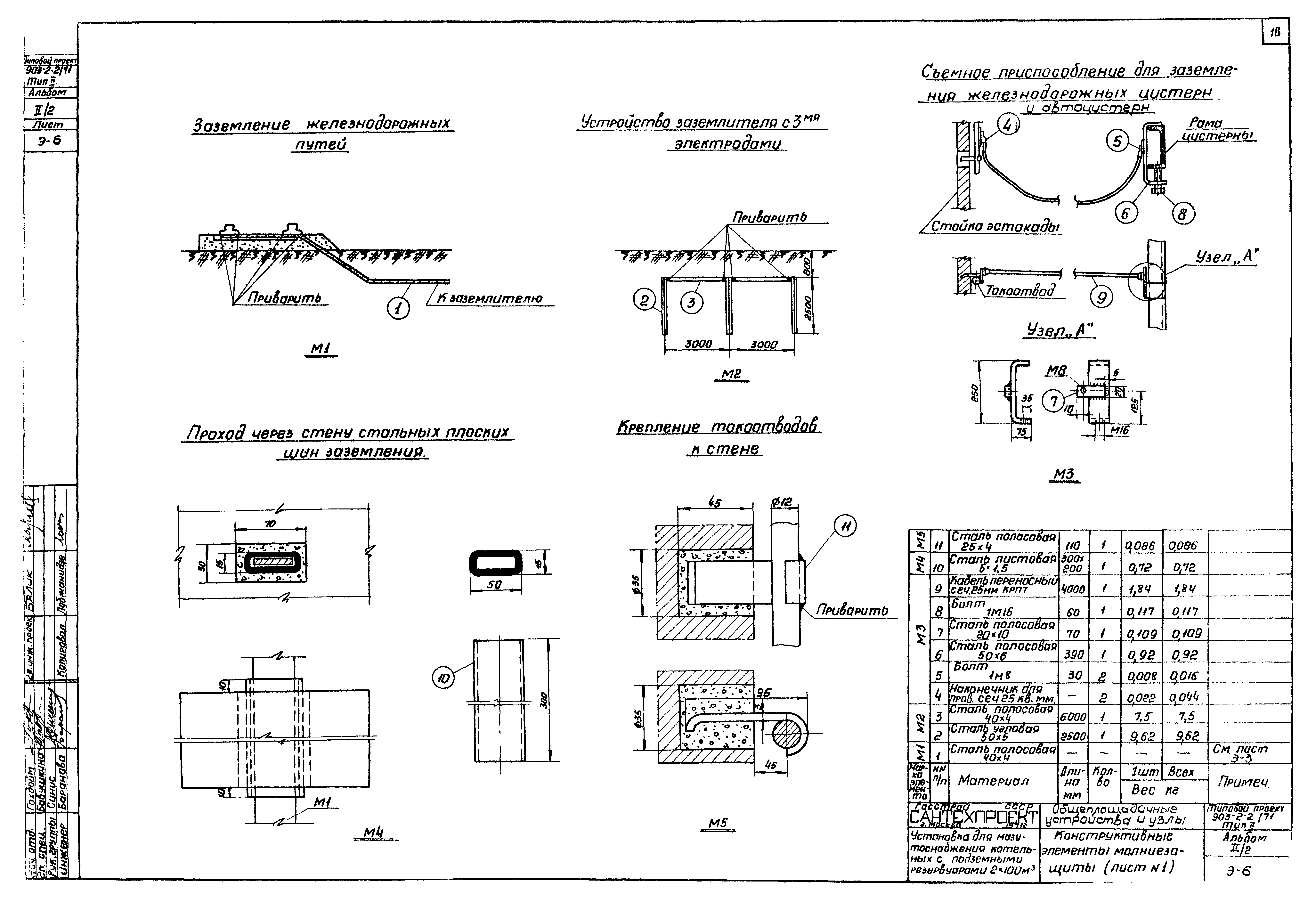
Альбом II/2. Общеплощадочные устройства и узлы (технологическая, сантехническая, электротехническая части)Обозначение: | Типовой проект 903-2-2/71 | Обозначение англ: | 903-2-2/71 | Статус: | действует | Название рус.: | Альбом II/2. Общеплощадочные устройства и узлы (технологическая, сантехническая, электротехническая части) | Дата добавления в базу: | 01.09.2013 | Дата актуализации: | 05.05.2017 | Дата введения: | 01.09.1972 | Оглавление: | Технологическая часть Содержание альбома. Пояснительная записка Принципиальная схема мазутного хозяйства Трубопроводы от мазутонасосной до сливной эстакады. План и разрезы Трубопроводы от мазутонасосной до резервуаров. План и сечения Общий вид расположения оборудования резервуара (рекомендации по привязке) Люк диаметром 700 для установки термометра сопротивления. Люк диаметром 700 для установки уровнемера Кожух, крышка, крышка Наливной короб Устройство для подъема шибера колодца переключения. Общий вид Устройство для подъема шибера колодца переключения. Детали Техномонтажная ведомость на изоляцию. Сводные спецификации на трубы, металл и изоляционные материалы Трубопроводы автослива Электротехническая часть Пояснительная записка Электроосвещение площадки и питающие сети. План М 1:200 (вариант с железнодорожным сливом) Электроосвещение площадки и питающие сети. План М 1:200 (вариант с автосливом) Устройство молниезащиты. План М 1:200 (вариант с железнодорожным сливом) Устройство молниезащиты. План М 1:200 (вариант с автосливом) Конструктивные элементы молниезащиты Сантехническая часть Водоснабжение и канализация. Пояснительная записка | Разработан: | Сантехпроект Госстроя СССР
| Утверждён: | 21.08.1972 ГПИ Сантехпроект (157)
| Расположен в: |
|
                     
|