Скачать Типовой проект 902-1-1 Альбом 3. Архитектурно-строительная часть при глубине заложения подводящего коллектора 7,0 мДата актуализации: 10.08.2017 Типовой проект 902-1-1
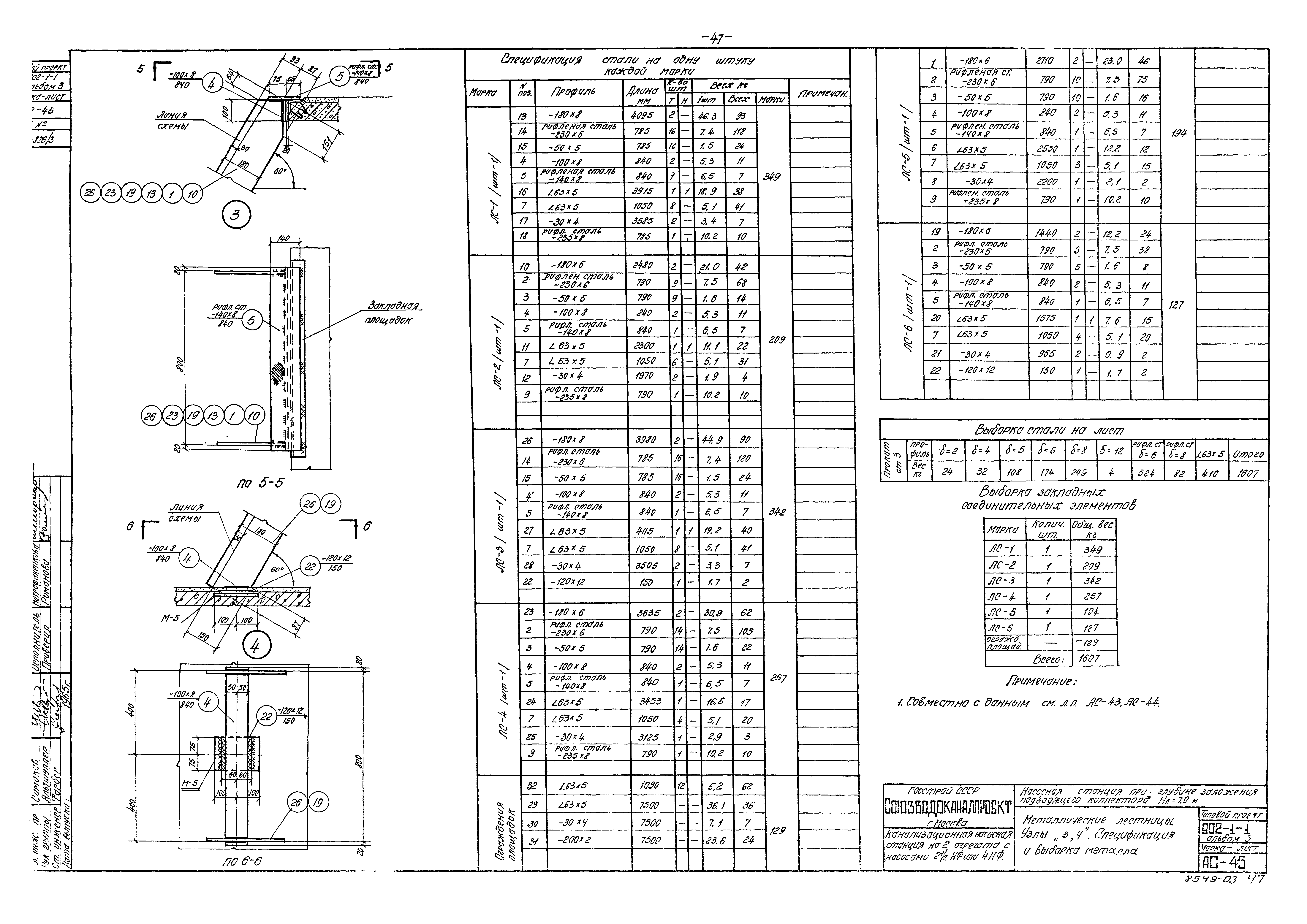
Альбом 3. Архитектурно-строительная часть при глубине заложения подводящего коллектора 7,0 мОбозначение: | Типовой проект 902-1-1 | Обозначение англ: | 902-1-1 | Статус: | не действует | Название рус.: | Альбом 3. Архитектурно-строительная часть при глубине заложения подводящего коллектора 7,0 м | Дата добавления в базу: | 01.09.2013 | Дата актуализации: | 05.05.2017 | Оглавление: | Обложка Титульный лист Заглавный лист Содержание альбома Пояснительная записка Планы кровли, полов и перемычек. Основные показатели. Толщина наружных стен и утеплителя кровли, воздух. шахты. Спецификация столярных изделий. Экспликация полов, покрытия и перемычек Планы, разрезы Фасады. Детали разрезов и планов Опалубочный чертеж. План на отм. - 0.02. Сечения Опалубочный чертеж. План на отм. - 6.42. Сечения Опалубочный чертеж. Разрезы Опалубочный чертеж. Разрез. Узлы Опалубочный чертеж. План А-А. Узлы. Сечения Опалубочный чертеж. План на отм. - 9.20. Фундамент Ф-1 Закладные элементы. Узел "6" Спецификация и выборка стали. Выборка сальников Площадка для обслуживания задвижек Армирование ствола шахты. План 2-2. Сечение 1-1. Развертка сеток Армирование ствола шахты и ножа. Сетки С-1 - С-4. Каркас КР-1 Выпуски арматуры из ствола шахты Армирование ствола шахты и ножа. Спецификация и выборка арматуры Армирование днища. План раскладки сеток и каркасов. Сечения 1-1, 2-2 Армирование днища. Сетки, каркасы. Спецификация и выборка арматуры Армирование перегородки. План, разрезы. Раскладка сеток. Расход материалов Армирование перегородки. Сетки, каркасы. Спецификация и выборка арматуры Армирование перекрытия на отм. - 0.02 Армирование перекрытия на отм. - 0.02. Спецификация и выборка арматуры Перекрытие на отм. - 0.02. Армирование балок Бм-1 - Бм-4 Перекрытие на отм. - 0.02. Армирование балок Бм-5 - Бм-8. Расход материалов Перекрытие на отм. - 0.02. Армирование балок. Сетки С-16, С-17. Каркасы КР-4 - КР-11 Перекрытие на отм. - 0.02. Армирование балок. Спецификация и выборка арматуры Армирование перекрытия на отм. - 6.42 Армирование перекрытия на отм. - 6.42. Лоток. План и сечения Армирование перекрытия на отм. - 6.42. Спецификация и выборка арматуры Перекрытие на отм. - 6.42. Армирование балок Бм-1 - Бм-4 Перекрытие на отм. - 6.42.. Армирование балок Бм-12 - Бм-13а Перекрытие на отм. - 6.42. Армирование балок. Спецификация и выборка арматуры Армирование лестничных площадок Пм-1, Пм-2, Пм-3 Сборные железобетонные плиты ПС-1, ПС-2 Кровельное покрытие. Арматурно-опалубочный чертеж Монорельсы. План расположения, разрезы и узлы "1" и "2" Монорельсы. Узлы "3", "4", "5". Спецификация и выборки Металлические лестницы. Схема расположения лестниц Металлические лестницы. Узлы "1", "2". Детали ограждения Металлические лестницы. Узлы "3", "4". Спецификация и выборка металла Металлический приямок в днище Сводные спецификации материалов Объемы строительных работ | Разработан: | Союзводоканалпроект
| Утверждён: | 19.04.1966 Главпромстройпроект Госстроя СССР
| Расположен в: |
|
                                                  
|