| ||||||||||||||||||||||||
Скачать Серия ОВ-02-04 Выпуск 1. Виброизолирующие основания под агрегаты с вентиляторами до шестого номераДата актуализации: 10.08.2017
|
| Обозначение: | Серия ОВ-02-04 |
| Обозначение англ: | Series ОВ-02-04 |
| Статус: | не действует |
| Название рус.: | Выпуск 1. Виброизолирующие основания под агрегаты с вентиляторами до шестого номера |
| Дата добавления в базу: | 01.09.2013 |
| Дата актуализации: | 05.05.2017 |
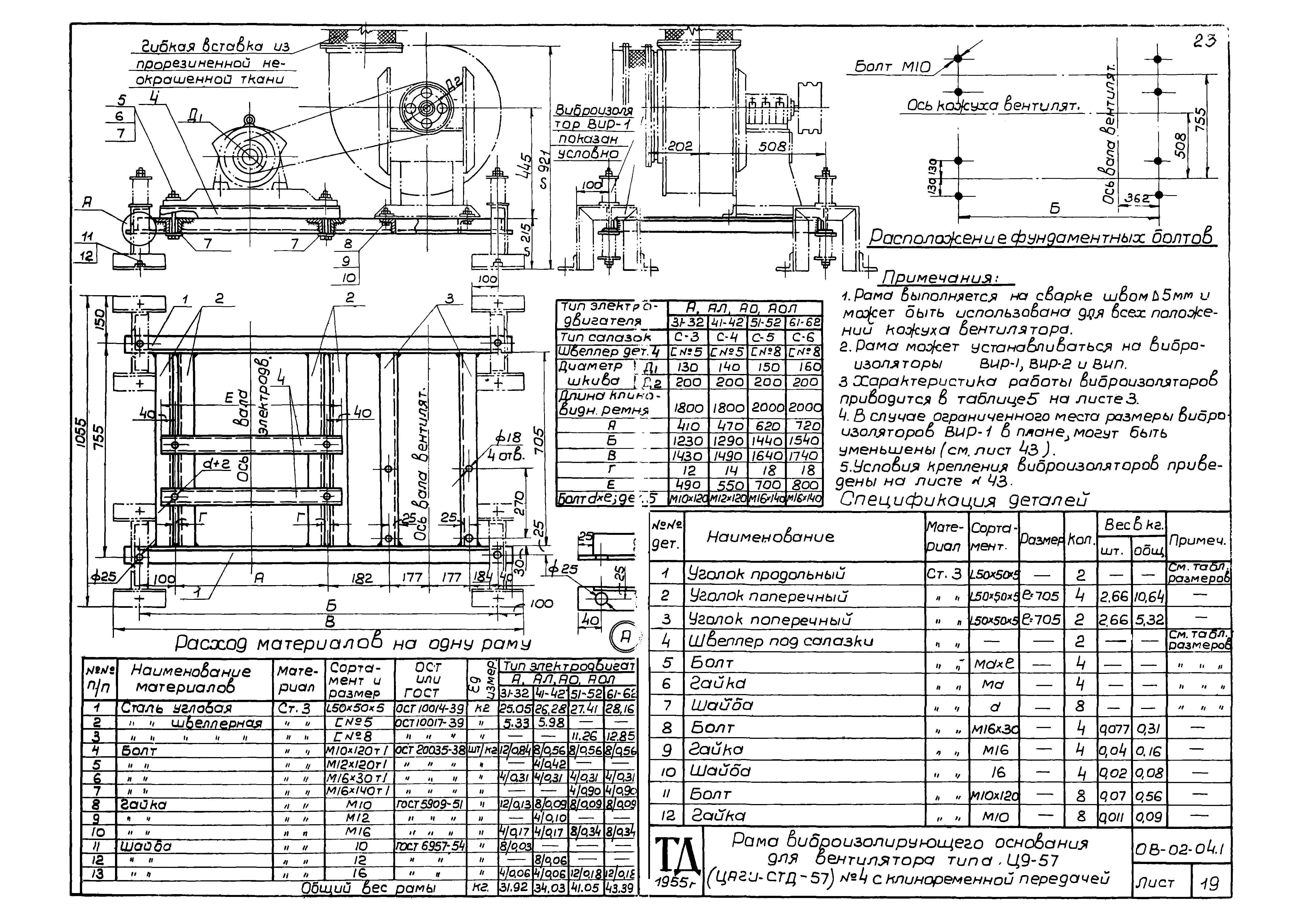
| Оглавление: | Пояснительная записка Указания для проектирования Сводные таблицы чертежей и данные для подбора виброизоляторов под электровентиляторы Данные для подбора виброизоляторов под вентиляционные агрегаты с клиноременной передачей Данные для подбора виброизоляторов под вентиляционные агрегаты с эластичной муфтой Виброизолирующее основание с резиновыми амортизаторами для электровентиляторов типа Ц9-57 (ЦАГИ СТД-57) №3 и 4 Виброизолирующее основание с резиновыми амортизаторами для электровентиляторов серии ЭВР №3, 4, 5 и 6 Виброизолирующее основание с пружинными амортизаторами для электровентиляторов типа Ц-57 (ЦАГИ СТД-57) №3 и 4 и серии ЭВР №3, 4, 5 и 6 Рамы виброизолирующих оснований для агрегатов с клиноременной передачей к вентиляторам типа Ц9-57 (ЦАГИ СТД-57) №3 Рамы виброизолирующих оснований для агрегатов с клиноременной передачей к вентиляторам типа Ц9-57 (ЦАГИ СТД-57) №4 Рамы виброизолирующих оснований для агрегатов с клиноременной передачей к вентиляторам типа Ц9-57 (ЦАГИ СТД-57) №5 Рамы виброизолирующих оснований для агрегатов с клиноременной передачей к вентиляторам типа Ц9-57 (ЦАГИ СТД-57) №6 Рамы виброизолирующих оснований для агрегатов с клиноременной передачей к вентиляторам серии ВР №3 Рамы виброизолирующих оснований для агрегатов с клиноременной передачей к вентиляторам серии ВР №4 Рамы виброизолирующих оснований для агрегатов с клиноременной передачей к вентиляторам серии ВР №5 Рамы виброизолирующих оснований для агрегатов с клиноременной передачей к вентиляторам серии ВР №6 Рамы виброизолирующих оснований для агрегатов с клиноременной передачей к вентиляторам типа Ц9-55 №4 Рамы виброизолирующих оснований для агрегатов с клиноременной передачей к вентиляторам типа Ц9-55 №5 Рамы виброизолирующих оснований для агрегатов с клиноременной передачей к вентиляторам типа Ц9-55 №6 Виброизолирующие основания с резиновыми амортизаторами для агрегатов с эластичной муфтой к вентиляторам типа Ц9-57 (ЦАГИ СТД57) №5 Виброизолирующие основания с резиновыми амортизаторами для агрегатов с эластичной муфтой к вентиляторам типа Ц9-57 (ЦАГИ СТД57) №6 Виброизолирующие основания с резиновыми амортизаторами для агрегатов с эластичной муфтой к вентиляторам типа Ц9-55 №4 Виброизолирующие основания с резиновыми амортизаторами для агрегатов с эластичной муфтой к вентиляторам типа Ц9-55 №5 Виброизолирующие основания с резиновыми амортизаторами для агрегатов с эластичной муфтой к вентиляторам типа Ц9-55 №6 Виброизолирующие основания с пружинными амортизаторами для агрегатов с эластичной муфтой к вентиляторам типа Ц9-57 (ЦАГИ СТД-57) №5 Виброизолирующие основания с пружинными амортизаторами для агрегатов с эластичной муфтой к вентиляторам типа Ц9-57 (ЦАГИ СТД-57) №6 Виброизолирующие основания с пружинными амортизаторами для агрегатов с эластичной муфтой к вентиляторам типа Ц9-55 №4 Виброизолирующие основания с пружинными амортизаторами для агрегатов с эластичной муфтой к вентиляторам типа Ц9-55 №5 Виброизолирующие основания с пружинными амортизаторами для агрегатов с эластичной муфтой к вентиляторам типа Ц9-55 №6 с электродвигателями А-72-8 и АО-72-6 Виброизолирующие основания с пружинными амортизаторами для агрегатов с эластичной муфтой к вентиляторам типа Ц9-55 №6 с электродвигателями А-71-4 и МА-144-1/6 Виброизолятор с резиновыми амортизаторами ВИР-1 Виброизолятор с резиновыми амортизаторами ВИР-2 Виброизолятор пружинный ВИП |
| Разработан: | Министерство строительства предприятий металлургической и химической промышленности СССР |
| Утверждён: | 16.12.1954 Госстрой СССР (Государственный комитет Совета Министров СССР по делам строительства) (USSR Gosstroy ) |
| Расположен в: |























































