Информационная система
«Ёшкин Кот»

Скачать базу одним архивом
Скачать обновления
История создания базы
Карта сайта

Скачать Типовой проект 416-9-17.83 Альбом VII. Конструкции металлические

Дата актуализации: 10.08.2017

Типовой проект 416-9-17.83

Альбом VII. Конструкции металлические

Обозначение: Типовой проект 416-9-17.83
Обозначение англ: 416-9-17.83
Статус:не определен законодательством
Название рус.:Альбом VII. Конструкции металлические
Дата добавления в базу:01.09.2013
Дата актуализации:05.05.2017
Дата введения:26.05.1983
Оглавление:Титульный лист
Опись альбома
Общие данные
Техническая спецификация стали
Конструкции бункеров. Расположение элементов конструкций
Конструкции бункеров. Разрезы с 1-1 по 4-4
Конструкции бункеров. Узел 1
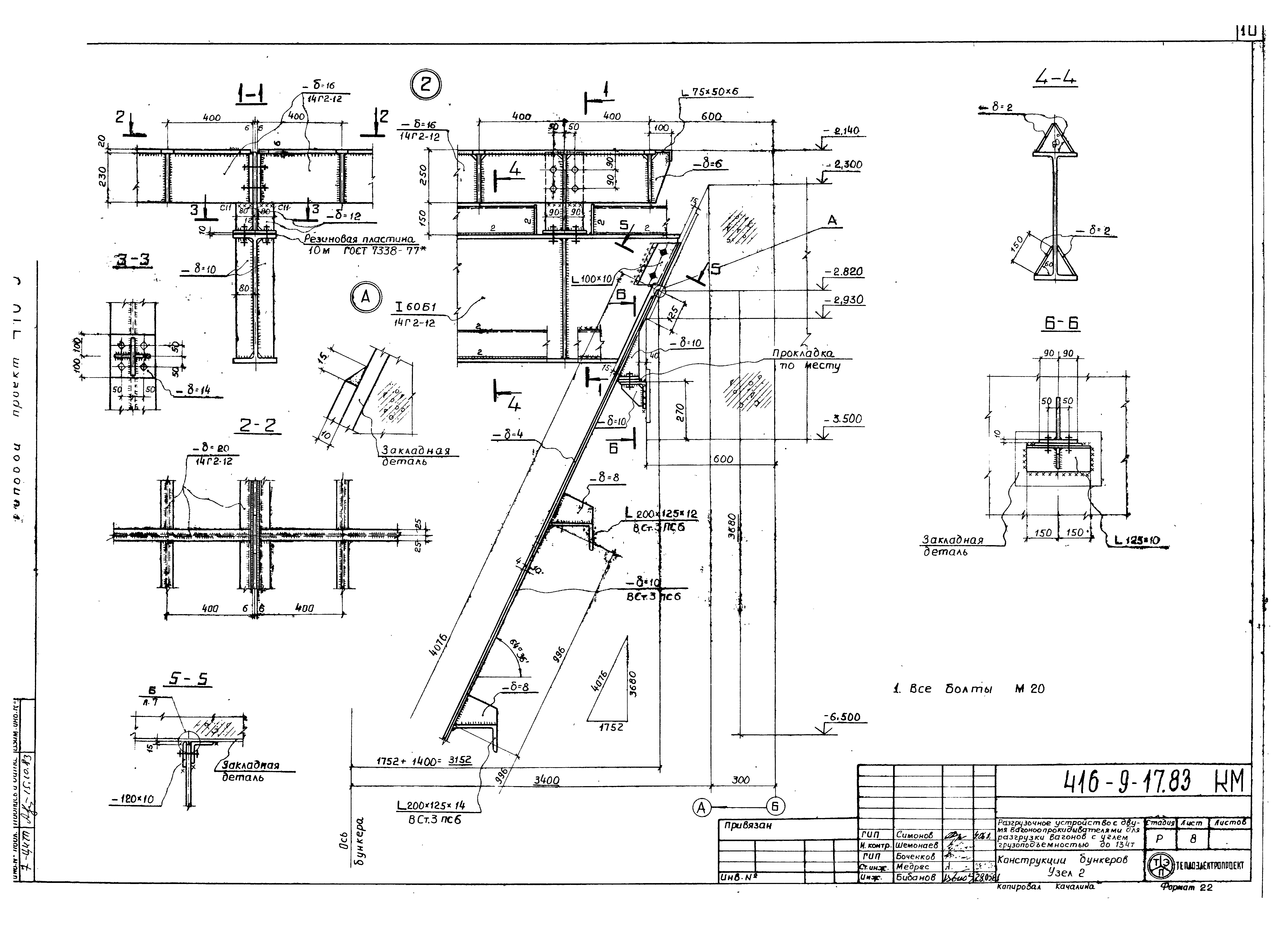
Конструкции бункеров. Узел 2
Конструкции бункеров. Узел 3
Конструкции бункеров. Узлы 4, 5 и 6
Конструкции бункеров. Узлы 7, 8 и 9
Конструкции бункеров. Марка Р1
Конструкции бункеров. Марка Р2
Конструкции бункеров. Марка Р3
Конструкции бункеров. Марки БП1 и БП2
Конструкции бункеров. Марки БП3 и БП4
Кровельное покрытие и стеновой фахверк. Схема расположения элементов конструкций. Разрезы 1-1 и 2-2
Кровельное покрытие и стеновой фахверк. Схема расположения элементов конструкций. Разрезы с 3-3 по 12-12
Кровельное покрытие и стеновой фахверк. Схема расположения элементов площадок на отм. 1.200. Узел 18
Кровельное покрытие и стеновой фахверк. Узлы 1 и 2
Кровельное покрытие и стеновой фахверк. Узлы 3, 4, 5 и 6
Кровельное покрытие и стеновой фахверк. Узлы 7 и 8
Кровельное покрытие и стеновой фахверк. Узлы 9, 10 и 11
Кровельное покрытие и стеновой фахверк. Узлы 12, 13, 14
Кровельное покрытие и стеновой фахверк. Узлы 15, 16, 17 и марка Щ1
Кровельное покрытие и стеновой фахверк. Узлы 19 и 20
Кровельное покрытие и стеновой фахверк. Аварийно-пожарная лестница. Схема расположения элементов конструкции
Кровельное покрытие и стеновой фахверк. Аварийно-пожарная лестница. Узлы с 1 по 8
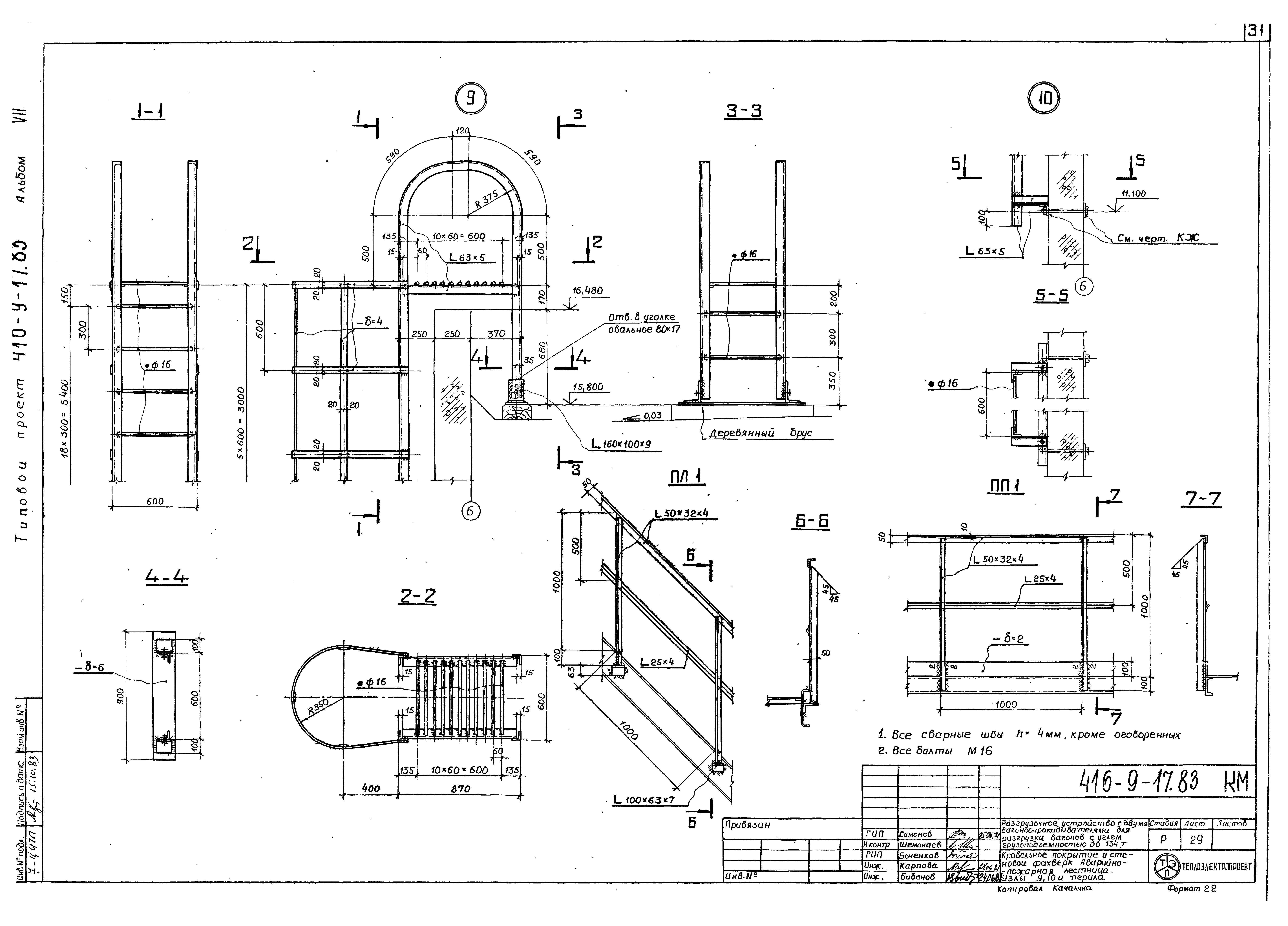
Кровельное покрытие и стеновой фахверк. Аварийно-пожарная лестница. Узлы 9, 10 и перила
Монорельсы и пути для кран-балок. Схема расположения элементов конструкций на отм. 14.650; - 2.100; 1.500
Монорельсы и пути для кран-балок. Схема расположения элементов конструкций на отм. - 7.500. Разрезы 1-1; 2-2
Монорельсы и пути для кран-балок. Разрезы с 3-3 по 9-9
Монорельсы и пути для кран-балок. Узлы 1 и 2
Монорельсы и пути для кран-балок. Узлы 3, 4, 5
Монорельсы и пути для кран-балок. Узлы 6, 7
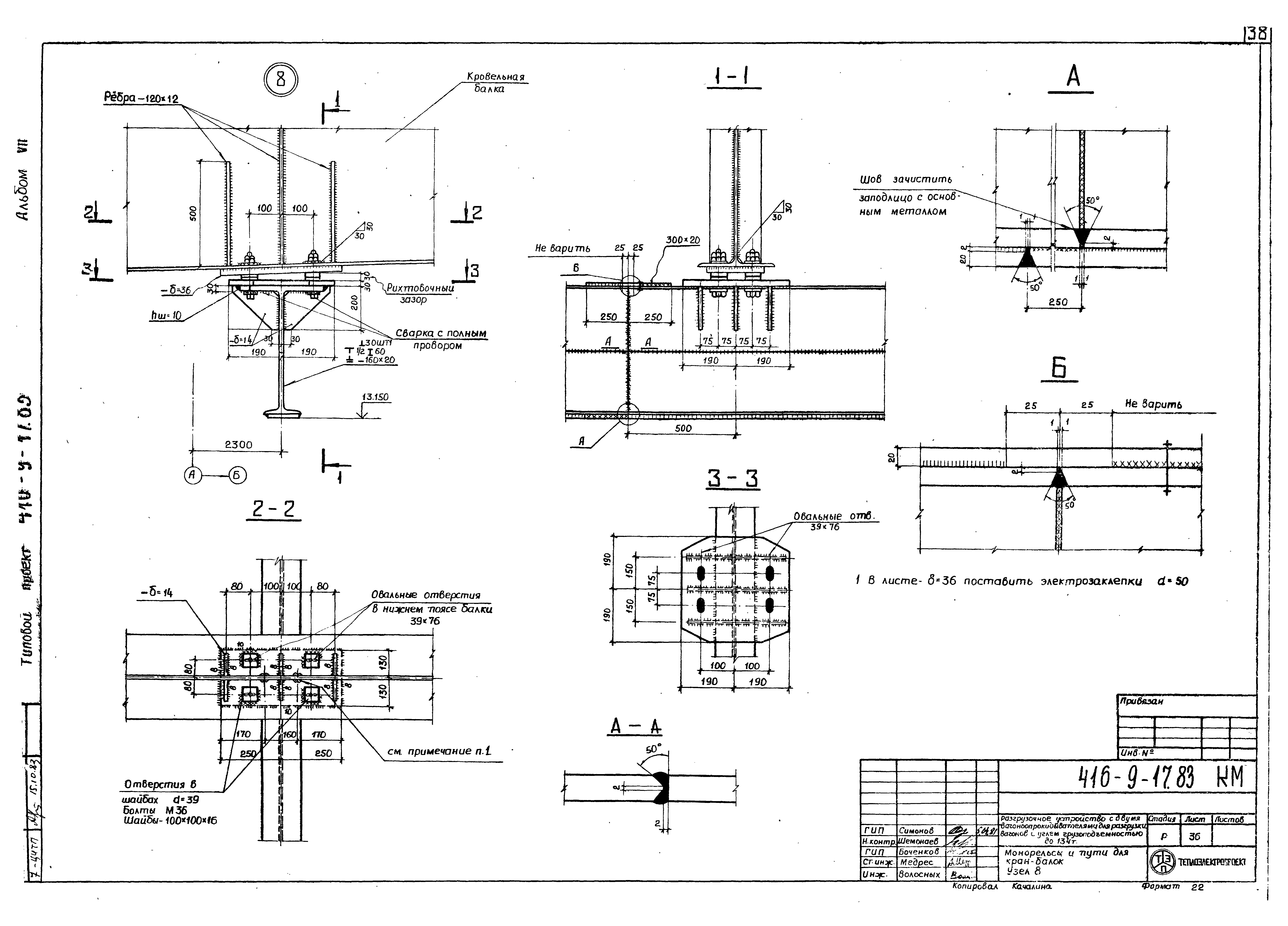
Монорельсы и пути для кран-балок. Узлы 8
Монорельсы и пути для кран-балок. Узлы 9, 10
Монорельсы и пути для кран-балок. Узлы 11, 12, 13
Монорельсы и пути для кран-балок. Узел 14
Ограждения роторов вагоноопрокидывателей. Схема расположения конструкций. Разрезы 1-1, 2-2, 3-3
Ограждения роторов вагоноопрокидывателей. Разрезы 4-4, 5-5. Узлы 1 и 2
Ограждения роторов вагоноопрокидывателей. Узлы с 3 по 7
Ограждения роторов вагоноопрокидывателей. Марки П1, П2
Ограждения роторов вагоноопрокидывателей. Марки с П3 по П8, П12
Ограждения роторов вагоноопрокидывателей. Марки с П9 по П11. Узлы с 8 по 10
Схема конструкций приямков №1, 2, 3
Схема расположения площадок и лестниц на отм. 7.500
Перекрытие монтажного проема. Схема расположения щитов. Щит П1
Перекрытие монтажного проема. Щит П2
Схема расположения конструкций для крепления блоков натяжного устройства. Планы на отм. - 7.700; - 5.200. Разрезы 1-1, 2-2
Конструкции для крепления блоков натяжного устройства. Узлы с 1 по 3
Схема расположения конструкций ограждения помещения для ремонта ДФМ-11. Разрез 1-1. Узлы с 1 по 3
Схема расположения конструкций под циклоны. План на отм. 5.800. Разрезы 1-1, 3-3
Конструкции под циклоны. Разрезы 2-2, 4-4, 5-5. План на отм. 7.900. Узел 1
Конструкции под циклоны. Узлы с 2 по 5
Пульт управления. Схема расположения конструкций на отм. 6.800; 7.780; 10.610
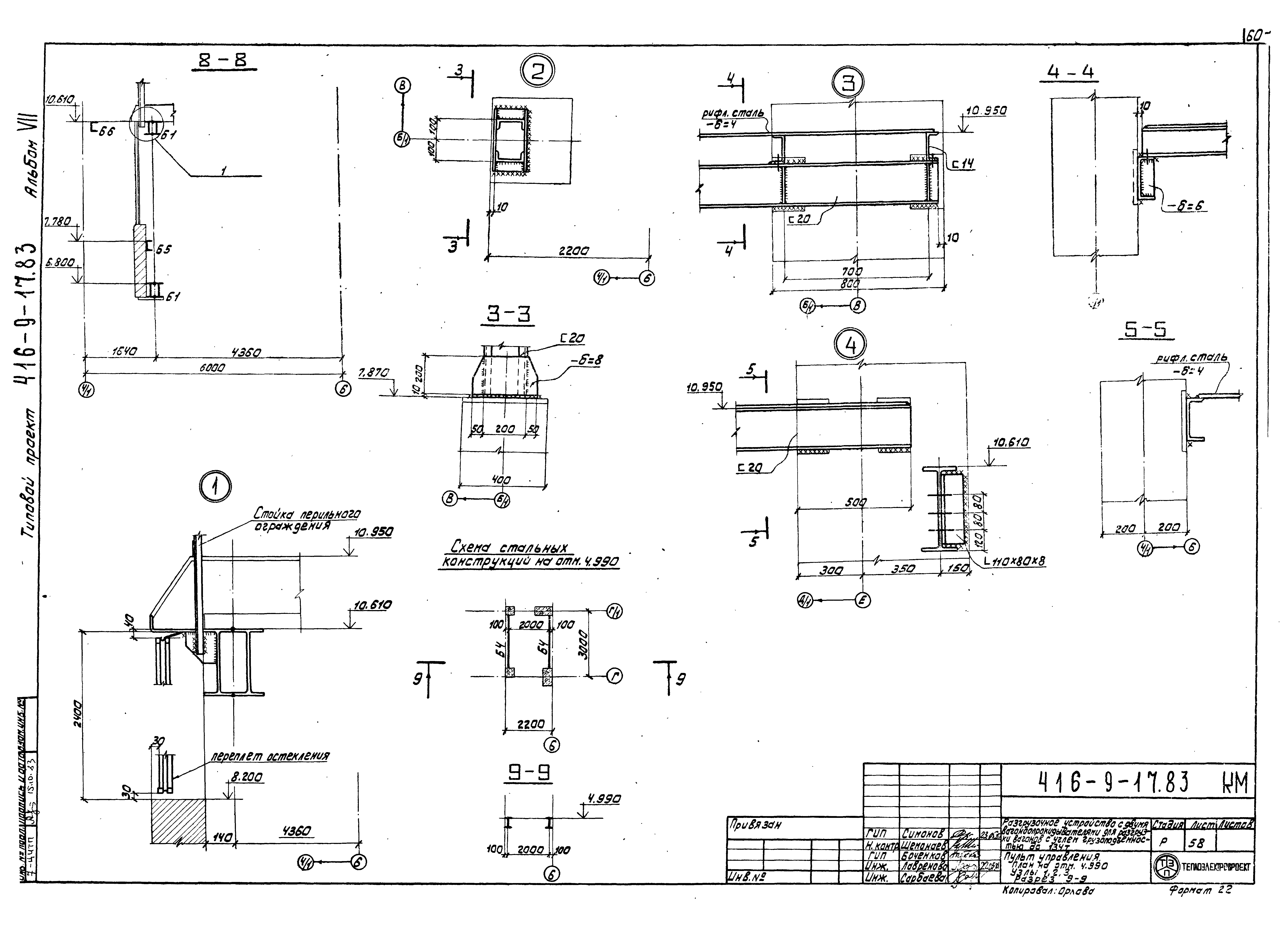
Пульт управления. План на отм. 4.990. Узлы 1, 2, 3. Разрез 9-9
Пульт управления. Разрезы 3-3, 4-4, 5-5, 7-7. Узел 5
Пульт управления. Узлы с 6 по 10
Схема остекления по осям 1 и 6
Схема остекления по рядам А и Е
Пульт управления. Схема расположения переплетов остекления. Узел 1 и 2
Разработан: Теплоэлектропроект
Утверждён:17.09.1981 Минэнерго СССР (USSR Minenergo 48)
Расположен в:Техническая документация Строительство Справочные документы Типовые строительные конструкции, изделия и узлы Общероссийский строительный каталог Промышленные предприятия, здания и сооружения Предприятия, здания и сооружения промышленности и электроэнергетики Ремонтные предприятия. Административно-бытовые, производственные и вспомогательные здания и сооружения промышленных предприятий Ремонтные предприятия, производственные и вспомогательные здания и сооружения
Типовой проект 416-9-17.83Типовой проект 416-9-17.83Типовой проект 416-9-17.83Типовой проект 416-9-17.83Типовой проект 416-9-17.83Типовой проект 416-9-17.83Типовой проект 416-9-17.83Типовой проект 416-9-17.83Типовой проект 416-9-17.83Типовой проект 416-9-17.83Типовой проект 416-9-17.83Типовой проект 416-9-17.83Типовой проект 416-9-17.83Типовой проект 416-9-17.83Типовой проект 416-9-17.83Типовой проект 416-9-17.83Типовой проект 416-9-17.83Типовой проект 416-9-17.83Типовой проект 416-9-17.83Типовой проект 416-9-17.83Типовой проект 416-9-17.83Типовой проект 416-9-17.83Типовой проект 416-9-17.83Типовой проект 416-9-17.83Типовой проект 416-9-17.83Типовой проект 416-9-17.83Типовой проект 416-9-17.83Типовой проект 416-9-17.83Типовой проект 416-9-17.83Типовой проект 416-9-17.83Типовой проект 416-9-17.83Типовой проект 416-9-17.83Типовой проект 416-9-17.83Типовой проект 416-9-17.83Типовой проект 416-9-17.83Типовой проект 416-9-17.83Типовой проект 416-9-17.83Типовой проект 416-9-17.83Типовой проект 416-9-17.83Типовой проект 416-9-17.83Типовой проект 416-9-17.83Типовой проект 416-9-17.83Типовой проект 416-9-17.83Типовой проект 416-9-17.83Типовой проект 416-9-17.83Типовой проект 416-9-17.83Типовой проект 416-9-17.83Типовой проект 416-9-17.83Типовой проект 416-9-17.83Типовой проект 416-9-17.83Типовой проект 416-9-17.83Типовой проект 416-9-17.83Типовой проект 416-9-17.83Типовой проект 416-9-17.83Типовой проект 416-9-17.83Типовой проект 416-9-17.83Типовой проект 416-9-17.83Типовой проект 416-9-17.83Типовой проект 416-9-17.83Типовой проект 416-9-17.83Типовой проект 416-9-17.83Типовой проект 416-9-17.83Типовой проект 416-9-17.83Типовой проект 416-9-17.83

© 2013 Ёшкин Кот :-) Карта сайта