Информационная система
«Ёшкин Кот»

Скачать базу одним архивом
Скачать обновления
История создания базы
Карта сайта

Скачать Типовой проект 416-9-17.83 Альбом II. Отопление и вентиляция

Дата актуализации: 10.08.2017

Типовой проект 416-9-17.83

Альбом II. Отопление и вентиляция

Обозначение: Типовой проект 416-9-17.83
Обозначение англ: 416-9-17.83
Статус:не определен законодательством
Название рус.:Альбом II. Отопление и вентиляция
Дата добавления в базу:01.09.2013
Дата актуализации:05.05.2017
Дата введения:26.05.1983
Оглавление:Титульный лист
Опись альбома
Общие данные
Планы систем отопления и вентиляции на отм. 11.630; 5.100; 7.900
Планы систем отопления и вентиляции на отм. 1.500
Планы систем отопления и вентиляции на отм. - 2.100
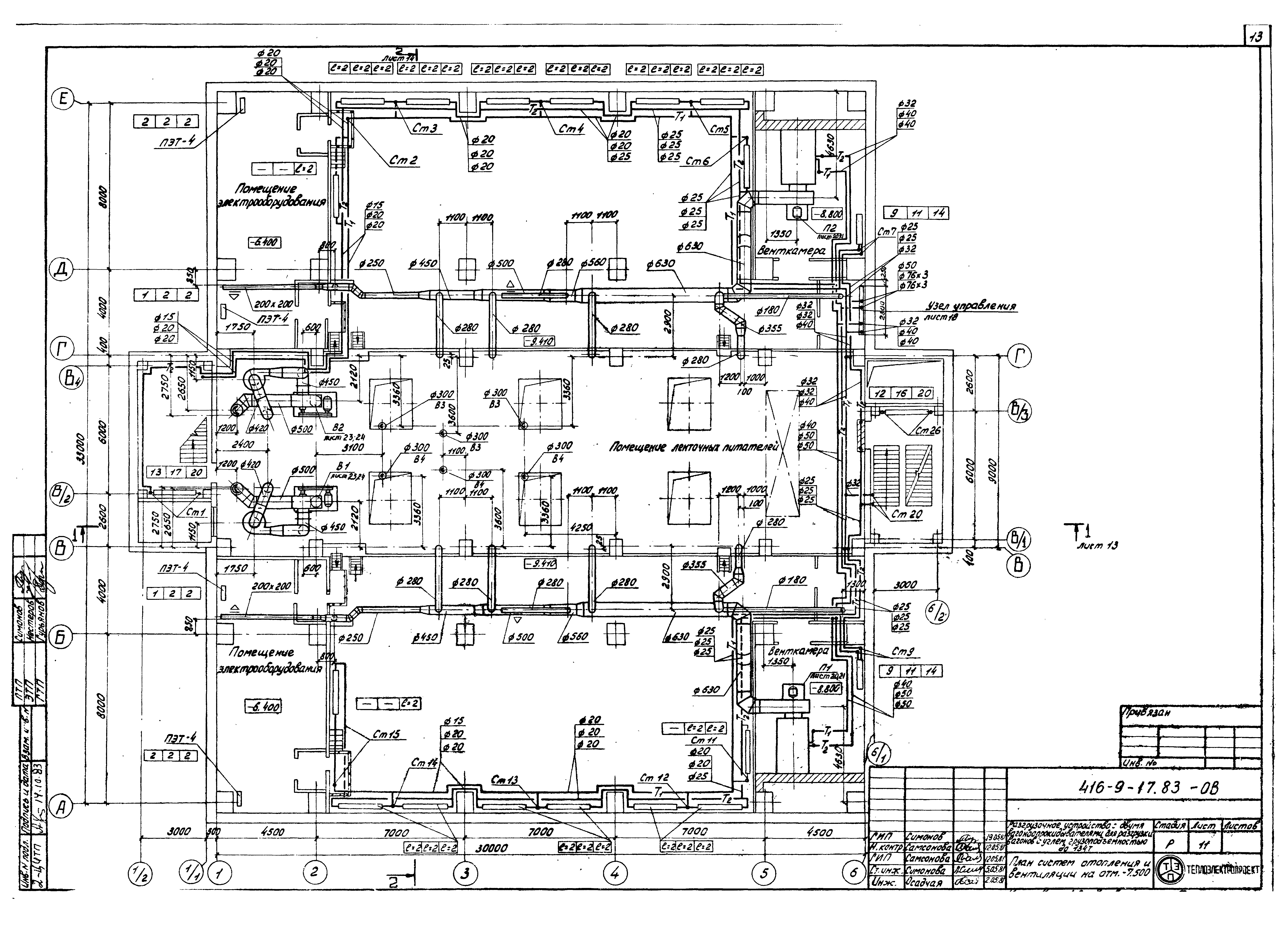
Планы систем отопления и вентиляции на отм. - 7.500
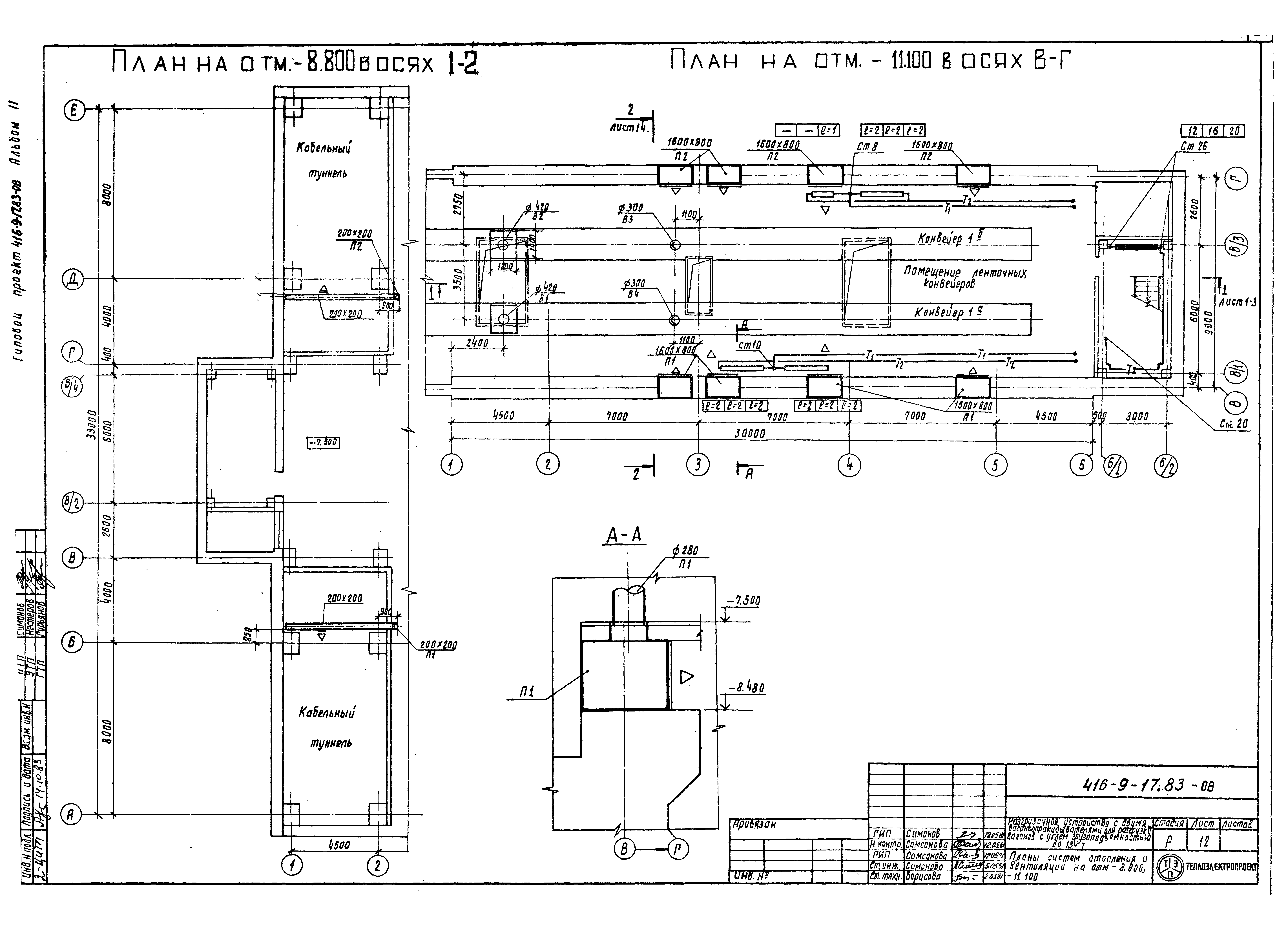
Планы систем отопления и вентиляции на отм. - 8.800; - 11.100
Разрез 1-1 систем отопления и вентиляции
Разрезы 2-2; 3-3 систем отопления и вентиляции
Схемы систем вентиляции П2, П4, В2, В3, ВЕ3, ВЕ4, ВЕ5
Схемы систем вентиляции П1, П3, В1, В4, ВЕ1, ВЕ2
Схема системы отопления
Узел управления
Схема теплоснабжения установок П1, П2
Установка системы П1
Установка систем П3, П4
Установка систем В1, В2
Установка систем В3, В4
План системы обогрева бункеров
Схема системы обогрева бункеров
Система обогрева бункеров трубопроводом
Разработан: Теплоэлектропроект
Утверждён:17.09.1981 Минэнерго СССР (USSR Minenergo 48)
Расположен в:Техническая документация Строительство Справочные документы Типовые строительные конструкции, изделия и узлы Общероссийский строительный каталог Промышленные предприятия, здания и сооружения Предприятия, здания и сооружения промышленности и электроэнергетики Ремонтные предприятия. Административно-бытовые, производственные и вспомогательные здания и сооружения промышленных предприятий Ремонтные предприятия, производственные и вспомогательные здания и сооружения
Типовой проект 416-9-17.83Типовой проект 416-9-17.83Типовой проект 416-9-17.83Типовой проект 416-9-17.83Типовой проект 416-9-17.83Типовой проект 416-9-17.83Типовой проект 416-9-17.83Типовой проект 416-9-17.83Типовой проект 416-9-17.83Типовой проект 416-9-17.83Типовой проект 416-9-17.83Типовой проект 416-9-17.83Типовой проект 416-9-17.83Типовой проект 416-9-17.83Типовой проект 416-9-17.83Типовой проект 416-9-17.83Типовой проект 416-9-17.83Типовой проект 416-9-17.83Типовой проект 416-9-17.83Типовой проект 416-9-17.83Типовой проект 416-9-17.83Типовой проект 416-9-17.83Типовой проект 416-9-17.83Типовой проект 416-9-17.83Типовой проект 416-9-17.83Типовой проект 416-9-17.83Типовой проект 416-9-17.83Типовой проект 416-9-17.83Типовой проект 416-9-17.83Типовой проект 416-9-17.83Типовой проект 416-9-17.83Типовой проект 416-9-17.83Типовой проект 416-9-17.83

© 2013 Ёшкин Кот :-) Карта сайта