Информационная система
«Ёшкин Кот»

Скачать базу одним архивом
Скачать обновления
История создания базы
Карта сайта

Скачать Серия 3.820-6 Выпуск 5. Плиты крепления сооружений, гасители

Дата актуализации: 10.08.2017

Серия 3.820-6

Выпуск 5. Плиты крепления сооружений, гасители

Обозначение: Серия 3.820-6
Обозначение англ: Series 3.820-6
Статус:не действует
Название рус.:Выпуск 5. Плиты крепления сооружений, гасители
Дата добавления в базу:01.09.2013
Дата актуализации:05.05.2017
Дата введения:01.01.1976
Дата окончания срока действия:01.06.1989
Оглавление:1. Титульный лист
2. Содержание альбома
3. Пояснительная записка
4. Технико-экономические показатели
5. Арматурно-опалубочный чертеж плиты ПП 5-10
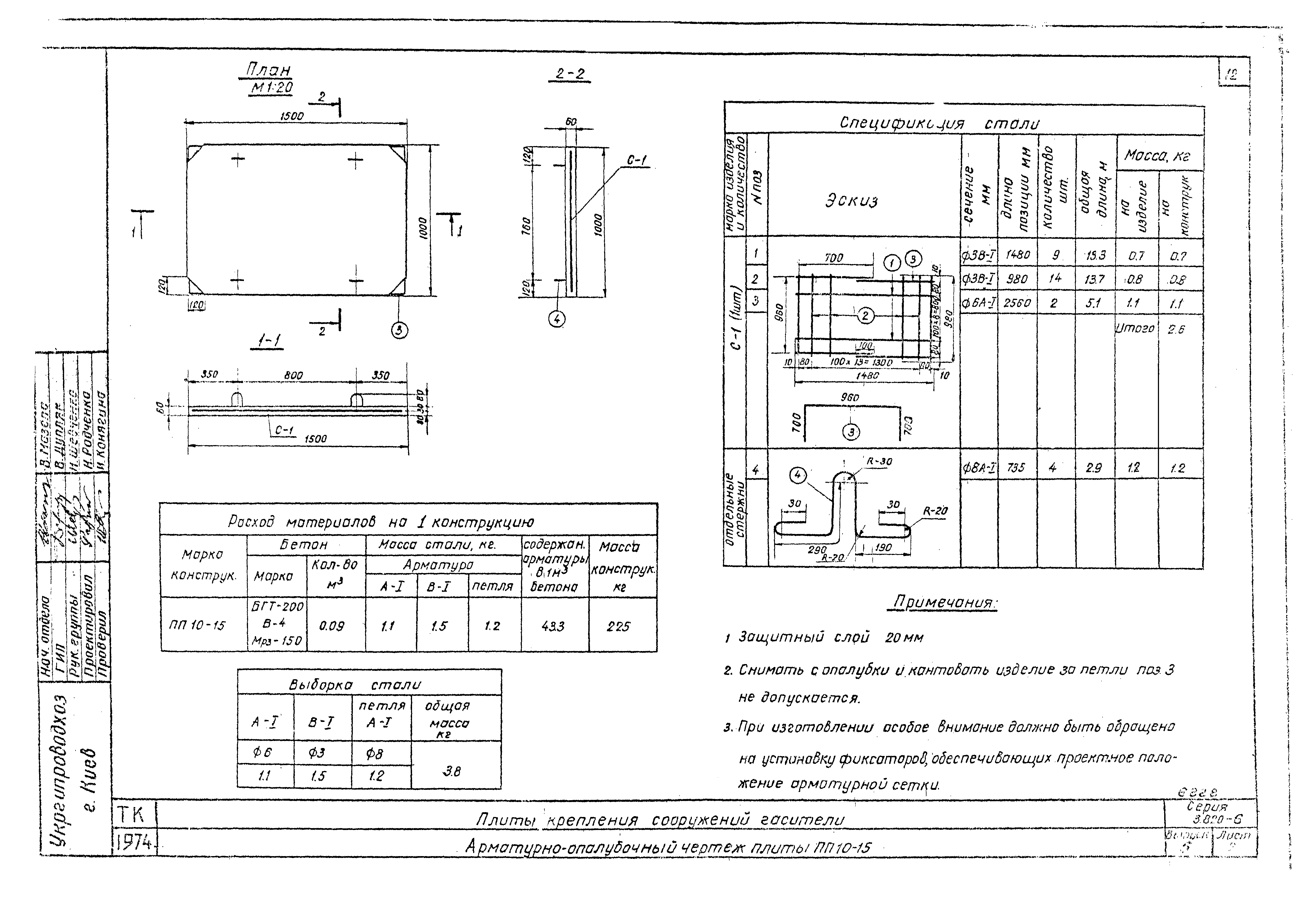
6. Арматурно-опалубочный чертеж плиты ПП 10-15
7. Арматурно-опалубочный чертеж плиты РП 10-20
8. Арматурно-опалубочный чертеж плиты РПк 10-20
9. Арматурно-опалубочный чертеж плиты РП 15-30 (вариант армирования сеткой)
10. Арматурно-опалубочный чертеж плиты РПк 15-30 (вариант армирования каркасами)
11. Арматурно-опалубочный чертеж плиты РПу 10-15
12. Арматурно-опалубочный чертеж плиты РПу 15-30
13. Арматурно-опалубочный чертеж плиты ТП-15
14. Арматурно-опалубочный чертеж плиты ТП-20
15. Арматурно-опалубочный чертеж плиты ТП-25
16. Арматурно-опалубочный чертеж гасителя Т-4
17. Арматурно-опалубочный чертеж гасителя Т-6
18. Арматурно-опалубочный чертеж гасителя Т-8
19. Арматурно-опалубочный чертеж гасителя Т-10
20. Арматурно-опалубочный чертеж блока гасителя "ГО"
21. Конструкция стыков
22. Схемы разрезки сеток для изготовления плит ТП
Разработан: Волгогипроводхоз
Укргипроводхоз Минводхоза СССР
Утверждён:09.06.1975 Минводхоз СССР (USSR Minvodkhoz 129)
Расположен в:Техническая документация Строительство Справочные документы Типовые строительные конструкции, изделия и узлы Общероссийский строительный каталог Строительные конструкции, изделия и узлы зданий и сооружений для всех видов строительства Конструкции и изделия сооружений и оборудования зданий Надземные сооружения Конструкции водохозяйственных сооружений и систем мелиорации
Чем заменён:
Серия 3.820-6Серия 3.820-6Серия 3.820-6Серия 3.820-6Серия 3.820-6Серия 3.820-6Серия 3.820-6Серия 3.820-6Серия 3.820-6Серия 3.820-6Серия 3.820-6Серия 3.820-6Серия 3.820-6Серия 3.820-6Серия 3.820-6Серия 3.820-6Серия 3.820-6Серия 3.820-6Серия 3.820-6Серия 3.820-6Серия 3.820-6Серия 3.820-6Серия 3.820-6Серия 3.820-6Серия 3.820-6Серия 3.820-6Серия 3.820-6Серия 3.820-6

© 2013 Ёшкин Кот :-) Карта сайта