Информационная система
«Ёшкин Кот»

Скачать базу одним архивом
Скачать обновления
История создания базы
Карта сайта

Скачать Типовой проект 296-1-32 Альбом I. Архитектурно-строительная часть

Дата актуализации: 10.08.2017

Типовой проект 296-1-32

Альбом I. Архитектурно-строительная часть

Обозначение: Типовой проект 296-1-32
Обозначение англ: 296-1-32
Статус:не определен законодательством
Название рус.:Альбом I. Архитектурно-строительная часть
Дата добавления в базу:01.09.2013
Дата актуализации:05.05.2017
Дата введения:23.04.1979
Оглавление:Содержание альбома
Пояснительная записка
Заглавный лист
Сводные спецификации расхода материалов
План площадки. Разрезы I-I - III-III; А-А; Б-Б
Игровая разметка. Схемы уклонов
Технологический план летнего использования
Типы резинобитумных покрытий. Узлы
Павильон для судей и оштрафованных игроков. План. Фасад в осях 2 - 3; 3 - 2; А - Б. Разрез I-I
Павильон для хоккеистов. План. Фасад в осях 4 - 1; 1 - 4; Г - В. Разрез I-I
Скамьи №1, №2. Стол. Сечения. Спецификация
Павильон для хоккеистов. Схемы каркаса по осям "В" и "Г". План стоек и балок
Павильон для судей и оштрафованных игроков. Схемы каркаса по осям "А", "Б". План по 1-1
Конструкция павильонов. Узлы А, Б, В
Конструкция павильонов. Узлы Г, Д, Е
План фундаментов под стойки ограждения
Схема ограждения хоккейной площадки
Общий вид борта (фрагмент I)
Общий вид ворот (фрагмент II)
Общий вид калитки (фрагмент III)
Узлы 1, 2. Разрез И-И
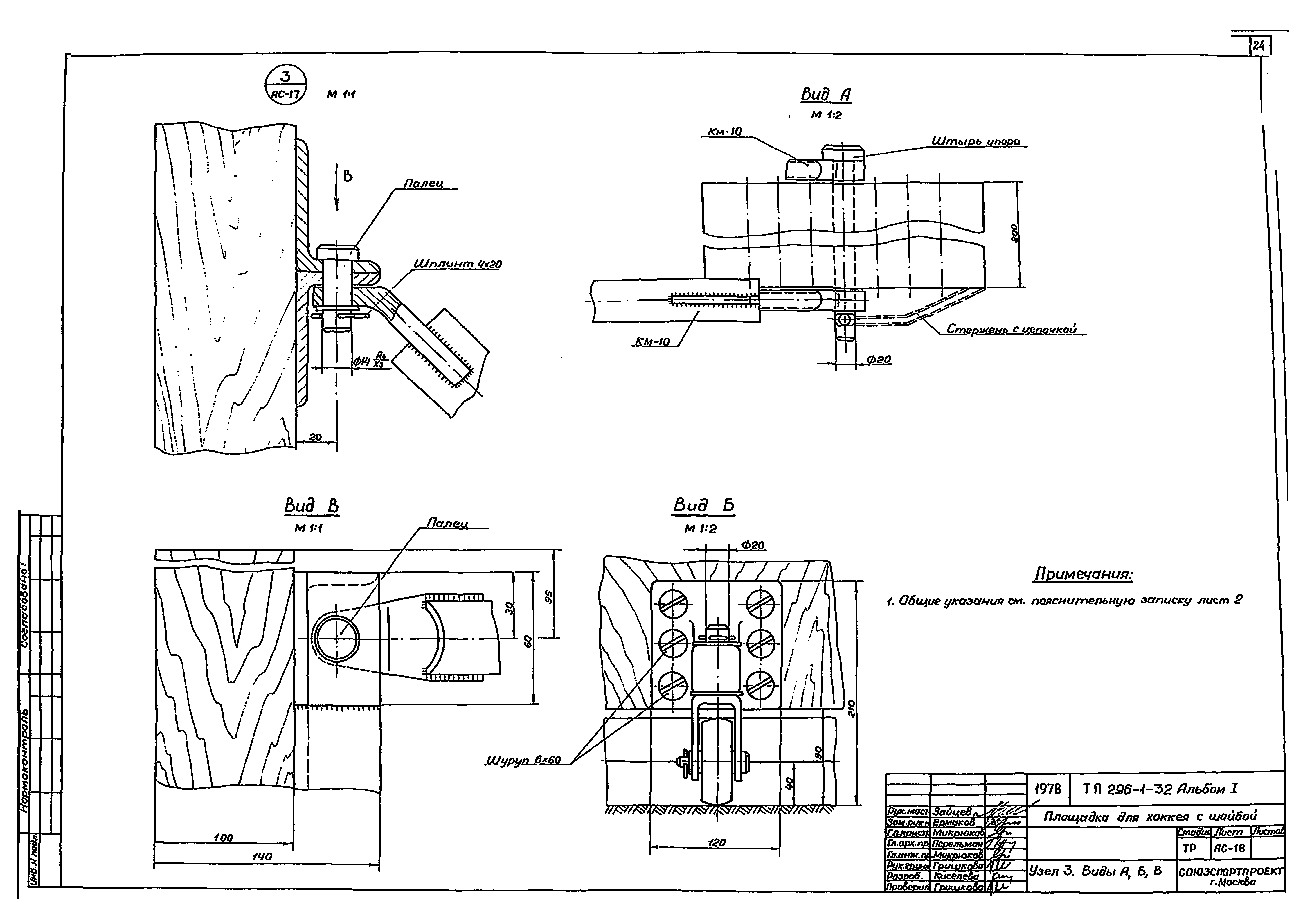
Узел 3. Виды А, Б, В
Узел 4. Сечения 1-1 - 3-3
Узел 5. Сечение 4-4
Конструкция металлических изделий КМ-1; КМ-2; КМ-3
Конструкция металлических изделий КМ-4; КМ-5; КМ-8
Конструкция металлических изделий КМ-6; КМ-7; КМ-9
Конструкция металлических изделий КМ-10
Спецификация металла на металлические изделия
Водоснабжение площадки
Разработан: Союзспортпроект Спорткомитета СССР
Утверждён:22.08.1978 Госгражданстрой (Gosgrazhdanstroy 185)
Расположен в:Техническая документация Строительство Справочные документы Типовые строительные конструкции, изделия и узлы Общероссийский строительный каталог Общественные здания в городах и поселках городского типа Физкультурно-оздоровительные и спортивные здания и сооружения Открытые спортивно-физкультурные сооружения
Типовой проект 296-1-32Типовой проект 296-1-32Типовой проект 296-1-32Типовой проект 296-1-32Типовой проект 296-1-32Типовой проект 296-1-32Типовой проект 296-1-32Типовой проект 296-1-32Типовой проект 296-1-32Типовой проект 296-1-32Типовой проект 296-1-32Типовой проект 296-1-32Типовой проект 296-1-32Типовой проект 296-1-32Типовой проект 296-1-32Типовой проект 296-1-32Типовой проект 296-1-32Типовой проект 296-1-32Типовой проект 296-1-32Типовой проект 296-1-32Типовой проект 296-1-32Типовой проект 296-1-32Типовой проект 296-1-32Типовой проект 296-1-32Типовой проект 296-1-32Типовой проект 296-1-32Типовой проект 296-1-32Типовой проект 296-1-32Типовой проект 296-1-32Типовой проект 296-1-32Типовой проект 296-1-32Типовой проект 296-1-32Типовой проект 296-1-32

© 2013 Ёшкин Кот :-) Карта сайта