| ||||||||||||||||||||||||
Скачать Серия СТ-02-17 Панельные стены для производственных зданий. Трехслойные панели с применением железобетонных ребристых плит длиной 6 м. Рабочие чертежиДата актуализации: 10.08.2017
|
| Обозначение: | Серия СТ-02-17 |
| Обозначение англ: | Series СТ-02-17 |
| Статус: | не действует |
| Название рус.: | Панельные стены для производственных зданий. Трехслойные панели с применением железобетонных ребристых плит длиной 6 м. Рабочие чертежи |
| Дата добавления в базу: | 01.09.2013 |
| Дата актуализации: | 05.05.2017 |
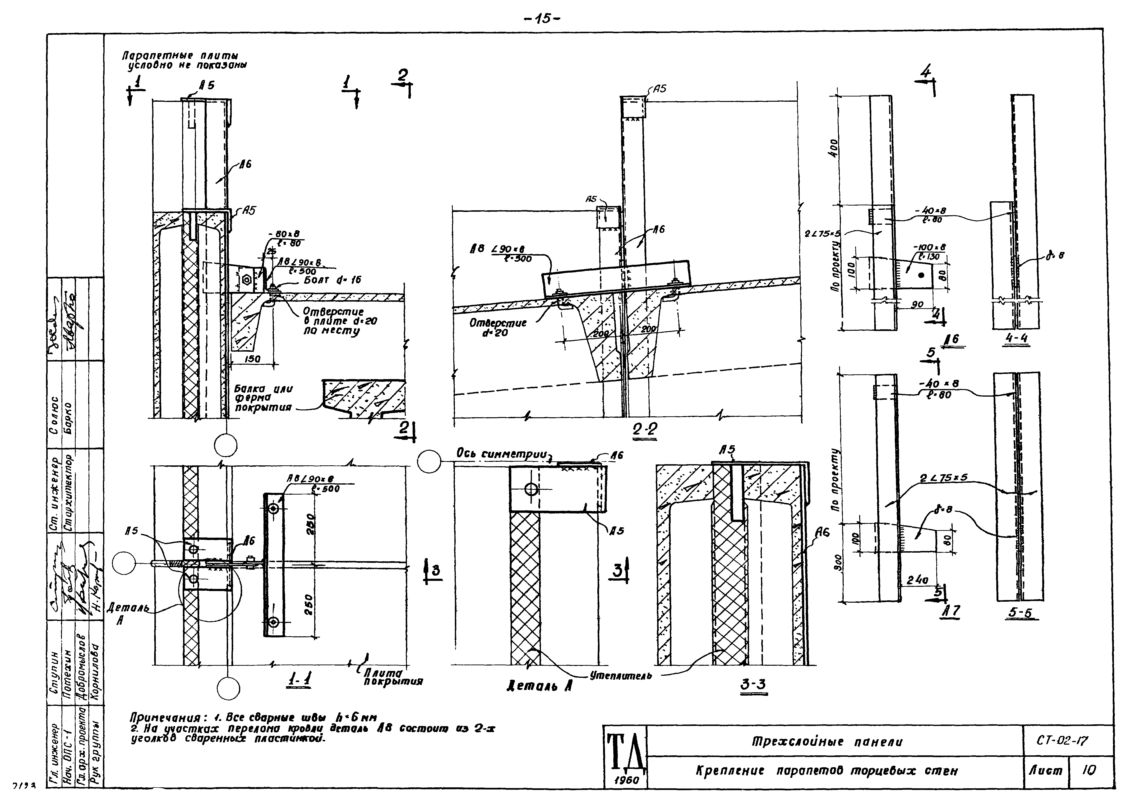
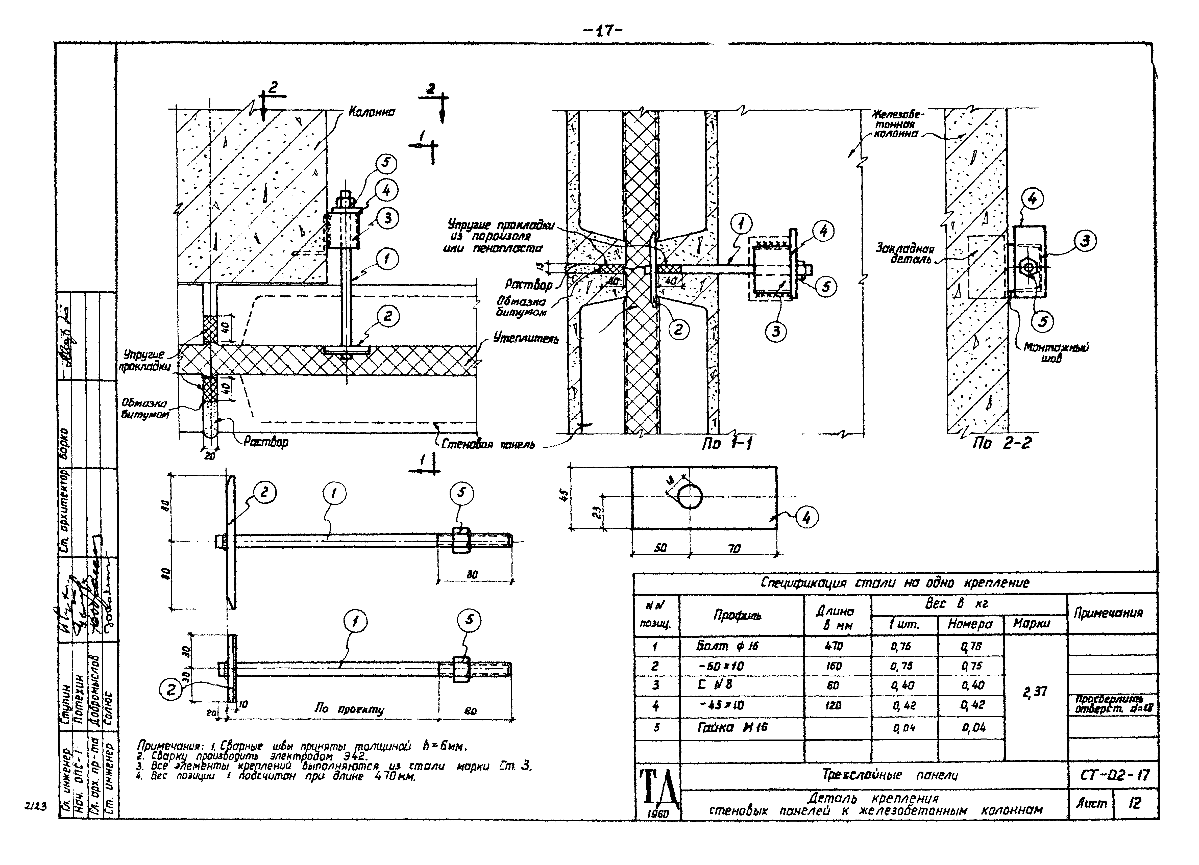
| Оглавление: | Пояснительная записка Маркировочная схема деталей продольных стен. Номенклатура стеновых панелей Маркировочная схема деталей торцевых стен Детали стен Детали карнизов Детали парапетов продольных стен Крепление парапетов продольных стен Детали парапетов торцевых стен Крепление парапетов торцевых стен Деталь крепления пожарной лестницы Деталь крепления стеновых панелей к железобетонным колоннам Сборочный чертеж панели ПТС1 Сборочный чертеж панели ПТС2 Сборочный чертеж панели ПТС3 Опалубочный чертеж плиты ПТ1 Опалубочный чертеж плиты ПТ2 Опалубочный чертеж плиты ПТ3 Опалубочный чертеж плит. Узлы Армирование плит. Разрезы Армирование плит. Узлы Арматурные каркасы КР1, КР2, КР3, КР4. Спецификация стали |
| Разработан: | НИИСФ Гипротис |
| Утверждён: | 11.01.1961 Госстрой СССР (Государственный комитет Совета Министров СССР по делам строительства) (USSR Gosstroy 23) |
| Расположен в: |




























