| ||||||||||||||||||||||||
Скачать Серия ПП-01-02/68 Выпуск IV. Фермы пролетом 18 м с шагом 12 м. Рабочие чертежиДата актуализации: 10.08.2017
|
| Обозначение: | Серия ПП-01-02/68 |
| Обозначение англ: | Series ПП-01-02/68 |
| Статус: | действует |
| Название рус.: | Выпуск IV. Фермы пролетом 18 м с шагом 12 м. Рабочие чертежи |
| Дата добавления в базу: | 01.09.2013 |
| Дата актуализации: | 05.05.2017 |
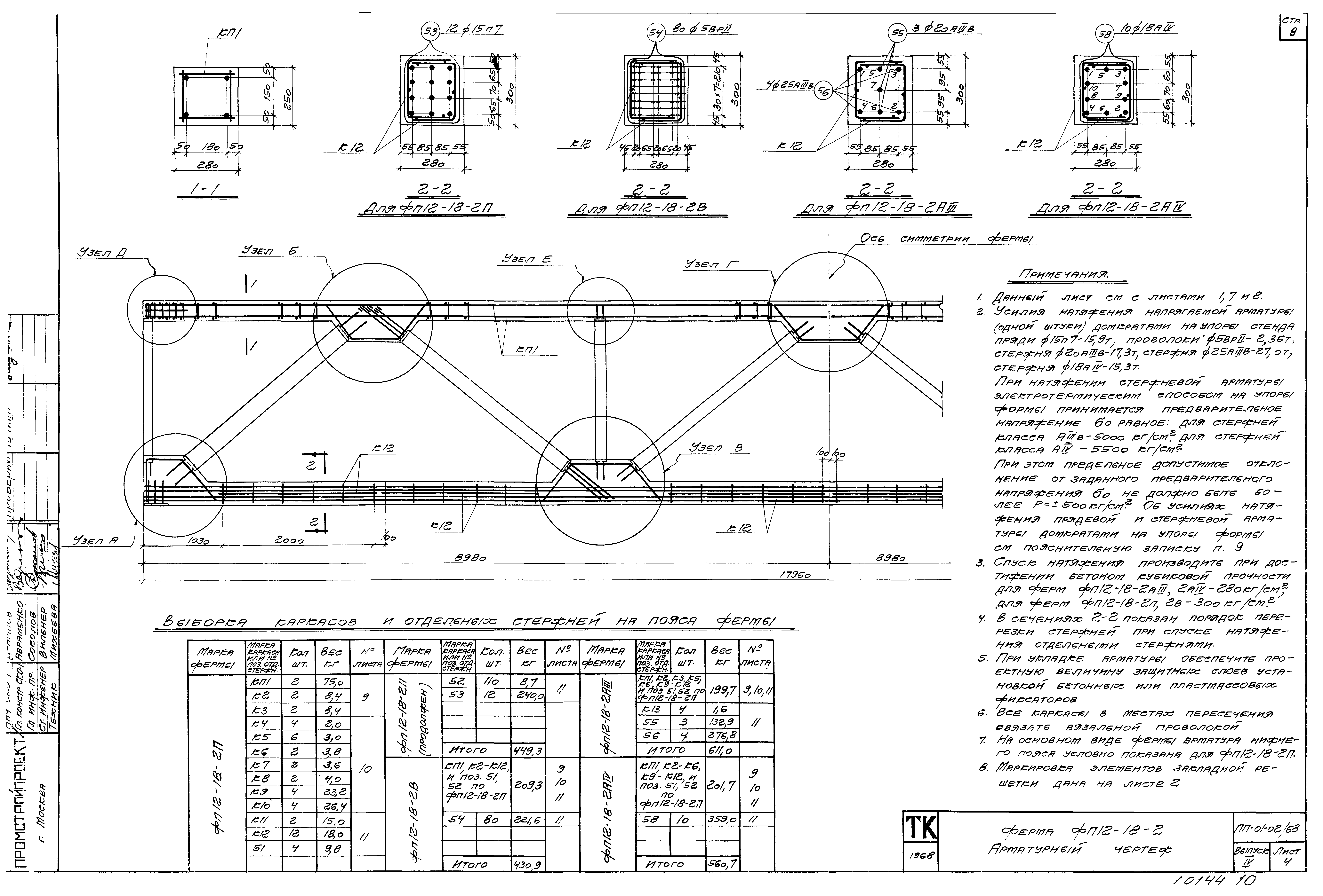
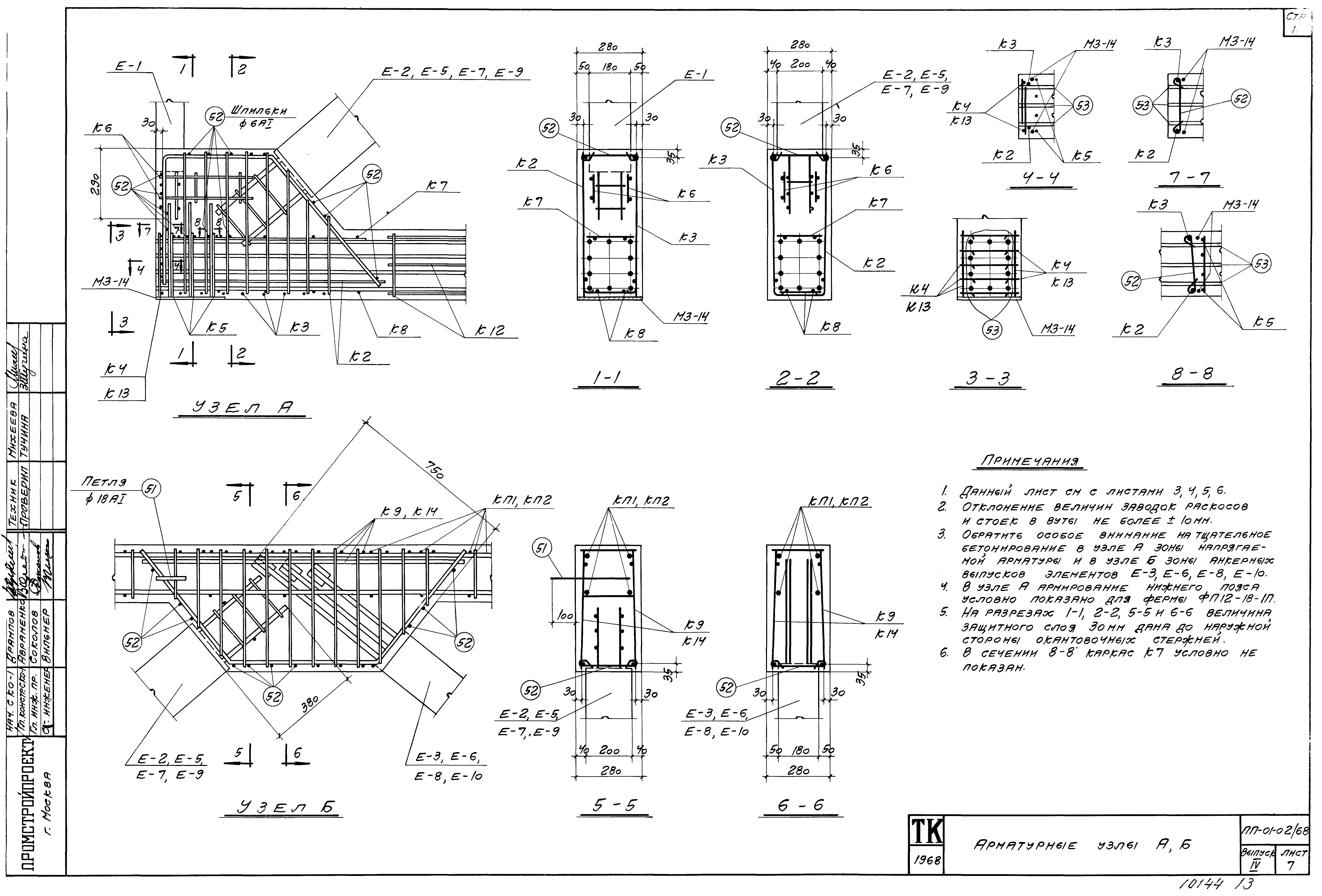
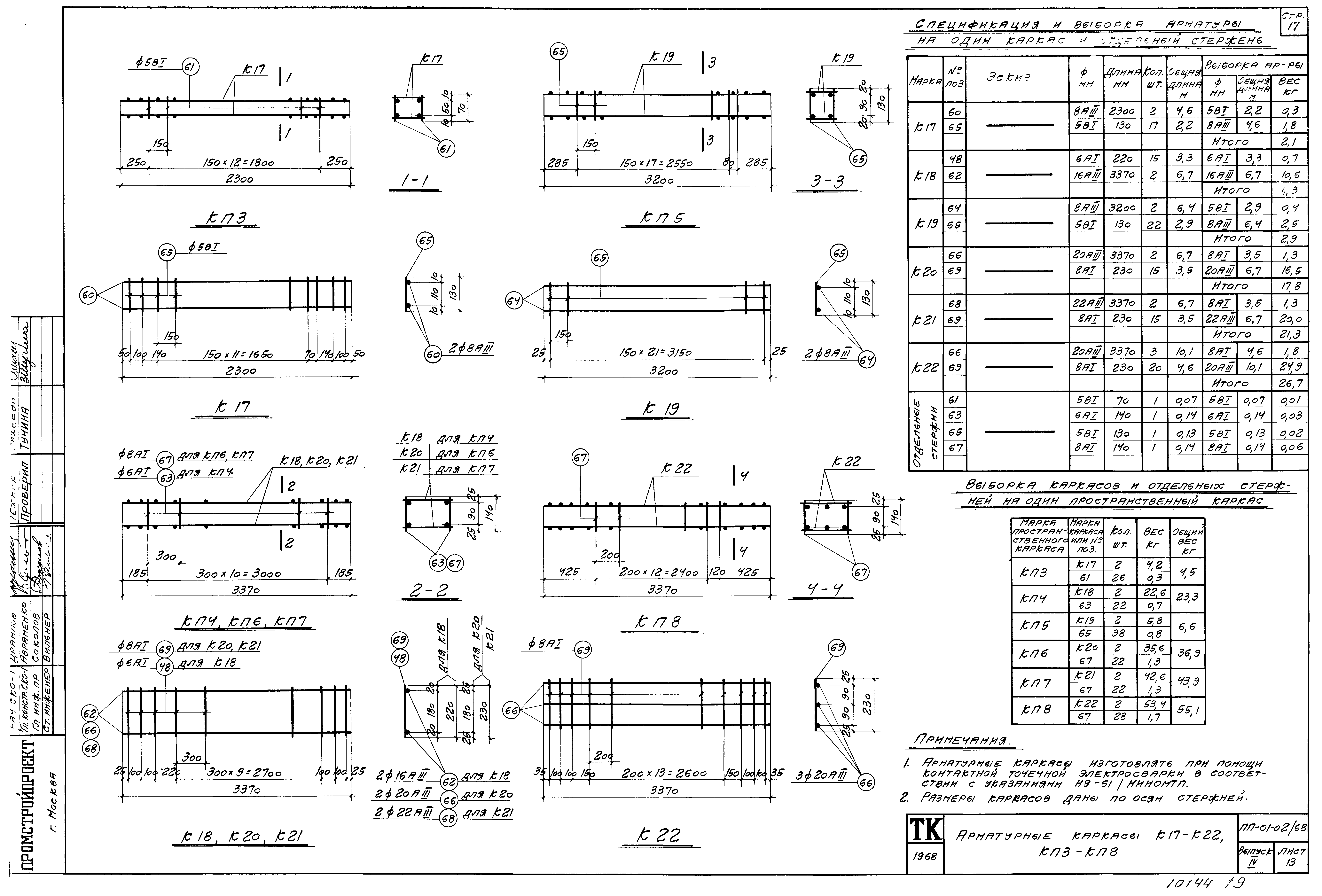
| Оглавление: | Пояснительная записка Фермы ФП12-18-1, 2, 3, 4. Расход материалов на фермы Фермы ФП12-18-1, 2, 3, 4. Опалубочный чертеж Фермы ФП12-18-1. Арматурный чертеж Фермы ФП12-18-2. Арматурный чертеж Фермы ФП12-18-3. Арматурный чертеж Фермы ФП12-18-4. Арматурный чертеж Арматурные узлы А, Б Арматурные узлы В, Г, Д, Е Арматурные каркасы К1 - К3, К15, КП1, КП2 Арматурные каркасы К4 - К10 Арматурные каркасы К11, К12, К14, К16 и отдельные стержни поз. 51 - 59 Элементы закладной решетки Е-1, Е-2, Е-4, Е-5, Е-7, Е-9 и расход материалов Арматурные каркасы К17 - К22, КП3 - КП8 Напряженные раскосы Е-3, Е-6, Е-8, Е-10. Схема попарного изготовления Арматурные каркасы К23 - К30. Напрягаемые стержни СН1 - СН4 Закладная деталь МЗ-14 и накладная деталь МС-3 Вариант замены прядевой арматуры класса П-7 сечением 15 мм на 9 мм Варианты замены в нижних поясах ферм диаметров напрягаемых стержней класса А-IIIв и А-IV на большие Схема испытания стропильных ферм пролетом 18 м с шагом ферм 12 м |
| Разработан: | НИИЖБ Госстроя СССР Промстройпроект |
| Утверждён: | 18.04.1969 Госстрой СССР (Государственный комитет Совета Министров СССР по делам строительства) (USSR Gosstroy 51) |
| Расположен в: |

























