| ||||||||||||||||||||||||
Скачать Типовой проект производства работ на строительство средней общеобразовательной школы на 33 класса (1251 - 1296 учащихся) в конструкциях серии 1.090.1-1Дата актуализации: 10.08.2017 |
| Статус: | не действует |
| Название рус.: | Типовой проект производства работ на строительство средней общеобразовательной школы на 33 класса (1251 - 1296 учащихся) в конструкциях серии 1.090.1-1 |
| Дата добавления в базу: | 01.09.2013 |
| Дата актуализации: | 05.05.2017 |
| Область применения: | Типовой проект производства работ разработан в соответствии со СНиП 3.01.01—85 "Организация строительного производства" и тематическим планом, утвержденным Минсевзапстроем СССР, на основании рабочих чертежей типового проекта 22I-I—384.85 "Средняя общеобразовательная школа на 33 класса (1251-1296 учащихся) в конструкциях серии 1.090.1-1" |
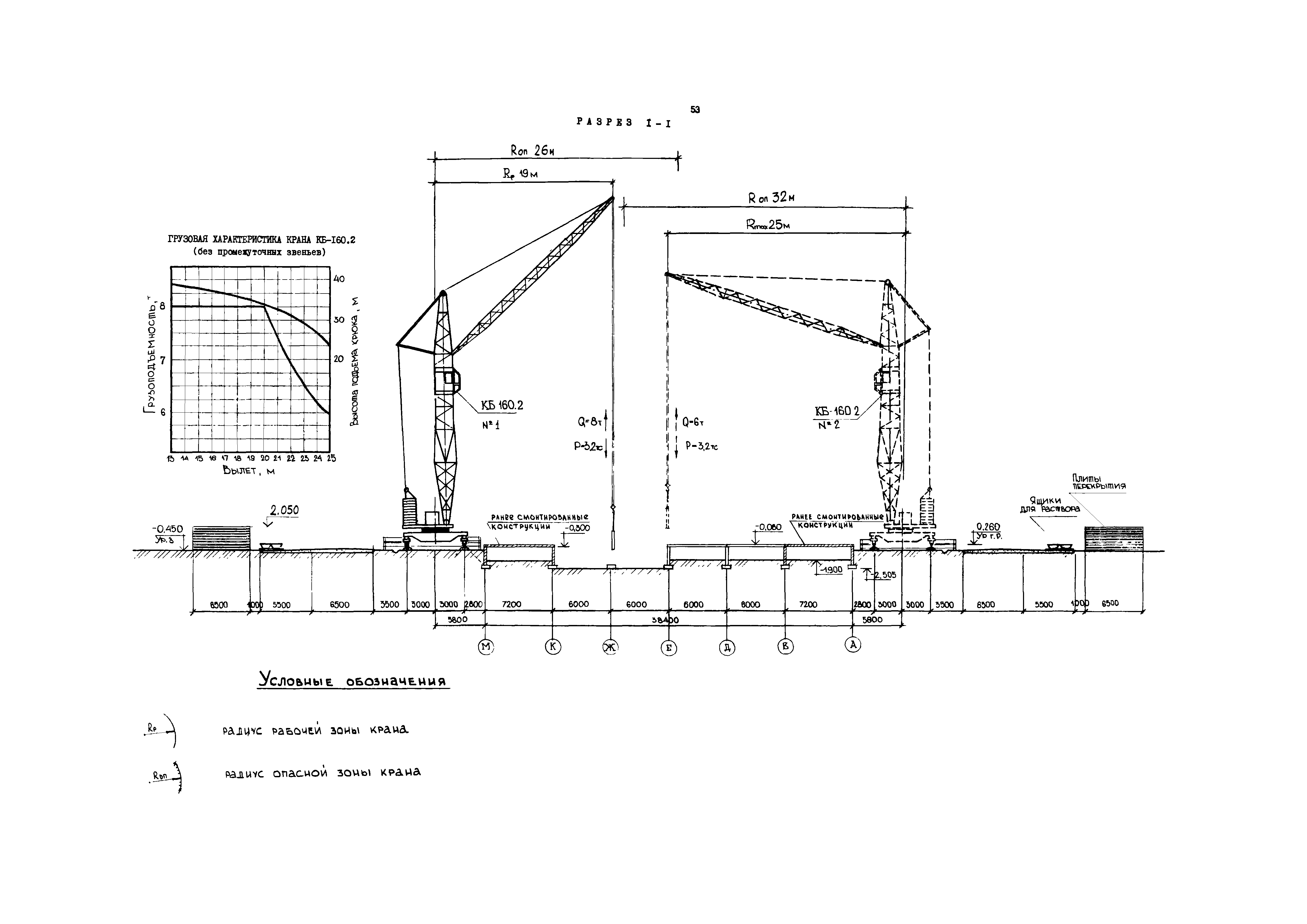
| Оглавление: | Пояснительная записка Стройгенплан на период возведения надземной части здания (вариант I) Стройгенплан на период возведения надземной части здания (вариант II) Технологическая карта на производство земляных работ Технологическая карта на монтаж конструкций здания ниже отметки 0,000 Технологическая карта на монтаж конструкций здания выше отметки 0,000 Монтажные балки Б1, Б2 Решения по выполнению геодезических работ Технологическая карта на устройство полов Технологическая карта на устройство кровли УНТД по комплектации конструкциями, изделиями и материалами Мероприятия по выполнению работ методом сквозного поточного бригадного подряда Контроль качества при производстве строительно-монтажных работ Календарный план производства работ Приложение. Документация по бригадному подряду на строительно-монтажные работы |
| Разработан: | Проектно-технологический институт Минсевзапстроя СССР ЦНИИЭП торгово-бытовых зданий и торговых комплексов |
| Утверждён: | Минсевзапстрой СССР (USSR Minsevzapstroy ) |
| Расположен в: | |
| Нормативные ссылки: |















































































































































































