Информационная система
«Ёшкин Кот»

Скачать базу одним архивом
Скачать обновления
История создания базы
Карта сайта

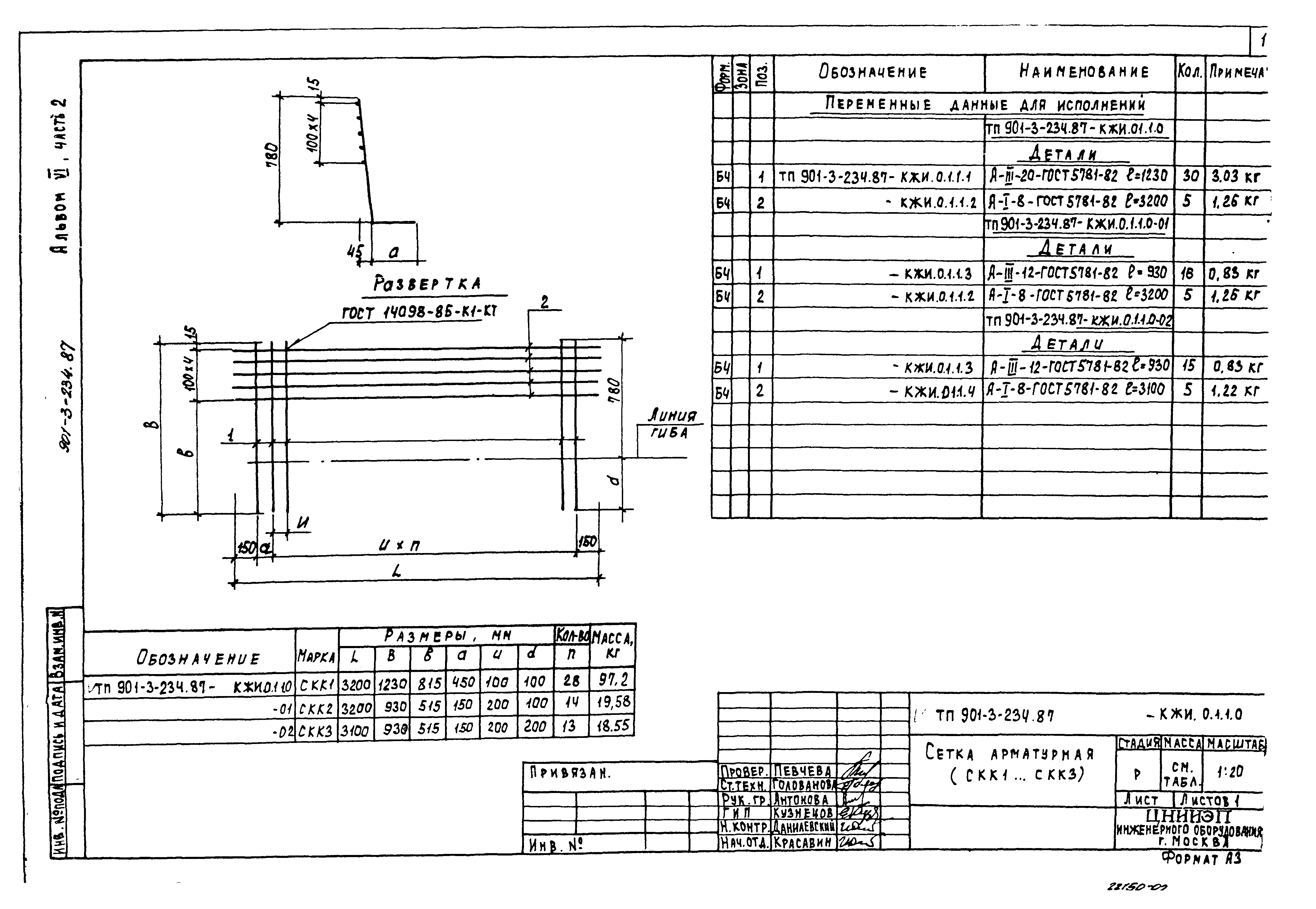
Скачать Типовой проект 901-3-234.87 Альбом VI. Часть 2. Строительные изделия. Контактные камеры

Дата актуализации: 10.08.2017

Типовой проект 901-3-234.87

Альбом VI. Часть 2. Строительные изделия. Контактные камеры

Обозначение: Типовой проект 901-3-234.87
Обозначение англ: 901-3-234.87
Статус:не определен законодательством
Название рус.:Альбом VI. Часть 2. Строительные изделия. Контактные камеры
Дата добавления в базу:01.09.2013
Дата актуализации:05.05.2017
Дата введения:13.02.1985
Оглавление:901-3-234.87-КЖИ.1.0.0.0 Панель стеновая
901-3-234.87-КЖИ.1.0.0.0ВМС Ведомость расхода стали на дополнительные закладные изделия, на элемент, кг
901-3-234.87-КЖИ.1.0.0.0СБ Панель стеновая. Сборочный чертеж
901-3-234.87-КЖИ.2.0.0.0 Плита перекрытия
901-3-234.87-КЖИ.0.1.0.0 Каркас пространственный (КПК1 - КПК4)
901-3-234.87-КЖИ.0.2.0.0 Каркас пространственный (КПК5)
901-3-234.87-КЖИ.0.2.1.0 Каркас плоский (КРК4)
901-3-234.87-КЖИ.0.0.1.0 Каркас плоский (КРК1 - КРК3)
901-3-234.87-КЖИ.0.0.2.0 Сетка арматурная (СК1)
901-3-234.87-КЖИ.0.0.3.0 Сетка арматурная (СК2)
901-3-234.87-КЖИ.0.1.1.0 Сетка арматурная (СКК1 - СКК3)
901-3-234.87-КЖИ.0.1.2.0 Сетка арматурная (СКК4 - СКК6)
901-3-234.87-КЖИ.0.0.4.0 Изделие закладное (МН2; МН3)
901-3-234.87-КЖИ.2.0.1.0 Изделие закладное (МН4)
Разработан: ЦНИИЭП инженерного оборудования
Утверждён:13.02.1985 Госгражданстрой (Gosgrazhdanstroy 43)
Расположен в:Техническая документация Строительство Справочные документы Типовые строительные конструкции, изделия и узлы Общероссийский строительный каталог Промышленные предприятия, здания и сооружения Здания и сооружения санитарно-технические Водоснабжение Очистные сооружения Станции очистки воды
Типовой проект 901-3-234.87Типовой проект 901-3-234.87Типовой проект 901-3-234.87Типовой проект 901-3-234.87Типовой проект 901-3-234.87Типовой проект 901-3-234.87Типовой проект 901-3-234.87Типовой проект 901-3-234.87Типовой проект 901-3-234.87Типовой проект 901-3-234.87Типовой проект 901-3-234.87Типовой проект 901-3-234.87Типовой проект 901-3-234.87Типовой проект 901-3-234.87Типовой проект 901-3-234.87Типовой проект 901-3-234.87

© 2013 Ёшкин Кот :-) Карта сайта