Информационная система
«Ёшкин Кот»

Скачать базу одним архивом
Скачать обновления
История создания базы
Карта сайта

Скачать Типовой проект 320-29 Альбом I. Архитектурно-строительная часть

Дата актуализации: 10.08.2017

Типовой проект 320-29

Альбом I. Архитектурно-строительная часть

Обозначение: Типовой проект 320-29
Обозначение англ: 320-29
Статус:действует
Название рус.:Альбом I. Архитектурно-строительная часть
Дата добавления в базу:01.09.2013
Дата актуализации:05.05.2017
Дата введения:11.10.1968
Оглавление:Содержание
Пояснительная записка
Питьевой фонтанчик тип I. Фасад. План. Разрез 1-1 и сечение а-а
Питьевой фонтанчик тип II. Фасад. План. Разрез 1-1 и сечение а-а
Питьевой фонтанчик тип III. Фасад. План. Разрез 1-1 и сечение а-а
Питьевые фонтанчики. Конструкция стоек СТ-1 и СТ-2
Питьевые фонтанчики. Конструкция стойки СТ-3, марки М-4
Питьевые фонтанчики. Конструкция чаш Ч-1, Ч-2, Ч-3. Спецификация арматуры
Питьевые фонтанчики. Конструкция фундамента Ф-1. Спецификация арматуры
Шаблоны чаш питьевых фонтанчиков
Питьевые фонтанчики типы I, II, III. Водопровод, канализация
Питьевой фонтанчик тип IV. Фасады. План. Монтажная схема
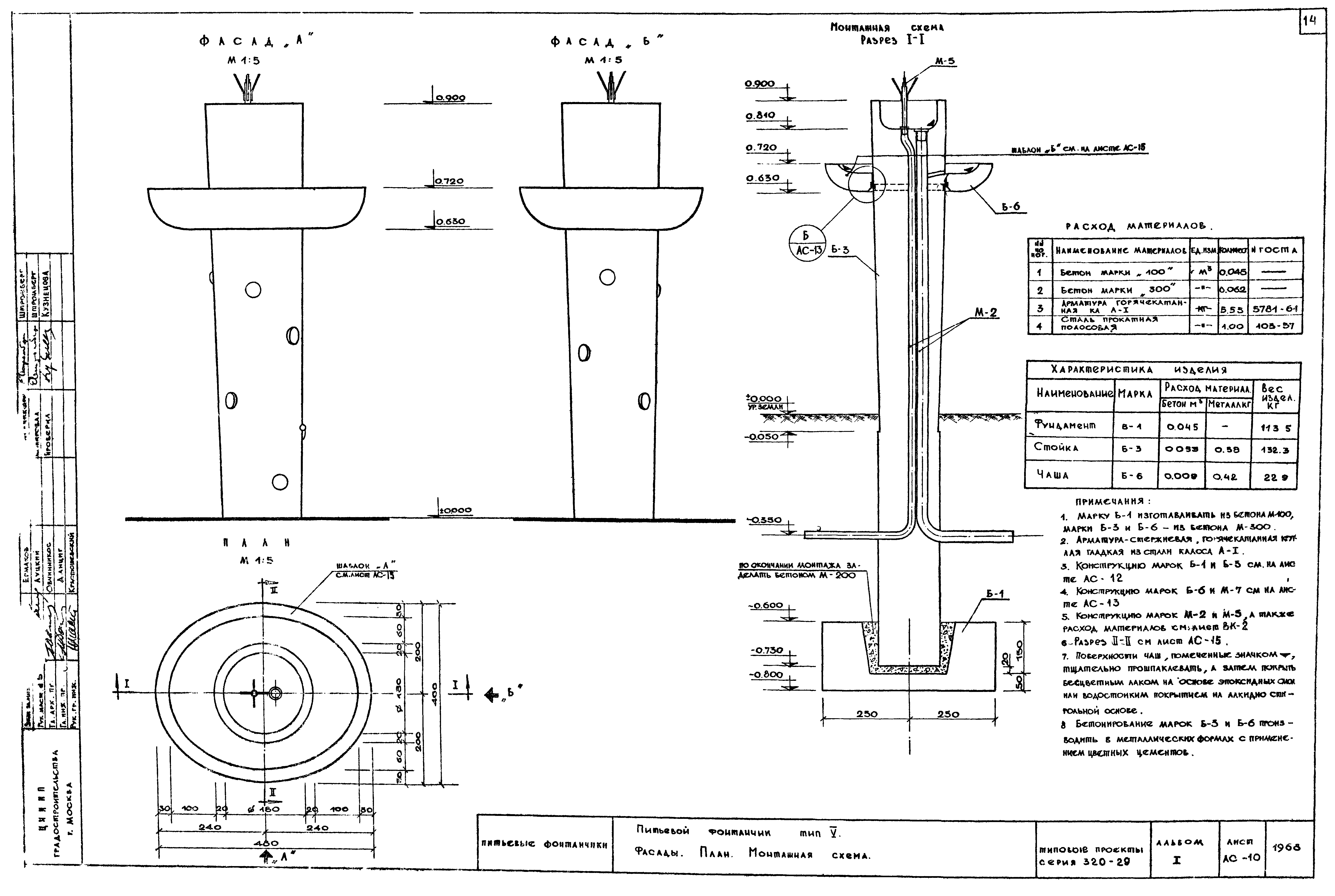
Питьевой фонтанчик тип V. Фасады. План. Монтажная схема
Питьевой фонтанчик тип VI. Фасады. План. Монтажная схема
Питьевые фонтанчики типы IV, V, VI. Фундамент Б-1. Стойки Б-2, Б-3 и Б-4
Питьевые фонтанчики типы IV, V, VI. Чаши Б-5 и Б-6. Закладная деталь М-8
Питьевой фонтанчик тип IV. Разрез II-II. Шаблоны "А", "Б", "В"
Питьевой фонтанчик тип V. Разрез II-II. Шаблоны "А", "Б", "В"
Питьевой фонтанчик тип VI. Разрез II-II. Шаблоны "А", "Б", "В"
Питьевые фонтанчики типы IV, V, VI. Водопровод и канализация. Конструкция марок М-1 по М-7
Разработан: ЦНИИП градостроительства
Утверждён:11.10.1968 ЦНИИП градостроительства Госгражданстроя (278)
Издан: ЦИТП Госстроя СССР (CITP, Gosstroy (USSR) 1968 г. )
Расположен в:Техническая документация Строительство Справочные документы Типовые строительные конструкции, изделия и узлы Общероссийский строительный каталог Малые формы архитектуры и элементы благоустройства Малые архитектурные формы Фонтаны, бассейны, питьевые фонтанчики
Типовой проект 320-29Типовой проект 320-29Типовой проект 320-29Типовой проект 320-29Типовой проект 320-29Типовой проект 320-29Типовой проект 320-29Типовой проект 320-29Типовой проект 320-29Типовой проект 320-29Типовой проект 320-29Типовой проект 320-29Типовой проект 320-29Типовой проект 320-29Типовой проект 320-29Типовой проект 320-29Типовой проект 320-29Типовой проект 320-29Типовой проект 320-29Типовой проект 320-29Типовой проект 320-29Типовой проект 320-29

© 2013 Ёшкин Кот :-) Карта сайта