Информационная система
«Ёшкин Кот»

Скачать базу одним архивом
Скачать обновления
История создания базы
Карта сайта

Скачать Типовой проект 320-28 Альбом I. Архитектурно-строительная часть

Дата актуализации: 10.08.2017

Типовой проект 320-28

Альбом I. Архитектурно-строительная часть

Обозначение: Типовой проект 320-28
Обозначение англ: 320-28
Статус:действует
Название рус.:Альбом I. Архитектурно-строительная часть
Дата добавления в базу:01.09.2013
Дата актуализации:05.05.2017
Оглавление:Содержание
Пояснительная записка
Номенклатура
Плескательный бассейн тип 1. План, экспликация
Плескательный бассейн тип 1. Фасад по "А". Фасад по "Б"
Плескательный бассейн тип 1. Сечения по I-I - V-V
Плескательный бассейн тип 1. Разбивочный чертеж
Плескательный бассейн тип 1. Разбивочный чертеж плиты фонтана, "ступени" бассейна. Привязка горки из камней
Плескательный бассейн тип 1. Разрезы по 1-1 и 2-2. Расход материалов
Плескательный бассейн тип 1. Детали "А", "Б", "В", "Г", "Д", "Е", "Ж". По А-А, по Б-Б
Плескательный бассейн тип 1. Армирование ванны бассейна и ручейка. Спецификация арматуры. Расход бетона. Выборка арматуры
Плескательный бассейн тип 1. Тобогган. Армирование. Детали "А", "Б", "В". Спецификация арматуры. Расход бетона. Выборка арматуры
Плескательный бассейн тип 1. Деревянный настил для тобоггана. Детали "А", "Б", "В". Спецификации
Плескательный бассейн тип 1. Сантехническая схема. План. Сечения с 1-1 по 5-5. Детали А и Б. Гидрозатвор. Экспликация
Плескательный бассейн тип 1. Водопровод и канализация. Конструкция марок М-1, М-2, М-3, М-4. Спецификация металлических деталей
Плескательный бассейн тип 2. Фасад по "А"
Плескательный бассейн тип 2. План
Плескательный бассейн тип 2. План. Экспликация
Плескательный бассейн тип 2. Разрез по 1-1. Сечения по а-а, б-б
Плескательный бассейн тип 2. Разрезы по 2-2 и 3-3
Плескательный бассейн тип 2. План земляных работ. Сечения 1-1 и 2-2
Плескательный бассейн тип 2. Опалубочный план. Расход материалов на бассейн
Плескательный бассейн тип 2. Опалубочный чертеж. Сечения по 1-1, 2-2, 3-3, 4-4, 5-5 и 6-6
Плескательный бассейн тип 2. Арматурный план ванны. Детали 1, 2, 3. Спецификация арматуры
Плескательный бассейн тип 2. Конструкция покрытий
Плескательный бассейн тип 2. Конструкция декоративного камня К-1
Плескательный бассейн тип 2. Конструкция игровых тумб Т-1, Т-2 и Т-3. Спецификация арматуры. Расход бетона
Плескательный бассейн тип 2. Конструкция деревянного настила СК-1. Спецификация древесины. Выборка металлических изделий
Плескательный бассейн тип 2. Камера управления
Плескательный бассейн тип 2. Водопровод и канализация. План разводки трубопроводов. Расход материалов
Плескательный бассейн тип 2. Водопровод и канализация. Разрезы по сантехническим закладным деталям с М-1 по М-6
Плескательный бассейн тип 2. Водопровод и канализация. Стальные сварные короба М-1, 2, 3. Стальные сварные воронки М-4, 5. Трубчатый перелив М-6. Сальники М-8, 9. Спецификация металлических деталей
Плескательный бассейн тип 2. Водопровод и канализация. Камера управления. План, разрезы 1-1, 2-2. Расход материалов
Плескательный бассейн тип 2. Беседка. План пола. План потолка
Плескательный бассейн тип 2. Беседка. Виды "А", "Б", "В", "Г"
Плескательный бассейн тип 2. Беседка. Монтажные планы конструкции беседок. Расход материалов на беседки
Плескательный бассейн тип 2. Беседка. Разрез 2-2. Детали с 1 по 6
Плескательный бассейн тип 2. Беседка. Рама Р-1. Фасад. Общий вид. Позиции 1, 2. Спецификация
Плескательный бассейн тип 2. Беседка. Панель пола П-1
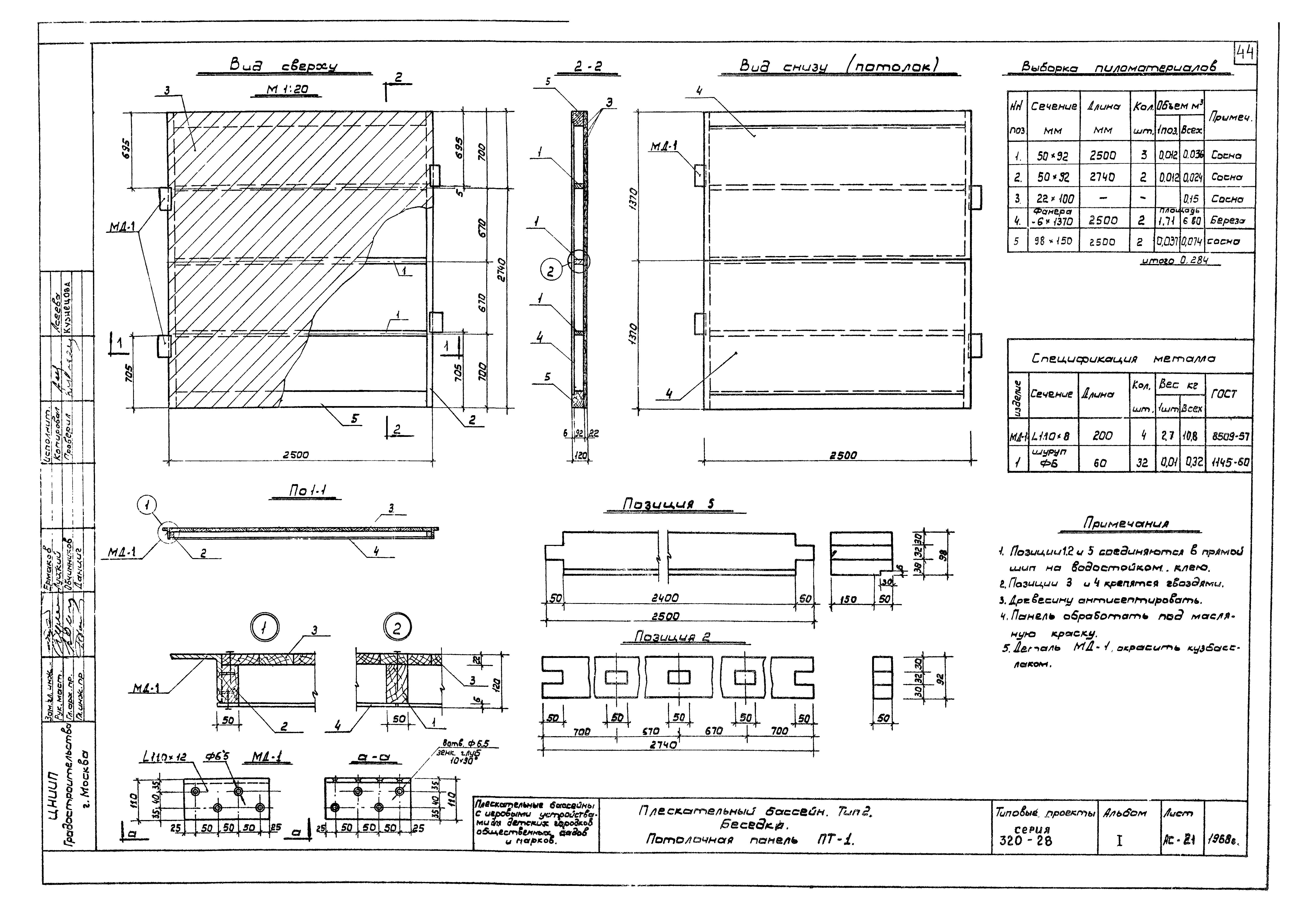
Плескательный бассейн тип 2. Беседка. Потолочная панель ПТ-1
Плескательный бассейн тип 2. Беседка. Панель ПС-1
Плескательный бассейн тип 2. Беседка. Вставки В-1А и В-2А
Плескательный бассейн тип 2. Беседка. Панель ПС-2
Плескательный бассейн тип 3. План. Экспликация
Плескательный бассейн тип 3. Сечения I-I, II-II, III-III
Плескательный бассейн тип 3. Разбивочный чертеж
Плескательный бассейн тип 3. План земляных работ. Сечения I-I, II-II; деталь А, расход материалов на бассейн
Плескательный бассейн тип 3. Арматурный план, план расположения закладных деталей, сечения 1-1, 2-2, 3-3, 4-4, 5-5, по а-а и б-б, марки М-6 и М-7. Спецификации арматуры и закладных деталей. Выборка марок металлических изделий
Плескательный бассейн тип 3. Конструкция деревянного настила и детали конструкции ванны. План секции настила, сечения I-I, II-II, узлы А, Б, В, Г и Д. Спецификация древесины, выборка металлических изделий
Плескательный бассейн тип 3 (4 и 5). Конструкция тобоггана. План. Разрезы по А-А, Б-Б. Детали А, Б, В, Г. Сечения по 1-1, 2-2, 3-3. Выборка металла. Расход материалов
Плескательный бассейн тип 3 (4 и 5). Конструкция тобоггана. Спецификация металлических деталей. Раскрой элементов. Позиции 1, 2, 5, 6, 7, 8, 9, 10
Плескательный бассейн тип 3. Водопровод и канализация. План разводки трубопроводов, расход материалов на бассейн
Плескательный бассейн тип 3. Водопровод и канализация. Разрезы 1-1, 2-2, 3-3, 4-4, планы по а-а и б-б, деталь А
Плескательный бассейн тип 3. Водопровод и канализация. Конструкция спускных воронок М-1, М-2 и короба М-3, узлы А и Б, спецификация металлических деталей
Плескательный бассейн тип 3. Водопровод и канализация. Конструкция марок М-4 и М-5. Позиции 5 и 6. Спецификация металлических деталей
Плескательный бассейн тип 4. План. Экспликация
Плескательный бассейн тип 4. Разрезы по 1-1, 2-2, 3-3, 4-4
Плескательный бассейн тип 4. План покрытия островка. Разрез по 5-5. Разрезы по а-а и б-б. Деталь "А"
Плескательный бассейн тип 4. План днища опалубки. Расход материалов на бассейн
Плескательный бассейн тип 4. Армирование бассейна. Плита П-2. Спецификация арматуры
Плескательный бассейн тип 4. Железобетонная ванна бассейна. Разрезы по 1-1, 2-2, 3-3. Детали 1, 2, 3, 4, 5, 6
Плескательный бассейн тип 4. Металлические изделия с М-7 по М-11. Спецификация металлических изделий
Плескательный бассейн тип 4. Конструкция камеры управления
Плескательный бассейн тип 4. Водопровод и канализация. План и схема трубопроводов, расход материалов
Плескательный бассейн тип 4. Водопровод и канализация. Камера управления. План, разрезы, спецификация
Плескательный бассейн тип 4. Водопровод и канализация. Камеры М-1, М-2, М-3. Воронки М-4, М-5. Трубчатый перелив М-6
Плескательный бассейн тип 4. Водопровод и канализация. Конструкция камер М-1, М-2, М-3, спускных воронок М-4, М-5 и трубчатого перелива М-6. Спецификация
Плескательный бассейн тип 4. Водопровод и канализация. Металлические решетки поз. 6, 13, 19, 26 и 33
Плескательный бассейн тип 5. План. Экспликация
Плескательный бассейн тип 5. Фасад "А". Разрезы по А-А и по Б-Б
Плескательный бассейн тип 5. Схема покрытия полосы вокруг бассейна. Фрагменты покрытия А, Б, В, Г, Д, Е, Ж
Плескательный бассейн тип 5. Фрагменты покрытия полосы вокруг бассейна3, Х1
Плескательный бассейн тип 5. План
Плескательный бассейн тип 5. Разрезы с 1-1 по 7-7. Сечение по а-а
Плескательный бассейн тип 5. Земляные работы и опалубка низа плиты ванны
Плескательный бассейн тип 5. Опалубочные чертежи ванны бассейна, ручейка и сухих фонтанов
Плескательный бассейн тип 5. Армирование ванны и ручейка
Плескательный бассейн тип 5. Конструкции покрытия бассейна
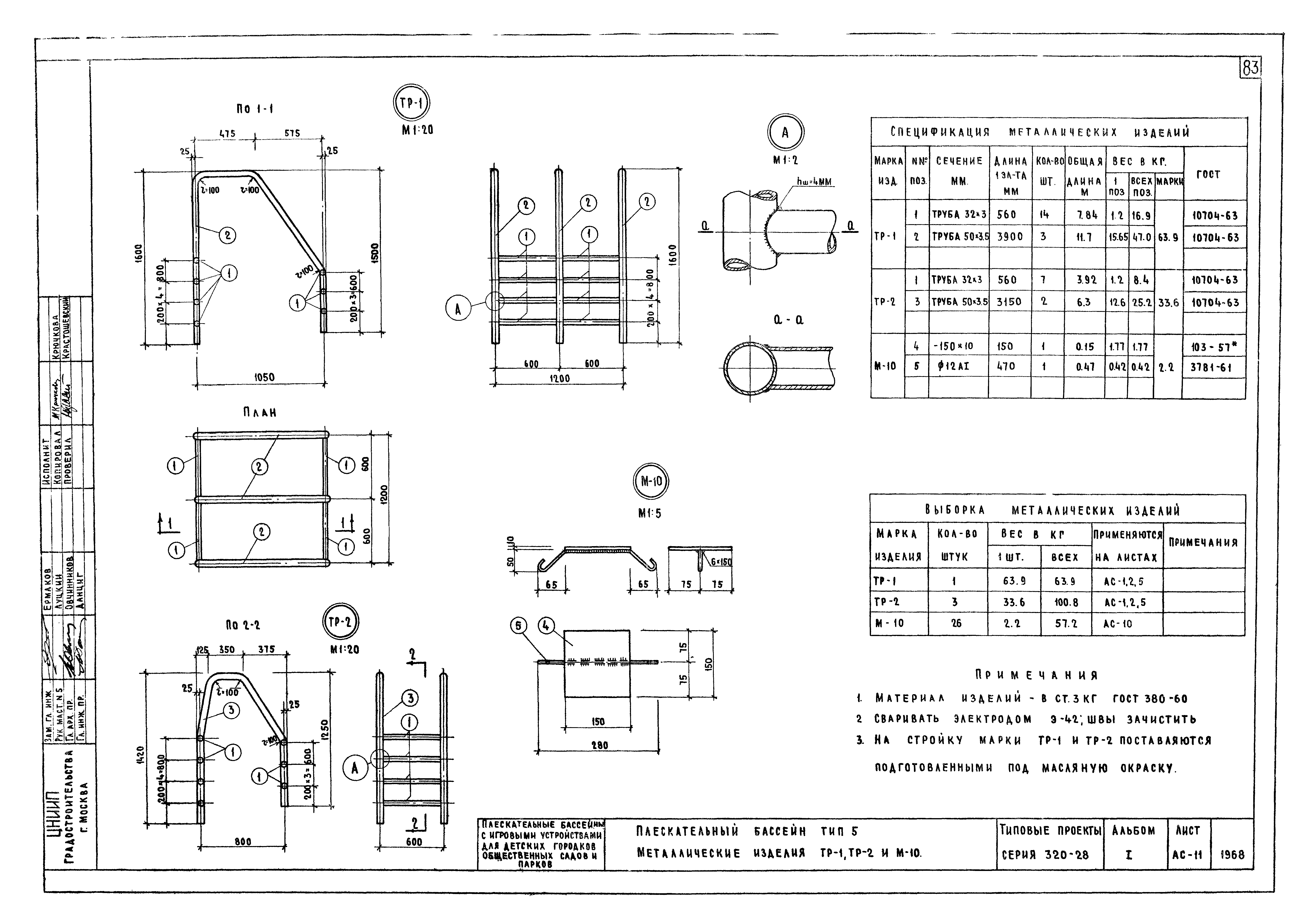
Плескательный бассейн тип 5. Металлические изделия ТР-1, ТР-2 и М-10
Плескательный бассейн тип 5. Деревянный настил ДН-1
Плескательный бассейн тип 5. Камера управления
Плескательный бассейн тип 5. Водопровод и канализация. План разводки трубопроводов, расход материалов на бассейн
Плескательный бассейн тип 5. Водопровод и канализация. Разрезы с 1-1 по 7-7
Плескательный бассейн тип 5. Водопровод и канализация. Камера управления и спецификация материалов
Плескательный бассейн тип 5. Водопровод и канализация. Воронки М-1 и М-2. Камера подпитки М-3
Плескательный бассейн тип 5. Водопровод и канализация. Марки М-4, 5, 6, 7, 8, 9
Пример размещения бассейна №1 на площадке
Пример размещения бассейна №2 на площадке
Пример размещения бассейна №3 на площадке
Пример размещения бассейна №4 на площадке
Пример размещения бассейна №5 на площадке
Разработан: ЦНИИП градостроительства
Утверждён:18.10.1968 ЦНИИП градостроительства Госгражданстроя (287)
Издан: ЦИТП Госстроя СССР (CITP, Gosstroy (USSR) 1968 г. )
Расположен в:Техническая документация Строительство Справочные документы Типовые строительные конструкции, изделия и узлы Общероссийский строительный каталог Малые формы архитектуры и элементы благоустройства Малые архитектурные формы Фонтаны, бассейны, питьевые фонтанчики
Типовой проект 320-28Типовой проект 320-28Типовой проект 320-28Типовой проект 320-28Типовой проект 320-28Типовой проект 320-28Типовой проект 320-28Типовой проект 320-28Типовой проект 320-28Типовой проект 320-28Типовой проект 320-28Типовой проект 320-28Типовой проект 320-28Типовой проект 320-28Типовой проект 320-28Типовой проект 320-28Типовой проект 320-28Типовой проект 320-28Типовой проект 320-28Типовой проект 320-28Типовой проект 320-28Типовой проект 320-28Типовой проект 320-28Типовой проект 320-28Типовой проект 320-28Типовой проект 320-28Типовой проект 320-28Типовой проект 320-28Типовой проект 320-28Типовой проект 320-28Типовой проект 320-28Типовой проект 320-28Типовой проект 320-28Типовой проект 320-28Типовой проект 320-28Типовой проект 320-28Типовой проект 320-28Типовой проект 320-28Типовой проект 320-28Типовой проект 320-28Типовой проект 320-28Типовой проект 320-28Типовой проект 320-28Типовой проект 320-28Типовой проект 320-28Типовой проект 320-28Типовой проект 320-28Типовой проект 320-28Типовой проект 320-28Типовой проект 320-28Типовой проект 320-28Типовой проект 320-28Типовой проект 320-28Типовой проект 320-28Типовой проект 320-28Типовой проект 320-28Типовой проект 320-28Типовой проект 320-28Типовой проект 320-28Типовой проект 320-28Типовой проект 320-28Типовой проект 320-28Типовой проект 320-28Типовой проект 320-28Типовой проект 320-28Типовой проект 320-28Типовой проект 320-28Типовой проект 320-28Типовой проект 320-28Типовой проект 320-28Типовой проект 320-28Типовой проект 320-28Типовой проект 320-28Типовой проект 320-28Типовой проект 320-28Типовой проект 320-28Типовой проект 320-28Типовой проект 320-28Типовой проект 320-28Типовой проект 320-28Типовой проект 320-28Типовой проект 320-28Типовой проект 320-28Типовой проект 320-28Типовой проект 320-28Типовой проект 320-28Типовой проект 320-28Типовой проект 320-28Типовой проект 320-28Типовой проект 320-28Типовой проект 320-28Типовой проект 320-28Типовой проект 320-28Типовой проект 320-28Типовой проект 320-28Типовой проект 320-28

© 2013 Ёшкин Кот :-) Карта сайта