Информационная система
«Ёшкин Кот»

Скачать базу одним архивом
Скачать обновления
История создания базы
Карта сайта

Скачать Типовой проект 320-24 Альбом I. Архитектурно-строительная часть

Дата актуализации: 10.08.2017

Типовой проект 320-24

Альбом I. Архитектурно-строительная часть

Обозначение: Типовой проект 320-24
Обозначение англ: 320-24
Статус:действует
Название рус.:Альбом I. Архитектурно-строительная часть
Дата добавления в базу:01.09.2013
Дата актуализации:05.05.2017
Дата введения:01.11.1967
Оглавление:Пояснительная записка
Декоративный бассейн. План, фасады 1-1, 2-2, 3-3
Декоративный бассейн. Облицовка плиткой горизонтальных плоскостей бортов, внутренних стенок и дна бассейна, разрез по 1-1, фрагмент установки ящиков для цветов
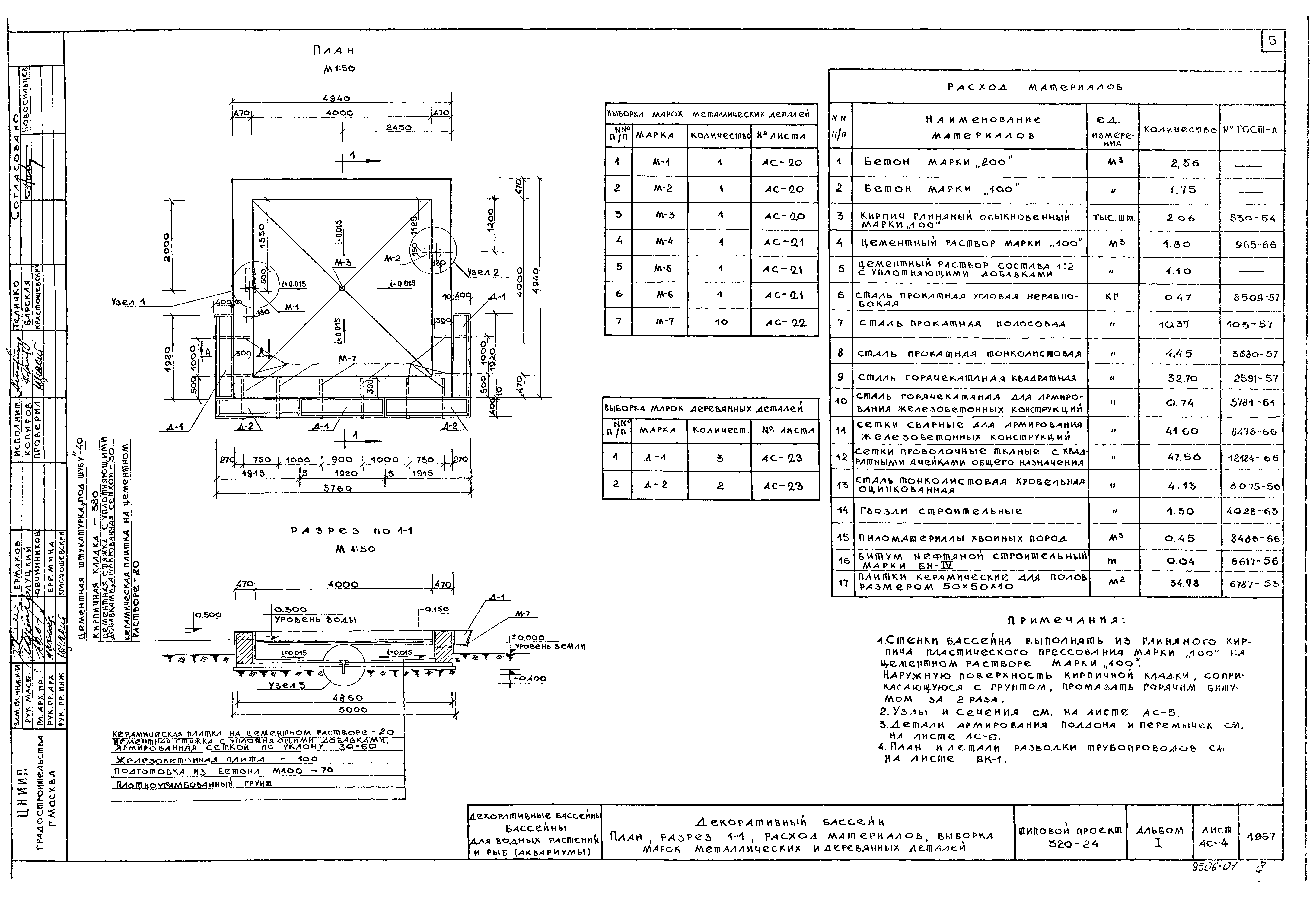
Декоративный бассейн. План. Разрез 1-1. Расход материалов, выборка марок металлических и деревянных деталей
Декоративный бассейн. Монтажные узлы 1, 2, 3. Сечение по А-А, Б-Б и В-В
Декоративный бассейн. Планы армирования плиты поддона и перемычек. Сечения по 1-1, 2-2 и 3-3. Спецификация арматуры
Бассейн для водных растений. Фасад 1-1. План. Разрез по 1-1
Бассейн для водных растений. Фасады 2-2, 3-3, 4-4. Шаблон слива Ш-1
Бассейн для водных растений. План. Расход материалов выборки марок металлических и деревянных деталей
Бассейн для водных растений. Разрезы 1-1, 2-2, 3-3
Бассейн для водных растений. Монтажные узлы 1, 2 и 3. Сечения по А-А, Б-Б и В-В
Бассейн для водных растений. Арматурный чертеж. Планы армирования плиты поддона и бортов. Сечение 6-6, 7-7 и 8-8. Спецификация арматуры
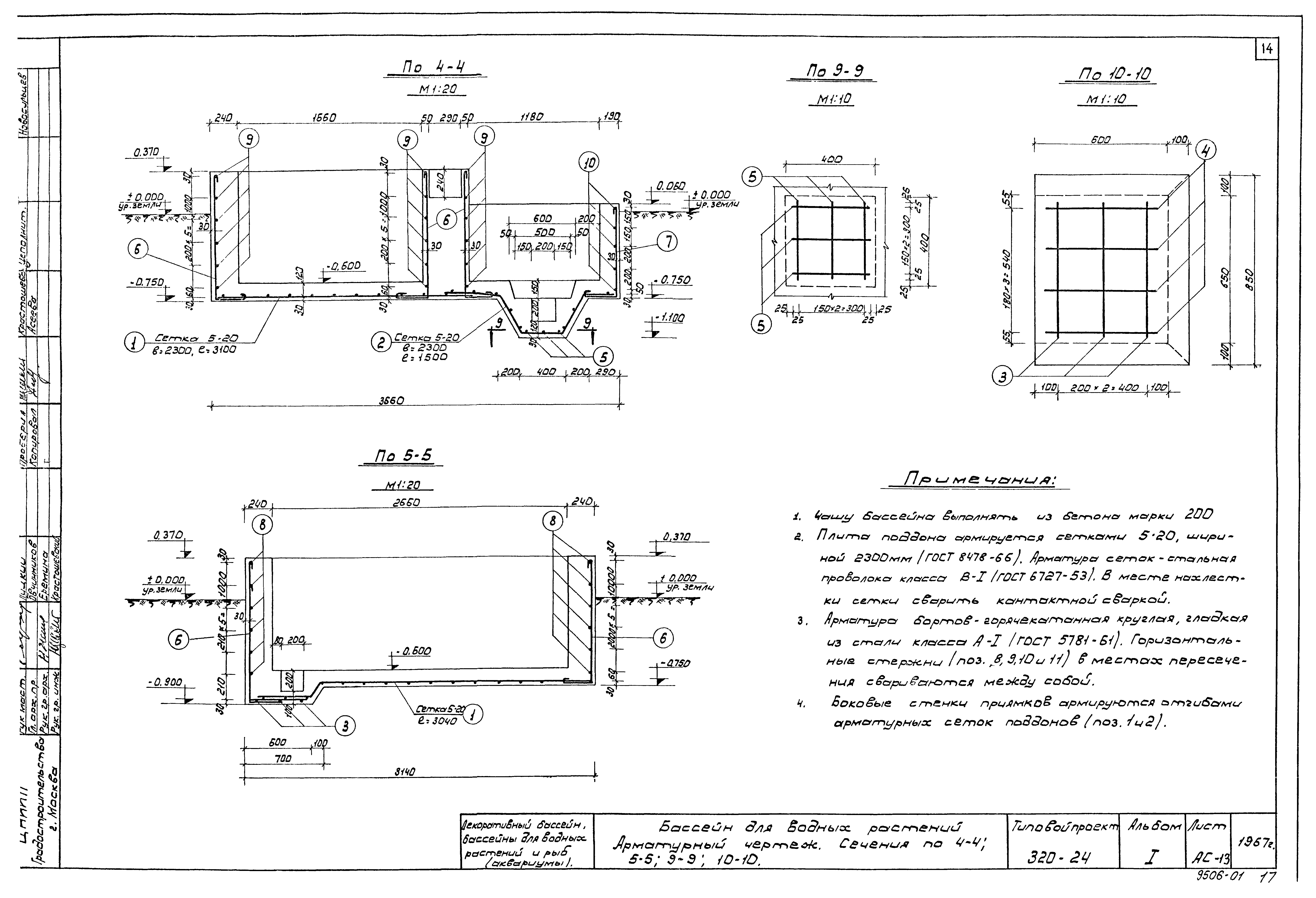
Бассейн для водных растений. Арматурный чертеж. Сечения по 4-4, 5-5, 9-9, 10-10
Бассейн для рыб (аквариум). План. Разрез 1-1 и облицовка наружных стенок бассейна А, Б, В, Г
Бассейн для рыб (аквариум). Вариант облицовки плиткой бортов и дна бассейна №1. План. Облицовка внутренних стенок бассейна Д, Е, Ж, З
Бассейн для рыб (аквариум). Вариант облицовки плиткой внутренних и наружных стенок, горизонтальных плоскостей бортов и дна бассейна №2. Фасад 1-1, план, разрез по 2-2
Бассейн для рыб (аквариум). План. Разрез 1-1, расход материалов
Бассейн для рыб (аквариум). Монтажные узлы 1, 2 и 3. Сечения по А-А, Б-Б и В-В
Бассейн для рыб (аквариум). Планы армирования плиты поддона и перемычек. Сечения по 1-1, 2-2 и 3-3. Спецификация арматуры
Декоративный бассейн. Бассейн для рыб (аквариум). Металлические детали решетки М-1, М-2, М-3. Спецификация металлических деталей
Бассейн для рыб (аквариум). Металлические детали короба М-4, М-5. Рамка М-6. Развертка позиций 7 и 9. Позиция 8
Бассейн для водных растений. Металлические детали. Кронштейн М-7. Решетки М-8 и М-10. Рамка М-9. Кронштейн М-11. Заготовка позиции 18. Спецификация металлических деталей
Декоративный бассейн. Деревянные детали. Конструкция цветочниц Д-1 и Д-2. Узлы 1, 2. Сечение по а-а. Деталь А. Спецификация деревянных деталей
Бассейн для водных растений. Деревянные детали. Конструкция ящиков для водных растений Д-3 и Д-4. Деталь А. Спецификация деревянных деталей
Декоративный бассейн. План разводки и детали трубопроводов. Разрезы 1-1, 2-2 и 3-3. Узлы 1, 2, 3. Спецификация
Бассейн для водных растений. План разводки и детали трубопроводов. Узлы 1, 2 и 3. Разрезы 1-1, 3-3 и 5-5. Спецификация
Бассейн для рыб (аквариум). План разводки и детали трубопроводов. Разрезы 1-1, 2-2, 3-3, А-А. Узлы 1, 2, 3
Разработан: ЦНИИП градостроительства
Утверждён:01.11.1967 ЦНИИП градостроительства Госгражданстроя (338)
Издан: ЦИТП Госстроя СССР (CITP, Gosstroy (USSR) 1967 г. )
Расположен в:Техническая документация Строительство Справочные документы Типовые строительные конструкции, изделия и узлы Общероссийский строительный каталог Малые формы архитектуры и элементы благоустройства Малые архитектурные формы Фонтаны, бассейны, питьевые фонтанчики
Типовой проект 320-24Типовой проект 320-24Типовой проект 320-24Типовой проект 320-24Типовой проект 320-24Типовой проект 320-24Типовой проект 320-24Типовой проект 320-24Типовой проект 320-24Типовой проект 320-24Типовой проект 320-24Типовой проект 320-24Типовой проект 320-24Типовой проект 320-24Типовой проект 320-24Типовой проект 320-24Типовой проект 320-24Типовой проект 320-24Типовой проект 320-24Типовой проект 320-24Типовой проект 320-24Типовой проект 320-24Типовой проект 320-24Типовой проект 320-24Типовой проект 320-24Типовой проект 320-24Типовой проект 320-24Типовой проект 320-24Типовой проект 320-24Типовой проект 320-24Типовой проект 320-24Типовой проект 320-24

© 2013 Ёшкин Кот :-) Карта сайта