Скачать Типовой проект 320-3 Альбом I. Общестроительная, санитарно-техническая и электротехническая частиДата актуализации: 10.08.2017 Типовой проект 320-3
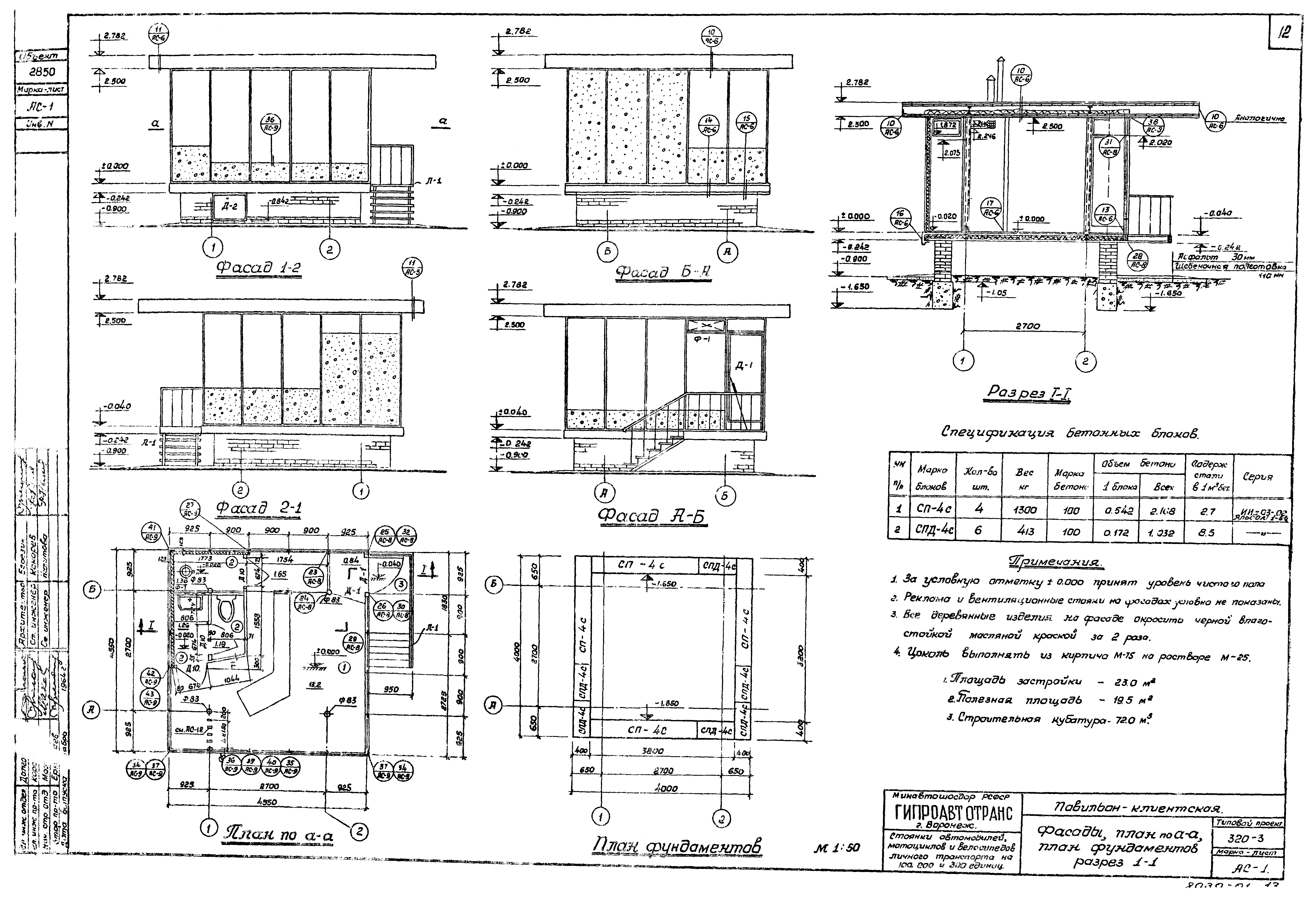
Альбом I. Общестроительная, санитарно-техническая и электротехническая частиОбозначение: | Типовой проект 320-3 | Обозначение англ: | 320-3 | Статус: | действует | Название рус.: | Альбом I. Общестроительная, санитарно-техническая и электротехническая части | Дата добавления в базу: | 01.09.2013 | Дата актуализации: | 05.05.2017 | Оглавление: | Титульный лист Содержание альбома Заглавный лист Пояснительная записка I. Генеральный план Генеральный план стоянки на 100 автомобилей Генеральный план стоянки на 200 автомобилей Генеральный план стоянки на 300 автомобилей Конструкции дорожной одежды Геометрические параметры расстановки автомобилей под углами 90, 60, 45 градусов. Разметка покрытия II. Архитектурно-строительные чертежи Павильон-клиентская Фасады, план по а-а, план фундаментов. Разрез I-I Монтажный план балок покрытия. Узлы №1 - 4 Монтажный план балок пола. Узлы №5 - 9 Лестница Л - 1 Балки МБ-1 - МБ-10; МК-1; МК-1а. Стойка С-1. Поз. 13 - 16, 20 - 22 Узлы №10 - 17 Монтажный план металлических каркасов стен. Каркасы К-1, К-2, К-3. Узлы №18 - 22 Узлы №23 - 33 Узлы №34 - 43 Дверь Д-1. Форточка Ф-1. Узлы №44, 45, 46 План и элементы перегородок Решетчатая перегородка. Дверь Д-2. Спецификация Рабочий стол дежурного Световая реклама (1 вариант) Световая реклама (2 вариант) Спецификация металла на марку. Выборка марок Выборка металла по профилям. Спецификации пиломатериалов, отделочных и кровельных материалов, стекла, столярных изделий Навес для велосипедов, мотоциклов и постов обслуживания Планы, фасад, секции навеса. Разрезы 1-1, 2-2, 3-3 План фундаментов, монтажная схема покрытия навесов стоянок на 100, 200 и 300 автомобилей. Фундамент БФ-1 и спецификация Ферма Ф-1. Детали Металлические прогоны МБ-1, МБ-2, МБ-3, МБ-4. Узлы Схемы размещения велосипедов и мотоциклов в секции навеса Осмотровая канава. План. Разрезы. Детали. Спецификация Велостоянки Схемы расстановок велосипедов. Велостоянки с применением бетонных и металлических велодержателей Грязеотстойник с бензиномаслоуловителем План. Разрез 1-1. План покрытия. Раскладка блоков. Лоток Л-1. Щелевая перегородка. Спецификация III. Чертежи по водопроводу и канализации Стоянка на 100 автомобилей. Генплан с сетями водопровода, фекальной и дождевой канализации. Деталировка водопровода Стоянка на 100 автомобилей. Продольные профили производственно-фекальной и дождевой канализации. Спецификация Стоянка на 200 автомобилей. Генплан с сетями водопровода, фекальной и дождевой канализации. Деталировка водопровода Стоянка на 200 автомобилей. Продольные профили производственно-фекальной и дождевой канализации. Спецификация Стоянка на 300 автомобилей. Генплан с сетями водопровода, фекальной и дождевой канализации. Деталировка водопровода Стоянка на 300 автомобилей. Продольные профили производственно-фекальной и дождевой канализации. Спецификация Павильон-клиентская Водопровод, канализация и вентиляция. План, разрез, схемы. Спецификация Навес для велосипедов, мотоциклов и постов обслуживания Стоянка на 100 автомобилей. Водопровод, канализация. План, разрез, схема водоснабжения. Спецификация Стоянка на 200 автомобилей. Водопровод, канализация. План, разрез, схема водоснабжения. Спецификация Стоянка на 300 автомобилей. Водопровод, канализация. План, разрез, схема водоснабжения. Спецификация Грязеотстойник с бензиномаслоуловителем Технологическая часть. План, разрезы, расчет грязеотстойника. Спецификация Цилиндр и колпак. Детали крепления и узлы Бидон для бензина. Узлы, детали. Патрубок бензиномаслоуловителя. Спецификации Детали водопровода и канализации. Установка наружного поливочного крана в колодце (ковере). Флюгарка. Общий вид. Детали IV. Чертежи по электрооборудованию и электрослаботочному устройству Стоянка на 100 автомобилей. Наружное электроосвещение и наружные слаботочные сети Стоянка на 200 автомобилей. Наружное электроосвещение и наружные слаботочные сети Стоянка на 300 автомобилей. Наружное электроосвещение и наружные слаботочные сети Павильон-клиентская Электроосвещение и слаботочные устройства Электропитание Навес для велосипедов, мотоциклов и постов обслуживания Навесы стоянок на 100, 200, 300 автомобилей. Электроосвещение. Планы Кронштейн светильника ПВЛ-1 | Разработан: | Гипроавтотранс
| Утверждён: | 22.05.1965 Госстрой СССР (Государственный комитет Совета Министров СССР по делам строительства) (USSR Gosstroy 39)
| Издан: | ЦИТП Госстроя СССР (CITP, Gosstroy (USSR) 1965 г. )
| Расположен в: |
|
                                                        
|