Информационная система
«Ёшкин Кот»

Скачать базу одним архивом
Скачать обновления
История создания базы
Карта сайта

Скачать Типовой проект 310-3-1 Альбом III. Архитектурно-строительные чертежи. Электротехнический чертеж

Дата актуализации: 10.08.2017

Типовой проект 310-3-1

Альбом III. Архитектурно-строительные чертежи. Электротехнический чертеж

Обозначение: Типовой проект 310-3-1
Обозначение англ: 310-3-1
Статус:действует
Название рус.:Альбом III. Архитектурно-строительные чертежи. Электротехнический чертеж
Дата добавления в базу:01.09.2013
Дата актуализации:05.05.2017
Дата введения:20.09.1966
Оглавление:Заглавный лист. Состав проекта
Пояснительная записка
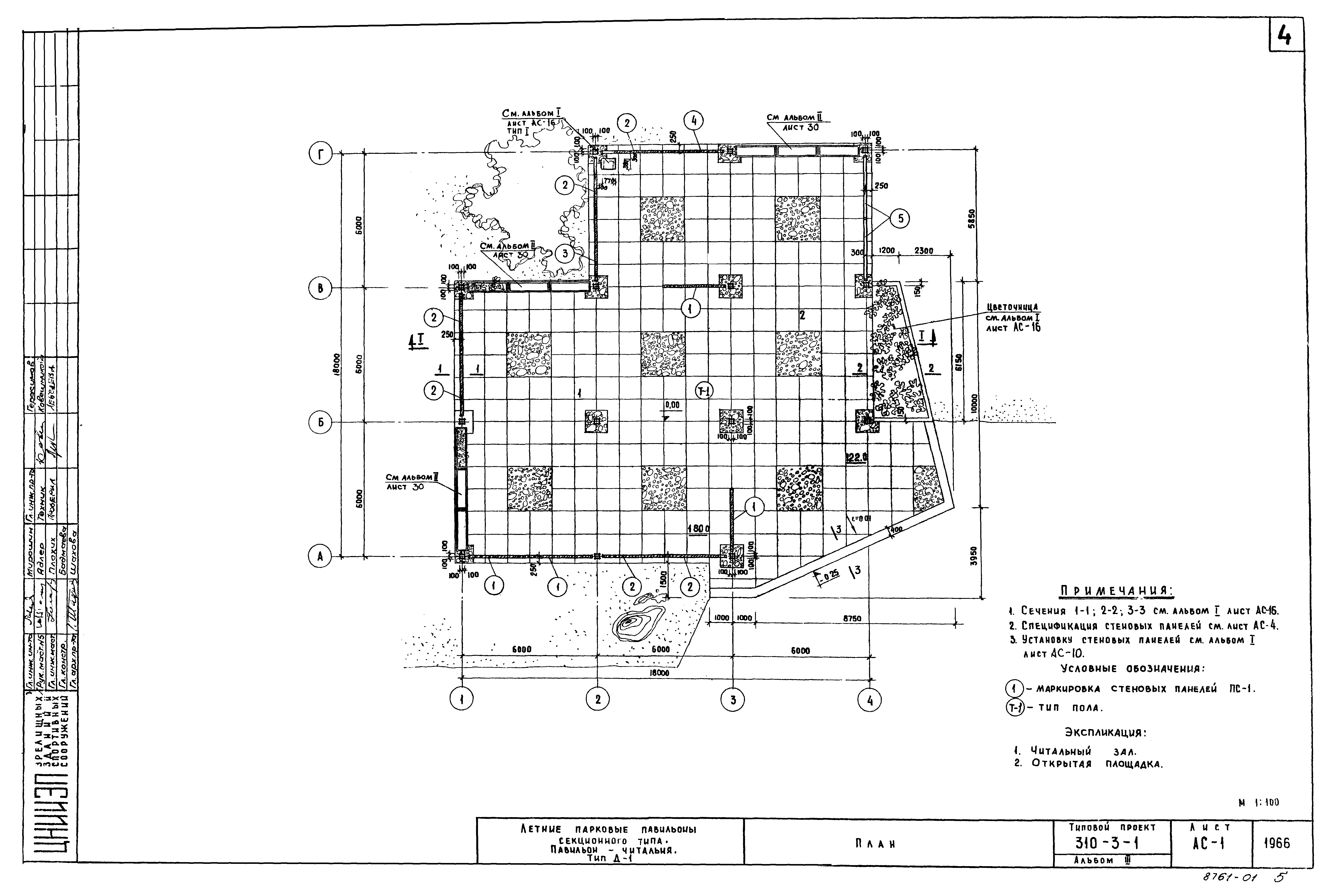
План
Фасад в осях 1 - 4
Фасады в осях Г - А и 4 - 1
Разрез I-I, план кровли. Спецификация стеновых панелей
План фундаментов, план покрытия
План расстановки оборудования
Электроосвещение. План павильона-читальни. Условные обозначения. Спецификация
Разработан: ЦНИИЭП зрелищных зданий и спортивных сооружений Госгражданстроя
Утверждён:13.07.1965 Государственный комитет по гражданскому строительству и архитектуре при Госстрое СССР (130)
Расположен в:Техническая документация Строительство Справочные документы Типовые строительные конструкции, изделия и узлы Общероссийский строительный каталог Малые формы архитектуры и элементы благоустройства Малые архитектурные формы Киоски, павильоны, читальни
Типовой проект 310-3-1Типовой проект 310-3-1Типовой проект 310-3-1Типовой проект 310-3-1Типовой проект 310-3-1Типовой проект 310-3-1Типовой проект 310-3-1Типовой проект 310-3-1Типовой проект 310-3-1Типовой проект 310-3-1Типовой проект 310-3-1

© 2013 Ёшкин Кот :-) Карта сайта