Информационная система
«Ёшкин Кот»

Скачать базу одним архивом
Скачать обновления
История создания базы
Карта сайта

Скачать Типовой проект 294-3-28 Альбом III. Часть 1. Автоматизация сантехустройств. Автоматическая пожарная сигнализация

Дата актуализации: 10.08.2017

Типовой проект 294-3-28

Альбом III. Часть 1. Автоматизация сантехустройств. Автоматическая пожарная сигнализация

Обозначение: Типовой проект 294-3-28
Обозначение англ: 294-3-28
Статус:действует
Название рус.:Альбом III. Часть 1. Автоматизация сантехустройств. Автоматическая пожарная сигнализация
Дата добавления в базу:01.09.2013
Дата актуализации:05.05.2017
Дата введения:10.09.1979
Оглавление:Заглавный лист
Автоматизация сантехустройств
   Заглавный лист
   Автоматизация сантехустройств. Пояснения к проекту
   Системы Р-1, Р-2. Схемы автоматизации функциональные
   Системы Р-3, РЕ-3. Схемы автоматизации функциональные
   Системы У-1, V-1 (V-2, V-3, V5 - V8). Схемы автоматизации функциональные
   Пожарные и хозяйственные насосы. Дренажный насос. Схемы автоматизации функциональные
   Насосы обходных дорожек. Насосы отопления. Схемы автоматизации функциональные
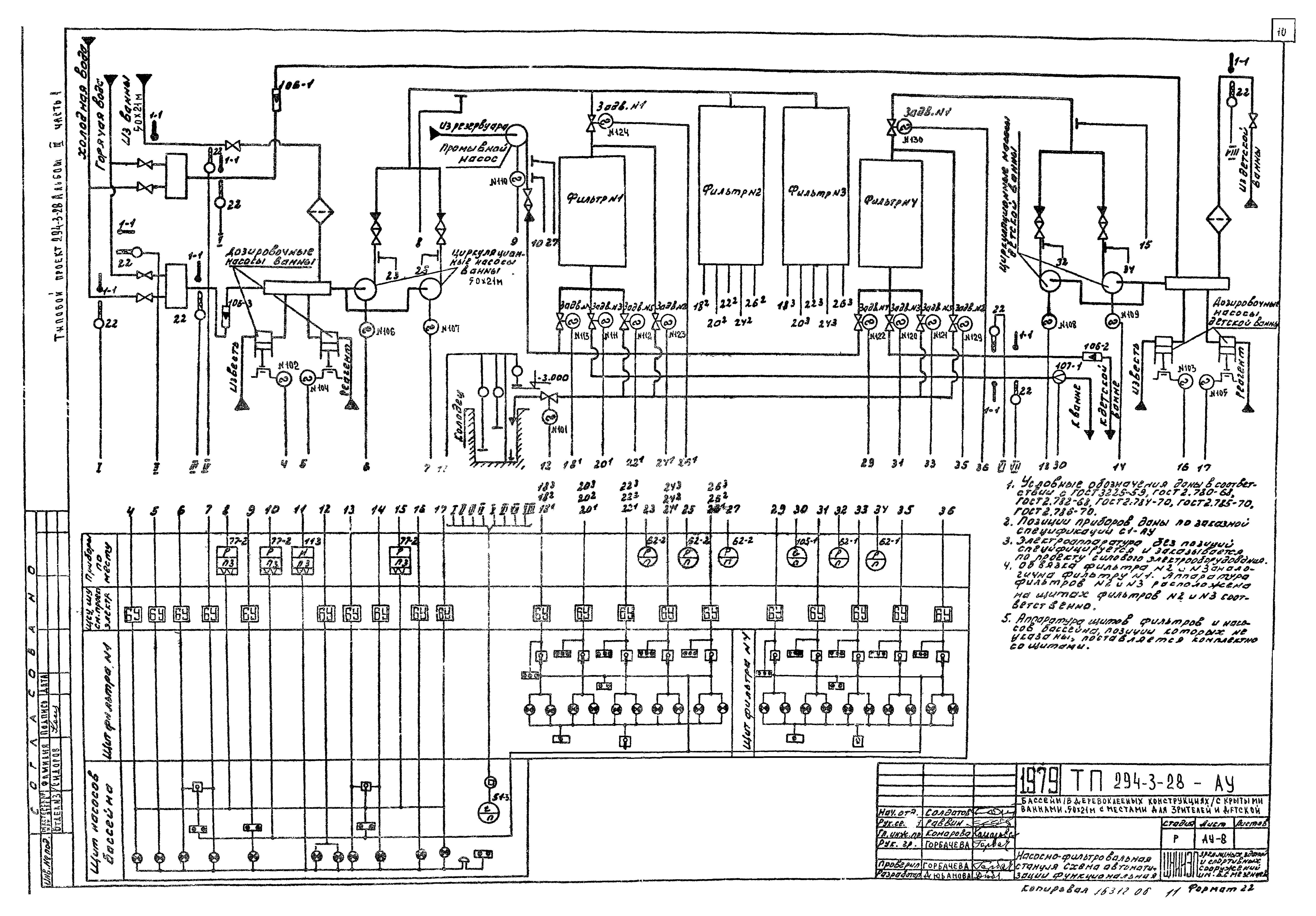
   Насосно-фильтровальная станция. Схема автоматизации функциональная
   Система Р-1. Схема электрическая принципиальная
   Система Р-2. Схема электрическая принципиальная
   Системы РV-1, РV-2. Схемы электрические принципиальные
   Щит управления Р-1, Р-2. Электропитание. Схема электрическая принципиальная
   Система Р-3. Схема электрическая принципиальная
   Щит управления Р-3, У-1. Электропитание. Схема электрическая принципиальная
   Система У-1. Схема электрическая принципиальная
   Системы V-1 (V-2, V-3, V5 , V6, V7 , V8) и V4. Схемы электрические принципиальные
   Пожарные и хозяйственные насосы. Схемы электрические принципиальные
   Дренажный насос. Схема электрическая принципиальная
   Насосы обходных дорожек. Схемы электрические принципиальные. Теплоноситель 150 - 70 градусов Цельсия
   Насосы обходных дорожек. Схемы электрические принципиальные. Теплоноситель 95 - 70 градусов Цельсия
   Насосы отопления. Схемы электрические принципиальные
   Сигнализация. Схема электрическая принципиальная
   Щит диспетчера. Электропитание. Схема электрическая принципиальная
   Напорный кварцевый фильтр. Схема электрическая принципиальная
   Насосы бассейна. Задвижка на выпуске ливневой канализации. Схемы электрические принципиальные
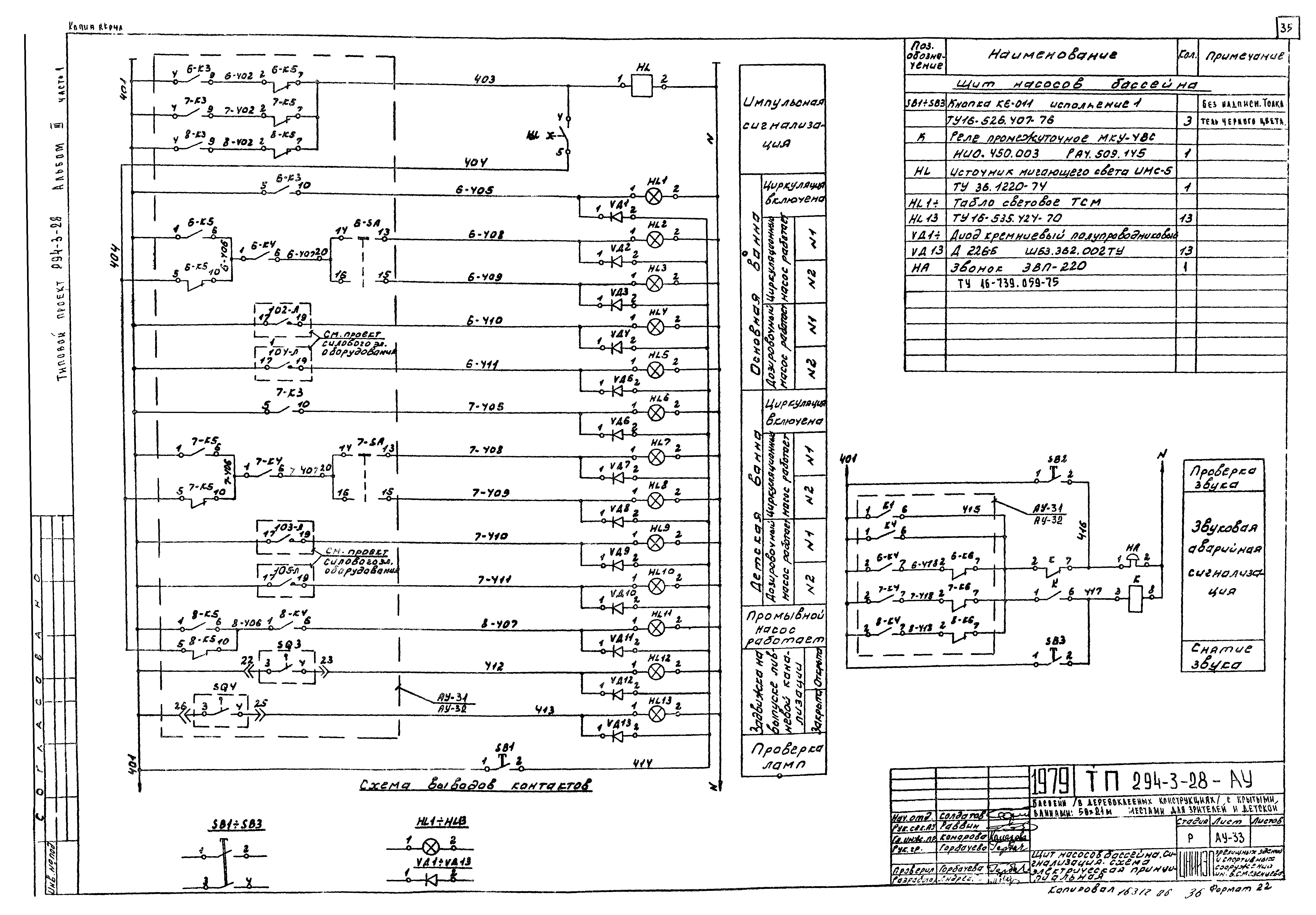
   Щит насосов бассейна. Сигнализация. Схема электрическая принципиальная
   Щит насосов бассейна. Электропитание. Схема электрическая принципиальная
   Фрагмент плана на отм. - 3.000 в осях "5 - 8", "В - Г". План расположения
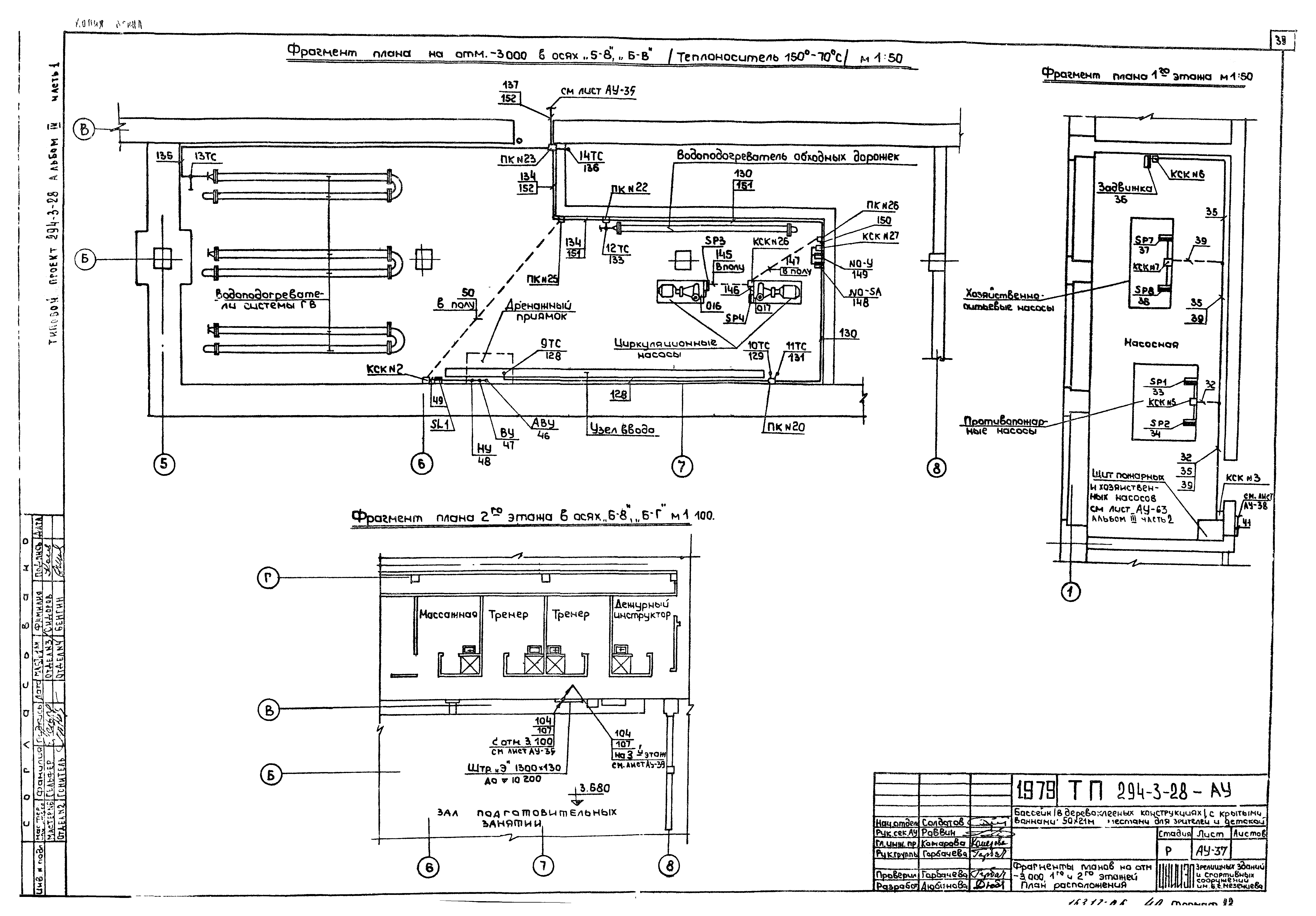
   Фрагменты планов на отм. - 3.000 в осях "5 - 8", "В - Г" и "8 - 11", "Б - В". План расположения
   Фрагменты планов на отм. - 3.000, 1-го и 2-го этажей. План расположения
   Фрагменты планов 1-го этажа в осях "1 - 11", "Г - Д" и "8 - 10", "Б - Г". План расположения
   Фрагмент плана 3-го этажа в осях "2 - 10", "А - Г". План расположения
   Фрагмент плана 3-го этажа в осях "2 - 10", " Г". План расположения
   Насосно-фильтровальная станция. План расположения
   Щит управления Р-1, Р-2. Схема соединений
   Щит управления Р-3, У-1. Схема соединений
   Щит пожарных и хозяйственных насосов. Схема соединений
   Система РЕ-1. Дренажный насос. Схема соединений
   Насосы обходных дорожек. Схема соединений
   Насосы отопления. Схема соединений. Теплоноситель 95 - 70 градусов Цельсия
   Щит диспетчера. Схема соединений
   Щит фильтра. Схема соединений
   Щит насосов бассейна. Схема соединений
Автоматическая пожарная сигнализация
   Заглавный лист
   Схема распределительной сети
   План 1-го этажа в осях "1 - 6" и "А - Г". Размещение датчиков пожарной сигнализации
   План 1-го этажа в осях "6 - 11" и "А - Г". Размещение датчиков пожарной сигнализации
   План 1-го этажа в осях "1 - 6" и "Г - Д". Размещение датчиков пожарной сигнализации
   План 1-го этажа в осях "6 - 11" и "Г - Д". Размещение датчиков пожарной сигнализации
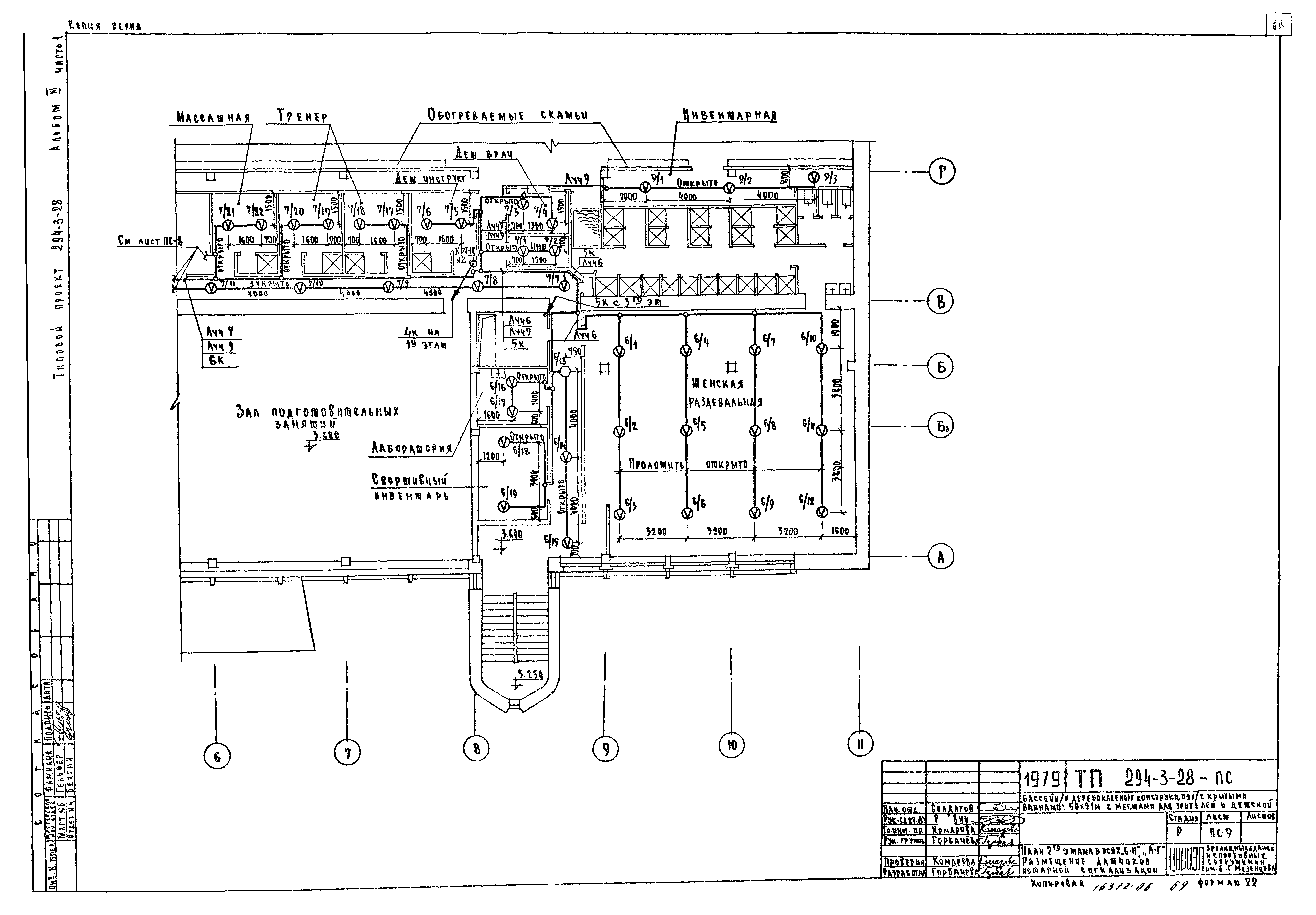
   План 2-го этажа в осях "1 - 6" и "А - Г". Размещение датчиков пожарной сигнализации
   План 2-го этажа в осях "6 - 11" и "А - Г". Размещение датчиков пожарной сигнализации
   План 3-го этажа в осях "1 - 6" и "А - Г". Размещение датчиков пожарной сигнализации
   План 3-го этажа в осях "6 - 11" и "А - Г". Размещение датчиков пожарной сигнализации
Разработан: ЦНИИЭП зрелищных зданий и спортивных сооружений Госгражданстроя
Утверждён:17.01.1978 Госгражданстрой (Gosgrazhdanstroy 12)
Расположен в:Техническая документация Строительство Справочные документы Типовые строительные конструкции, изделия и узлы Общероссийский строительный каталог Общественные здания в городах и поселках городского типа Физкультурно-оздоровительные и спортивные здания и сооружения Сооружения для водных видов спорта
Типовой проект 294-3-28Типовой проект 294-3-28Типовой проект 294-3-28Типовой проект 294-3-28Типовой проект 294-3-28Типовой проект 294-3-28Типовой проект 294-3-28Типовой проект 294-3-28Типовой проект 294-3-28Типовой проект 294-3-28Типовой проект 294-3-28Типовой проект 294-3-28Типовой проект 294-3-28Типовой проект 294-3-28Типовой проект 294-3-28Типовой проект 294-3-28Типовой проект 294-3-28Типовой проект 294-3-28Типовой проект 294-3-28Типовой проект 294-3-28Типовой проект 294-3-28Типовой проект 294-3-28Типовой проект 294-3-28Типовой проект 294-3-28Типовой проект 294-3-28Типовой проект 294-3-28Типовой проект 294-3-28Типовой проект 294-3-28Типовой проект 294-3-28Типовой проект 294-3-28Типовой проект 294-3-28Типовой проект 294-3-28Типовой проект 294-3-28Типовой проект 294-3-28Типовой проект 294-3-28Типовой проект 294-3-28Типовой проект 294-3-28Типовой проект 294-3-28Типовой проект 294-3-28Типовой проект 294-3-28Типовой проект 294-3-28Типовой проект 294-3-28Типовой проект 294-3-28Типовой проект 294-3-28Типовой проект 294-3-28Типовой проект 294-3-28Типовой проект 294-3-28Типовой проект 294-3-28Типовой проект 294-3-28Типовой проект 294-3-28Типовой проект 294-3-28Типовой проект 294-3-28Типовой проект 294-3-28Типовой проект 294-3-28Типовой проект 294-3-28Типовой проект 294-3-28Типовой проект 294-3-28Типовой проект 294-3-28Типовой проект 294-3-28Типовой проект 294-3-28Типовой проект 294-3-28Типовой проект 294-3-28Типовой проект 294-3-28Типовой проект 294-3-28Типовой проект 294-3-28Типовой проект 294-3-28Типовой проект 294-3-28Типовой проект 294-3-28Типовой проект 294-3-28Типовой проект 294-3-28Типовой проект 294-3-28Типовой проект 294-3-28

© 2013 Ёшкин Кот :-) Карта сайта