Информационная система
«Ёшкин Кот»

Скачать базу одним архивом
Скачать обновления
История создания базы
Карта сайта

Скачать Типовой проект 294-3-28 Альбом II. Часть 2. Водоснабжение и канализация

Дата актуализации: 10.08.2017

Типовой проект 294-3-28

Альбом II. Часть 2. Водоснабжение и канализация

Обозначение: Типовой проект 294-3-28
Обозначение англ: 294-3-28
Статус:действует
Название рус.:Альбом II. Часть 2. Водоснабжение и канализация
Дата добавления в базу:01.09.2013
Дата актуализации:05.05.2017
Дата введения:10.09.1979
Оглавление:Титульный лист
Заглавный лист
Сводная спецификация
План 1 этажа в осях 1 - 6/А - Г. Водопровод
План 1 этажа в осях 6 - 11/А - Г. Водопровод
Фрагмент плана 1 этажа в осях 1 - 11/Г - Д. Водопровод
Планы 1 этажа в осях 1 - 4/А - В; 8 - 11/А - Г. Канализация. Водосток
Фрагмент плана подвала в осях 6 - 9/Б - В. Фрагмент плана 1 этажа. Канализация. Водосток
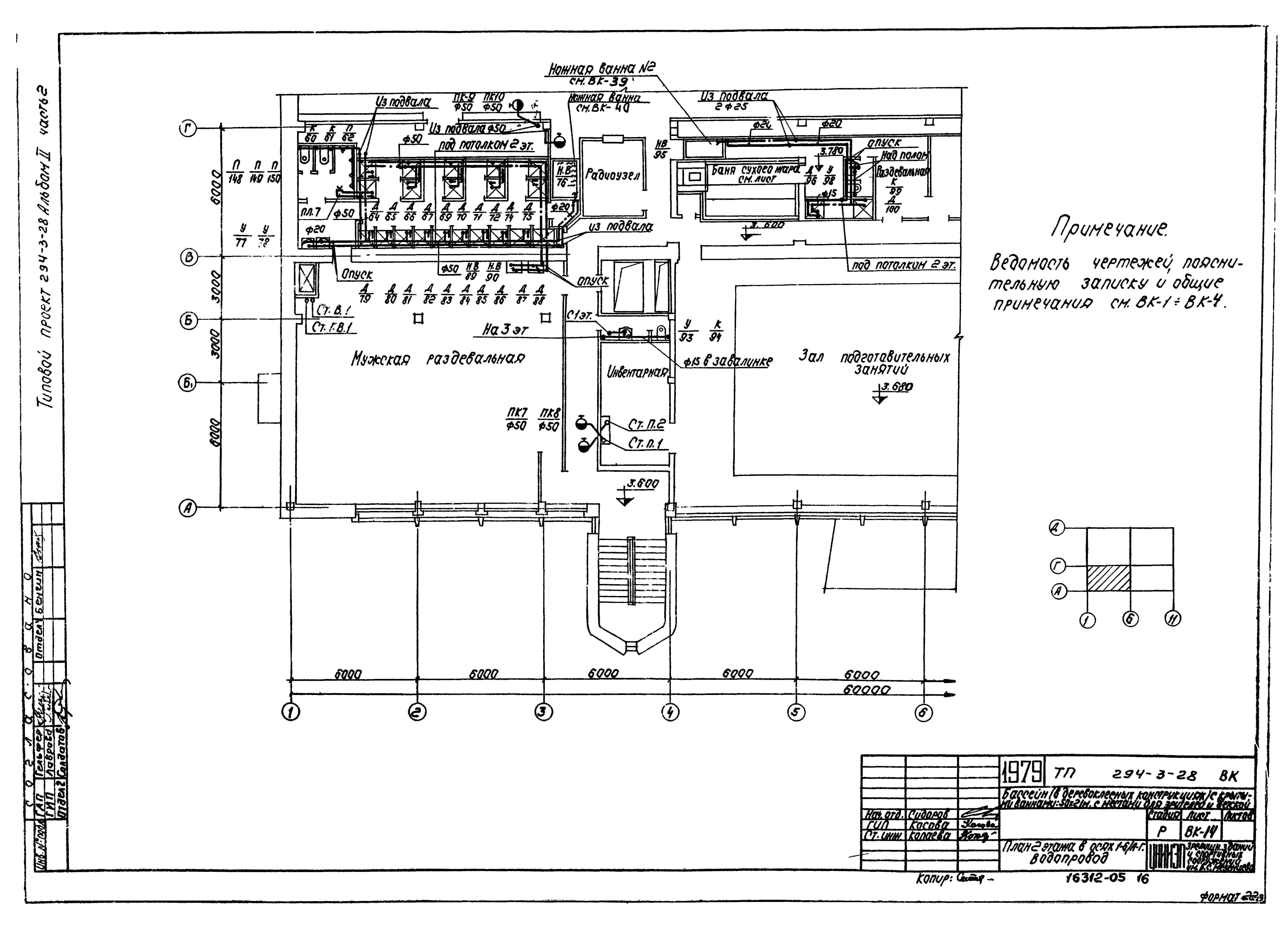
План 2 этажа в осях 1 - 6/А - Г. Водопровод
План 2 этажа в осях 1 - 6/А - Г. Канализация. Водосток
План 2 этажа в осях 6 - 11/А - Г. Водопровод
План 2 этажа в осях 6 - 11/А - Г. Канализация. Водосток
План 2 этажа в осях 1 - 6/Г - Д. Водопровод технологический
План 2 этажа в осях 6 - 11/Г - Д. Водопровод технологический
План 2 этажа в осях 1 - 6/Г - Д. Канализация. Водосток
План 2 этажа в осях 6 - 11/Г - Д. Канализация. Водосток
Фрагменты плана 3 этажа в осях 1 - 6; 8 - 11/А - В
План кровли
Насосная станция. Водомерный узел. План. Разрезы. Схема трубопроводов
Схема водопровода
Схема технологического водопровода для ванны 50х21 м
Разрезы по канализационном выпуску КБ-1
Разрезы по канализационном выпуску КБ-2
Разрезы по канализационным выпускам КБ-6 и КБ-4
Разрезы по канализационном выпуску КБ-3. Разрезы по водостокам ЛК-1 и ЛК-2
Разрезы по канализационном выпуску КБ-5
Схема технологического водопровода для детской ванны. Разрезы по канализационном выпуску КБ-6
Ножная ванна №1. План. Разрезы. Схема
Ножная ванна №2. План. Разрезы. Схема
Ножная ванна №3. План. Разрезы. Схема
Насосно-фильтровальная станция. План
Насосно-фильтровальная станция. Разрез I - I
Насосно-фильтровальная станция. Разрезы II-II и III-III
Насосно-фильтровальная станция. Схема трубопроводов
Сетчатый фильтр диаметром 500. Общий вид
Хлораторная. План
Хлораторная. Разрезы. Узлы. Детали
Хлораторная. Схема трубопроводов. Узлы
Подставка под два рабочих баллона. Общий вид. Детали
Подставка под два рабочих баллона. Детали. Спецификация
Стойка на 10 баллонов. Общий вид
Стойка на 10 баллонов. Детали
Подставка под промежуточный баллон. Общий вид. Детали
Спаренные пожарные краны диаметром 50 в нише с подводом воды от 2-х стояков. Общий вид
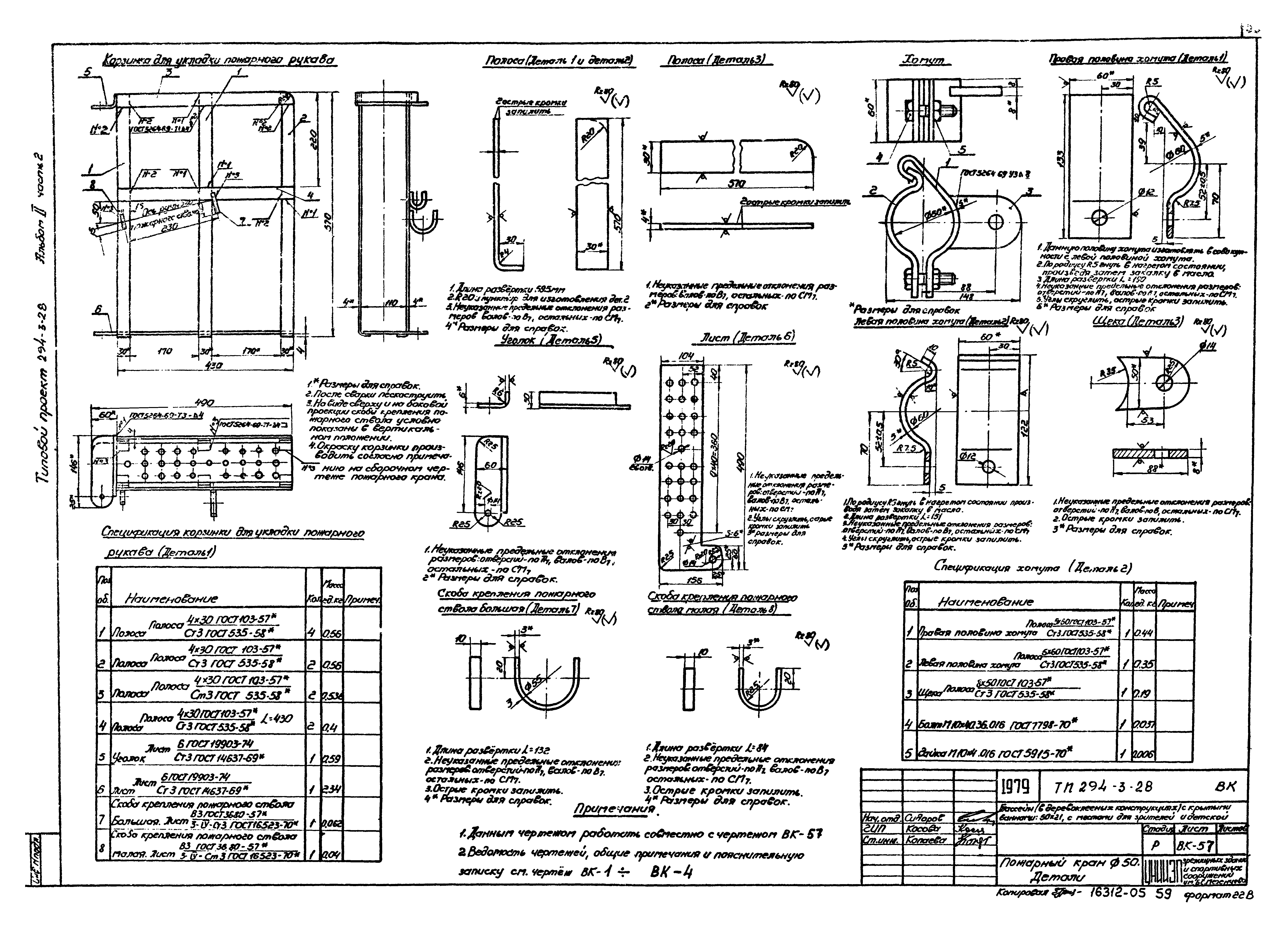
Пожарный кран диаметром 50. Детали
Установка двух насосных агрегатов на виброизолирующем основании
Виброизолирующее основание под два насосных агрегата. Виброизолятор пружинный. Общий вид
Виброизолирующее основание под два насосных агрегата. Установка амортизаторов
Разработан: ЦНИИЭП зрелищных зданий и спортивных сооружений Госгражданстроя
Утверждён:17.01.1978 Госгражданстрой (Gosgrazhdanstroy 12)
Расположен в:Техническая документация Строительство Справочные документы Типовые строительные конструкции, изделия и узлы Общероссийский строительный каталог Общественные здания в городах и поселках городского типа Физкультурно-оздоровительные и спортивные здания и сооружения Сооружения для водных видов спорта
Типовой проект 294-3-28Типовой проект 294-3-28Типовой проект 294-3-28Типовой проект 294-3-28Типовой проект 294-3-28Типовой проект 294-3-28Типовой проект 294-3-28Типовой проект 294-3-28Типовой проект 294-3-28Типовой проект 294-3-28Типовой проект 294-3-28Типовой проект 294-3-28Типовой проект 294-3-28Типовой проект 294-3-28Типовой проект 294-3-28Типовой проект 294-3-28Типовой проект 294-3-28Типовой проект 294-3-28Типовой проект 294-3-28Типовой проект 294-3-28Типовой проект 294-3-28Типовой проект 294-3-28Типовой проект 294-3-28Типовой проект 294-3-28Типовой проект 294-3-28Типовой проект 294-3-28Типовой проект 294-3-28Типовой проект 294-3-28Типовой проект 294-3-28Типовой проект 294-3-28Типовой проект 294-3-28Типовой проект 294-3-28Типовой проект 294-3-28Типовой проект 294-3-28Типовой проект 294-3-28Типовой проект 294-3-28Типовой проект 294-3-28Типовой проект 294-3-28Типовой проект 294-3-28Типовой проект 294-3-28Типовой проект 294-3-28Типовой проект 294-3-28Типовой проект 294-3-28Типовой проект 294-3-28Типовой проект 294-3-28Типовой проект 294-3-28Типовой проект 294-3-28Типовой проект 294-3-28Типовой проект 294-3-28Типовой проект 294-3-28Типовой проект 294-3-28Типовой проект 294-3-28Типовой проект 294-3-28Типовой проект 294-3-28Типовой проект 294-3-28Типовой проект 294-3-28Типовой проект 294-3-28Типовой проект 294-3-28Типовой проект 294-3-28Типовой проект 294-3-28Типовой проект 294-3-28Типовой проект 294-3-28Типовой проект 294-3-28

© 2013 Ёшкин Кот :-) Карта сайта