Информационная система
«Ёшкин Кот»

Скачать базу одним архивом
Скачать обновления
История создания базы
Карта сайта

Скачать Типовой проект 284-4-112.86 Альбом II. Изделия заводского изготовления

Дата актуализации: 10.08.2017

Типовой проект 284-4-112.86

Альбом II. Изделия заводского изготовления

Обозначение: Типовой проект 284-4-112.86
Обозначение англ: 284-4-112.86
Статус:действует
Название рус.:Альбом II. Изделия заводского изготовления
Дата добавления в базу:01.09.2013
Дата актуализации:05.05.2017
Оглавление:Перечень чертежей
284-4-112.86-КЖИ.ТТ-1 Технические требования
284-4-112.86-КЖИ.ТТ-2 Технические требования
284-4-112.86-КЖИ.01.00.0 Колонна 3КНД4.36-2.3-I
284-4-112.86-КЖИ.02.00.0 Каркас пространственный КП-1
284-4-112.86-КЖИ.03.00.0 Колонна 3КНО4.36-2.2-I
284-4-112.86-КЖИ.04.00.0 Каркас пространственный КП-2
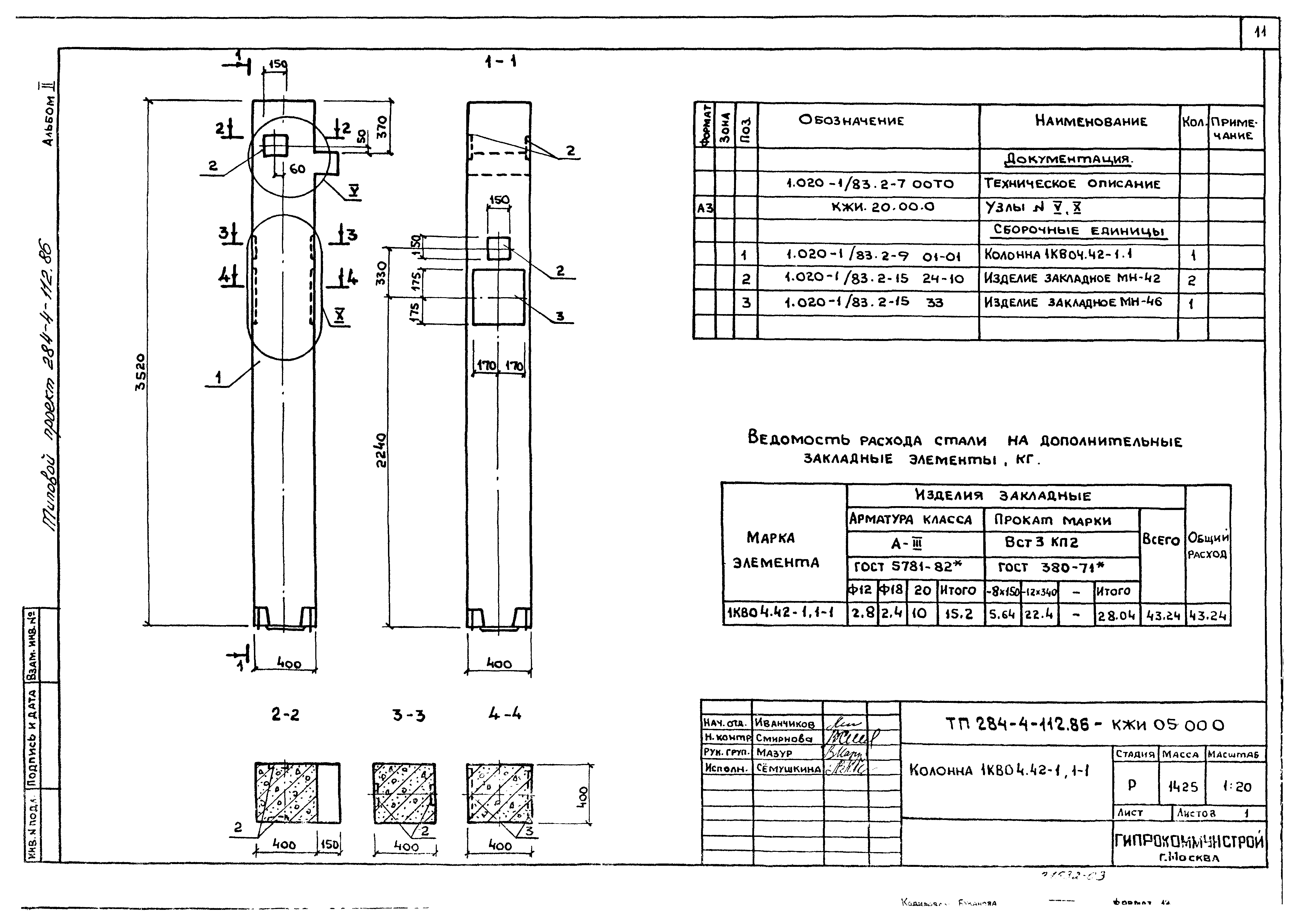
284-4-112.86-КЖИ.05.00.0 Колонна 1КВО4.42-1.1-1
284-4-112.86-КЖИ.06.00.0 Колонна 1КВО4.42-1.1-2
284-4-112.86-КЖИ.07.00.0 Колонна 1КВО4.42-1.1-3
284-4-112.86-КЖИ.08.00.0 Колонна 1КВО4.33-1.1-1
284-4-112.86-КЖИ.09.00.0 Колонна (1КВО4.33-1.1-2; 1КВО4.33-1.1-3)
284-4-112.86-КЖИ.10.00.0 Колонна (1КВО4.33-1.1-4; 1КВО4.33-1.1-5)
284-4-112.86-КЖИ.11.00.0 Колонна 1КВД4.33-1.1-1
284-4-112.86-КЖИ.12.00.0 Колонна 1КВД4.33-1.1-2
284-4-112.86-КЖИ.13.00.0 Колонна 3КНД4.36-2.3-I-1
284-4-112.86-КЖИ.14.00.0 Колонна 3КНД4.36-2.3-I-2
284-4-112.86-КЖИ.15.00.0 Колонна 3КНД4.36-2.3-I-3
284-4-112.86-КЖИ.16.00.0 Колонна 3КНД4.36-2.3-I-4
284-4-112.86-КЖИ.17.00.0 Колонна 3КНО4.36-2.2-I-1
284-4-112.86-КЖИ.18.00.0 Колонна 3КНО4.36-2.2-I-2
284-4-112.86-КЖИ.19.00.0 Колонна 3КНО4.36-2.2-I-3
284-4-112.86-КЖИ.20.00.0 Узлы I - XII
284-4-112.86-КЖИ.21.00.0 Плита (ПП56.15-16АIVТ-3; ПП56.15-12АIVТ-3)
284-4-112.86-КЖИ.21.00.0СБ Плита (ПП56.15-16АIVТ-3; ПП56.15-12АIVТ-3)
284-4-112.86-КЖИ.22.00.0 Крюк металлический КМ-1
284-4-112.86-КЖИ.23.00.0 Плита (ПРС56.15-16АIVТ-I; ПРС56.15-12АIVТ)
284-4-112.86-КЖИ.23.00.0СБ Плита (ПРС56.15-16АIVТ-I; ПРС56.15-12АIVТ)
284-4-112.86-КЖИ.24.00.0 Плита (ПП56.15-10АIVТ; ПП56.15-8АIVТ)
284-4-112.86-КЖИ.24.00.0СБ Плита (ПП56.15-10АIVТ; ПП56.15-8АIVТ)
284-4-112.86-КЖИ.25.00.0 Плита (ПРС56.15-6АIVТ-1; ПРС56.15-6АIVТ-2; ПРС56.15-6АIVТ-3)
284-4-112.86-КЖИ.26.00.0 Плита (ПРС56.15-12АIVТ-1 - ПРС56.15-12АIVТ-3; ПРС56.15-12АIVТ-12; ПРС56.15-12АIVТ-14)
284-4-112.86-КЖИ.27.00.0 Плита (ПРС56.15-12АIVТ-13; ПРС56.15-12АIVТ-15; ПРС56.15-12АIVТ-4)
284-4-112.86-КЖИ.28.00.0 Плита (ПРС56.15-12АIVТ-5; ПРС56.15-12АIVТ-7; ПРС56.15-12АIVТ-17)
284-4-112.86-КЖИ.29.00.0 Плита (ПРС56.15-12АIVТ-6; ПРС56.15-12АIVТ-8; ПРС56.15-12АIVТ-16; ПРС56.15-12АIVТ-21)
284-4-112.86-КЖИ.30.00.0 Плита (ПРС56.15-12АIVТ-22; ПРС56.15-12АIVТ-10; ПРС56.15-12АIVТ-11)
284-4-112.86-КЖИ.31.00.0 Плита (ПРС56.15-12АIVТ-18; ПРС56.15-12АIVТ-19; ПРС56.15-12АIVТ-20)
284-4-112.86-КЖИ.32.00.0 Плита (ПРС56.15-16АIVТ-I-1; ПРС56.15-12АIVТ-23; ПРС56.15-10АIVТ-4)
284-4-112.86-КЖИ.33.00.0 Плита (ПРС56.15-12АIVТ-9; ПРС56.15-10АIVТ-1 - ПРС56.15-10АIVТ-3; ПРС56.15-16АIVТ-I-21)
284-4-112.86-КЖИ.34.00.0 Анкер А-1
284-4-112.86-КЖИ.35.00.0 Анкер А-2
284-4-112.86-КЖИ.36.00.0 Анкер А-3
284-4-112.86-КЖИ.37.00.0 Анкер А-4
284-4-112.86-КЖИ.38.00.0 Анкер А-5
284-4-112.86-КЖИ.39.00.0 Анкер А-6
284-4-112.86-КЖИ.40.00.0 Каркас (К-1; К-2; К-5)
284-4-112.86-КЖИ.40.00.0СБ Каркас (К-1; К-2; К-5)
284-4-112.86-КЖИ.41.00.0 Каркас (К-3; К-4)
284-4-112.86-КЖИ.41.00.0СБ Каркас (К-3; К-4)
284-4-112.86-КЖИ.42.00.0 Каркас К-6
284-4-112.86-КЖИ.43.00.0 Каркас КР-1
284-4-112.86-КЖИ.44.00.0 Сетка С-1
284-4-112.86-КЖИ.45.00.0 Сетка С-2
284-4-112.86-КЖИ.46.00.0 Сетка С-3
284-4-112.86-КЖИ.47.00.0 Сетка С-4
284-4-112.86-КЖИ.48.00.0 Сетка С-5
284-4-112.86-КЖИ.49.00.0 Сетка С-6
284-4-112.86-КЖИ.50.00.0 Сетка С-7
284-4-112.86-КЖИ.51.00.0 Сетка С-8
284-4-112.86-КЖИ.52.00.0 Сетка С-9
284-4-112.86-КЖИ.53.00.0 Сетка С-11
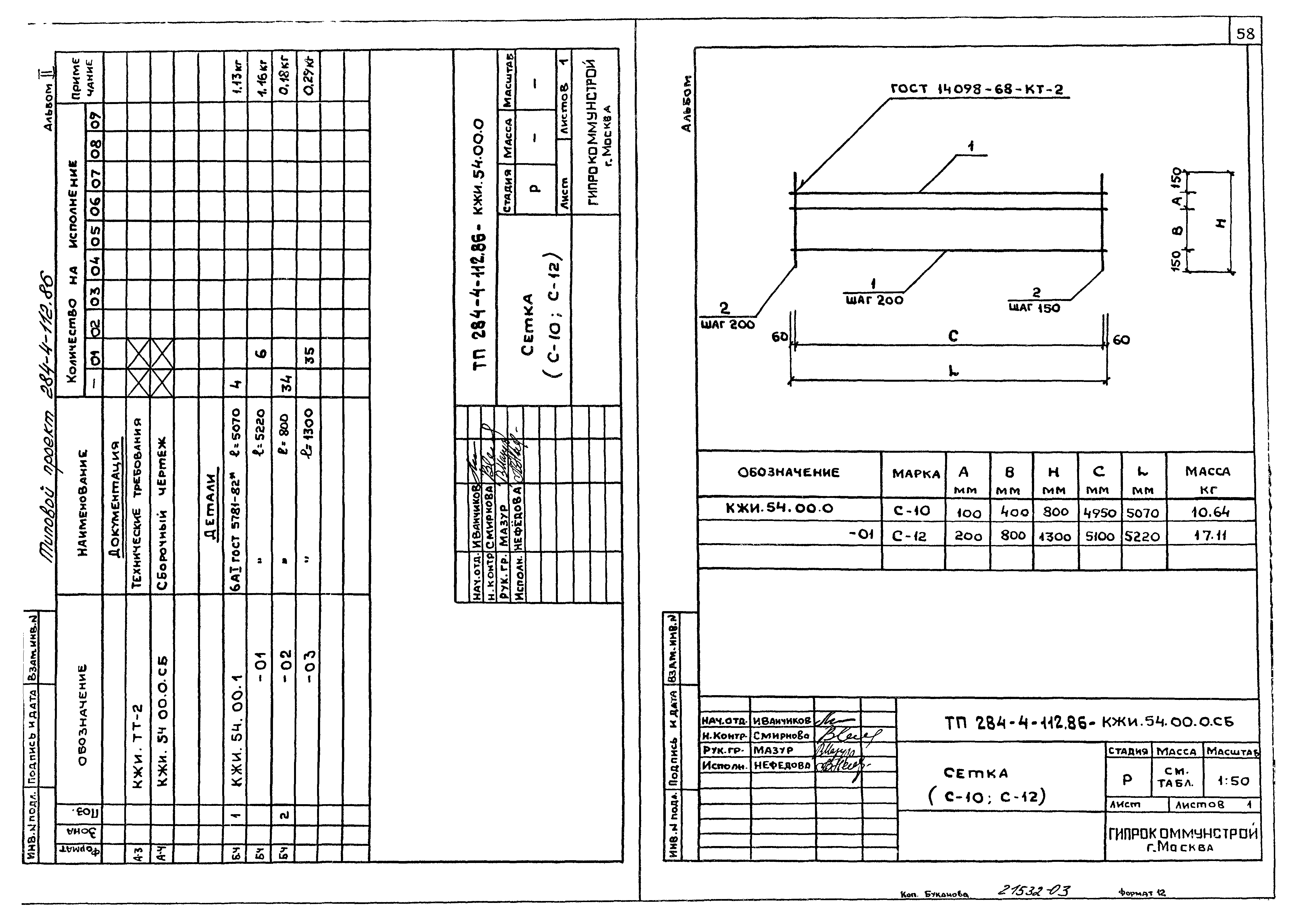
284-4-112.86-КЖИ.54.00.0 Сетка (С-10; С-12)
284-4-112.86-КЖИ.54.00.0СБ Сетка (С-10; С-12)
284-4-112.86-КЖИ.55.00.0 Сетка С-13
284-4-112.86-КЖИ.56.00.0 Сетка С-14
284-4-112.86-КЖИ.57.00.0 Сетка С-15
284-4-112.86-КЖИ.58.00.0 Сетка С-16
284-4-112.86-КЖИ.59.00.0 Сетка С-17
284-4-112.86-КЖИ.60.00.0 Сетка С-18
284-4-112.86-КЖИ.61.00.0 Сетка С-19
284-4-112.86-КЖИ.62.00.0 Сетка С-20
284-4-112.86-КЖИ.63.00.0 Каркас (КР-2; КР-3)
284-4-112.86-КЖИ.63.00.0СБ Каркас (КР-2; КР-3)
284-4-112.86-КЖИ.64.00.0 Каркас (КР-4; КР-5)
284-4-112.86-КЖИ.64.00.0СБ Каркас (КР-4; КР-5)
284-4-112.86-КЖИ.65.00.0 Каркас (КР-6; КР-7)
284-4-112.86-КЖИ.65.00.0СБ Каркас (КР-6; КР-7)
284-4-112.86-КЖИ.66.00.0 Сетка (С1 - С4)
284-4-112.86-КЖИ.66.00.0СБ Сетка (С1 - С4)
284-4-112.86-КЖИ.67.00.0 Сетка (С5 - С7)
284-4-112.86-КЖИ.67.00.0СБ Сетка (С5 - С7)
284-4-112.86-КЖИ.68.00.0 Сетка С-1
284-4-112.86-КЖИ.69.00.0 Сетка С-2
284-4-112.86-КЖИ.70.00.0 Сетка С-3
284-4-112.86-КЖИ.71.00.0 Сетка С-4
284-4-112.86-КЖИ.72.00.0 Сетка (С5 - С8)
284-4-112.86-КЖИ.72.00.0СБ Сетка (С5 - С8)
284-4-112.86-КЖИ.73.00.0 Сетка (С9 - С14)
284-4-112.86-КЖИ.73.00.0СБ Сетка (С9 - С14)
284-4-112.86-КЖИ.74.00.0 Каркас плоский (КР-1 - КР-3)
284-4-112.86-КЖИ.74.00.0СБ Каркас плоский (КР-1 - КР-3)
284-4-112.86-КЖИ.75.00.0 Каркас плоский КР-4
284-4-112.86-КЖИ.76.00.0 Каркас плоский КР-5
284-4-112.86-КЖИ.77.00.0 Каркас плоский (КР-6; КР-7)
284-4-112.86-КЖИ.77.00.0СБ Каркас плоский (КР-6; КР-7)
284-4-112.86-КЖИ.78.00.0 Плита (П10д-5-1; П10д-5-2)
284-4-112.86-КЖИ.79.00.0 Сетка С-1
284-4-112.86-КЖИ.80.00.0 Сетка С-2
284-4-112.86-КЖИ.81.00.0 Решетка Рм-1
284-4-112.86-КЖИ.82.00.0 Сетка С-2
284-4-112.86-КЖИ.83.00.0 Каркас КР-1
284-4-112.86-КЖИ.84.00.0 Изделие закладное М-1
284-4-112.86-КЖИ.84.01.0 Фланец (Ф-1; Ф-2)
284-4-112.86-КЖИ.85.00.0 Изделие закладное М-2
284-4-112.86-КЖИ.85.01.0 Фланец (Ф-1; Ф-2)
284-4-112.86-КЖИ.86.00.0 Изделие закладное М-3
284-4-112.86-КЖИ.87.00.0 Изделие закладное ЗД-1
284-4-112.86-КЖИ.88.00.0 Изделие закладное ЗД-2
284-4-112.86-КЖИ.89.00.0 Изделие закладное (МД-1; МД-2)
284-4-112.86-КЖИ.89.00.0СБ Изделие закладное (МД-1; МД-2)
284-4-112.86-КЖИ.90.00.0 Сетка арматурная (МР-1; МР-2)
284-4-112.86-КЖИ.91.00.0 Перегородка ИПГ30.30-2-Т-3
284-4-112.86-КЖИ.92.00.0 Перегородки ИПГ30.30-2-Т-4 - ИПГ30.30-2-Т-7; ИПГ25.30-2-Т-2; ИПГ25.30-2-Т-3
284-4-112.86-КЖИ.92.00.0СБ Перегородки ИПГ30.30-2-Т-4 - ИПГ30.30-2-Т-7; ИПГ25.30-2-Т-2; ИПГ25.30-2-Т-3
284-4-112.86-КЖИ.93.00.0 Перегородка ИПГ25.30-2-Т-1
284-4-112.86-КЖИ.94.00.0 Перегородки ИПГ30.30-2-Т-4 - ИПГ30.30-2-Т-7; ИПГ25.30-2-Т-2; ИПГ25.30-2-Т-3
284-4-112.86-КЖИ.94.00.0СБ Перегородки ИПГ30.30-2-Т-4 - ИПГ30.30-2-Т-7; ИПГ25.30-2-Т-2; ИПГ25.30-2-Т-3
284-4-112.86-КЖИ.95.00.0 Перегородка ИПГ30.30-2-Т-1
284-4-112.86-КЖИ.96.00.0 Перегородки ИПГ55.30-2-Т-1; ИПГ35.30-2-Т-2; ИПГ25.30-2-Т-Д1; ИПГ25.30-2-Т-Д1
284-4-112.86-КЖИ.96.00.0СБ Перегородки ИПГ55.30-2-Т-1; ИПГ35.30-2-Т-2; ИПГ25.30-2-Т-Д1; ИПГ25.30-2-Т-Д1
284-4-112.86-КЖИ.97.00.0 Перегородка ИПГ30.30-2-Т-81-Д1
284-4-112.86-КЖИ.98.00.0 Перегородки ИПГ30.30-2-Т-Д1-1 - ИПГ30.30-2-Т-Д1-4; ИПГ26.30-2-Т-Д1
284-4-112.86-КЖИ.98.00.0СБ Перегородки ИПГ30.30-2-Т-Д1-1 - ИПГ30.30-2-Т-Д1-4; ИПГ26.30-2-Т-Д1
284-4-112.86-КЖИ.99.00.0 Перегородка ИПГ55.30-2-Т-81-Д1
284-4-112.86-КЖИ.100.00.0 Перегородки ИПГ30.30-2-Т-1; ИПГ30.30-2-Т-8 - ИПГ30.30-2-Т-10; ИПГ30.30-2-Т-В1
284-4-112.86-КЖИ.100.00.0СБ Перегородки ИПГ30.30-2-Т-1; ИПГ30.30-2-Т-8 - ИПГ30.30-2-Т-10; ИПГ30.30-2-Т-В1
284-4-112.86-КЖИ.101.00.0 Перегородка ИПГ30.30-2-Т-6
Разработан: Гипрокоммунстрой
Утверждён:27.12.1985 МЖКХ РСФСР (7-ТД)
Расположен в:Техническая документация Строительство Справочные документы Типовые строительные конструкции, изделия и узлы Общероссийский строительный каталог Общественные здания в городах и поселках городского типа Предприятия бытового обслуживания населения и коммунального хозяйства Бани, бани-прачечные с предприятиями бытового обслуживания, душевые, банно-оздоровительные комплексы
Типовой проект 284-4-112.86Типовой проект 284-4-112.86Типовой проект 284-4-112.86Типовой проект 284-4-112.86Типовой проект 284-4-112.86Типовой проект 284-4-112.86Типовой проект 284-4-112.86Типовой проект 284-4-112.86Типовой проект 284-4-112.86Типовой проект 284-4-112.86Типовой проект 284-4-112.86Типовой проект 284-4-112.86Типовой проект 284-4-112.86Типовой проект 284-4-112.86Типовой проект 284-4-112.86Типовой проект 284-4-112.86Типовой проект 284-4-112.86Типовой проект 284-4-112.86Типовой проект 284-4-112.86Типовой проект 284-4-112.86Типовой проект 284-4-112.86Типовой проект 284-4-112.86Типовой проект 284-4-112.86Типовой проект 284-4-112.86Типовой проект 284-4-112.86Типовой проект 284-4-112.86Типовой проект 284-4-112.86Типовой проект 284-4-112.86Типовой проект 284-4-112.86Типовой проект 284-4-112.86Типовой проект 284-4-112.86Типовой проект 284-4-112.86Типовой проект 284-4-112.86Типовой проект 284-4-112.86Типовой проект 284-4-112.86Типовой проект 284-4-112.86Типовой проект 284-4-112.86Типовой проект 284-4-112.86Типовой проект 284-4-112.86Типовой проект 284-4-112.86Типовой проект 284-4-112.86Типовой проект 284-4-112.86Типовой проект 284-4-112.86Типовой проект 284-4-112.86Типовой проект 284-4-112.86Типовой проект 284-4-112.86Типовой проект 284-4-112.86Типовой проект 284-4-112.86Типовой проект 284-4-112.86Типовой проект 284-4-112.86Типовой проект 284-4-112.86Типовой проект 284-4-112.86Типовой проект 284-4-112.86Типовой проект 284-4-112.86Типовой проект 284-4-112.86Типовой проект 284-4-112.86Типовой проект 284-4-112.86Типовой проект 284-4-112.86Типовой проект 284-4-112.86Типовой проект 284-4-112.86Типовой проект 284-4-112.86Типовой проект 284-4-112.86Типовой проект 284-4-112.86Типовой проект 284-4-112.86Типовой проект 284-4-112.86Типовой проект 284-4-112.86Типовой проект 284-4-112.86Типовой проект 284-4-112.86Типовой проект 284-4-112.86Типовой проект 284-4-112.86Типовой проект 284-4-112.86Типовой проект 284-4-112.86Типовой проект 284-4-112.86Типовой проект 284-4-112.86Типовой проект 284-4-112.86Типовой проект 284-4-112.86Типовой проект 284-4-112.86Типовой проект 284-4-112.86Типовой проект 284-4-112.86Типовой проект 284-4-112.86Типовой проект 284-4-112.86Типовой проект 284-4-112.86Типовой проект 284-4-112.86Типовой проект 284-4-112.86Типовой проект 284-4-112.86Типовой проект 284-4-112.86Типовой проект 284-4-112.86Типовой проект 284-4-112.86Типовой проект 284-4-112.86Типовой проект 284-4-112.86Типовой проект 284-4-112.86Типовой проект 284-4-112.86Типовой проект 284-4-112.86Типовой проект 284-4-112.86Типовой проект 284-4-112.86Типовой проект 284-4-112.86Типовой проект 284-4-112.86

© 2013 Ёшкин Кот :-) Карта сайта