Информационная система
«Ёшкин Кот»

Скачать базу одним архивом
Скачать обновления
История создания базы
Карта сайта

Скачать Типовой проект 284-4-112.86 Альбом I. Часть 1. Пояснительная записка. Архитектурные решения

Дата актуализации: 10.08.2017

Типовой проект 284-4-112.86

Альбом I. Часть 1. Пояснительная записка. Архитектурные решения

Обозначение: Типовой проект 284-4-112.86
Обозначение англ: 284-4-112.86
Статус:действует
Название рус.:Альбом I. Часть 1. Пояснительная записка. Архитектурные решения
Дата добавления в базу:01.09.2013
Дата актуализации:05.05.2017
Оглавление:Обложка
Титульный лист
Содержание альбома
Пояснительная записка
Архитектурные решения
   Общие данные
   План технического подполья в осях А - Г
   План технического подполья в осях Г - И. Сечение А-А
   План 1 этажа в осях А - Г. Фрагмент плана 3. Сечение 2-2. Узел 1
   План 1 этажа в осях Г - И. Сечение 1-1
   План 2 этажа в осях А -Г
   План 2 этажа в осях Г - И. Сечение 2-2
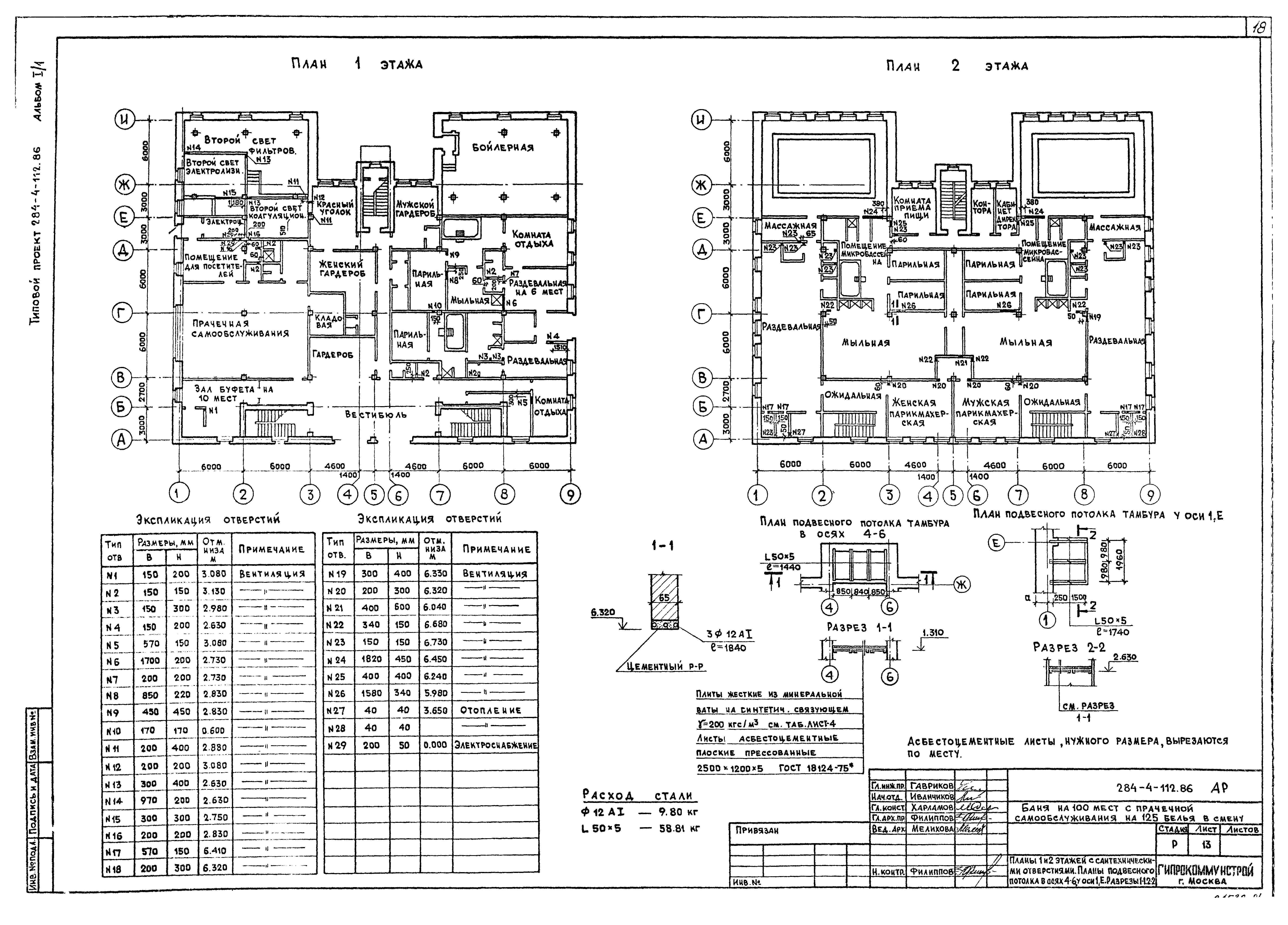
   Планы 1 и 2 этажей с сантехническими отверстиями. План подвесного потолка в осях 4 - 6, у оси 1, Е. Разрезы 1-1, 2-2
   План технического этажа. Сечения 1-1, 2-2. Узлы 2, 3
   Ведомость перемычек
   Спецификация перемычек
   Спецификация элементов заполнения проемов. Экспликация полов
   Разрез 1-1, 2-2. Развертки стен с вентиляционными каналами. Сечения 1-1 - 4-4
   Разрезы 3-3 - 5-5. Сечения 4-4, 5-5
   Разрез 6-6, сечения 1-1 - 3-3. Фрагмент плана 4. Узел 1
   Фасад 1 - 9. Фрагмент фасада 6 - 4 для t = минус 40 градусов Цельсия. Фрагмент разреза 4-4 для t = минус 40 градусов Цельсия
   Фасады И -А; А - И
   Фасады 9 - 1; И - Ж; Ж - И
   Схемы заполнения оконных проемов
   План кровли. Сечения 1-1; 3-3; 4-4
   Планы полов 1 и 2 этажей, экспликация полов
   Фрагмент планов полов 1 - 5. Сечение 1-1
   Фрагмент планов полов 4. Сечения 1-1; 2-2
   План воздухозаборной шахты. Фасад. Разрезы 1-1; 2-2. Деталь 4
   Монтажные планы перегородок 1, 2 и технического этажей
   Спецификация элементов к монтажным планам перегородок 1, 2 и технического этажей
   Планы парильных №1 - №4. Разрезы 1-1 - 3-3
   Планы каркаса парильных №1 - №4; планы перекрытия парильных №1 - №4; решетки Р1 - Р8
   Сечение 1-1; разрезы 1-1; 2-2; планы пола П1 - П3
   Детали 1 - 6
   Планы парогидроизоляции 1 и 2 этажей; разрезы 1-1 и 2-2
   Парогидроизоляция. Детали 1 - 8; 15
   Парогидроизоляция. Детали 9 - 14
   План тамбура главного входа. Разрезы 1-1; 2-2. Детали 1 - 6
   Развертки стен по осям "В", "А", "3" и "7"
   Узлы 1, 2. Сечения 1-1, 2-2
   Остекленная перегородка ОП-1, окно выдачи ИОВ-1
   Фрамуги Ф-1 - Ф-4
   Дверной блок внутренний ДПИ-1; ДПИ-1л, узлы 1, 2. Ручка дверная РД-1. дверца продуха ДИ-1; подоконная доска ИПД-1
Разработан: Гипрокоммунстрой
Утверждён:27.12.1985 МЖКХ РСФСР (7-ТД)
Расположен в:Техническая документация Строительство Справочные документы Типовые строительные конструкции, изделия и узлы Общероссийский строительный каталог Общественные здания в городах и поселках городского типа Предприятия бытового обслуживания населения и коммунального хозяйства Бани, бани-прачечные с предприятиями бытового обслуживания, душевые, банно-оздоровительные комплексы
Типовой проект 284-4-112.86Типовой проект 284-4-112.86Типовой проект 284-4-112.86Типовой проект 284-4-112.86Типовой проект 284-4-112.86Типовой проект 284-4-112.86Типовой проект 284-4-112.86Типовой проект 284-4-112.86Типовой проект 284-4-112.86Типовой проект 284-4-112.86Типовой проект 284-4-112.86Типовой проект 284-4-112.86Типовой проект 284-4-112.86Типовой проект 284-4-112.86Типовой проект 284-4-112.86Типовой проект 284-4-112.86Типовой проект 284-4-112.86Типовой проект 284-4-112.86Типовой проект 284-4-112.86Типовой проект 284-4-112.86Типовой проект 284-4-112.86Типовой проект 284-4-112.86Типовой проект 284-4-112.86Типовой проект 284-4-112.86Типовой проект 284-4-112.86Типовой проект 284-4-112.86Типовой проект 284-4-112.86Типовой проект 284-4-112.86Типовой проект 284-4-112.86Типовой проект 284-4-112.86Типовой проект 284-4-112.86Типовой проект 284-4-112.86Типовой проект 284-4-112.86Типовой проект 284-4-112.86Типовой проект 284-4-112.86Типовой проект 284-4-112.86Типовой проект 284-4-112.86Типовой проект 284-4-112.86Типовой проект 284-4-112.86Типовой проект 284-4-112.86Типовой проект 284-4-112.86Типовой проект 284-4-112.86Типовой проект 284-4-112.86Типовой проект 284-4-112.86Типовой проект 284-4-112.86Типовой проект 284-4-112.86Типовой проект 284-4-112.86Типовой проект 284-4-112.86Типовой проект 284-4-112.86Типовой проект 284-4-112.86Типовой проект 284-4-112.86Типовой проект 284-4-112.86

© 2013 Ёшкин Кот :-) Карта сайта