Информационная система
«Ёшкин Кот»

Скачать базу одним архивом
Скачать обновления
История создания базы
Карта сайта

Скачать Типовой проект 503-1-50.86 Альбом 2. Силовое электрооборудование. Электрическое освещение. Связь и сигнализация. Отопление и вентиляция. Внутренний водопровод и канализация. Пожарная сигнализация

Дата актуализации: 10.08.2017

Типовой проект 503-1-50.86

Альбом 2. Силовое электрооборудование. Электрическое освещение. Связь и сигнализация. Отопление и вентиляция. Внутренний водопровод и канализация. Пожарная сигнализация

Обозначение: Типовой проект 503-1-50.86
Обозначение англ: 503-1-50.86
Статус:не определен законодательством
Название рус.:Альбом 2. Силовое электрооборудование. Электрическое освещение. Связь и сигнализация. Отопление и вентиляция. Внутренний водопровод и канализация. Пожарная сигнализация
Дата добавления в базу:01.09.2013
Дата актуализации:05.05.2017
Дата введения:15.10.1986
Оглавление:Обложка
Титульный лист
Содержание альбома 2
Чертежи основного комплекта марки ЭМ
   Общие данные
   Расчетная схема силовой сети
   Приточная система П2. Принципиальная схема контроля и регулирования
   Приточная система П5. Принципиальная схема контроля и регулирования
   Приточная система П1, П3, П4, П6. Воздушная завеса У1, У2. Принципиальная схема контроля и регулирования
   Приточная система П2. Схема электрическая принципиальная
   Приточная система П5. Схема электрическая принципиальная
   Воздушная завеса У1, У2. Схема электрическая принципиальная
   Вытяжные системы В1 - В3. Электроприемники 34, 38, 41, ШР2. Схема электрическая принципиальная
   Приточная система П1, П2. Схема внешних соединений
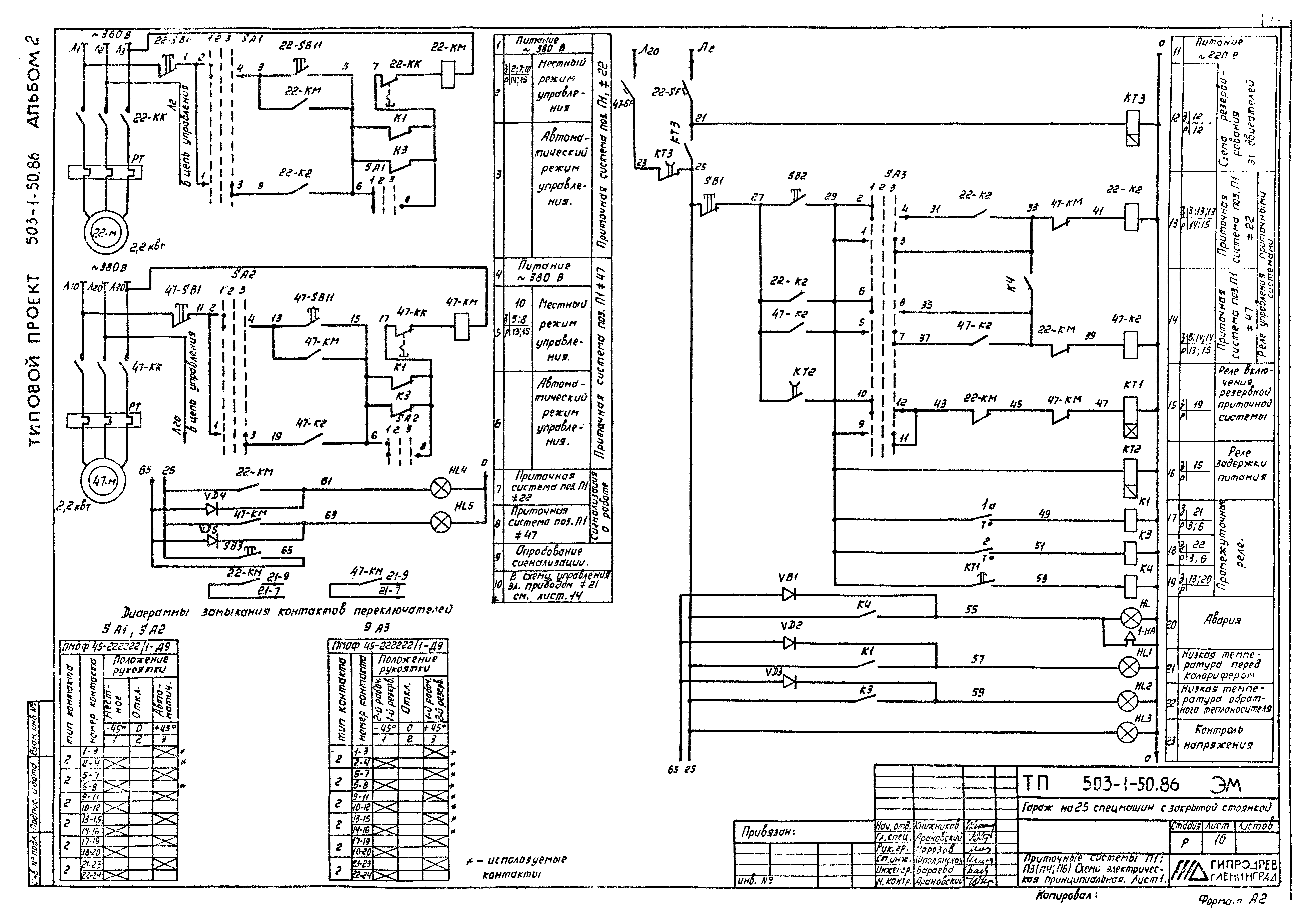
   Приточные системы П1, П3, П4, П6. Схема электрическая принципиальная
   Приточная система П5. Схема внешних соединений
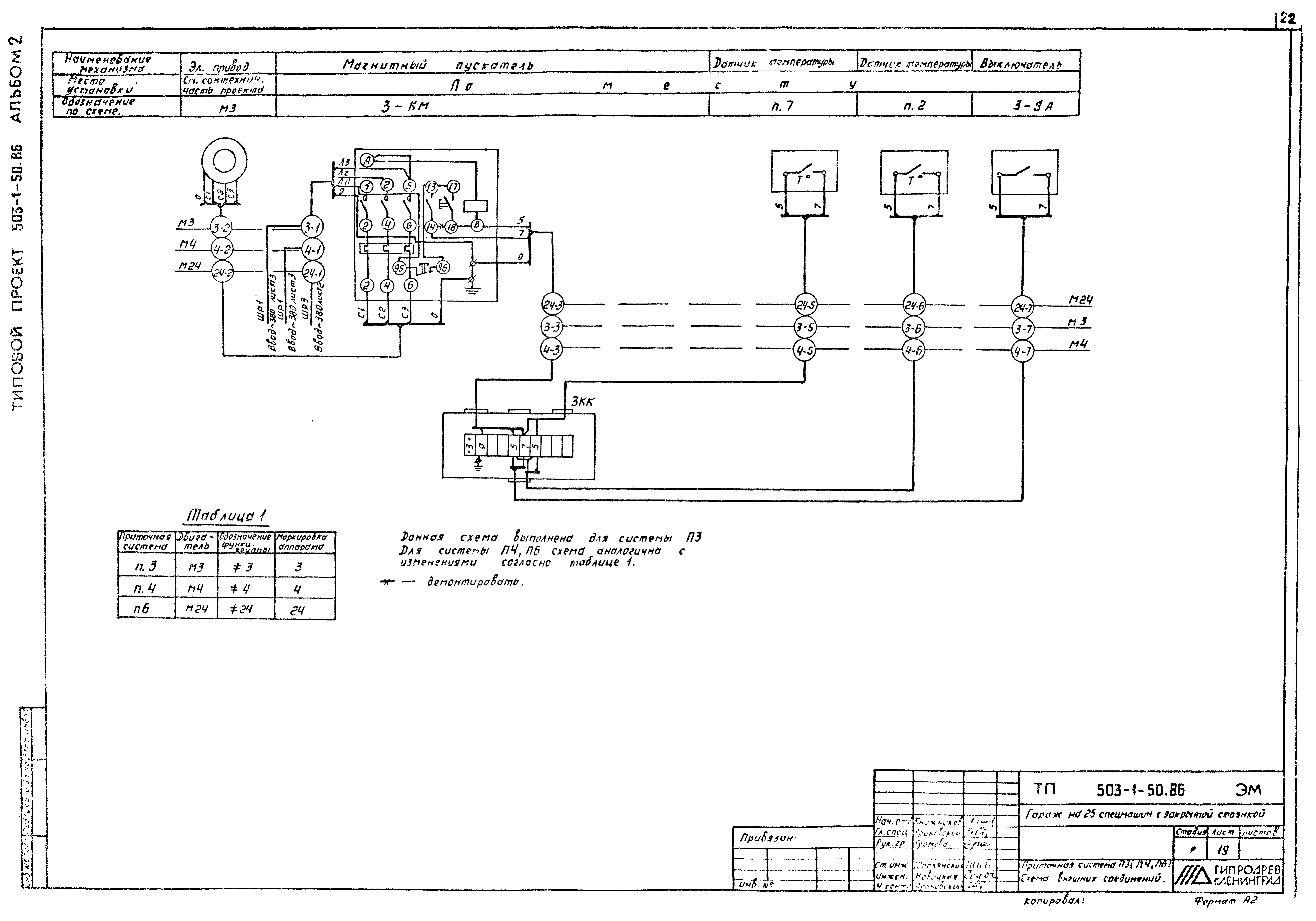
   Приточные системы П3, П4, П6. Схема внешних соединений
   Вытяжные системы В1 - В3. Электроприемники 34, 38, 41, ШР2. Схема внешних соединений
   Воздушная завеса У1, У2. Схема внешних соединений
   План кабельных трасс
   План трубных прокладок
   План прокладок кабельных конструкций
   Кабельный журнал
   Ведомость изделий МЭЗ
   Ведомость изделий и материалов для изготовления изделий МЭЗ
   Установка конечного выключателя ВПК2110А на воротах в осях 9 - 10
Чертежи основного комплекта марки ЭО
   Общие данные
   Принципиальные схемы питающей сети
   План питающих сетей. Кабельный журнал
   План расположения сетей в осях 5 - 16
   Ведомость оборудования и основных материалов к листу 4
   План расположения сетей в осях 1 - 5
   Разрезы 1-1, 2-2. Фасад Г - А. Фасад 1 - 16
   Установка светильника ПВЛМ-2х80 на кронштейне
   Устройства молниезащиты
Чертежи основного комплекта марки СС
   Общие данные
   Условные обозначения. Список мест установки точек связи, сигнализации и радиофикации
   Скелетные системы телефонной, ПГС, радиотрансляционной и телефонной сети
   План сетей телефонной и производственной громкоговорящей связи в пристройке вспомогательных помещений
   План радиотрансляционной и телевизионной сетей в пристройке вспомогательных помещений
   План сетей телефонной, производственной громкоговорящей связи в производственных помещениях
   План радиотрансляционной сети в производственных помещениях
Чертежи основного комплекта марки ОВ
   Общие данные
   План отопления и теплоснабжения установок П1 - П4 на отм. 0.000 в осях 4 - 10. План на отм. 3.000 в осях 4 - 6
   План отопления и теплоснабжения установок П5, У1, А1, А2 на отм. 0.000 в осях 9 - 16
   План вентиляции на отм. 0.000 в осях 4 - 10. План на отм. 3.000 в осях 4 - 6
   План вентиляции на отм. 0.000 в осях 9 - 16
   План отопления и вентиляции вспомогательных помещений
   Схема системы отопления гаража
   Схема систем теплоснабжения установок П1 - П15, А1, А2
   Схема систем отопления и теплоснабжения установки П6 вспомогательных помещений
   Схемы систем П1 - П15
   Схемы систем П6, В11 - В13
   Схемы систем В1, В4 - В8, В9, В10, ВЕ1, ВЕ2, ВЕ3
   Приточные установки П1 и П2
   Приточные установки П1 и П2. Спецификация
   Приточные установки П3 и П4
   Приточные установки П3 и П4. Спецификация
   Приточная установка П5
   Приточная установка П6
   Вытяжная установка В1
   Вытяжные установки В11 - В13
   Тепловой пункт. План. Спецификация
   Тепловой пункт. Схема трубопроводов
   Тепловой пункт. Опоры под оборудование
   Шланговый отсос
   Клапан обводной
   Паспорт теплового пункта и системы горячего водоснабжения
   Паспорт систем отопления и теплоснабжения калориферов
Чертежи основного комплекта марки ВК
   Общие данные
   План производственных помещений с сетями водопровода и канализации
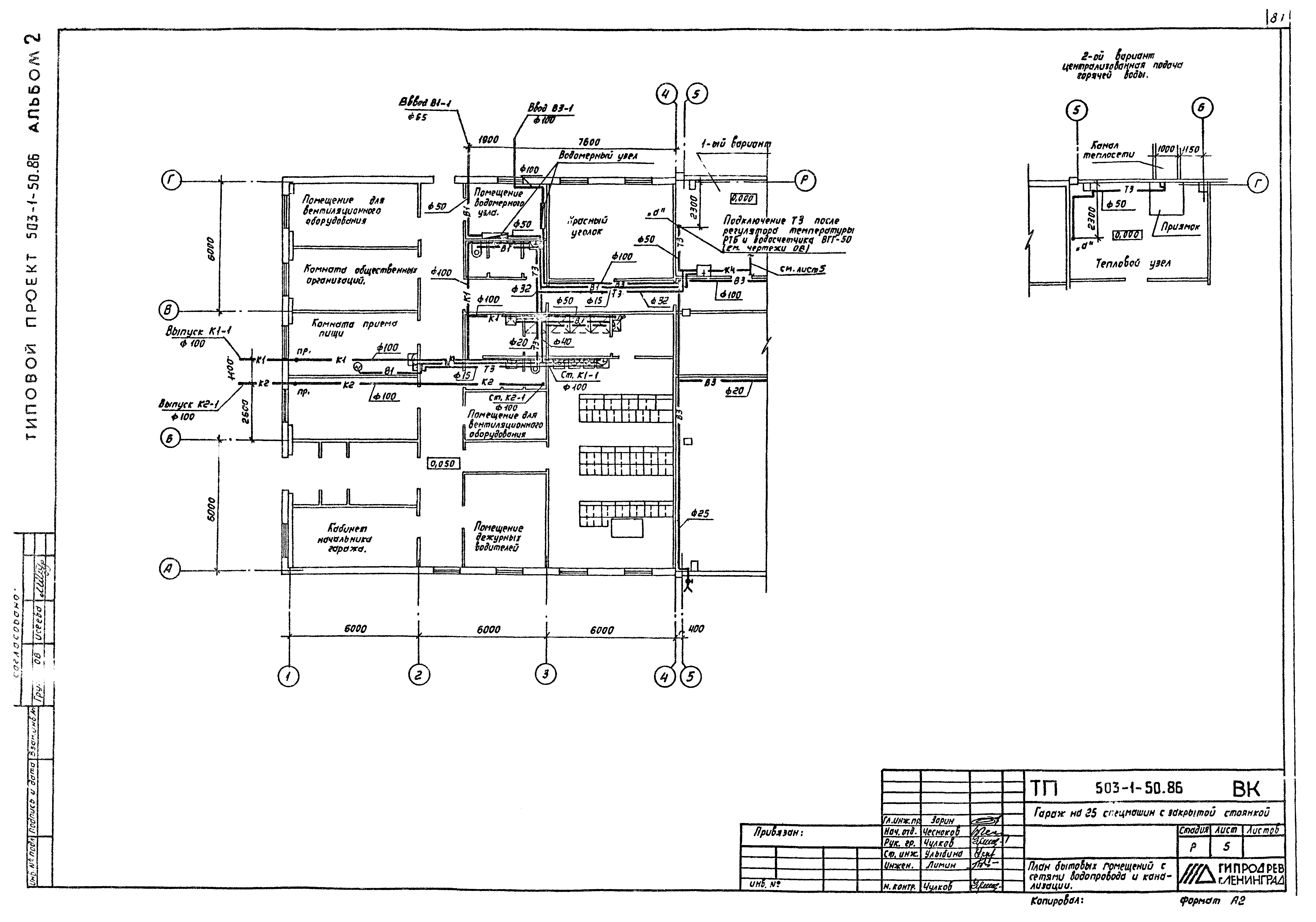
   План бытовых помещений с сетями водопровода и канализации
   Асконометрическая схема сети В3 и схема оборотного водоснабжения мойки машин
   Асконометрические схемы сетей В1, Т3
   Схемы сетей К1, К4, Кт3
   Водоприемные колодцы. Общий вид. Детали узлов
   Водоприемные колодцы. Детали
   План кровли. Схема сетей К2
   Грязеотстойник с бензомаслоуловителем. План. Разрезы
Чертежи основного комплекта марки ПС
   Общие данные
   Схема электрическая принципиальная
   Схема электрическая общая
   Схема электрическая соединений
   Устройство обнаружения пожара. Размещение оборудования и кабельные прокладки
Разработан: Гипродрев Минлесбумпрома СССР
Утверждён:14.04.1986 Минлесбумпром СССР (USSR Minlesbumprom 47)
Расположен в:Техническая документация Строительство Справочные документы Типовые строительные конструкции, изделия и узлы Общероссийский строительный каталог Промышленные предприятия, здания и сооружения Предприятия, здания и сооружения транспорта Транспорт автомобильный Предприятия автотранспортные, гаражи и стоянки для легковых автомобилей, автобусов и мотоциклов
Типовой проект 503-1-50.86Типовой проект 503-1-50.86Типовой проект 503-1-50.86Типовой проект 503-1-50.86Типовой проект 503-1-50.86Типовой проект 503-1-50.86Типовой проект 503-1-50.86Типовой проект 503-1-50.86Типовой проект 503-1-50.86Типовой проект 503-1-50.86Типовой проект 503-1-50.86Типовой проект 503-1-50.86Типовой проект 503-1-50.86Типовой проект 503-1-50.86Типовой проект 503-1-50.86Типовой проект 503-1-50.86Типовой проект 503-1-50.86Типовой проект 503-1-50.86Типовой проект 503-1-50.86Типовой проект 503-1-50.86Типовой проект 503-1-50.86Типовой проект 503-1-50.86Типовой проект 503-1-50.86Типовой проект 503-1-50.86Типовой проект 503-1-50.86Типовой проект 503-1-50.86Типовой проект 503-1-50.86Типовой проект 503-1-50.86Типовой проект 503-1-50.86Типовой проект 503-1-50.86Типовой проект 503-1-50.86Типовой проект 503-1-50.86Типовой проект 503-1-50.86Типовой проект 503-1-50.86Типовой проект 503-1-50.86Типовой проект 503-1-50.86Типовой проект 503-1-50.86Типовой проект 503-1-50.86Типовой проект 503-1-50.86Типовой проект 503-1-50.86Типовой проект 503-1-50.86Типовой проект 503-1-50.86Типовой проект 503-1-50.86Типовой проект 503-1-50.86Типовой проект 503-1-50.86Типовой проект 503-1-50.86Типовой проект 503-1-50.86Типовой проект 503-1-50.86Типовой проект 503-1-50.86Типовой проект 503-1-50.86Типовой проект 503-1-50.86Типовой проект 503-1-50.86Типовой проект 503-1-50.86Типовой проект 503-1-50.86Типовой проект 503-1-50.86Типовой проект 503-1-50.86Типовой проект 503-1-50.86Типовой проект 503-1-50.86Типовой проект 503-1-50.86Типовой проект 503-1-50.86Типовой проект 503-1-50.86Типовой проект 503-1-50.86Типовой проект 503-1-50.86Типовой проект 503-1-50.86Типовой проект 503-1-50.86Типовой проект 503-1-50.86Типовой проект 503-1-50.86Типовой проект 503-1-50.86Типовой проект 503-1-50.86Типовой проект 503-1-50.86Типовой проект 503-1-50.86Типовой проект 503-1-50.86Типовой проект 503-1-50.86Типовой проект 503-1-50.86Типовой проект 503-1-50.86Типовой проект 503-1-50.86Типовой проект 503-1-50.86Типовой проект 503-1-50.86Типовой проект 503-1-50.86Типовой проект 503-1-50.86Типовой проект 503-1-50.86Типовой проект 503-1-50.86Типовой проект 503-1-50.86Типовой проект 503-1-50.86Типовой проект 503-1-50.86Типовой проект 503-1-50.86Типовой проект 503-1-50.86Типовой проект 503-1-50.86Типовой проект 503-1-50.86Типовой проект 503-1-50.86Типовой проект 503-1-50.86Типовой проект 503-1-50.86Типовой проект 503-1-50.86Типовой проект 503-1-50.86Типовой проект 503-1-50.86Типовой проект 503-1-50.86Типовой проект 503-1-50.86Типовой проект 503-1-50.86Типовой проект 503-1-50.86Типовой проект 503-1-50.86Типовой проект 503-1-50.86Типовой проект 503-1-50.86Типовой проект 503-1-50.86

© 2013 Ёшкин Кот :-) Карта сайта