Информационная система
«Ёшкин Кот»

Скачать базу одним архивом
Скачать обновления
История создания базы
Карта сайта

Скачать Типовой проект 272-14-17 Альбом I. Архитектурно-строительные решения

Дата актуализации: 10.08.2017

Типовой проект 272-14-17

Альбом I. Архитектурно-строительные решения

Обозначение: Типовой проект 272-14-17
Обозначение англ: 272-14-17
Статус:действует
Название рус.:Альбом I. Архитектурно-строительные решения
Дата добавления в базу:01.09.2013
Дата актуализации:05.05.2017
Дата введения:29.01.1982
Оглавление:Обложка
Титульный лист
Чертежи основного комплекта марки АС1
   Общие данные
   Лист привязки
   Ведомость отделки помещений
   План 1 этажа в осях 1 - 7, А - Г
   План 1 этажа в осях 1 - 7, Г - И
   План 1 этажа в осях 7 - 12, А - Г
   План 1 этажа в осях 7 - 12, Г - Ж
   План 2 этажа в осях 7 - 12, А - Д
   План 1 этажа в осях 1 - 3, И - Л. План 2 этажа в осях 1 - 3, А - И
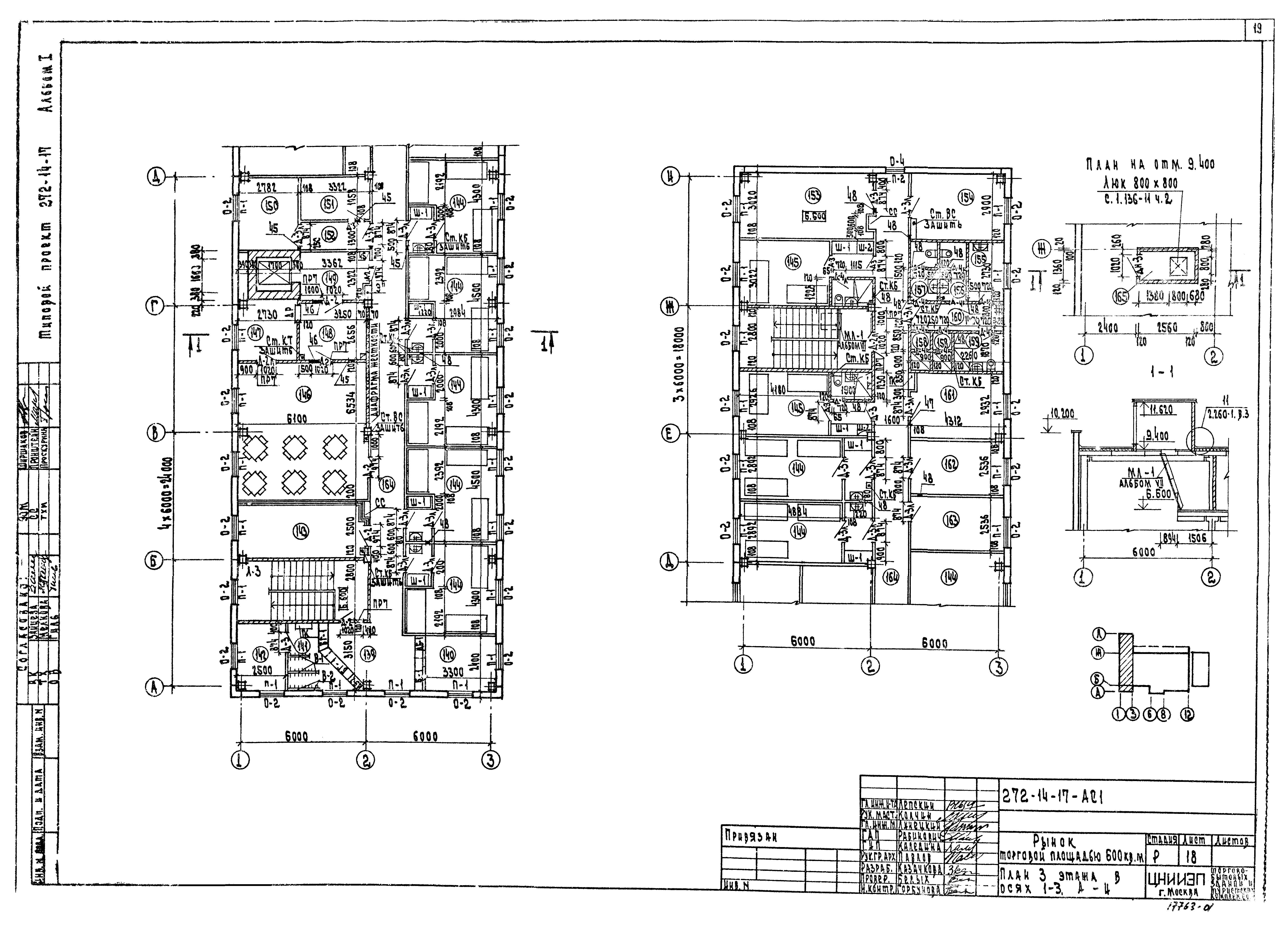
   План 3 этажа в осях 1 - 3, А - И
   Планы охлаждаемых камер фрагменты 1, 5
   Планы охлаждаемых камер фрагменты 2, 3, 4
   План площадки сезонной торговли, фасад, детали навеса
   Фасад 1 - 12
   Фасад А - Л
   Фасад 12 - 1
   Фасад Л - А
   Разрез 1-1
   Разрезы 2-2, 3-3
   Разрез 4-4
   План потолка торгового зала рынка. Развертки стен зала рынка
   План потолка торгового зала магазина "Овощи-фрукты". Развертки стен зала
   План потолка зала продажи картофеля. Развертки стен зала. План потолка обеденного зала кафе. Развертки стен зала
   Сечения А-А - Г-Г. Козырек в осях 6 - 8, А - Б
   Реклама в осях 1; А. Реклама в осях 11 - 12
   Прилавки кирпичные. Фрагменты А, Б, В
   Прилавки кирпичные. Фрагмент Г
   Прилавки кирпичные. Узел 1. Спецификация изделий
   Схема нагрузок на элементы фундамента
   Спецификация, сечения 1-1 - 9-9; 11-11 - 13-13
   Схема расположения элементов фундаментов. Сечения 10-10; 14-14
   Схема расположения элементов подпольных каналов
   Сечения подпольных каналов
   Спецификация элементов каркаса
   Схема расположения элементов каркаса в плане 1 этажа
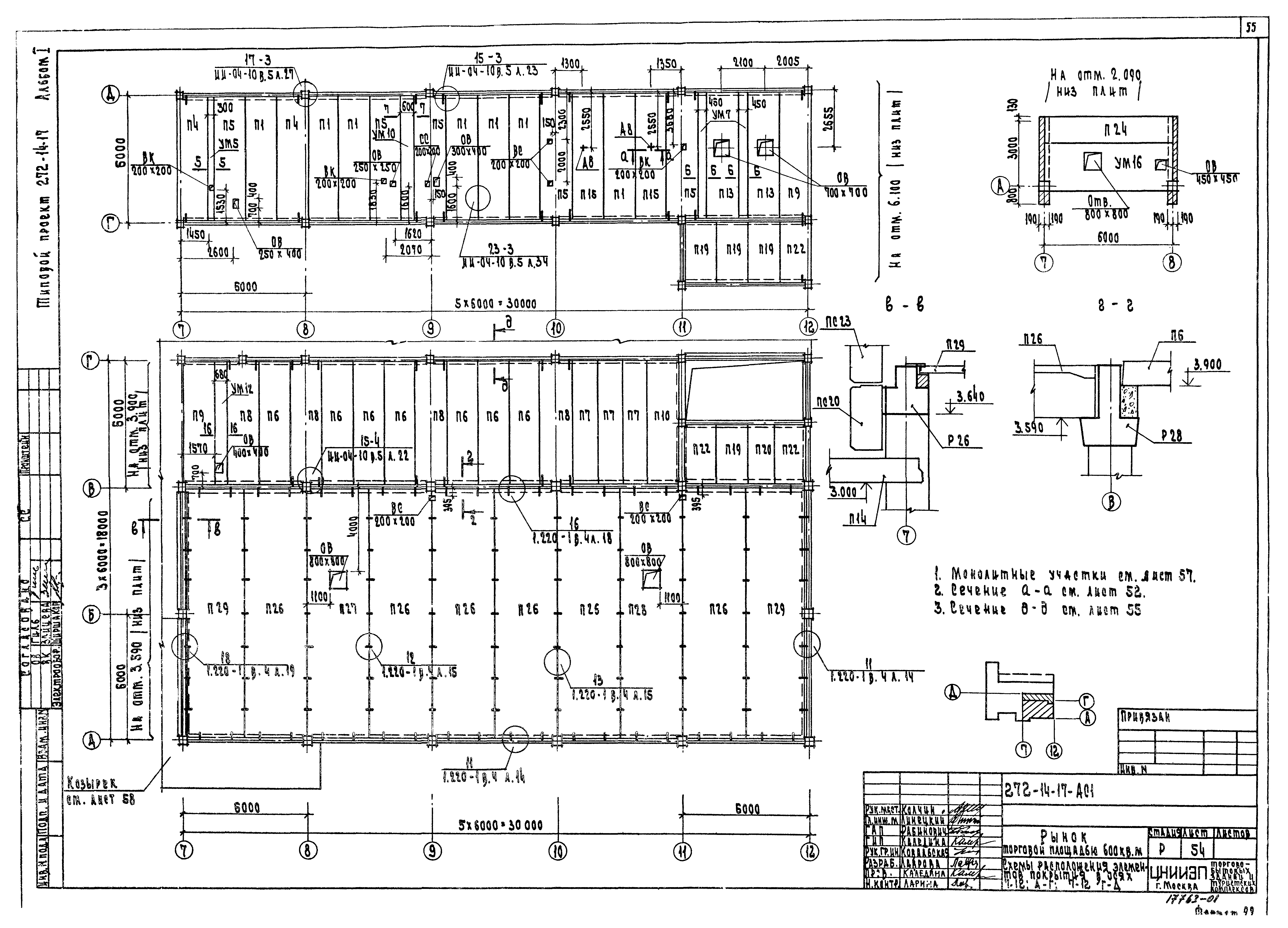
   Схема расположения элементов каркаса в плане 2, 3 этажей и по осям А, Б, Л, К, 2
   Схема расположения элементов каркаса по осям Д, Г, 1, 7, 11
   Схема расположения элементов каркаса по осям Е, З
   Схема расположения балок и связей покрытия над рампой
   Спецификация элементов перекрытия и покрытия
   Схема расположения элементов перекрытия и покрытия в осях 1 - 7, А - Г
   Схема расположения элементов перекрытия и покрытия в осях 1 - 7, Г - И
   Схема расположения элементов перекрытия и покрытия в осях 7 - 12, Г - Ж; 1 - 3, И - Л
   Схема расположения элементов перекрытия над 2 этажом в осях 1 - 3
   Схема расположения элементов покрытия в осях 7 - 12, А - Г; 7 - 12, Г - Д
   Схема расположения элементов покрытия в осях 1 - 3
   Спецификация элементов монолитных участков УМ1 - УМ19
   Участки монолитные УМ1 - УМ19
   Схема расположения элементов козырька
   Спецификация к схемам расположения панелей стен
   Спецификация к схемам расположения панелей стен. Узлы
   Схема расположения панелей стен по осям 1, А, И
   Схема расположения панелей стен по осям 3, Б, А, 12
   Схема расположения панелей стен по осям Г, Д, 7, 11, А/1, В/1, Л
   Лестницы Л1, Л2
   Лестницы Л3, Л4
   Лифт. План. Разрез 1-1
   Лифт. Разрезы 2-2 - 4-4
   Чертеж на заказ лифта
   Ведомость перемычек. Спецификация элементов перегородок и перемычек
   Разбивка анкеров механизации и закладных деталей витражей
   План крыши
   Сечения крыши
   Лестница Л5, ФХМ-8
   Схемы расположения элементов фундамента и каркаса площадки сезонной торговли
   Схема расположения элементов покрытия площадки сезонной торговли
   Звено асбоцементного воздуховода
   Механизация транспортировки мяса. Каркас подвесного пути
   Механизация транспортировки мяса. Ограждение на повороте подвесного пути
   Механизация транспортировки мяса. Стрелка подъемная
Разработан: ЦНИИЭП торгово-бытовых зданий и туристских комплексов
Утверждён:13.10.1980 Госгражданстрой (Gosgrazhdanstroy 265)
Расположен в:Техническая документация Строительство Справочные документы Типовые строительные конструкции, изделия и узлы Общероссийский строительный каталог Общественные здания в городах и поселках городского типа Предприятия торговли и общественного питания. Общественные центры Предприятия торговли Рынки крытые и рыночные павильоны
Типовой проект 272-14-17Типовой проект 272-14-17Типовой проект 272-14-17Типовой проект 272-14-17Типовой проект 272-14-17Типовой проект 272-14-17Типовой проект 272-14-17Типовой проект 272-14-17Типовой проект 272-14-17Типовой проект 272-14-17Типовой проект 272-14-17Типовой проект 272-14-17Типовой проект 272-14-17Типовой проект 272-14-17Типовой проект 272-14-17Типовой проект 272-14-17Типовой проект 272-14-17Типовой проект 272-14-17Типовой проект 272-14-17Типовой проект 272-14-17Типовой проект 272-14-17Типовой проект 272-14-17Типовой проект 272-14-17Типовой проект 272-14-17Типовой проект 272-14-17Типовой проект 272-14-17Типовой проект 272-14-17Типовой проект 272-14-17Типовой проект 272-14-17Типовой проект 272-14-17Типовой проект 272-14-17Типовой проект 272-14-17Типовой проект 272-14-17Типовой проект 272-14-17Типовой проект 272-14-17Типовой проект 272-14-17Типовой проект 272-14-17Типовой проект 272-14-17Типовой проект 272-14-17Типовой проект 272-14-17Типовой проект 272-14-17Типовой проект 272-14-17Типовой проект 272-14-17Типовой проект 272-14-17Типовой проект 272-14-17Типовой проект 272-14-17Типовой проект 272-14-17Типовой проект 272-14-17Типовой проект 272-14-17Типовой проект 272-14-17Типовой проект 272-14-17Типовой проект 272-14-17Типовой проект 272-14-17Типовой проект 272-14-17Типовой проект 272-14-17Типовой проект 272-14-17Типовой проект 272-14-17Типовой проект 272-14-17Типовой проект 272-14-17Типовой проект 272-14-17Типовой проект 272-14-17Типовой проект 272-14-17Типовой проект 272-14-17Типовой проект 272-14-17Типовой проект 272-14-17Типовой проект 272-14-17Типовой проект 272-14-17Типовой проект 272-14-17Типовой проект 272-14-17Типовой проект 272-14-17Типовой проект 272-14-17Типовой проект 272-14-17Типовой проект 272-14-17Типовой проект 272-14-17Типовой проект 272-14-17Типовой проект 272-14-17Типовой проект 272-14-17Типовой проект 272-14-17Типовой проект 272-14-17Типовой проект 272-14-17Типовой проект 272-14-17Типовой проект 272-14-17

© 2013 Ёшкин Кот :-) Карта сайта