Информационная система
«Ёшкин Кот»

Скачать базу одним архивом
Скачать обновления
История создания базы
Карта сайта

Скачать Типовой проект 234-1-107 Альбом III. Электротехнические чертежи

Дата актуализации: 10.08.2017

Типовой проект 234-1-107

Альбом III. Электротехнические чертежи

Обозначение: Типовой проект 234-1-107
Обозначение англ: 234-1-107
Статус:действует
Название рус.:Альбом III. Электротехнические чертежи
Дата добавления в базу:01.09.2013
Дата актуализации:05.05.2017
Дата введения:28.11.1980
Оглавление:Содержание альбома III
Электрооборудование
   Пояснения к проекту. Условные обозначения
   Сводная спецификация
   Расчетная схема питающих сетей. Силовое электрооборудование
   План подвала в осях А -Е. Вариант с полами по грунту. Электроосвещение
   План подвала и технического подполья. Вариант с техническим подпольем в осях А - Г. Электроосвещение
   План технического подполья в осях Г - К. Электроосвещение
   План 1 этажа в осях А - Г. Электроосвещение
   План 1 этажа в осях Г - К. Электроосвещение
   План 2 этажа в осях А - Д. Электроосвещение
   План 2 этажа в осях Г - Д. Электроосвещение
   План 3 этажа в осях А - Д. Электроосвещение
   План 3 этажа в осях Г - К. Электроосвещение
   План 4 этажа в осях А - Д. Электроосвещение
   План 4 этажа в осях Д - К. Электроосвещение
   Расчетная схема щита освещения эстрады. Схемы управления освещением актового зала. Электроосвещение
   Расчетная таблица-схема распределительной сети. Силовое электрооборудование
   Расчетная таблица-схема распределительной сети. Фрагмент 1 этажа. Кабельный журнал. Силовое электрооборудование
   План подвала и технического подполья. План кровли. Фрагменты планов 3 и 4 этажей. Силовое электрооборудование
   План 1 этажа. Силовое электрооборудование
   Фрагменты планов 1 - 4 этажей. Силовое электрооборудование
   Отключение вентиляции при пожаре. Схемы принципиальная и присоединений. Силовое электрооборудование
   Панели постов управления
   Вводно-распределительное устройство. Опросный лист
Автоматизация сантехустройств
   Ведомость чертежей. Пояснения к проекту
   Сводная спецификация
   Вентсистема П1 (П2), В1 (В2, В5). Тепловая завеса У1. Схема функциональная
   Система приточная П3 (П4). Схема функциональная. Схема электрическая принципиальная управления
   Вентсистемы П1 (П2), В1 (В2, В5). Схема электрическая принципиальная управления
   Система приточная П1 (П2). Схема электрическая принципиальная регулирования температуры
   Система приточная П1 (П2). Схема электрическая принципиальная сигнализации
   Система приточная П1 (П2). Тепловая завеса У1. Схемы электрические принципиальные питания и управления
   Система приточная П3 (П4). Схема электрическая присоединений
   Система приточная П1 (П2). Схема электрическая присоединений
   Системы приточные П1, П2, П3, П4. Тепловая завеса У1. Венткамеры. Планы прокладки контрольных сетей
Устройства связи
   Общие данные
   Сводная спецификация
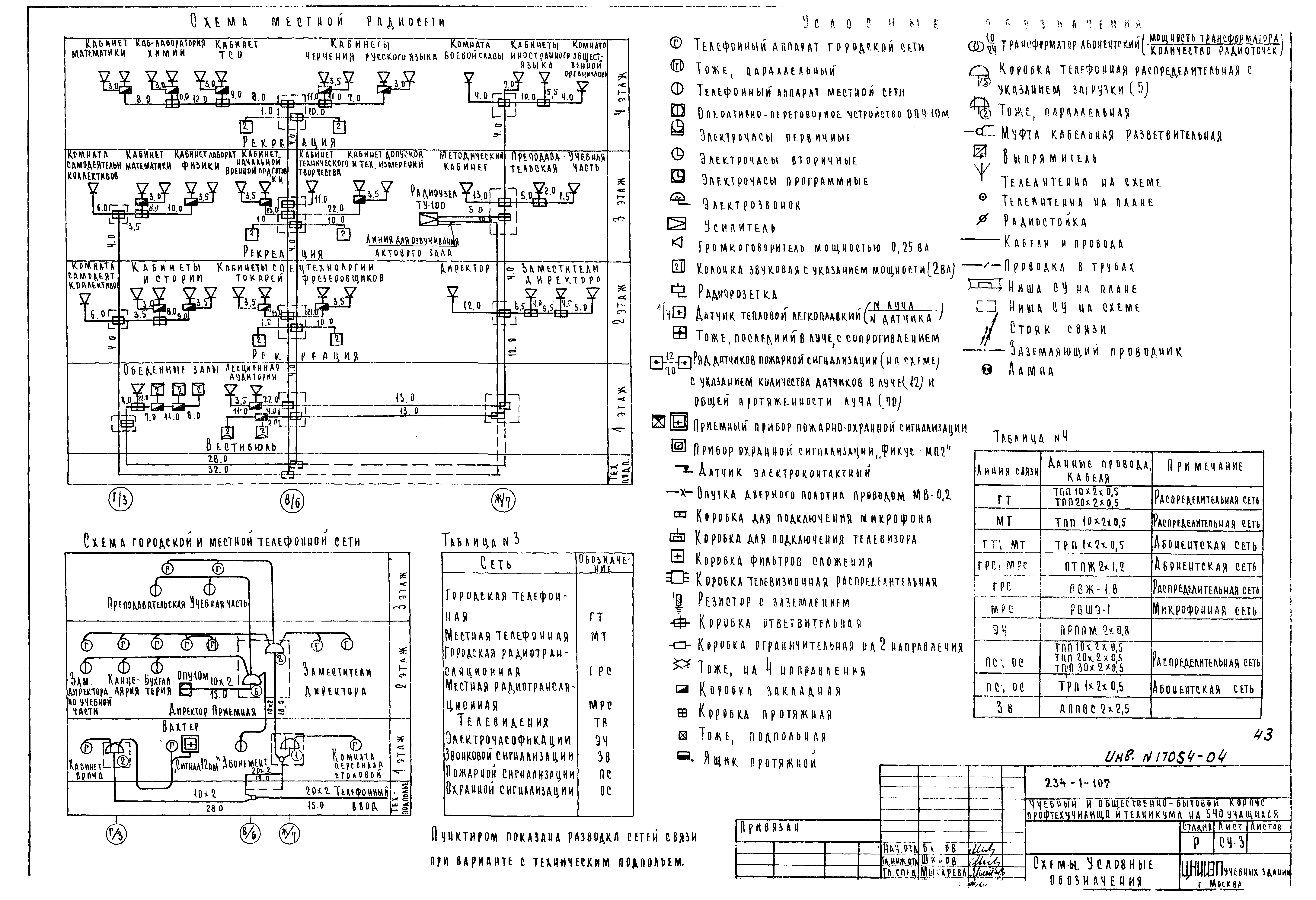
   Схемы. Условные обозначения
   План подвала. Вариант с полами по грунту
   План подвала и техподполья в осях А - 14. Вариант с техподпольем
   План 1 этажа в осях А - Г для варианта с полами по грунту. Схема
   План 1 этажа в осях А - Е для варианта с техническим подпольем
   План 1 этажа в осях Г - К
   План 2 этажа в осях А - Г. Схема
   План 2 этажа в осях Г - К. Схема
   План 3 этажа в осях А - Г. Схема
   План 3 этажа в осях Г - К. Схема
   План 4 этажа в осях А - Д. Схема
   План 4 этажа в осях 6 - 8; Д - К. Фрагмент плана кровли в осях 6 - 9; А - Ж
   Пожарная сигнализация. Схема электропитания
   Коробка для подключения телевизора
   Коробка для подключения микрофона
Разработан: ЦНИИЭП учебных зданий Госгражданстроя
Утверждён:17.08.1979 Госгражданстрой (Gosgrazhdanstroy 179)
Расположен в:Техническая документация Строительство Справочные документы Типовые строительные конструкции, изделия и узлы Общероссийский строительный каталог Общественные здания в городах и поселках городского типа Профессионально-технические, средние специальные и высшие учебные заведения, учебные пункты и учебные комбинаты Профессионально-технические училища и учебные заведения для подготовки и переподготовки рабочих кадров
Типовой проект 234-1-107Типовой проект 234-1-107Типовой проект 234-1-107Типовой проект 234-1-107Типовой проект 234-1-107Типовой проект 234-1-107Типовой проект 234-1-107Типовой проект 234-1-107Типовой проект 234-1-107Типовой проект 234-1-107Типовой проект 234-1-107Типовой проект 234-1-107Типовой проект 234-1-107Типовой проект 234-1-107Типовой проект 234-1-107Типовой проект 234-1-107Типовой проект 234-1-107Типовой проект 234-1-107Типовой проект 234-1-107Типовой проект 234-1-107Типовой проект 234-1-107Типовой проект 234-1-107Типовой проект 234-1-107Типовой проект 234-1-107Типовой проект 234-1-107Типовой проект 234-1-107Типовой проект 234-1-107Типовой проект 234-1-107Типовой проект 234-1-107Типовой проект 234-1-107Типовой проект 234-1-107Типовой проект 234-1-107Типовой проект 234-1-107Типовой проект 234-1-107Типовой проект 234-1-107Типовой проект 234-1-107Типовой проект 234-1-107Типовой проект 234-1-107Типовой проект 234-1-107Типовой проект 234-1-107Типовой проект 234-1-107Типовой проект 234-1-107Типовой проект 234-1-107Типовой проект 234-1-107Типовой проект 234-1-107Типовой проект 234-1-107Типовой проект 234-1-107Типовой проект 234-1-107Типовой проект 234-1-107Типовой проект 234-1-107Типовой проект 234-1-107Типовой проект 234-1-107Типовой проект 234-1-107Типовой проект 234-1-107Типовой проект 234-1-107Типовой проект 234-1-107Типовой проект 234-1-107Типовой проект 234-1-107

© 2013 Ёшкин Кот :-) Карта сайта