Информационная система
«Ёшкин Кот»

Скачать базу одним архивом
Скачать обновления
История создания базы
Карта сайта

Скачать Серия 1.412-3/79 Выпуск 2. Рабочие чертежи

Дата актуализации: 10.08.2017

Серия 1.412-3/79

Выпуск 2. Рабочие чертежи

Обозначение: Серия 1.412-3/79
Обозначение англ: Series 1.412-3/79
Статус:заменен
Название рус.:Выпуск 2. Рабочие чертежи
Дата добавления в базу:01.09.2013
Дата актуализации:05.05.2017
Дата введения:01.04.1989
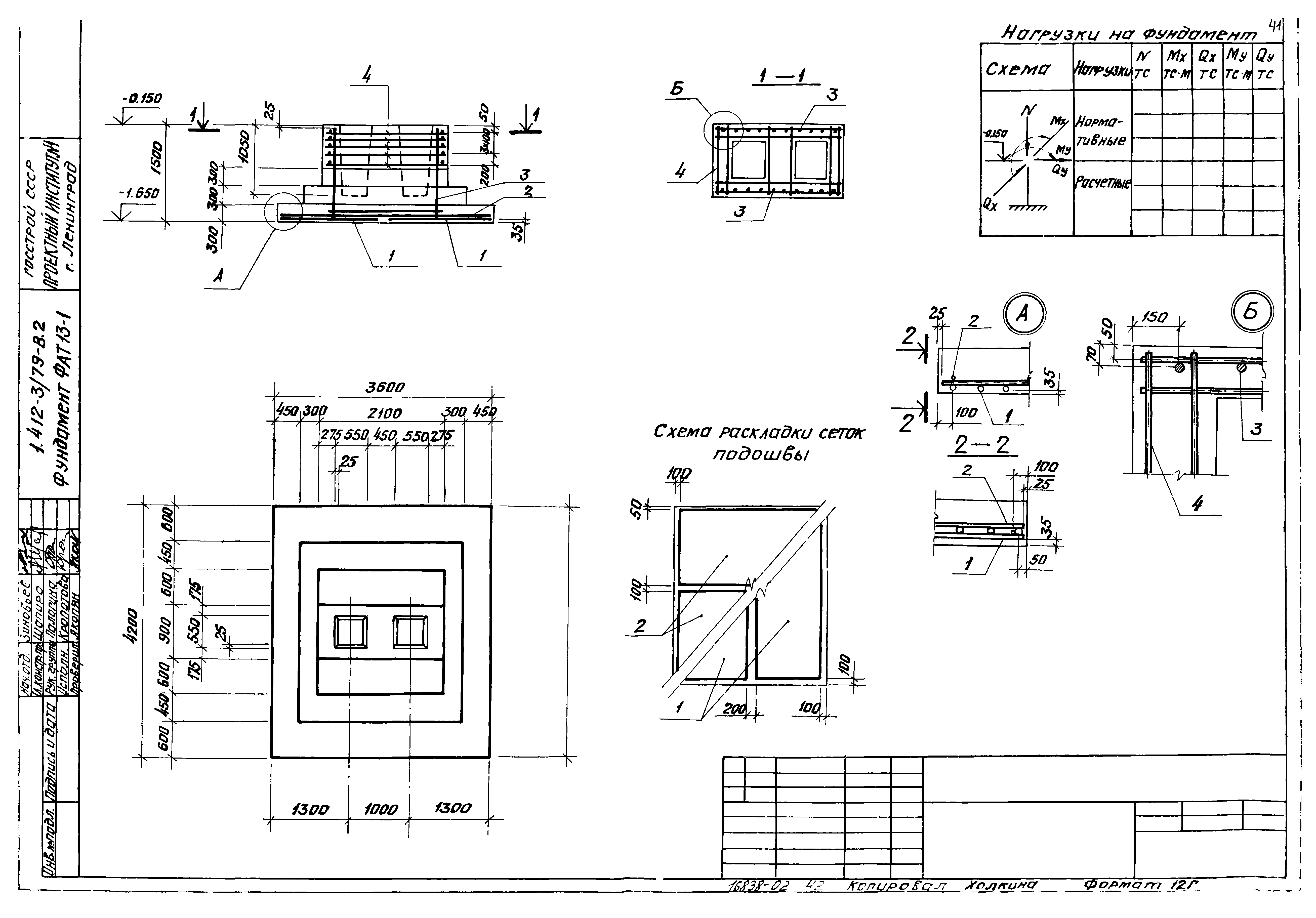
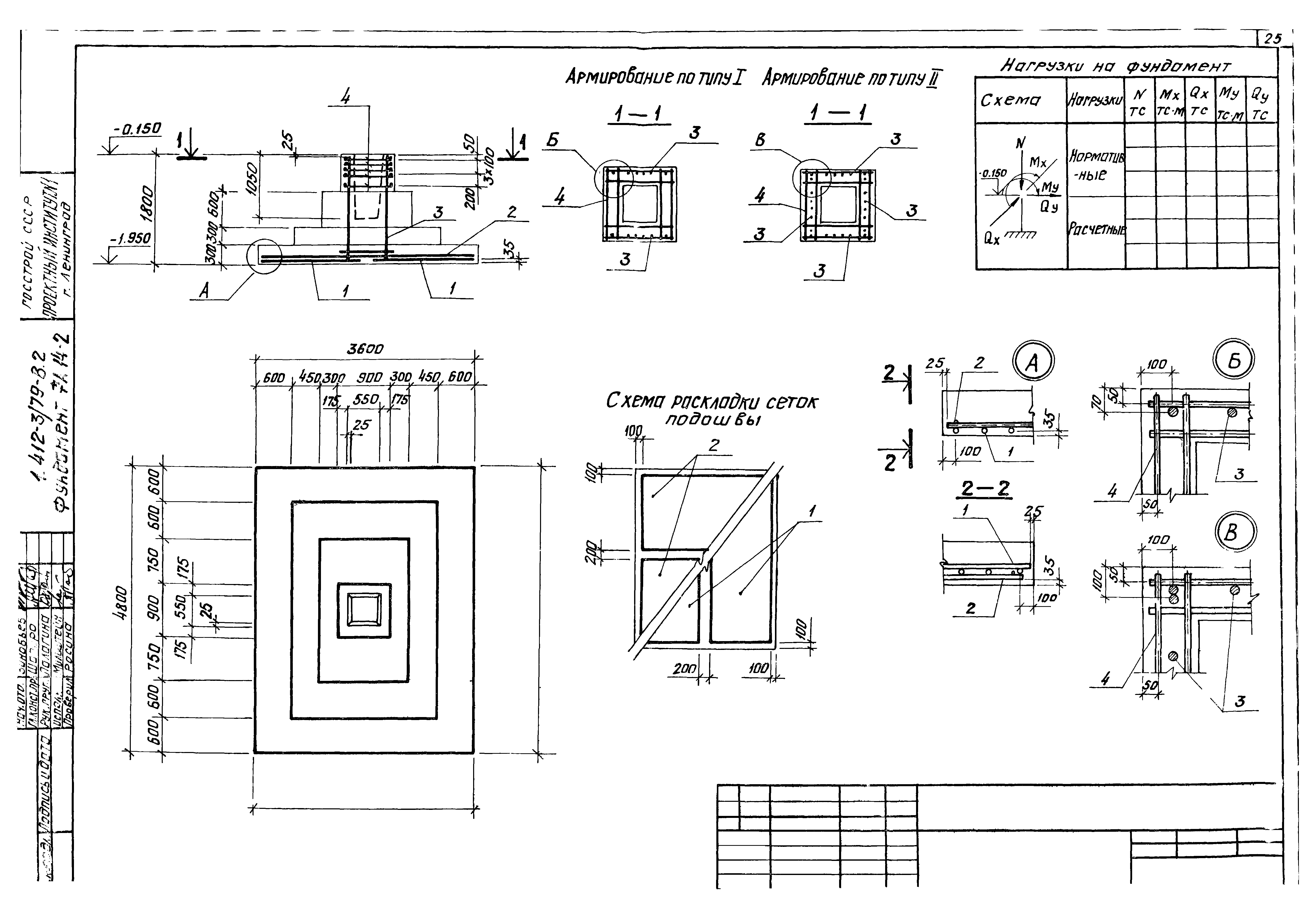
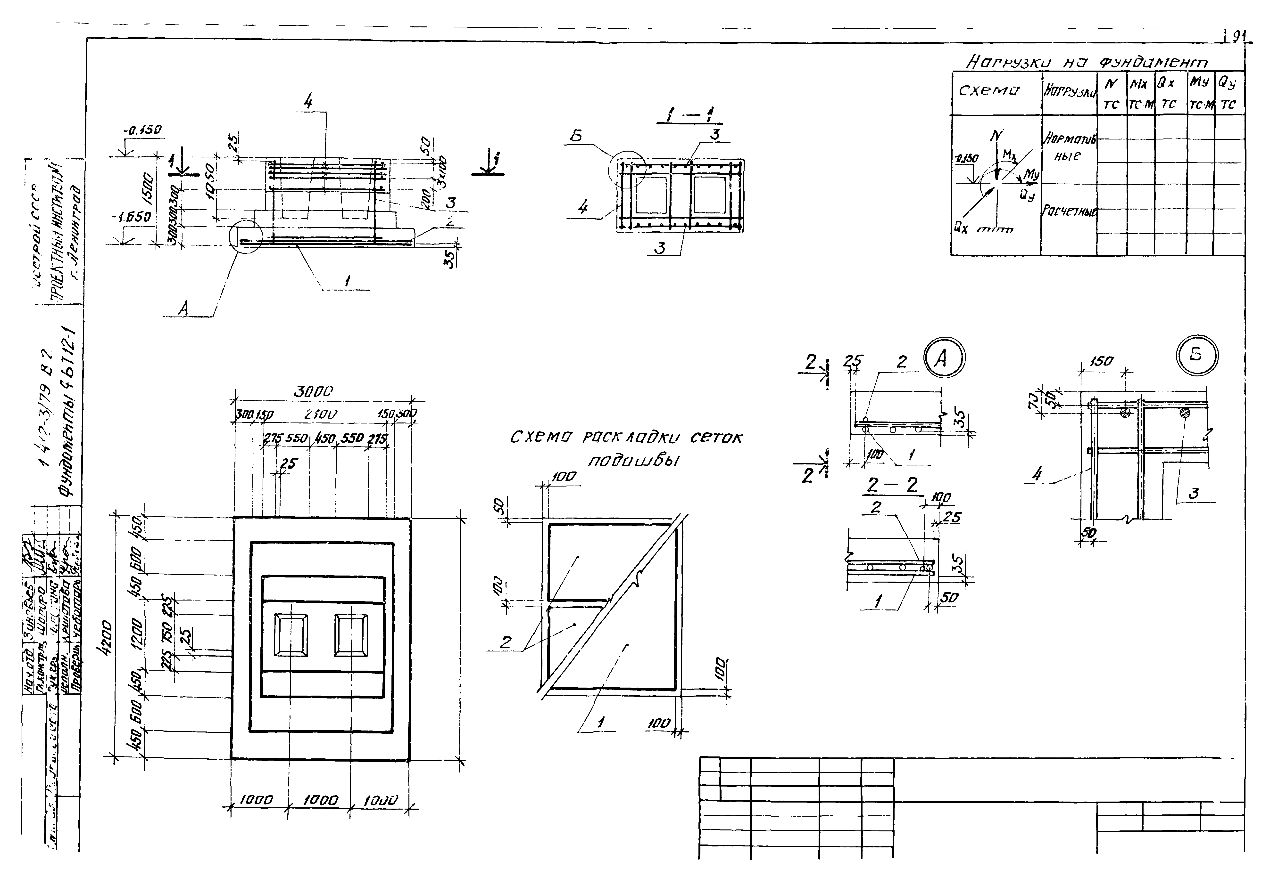
Область применения:В настоящем выпуске 2 серии 1.412-3/79 разработаны чертежи железобетонных монолитных фундаментов на естественном основании под типовые колонны прямоугольного сечения по сериям ИИ-04, ИИ-20 и 1.420-6 для многоэтажных производственных зданий
Разработан: НИИЖБ
НИИОСП Госстроя СССР
Проектный институт № 1 Госстроя СССР
Утверждён:31.07.1980 Госстрой СССР (Государственный комитет Совета Министров СССР по делам строительства) (USSR Gosstroy 118)
Расположен в:Техническая документация Строительство Справочные документы Типовые строительные конструкции, изделия и узлы Общероссийский строительный каталог Строительные конструкции, изделия и узлы зданий и сооружений для всех видов строительства Конструкции, изделия и узлы зданий Конструкции нулевого цикла Фундаменты и фундаментные блоки
Заменяет собой:
Чем заменён:
Нормативные ссылки:
Серия 1.412-3/79Серия 1.412-3/79Серия 1.412-3/79Серия 1.412-3/79Серия 1.412-3/79Серия 1.412-3/79Серия 1.412-3/79Серия 1.412-3/79Серия 1.412-3/79Серия 1.412-3/79Серия 1.412-3/79Серия 1.412-3/79Серия 1.412-3/79Серия 1.412-3/79Серия 1.412-3/79Серия 1.412-3/79Серия 1.412-3/79Серия 1.412-3/79Серия 1.412-3/79Серия 1.412-3/79Серия 1.412-3/79Серия 1.412-3/79Серия 1.412-3/79Серия 1.412-3/79Серия 1.412-3/79Серия 1.412-3/79Серия 1.412-3/79Серия 1.412-3/79Серия 1.412-3/79Серия 1.412-3/79Серия 1.412-3/79Серия 1.412-3/79Серия 1.412-3/79Серия 1.412-3/79Серия 1.412-3/79Серия 1.412-3/79Серия 1.412-3/79Серия 1.412-3/79Серия 1.412-3/79Серия 1.412-3/79Серия 1.412-3/79Серия 1.412-3/79Серия 1.412-3/79Серия 1.412-3/79Серия 1.412-3/79Серия 1.412-3/79Серия 1.412-3/79Серия 1.412-3/79Серия 1.412-3/79Серия 1.412-3/79Серия 1.412-3/79Серия 1.412-3/79Серия 1.412-3/79Серия 1.412-3/79Серия 1.412-3/79Серия 1.412-3/79Серия 1.412-3/79Серия 1.412-3/79Серия 1.412-3/79Серия 1.412-3/79Серия 1.412-3/79Серия 1.412-3/79Серия 1.412-3/79Серия 1.412-3/79Серия 1.412-3/79Серия 1.412-3/79Серия 1.412-3/79Серия 1.412-3/79Серия 1.412-3/79Серия 1.412-3/79Серия 1.412-3/79Серия 1.412-3/79Серия 1.412-3/79Серия 1.412-3/79Серия 1.412-3/79Серия 1.412-3/79Серия 1.412-3/79Серия 1.412-3/79Серия 1.412-3/79Серия 1.412-3/79Серия 1.412-3/79Серия 1.412-3/79Серия 1.412-3/79Серия 1.412-3/79Серия 1.412-3/79Серия 1.412-3/79Серия 1.412-3/79Серия 1.412-3/79Серия 1.412-3/79Серия 1.412-3/79Серия 1.412-3/79Серия 1.412-3/79Серия 1.412-3/79Серия 1.412-3/79Серия 1.412-3/79Серия 1.412-3/79Серия 1.412-3/79Серия 1.412-3/79Серия 1.412-3/79Серия 1.412-3/79Серия 1.412-3/79Серия 1.412-3/79Серия 1.412-3/79Серия 1.412-3/79Серия 1.412-3/79Серия 1.412-3/79Серия 1.412-3/79Серия 1.412-3/79Серия 1.412-3/79Серия 1.412-3/79Серия 1.412-3/79

© 2013 Ёшкин Кот :-) Карта сайта